Sold @ Auction £260,000

Development Site, @, Canford Lane, Westbury Village, BS9 3DH

Bedrooms 4 Bathrooms 2 Reception 2

  • FOR SALE BY PUBLIC AUCTION
  • WEDNESDAY 18TH JULY
  • ALL SAINTS CHURCH, CLIFTON, BS8 2HY
  • DOWNLOAD ONLINE LEGAL PACKS
  • EXTERNAL INSPECTION AT ALL TIMES
  • FREEHOLD BUILDING PLOT
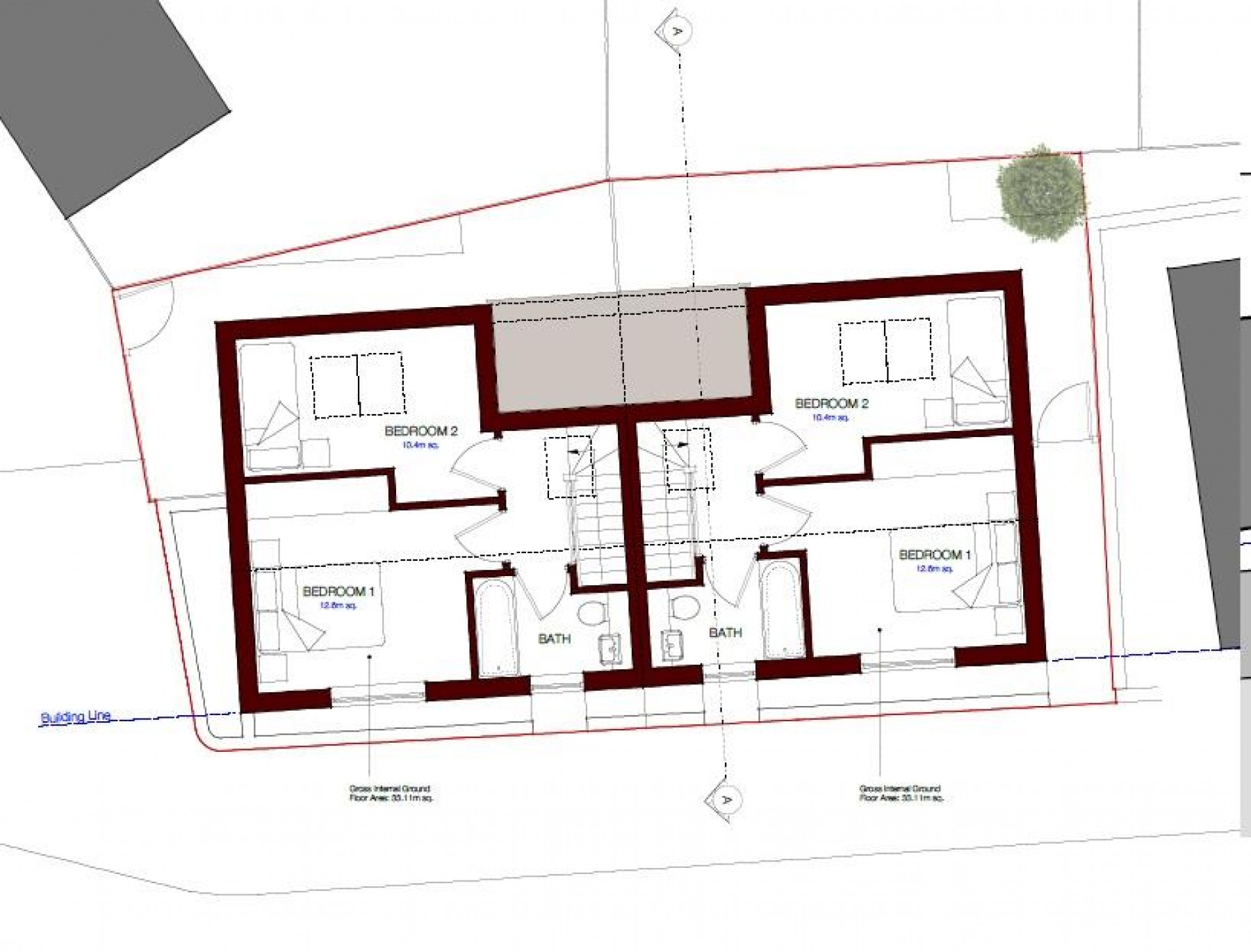
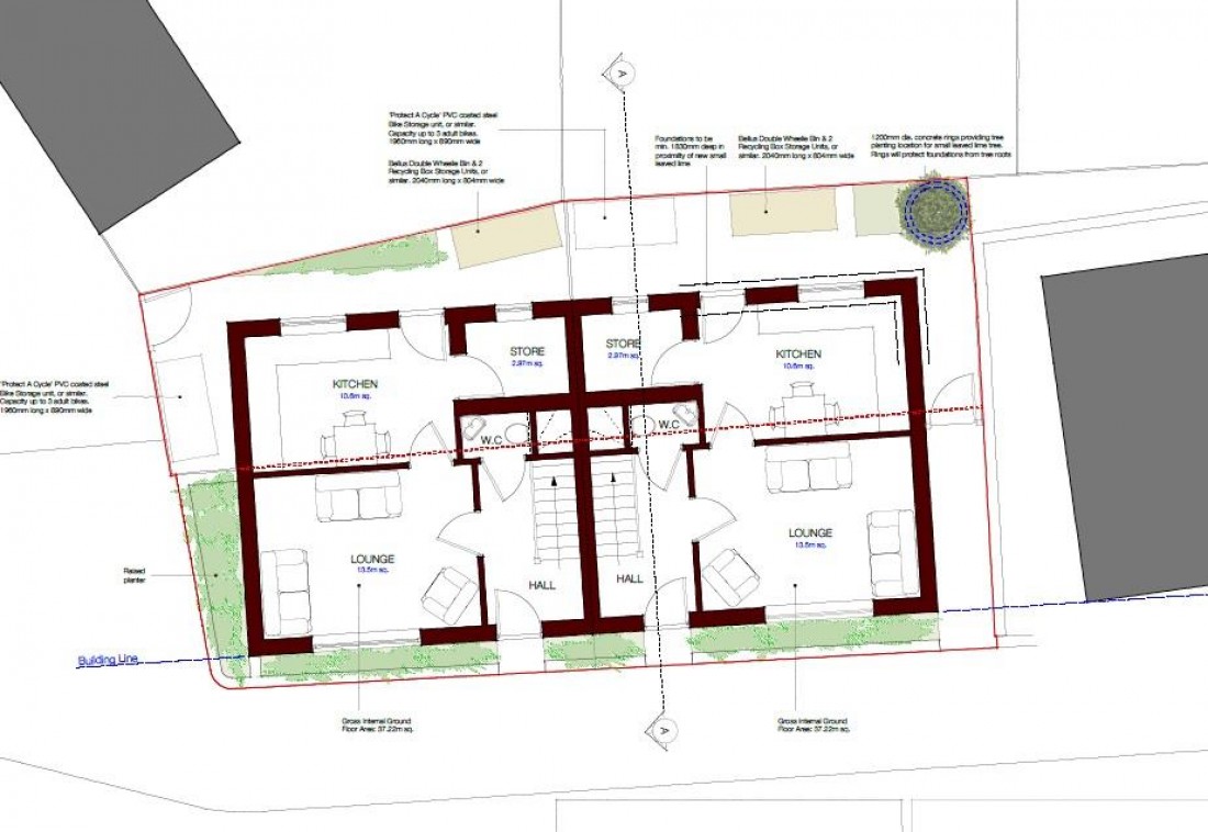
  • PLANNING GRANTED - GDV £700k
  • 2 X 2 BED HOUSES
  • HEART OF WESTBURY VILLAGE
  • RARE DEVELOPMENT OPPORTUNITY

FOR SALE BY AUCTION

*** SOLD @ HOLLIS MORGAN JULY AUCTION ***

GUIDE £200,000 +++
SOLD @ £260,000

LOT NUMBER 9
Wednesday 18th July 2018
All Saints Church Pembroke Road, Clifton, Bristol BS8 2HY
Legal packs will be available for inspection from 18:00.
The sale will begin promptly at 19:00

THE LAND

A Freehold parcel of land ( 0.0346 acres / 140.03 sq m) )occupying a prominent High Street position in the centre of Westbury on Trym village.

LOCATION

Westbury-on-Trym lies to the North West of Bristol's City Centre and is advantageously placed with a host of amenities on the doorstep. These include primary schools (Elmlea and W-O-T Primary) as well as secondary schools, state and independent.
There is open parkland and woodland walks with Durdham Downs and the Kings Weston Estate respectively nearby.
For health and leisure there are sports clubs and tennis clubs (the closest of which is within the adjacent University campus) as well as golf courses.
For the commuter there is good ease of access to the motorway networks, M5, M4, M32 and Bristol's commercial centre.

THE OPPORTUNITY

PLANNING GRANTED

Planning has been granted to erect a pair of semi detached two bedroom cottage style properties in this highly sought after location amongst the shops in Westbury Village.

GDV £700k +

We understand the resale values of the completed properties is in the region £350,000 per unit.

PLANNING GRANTED

Decision : GRANTED subject to condition(s)
Application no: 18/01087/F
Type of application: Full Planning
Site address: Land Adjacent To 24 Canford Lane, Bristol.
Description of development: Erection of 2no. semi-detached dwelling houses on land adjacent to 24 Canford Lane, including soft and hard landscaping.
Applicant: Anford Homes Ltd
Agent: Stokes Morgan Planning Ltd
Committee/delegation date: 29.06.18
Date of Notice: 29.06.18

PLANNING INFORMATION

Full Details of the plans and decision notice etc can be downloaded with the online legal pack.

EPC

For full details of the EPC please refer to the online legal pack.


Local Information

Schools Stations Healthcare
Floorplan for PP GRANTED  - 2X 2 BED COTTAGES - GDV £700k Floorplan for PP GRANTED  - 2X 2 BED COTTAGES - GDV £700k Floorplan for PP GRANTED  - 2X 2 BED COTTAGES - GDV £700k Floorplan for PP GRANTED  - 2X 2 BED COTTAGES - GDV £700k Floorplan for PP GRANTED  - 2X 2 BED COTTAGES - GDV £700k