Sold @ Auction £110,000

Land Adjacent to Wesleyan Chapel, Blackhorse Road, Kingswood, BS15 8EF

Bedrooms 6 Bathrooms 3 Reception 4

  • FOR SALE BY PUBLIC AUCTION
  • WEDNESDAY 23RD MAY
  • ALL SAINTS CHURCH, CLIFTON, BS8 2HY
  • WEEKLY SET VIEWINGS
  • DOWNLOAD ONLINE LEGAL PACKS
  • PLANNING GRANTED
  • 2 X DETACHED HOUSES
  • 3 BEDROOM + STUDY
  • GDV £525,000
  • FREEHOLD DEVELOPMENT SITE

FOR SALE BY AUCTION

SOLD @ HOLLIS MORGAN MAY AUCTION

GUIDE £110,000 +++
SOLD @ £110,000

LOT NUMBER 32
Wednesday 23rd May 2018
All Saints Church Pembroke Road, Clifton, Bristol BS8 2HY
Legal packs will be available for inspection from 18:00.
The sale will begin promptly at 19:00

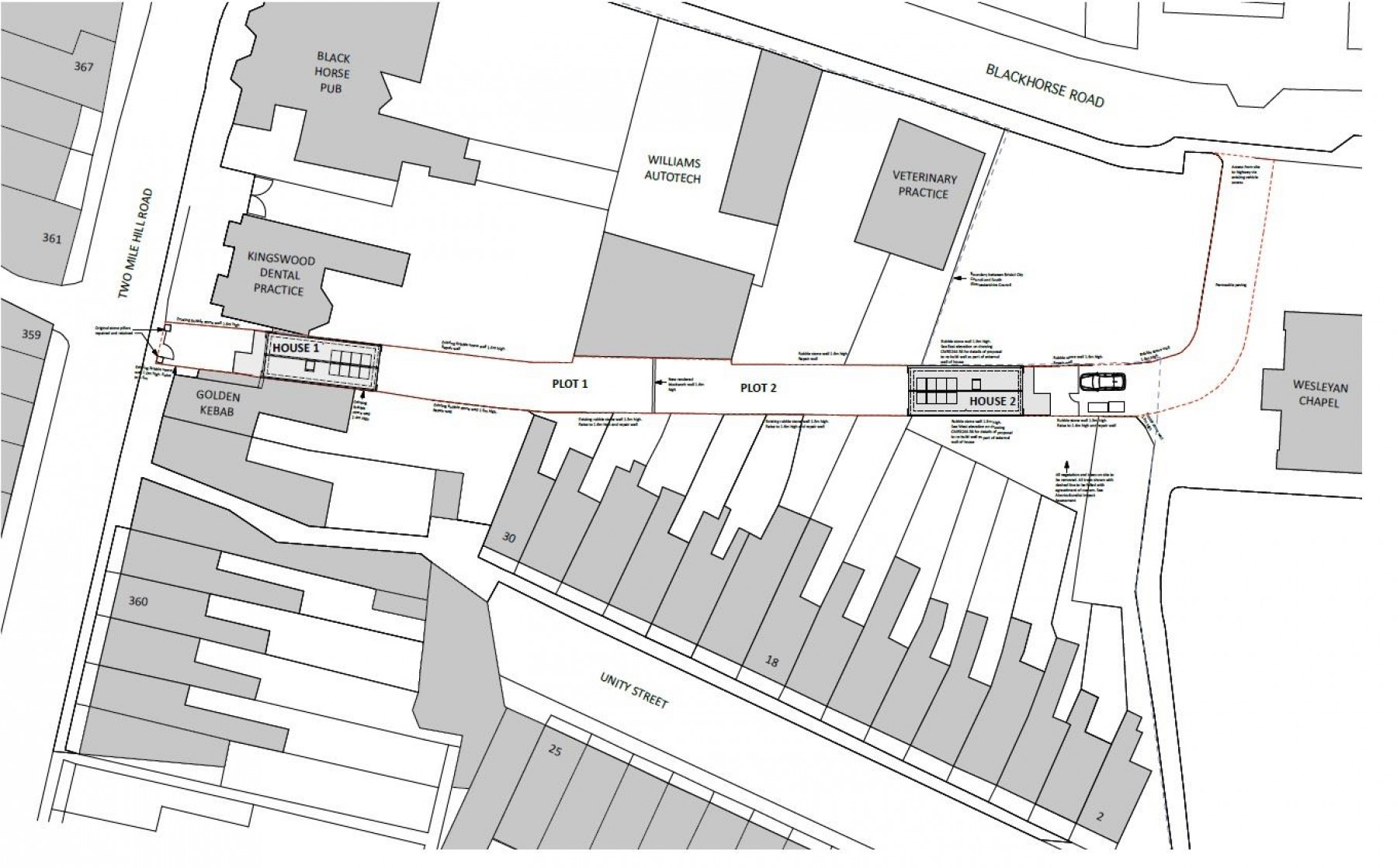
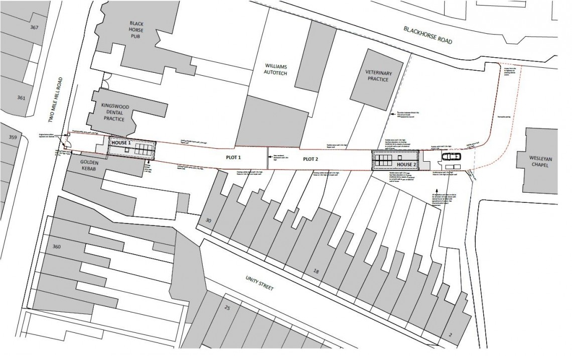
THE LAND

A Freehold parcel of land forming a lane from Two Mile Hill to the Wesleyan chapel via Blackhorse Road in this popular location close to the High Street.

LOCATION

Blackhorse Road is located in the district of Kingswood on the Eastern outskirts of Bristol. The property has excellent access to the Bristol Ring Road(2.5 Miles), Bath (9 miles), Junction 18 of the M5 motorway ( 8 Miles) and Bristol City Centre (4.5 Miles). In addition there is a wide range of public transport routes including regular buses from Regents Street.

THE OPPORTUNITY

PLANNING GRANTED

Planning has been granted to erect a pair of detached 3 bedroom houses with large gardens.

HOUSE 1 - £250,000 ( 124 m2 )

HOUSE 2 - £325,000 ( 124 m2 )

TOTAL GDV - £525,000

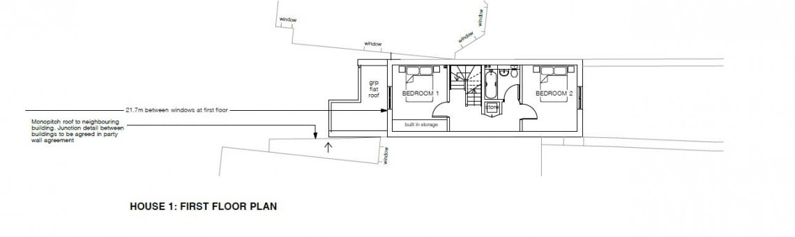
HOUSE ONE

Accessed from Two Mile Hill.

GROUND FLOOR
Reception
WC
Kitchen Diner with bi fold doors to garden
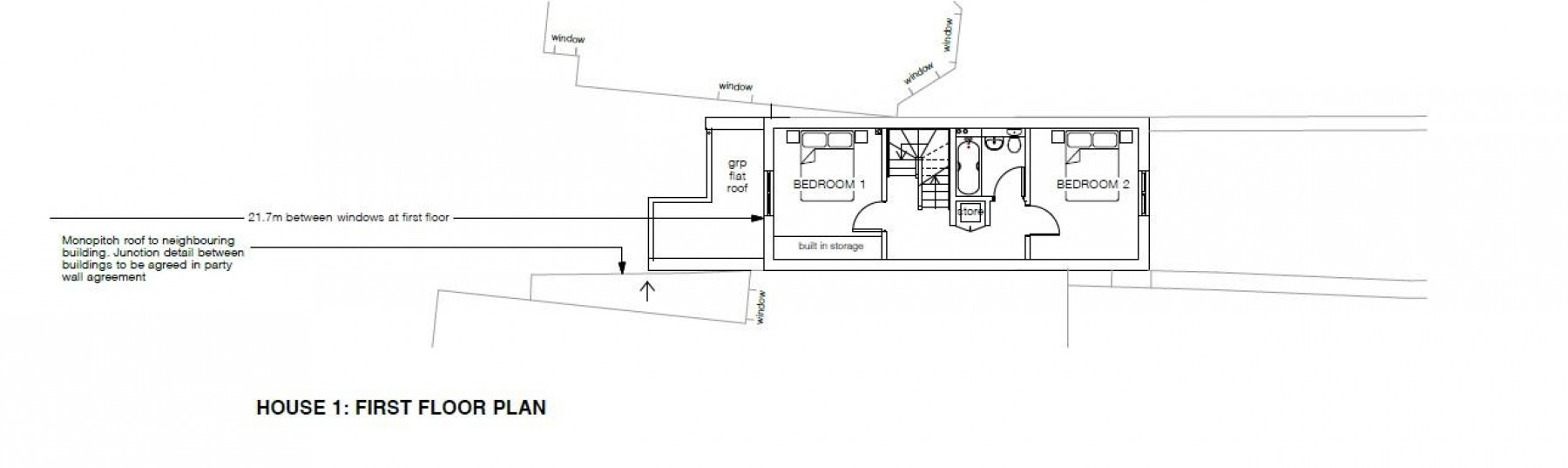
FIRST FLOOR
Bedroom 1
Bedroom 2
Bathroom
SECOND FLOOR
Bedroom 3
Study
Bathroom

HOUSE TWO

Accessed from Blackhorse Road.

Parking to front

GROUND FLOOR
Porch
Reception
WC
Kitchen Diner with bi fold doors to garden
FIRST FLOOR
Bedroom 1
Bedroom 2
Bathroom
SECOND FLOOR
Bedroom 3
Study
Bathroom

PLANNING GRANTED / APPEAL

Appeal A Ref: APP/Z0116/W/17/3181636
Former access lane between Two Mile Hill Road and the former Wesleyan Chapel, Kingswood, Bristol, BS15 1AQ.
The appeal is made under section 78 of the Town and Country Planning Act 1990 against a refusal to grant planning permission.
The appeal is made by InSpace Design Ltd against the decision of Bristol City Council.
The application Ref. 16/05919/F, dated 1/11/16, was refused by notice dated 31/5/17.
The development proposed is two dwelling houses with vehicular access through the approved former Wesleyan Chapel car park, together with associated landscaping.

Appeal B Ref: APP/Z0116/Y/17/3181638
Former access lane between Two Mile Hill Road and the former Wesleyan Chapel, Kingswood, Bristol, BS15 1AQ.
The appeal is made under section 20 of the Planning (Listed Buildings and Conservation Areas) Act 1990 against a refusal to grant listed building consent.
The appeal is made by InSpace Design Ltd against the decision of Bristol City Council.
The application Ref. 16/05920/LA, dated 1/11/16, was refused by notice dated 31/5/17.
the works proposed are described as two dwelling houses with vehicle access through the approved former Wesleyan Chapel car park, together with associated landscaping.

Decisions
1. The appeals are allowed. Planning permission is granted for two dwelling houses with vehicular access through the approved former Wesleyan Chapel car park, together with associated landscaping at the former access lane between Two Mile Hill Road and the former Wesleyan Chapel, Kingswood, Bristol, BS15 1AQ. The permission is granted in accordance with the terms of the application Ref. 16/05919/F, dated 1/11/16 subject to the conditions in Schedule A below. Listed building consent is granted for works to the entrance gate piers and boundary walls at the former access lane between Two Mile Hill Road and the former Wesleyan Chapel, Kingswood, Bristol, BS15 1AQ. The consent is granted in accordance with the terms of the application Ref. 16/05920/LA, dated 1/11/16 subject to the conditions in Schedule B below.

PLANNING INFORMATION

Full details of the planning including proposed drawing etc can be downloaded with the online legal pack.

RENTAL APPRAISAL

About this property:

Family homes in this are in high demand. Once developed each house could be let for £950 - £995pcm.

Next steps:

If you would like further information on our services or on this or any other property please contact us at our Bristol office on 01179 55 18 17 or via email at enquiries@piperproperty.co.uk. Alternatively please visit our website www.piperproperty.co.uk for information on our office locations, services and to find out how we do things differently.


Local Information

Schools Stations Healthcare
Floorplan for PP GRANTED - 2 HOUSES - GDV £575K Floorplan for PP GRANTED - 2 HOUSES - GDV £575K Floorplan for PP GRANTED - 2 HOUSES - GDV £575K Floorplan for PP GRANTED - 2 HOUSES - GDV £575K Floorplan for PP GRANTED - 2 HOUSES - GDV £575K