Sold @ Auction £50,000

Micro House, Land Adjacent to 34, Parnall Road, Fishponds, BS16 3JG

Bedrooms 1 Bathrooms 1 Reception 2

  • FOR SALE BY PUBLIC AUCTION
  • WEDNESDAY 23RD MAY
  • ALL SAINTS CHURCH, CLIFTON, BS8 2HY
  • WEEKLY SET VIEWINGS
  • DOWNLOAD ONLINE LEGAL PACKS
  • FREEHOLD PARCEL OF LAND
  • PLANNING GRANTED
  • BESPOKE MICRO HOUSE
  • BONUS STUDIO IN GARDEN
  • EXTENDED 6 WEEK COMPLETION

FOR SALE BY AUCTION

SOLD @ HOLLIS MORGAN MAY AUCTION

GUIDE £45,000 +++
SOLD @ £50,000

LOT NUMBER 15
Wednesday 23rd May 2018
All Saints Church Pembroke Road, Clifton, Bristol BS8 2HY
Legal packs will be available for inspection from 18:00.
The sale will begin promptly at 19:00

THE LAND

A Freehold parcel of land adjacent to 34 Parnall Road in sought after Fishponds.

LOCATION

Parnall Road is located just off Lodge Causeway within the popular suburb of Fishponds. Local amenities and services are all within close proximity including independent retailers, pubs, bars, cafes and restaurants. Bristol City Centre is approximately four miles away.

THE OPPORTUNITY

PLANNING GRANTED

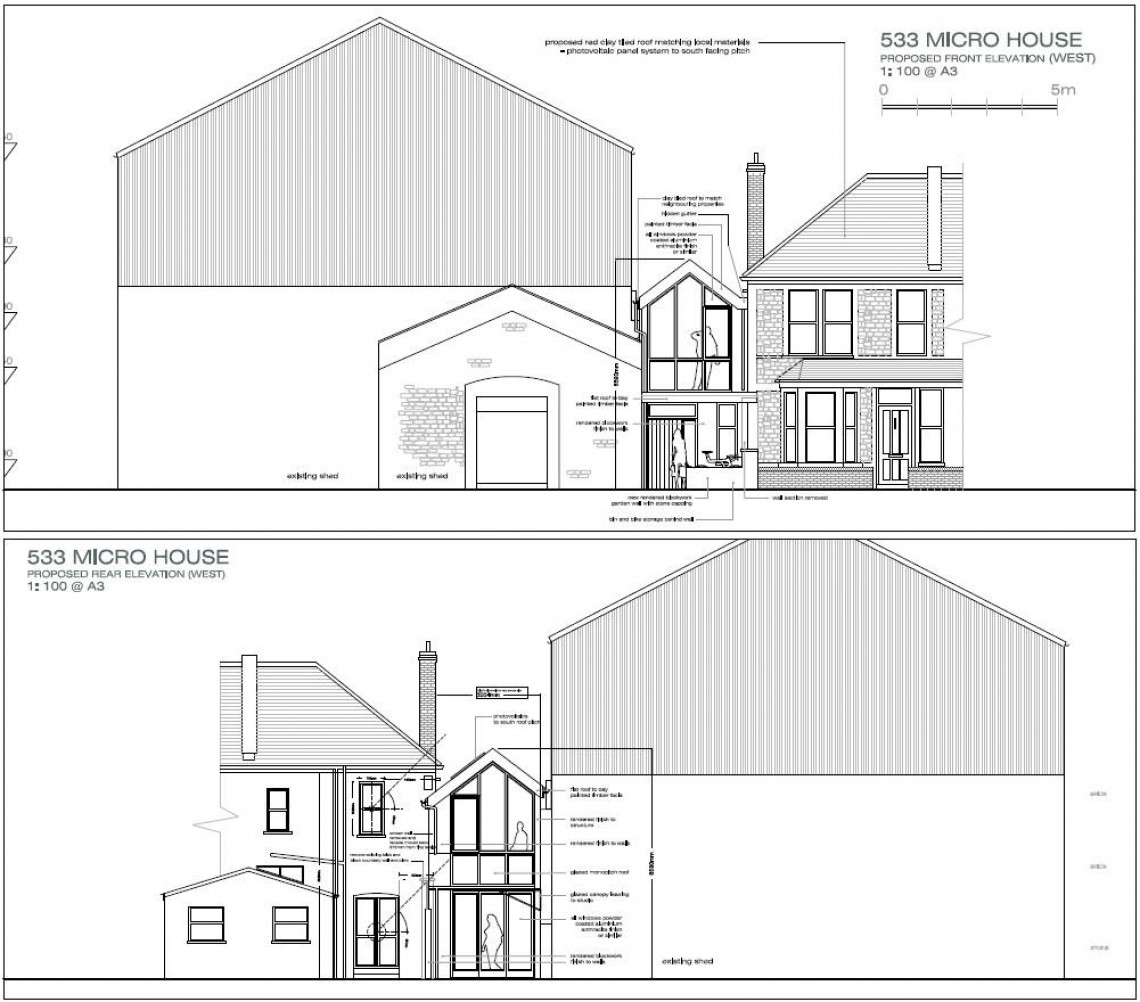
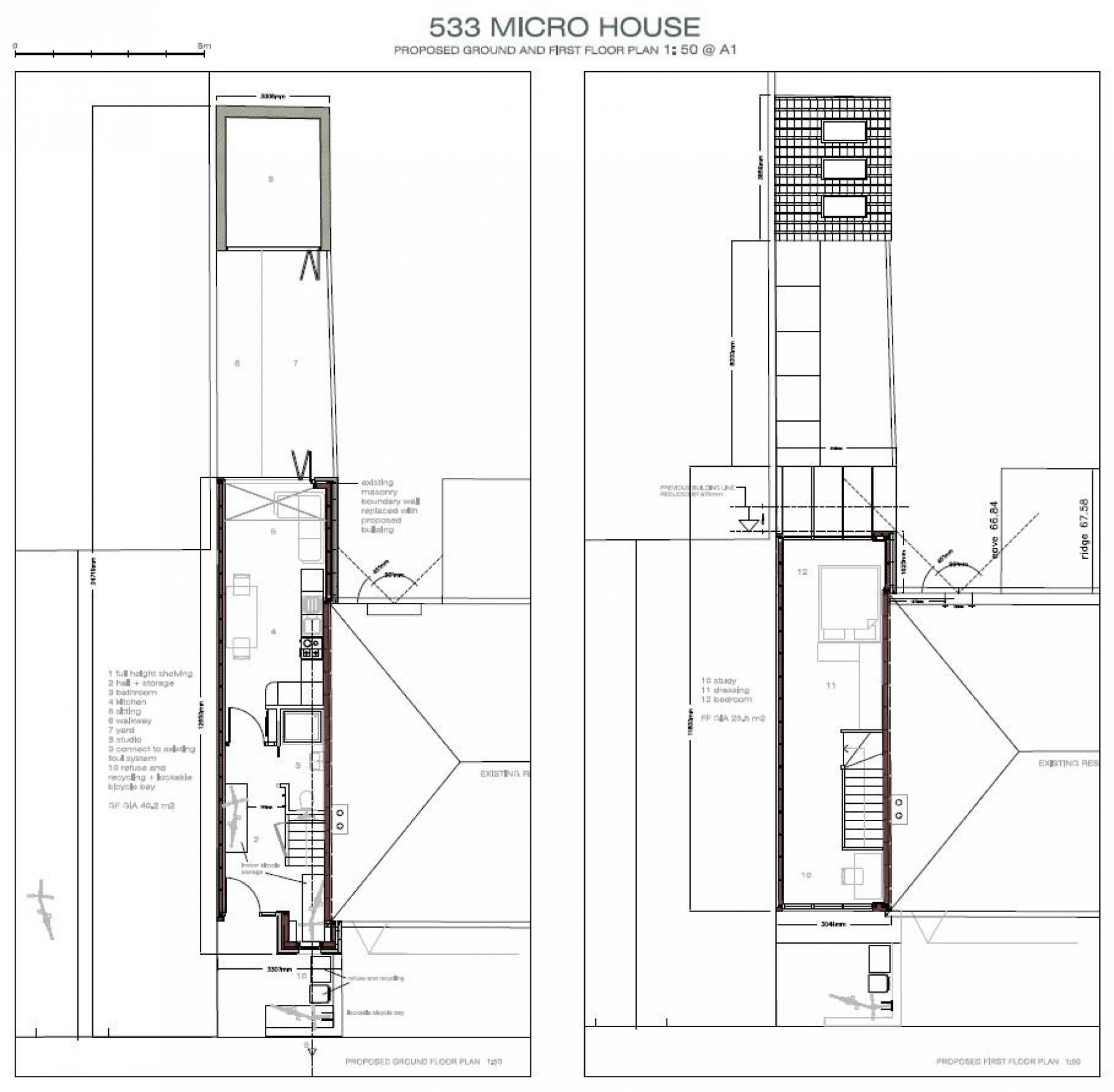
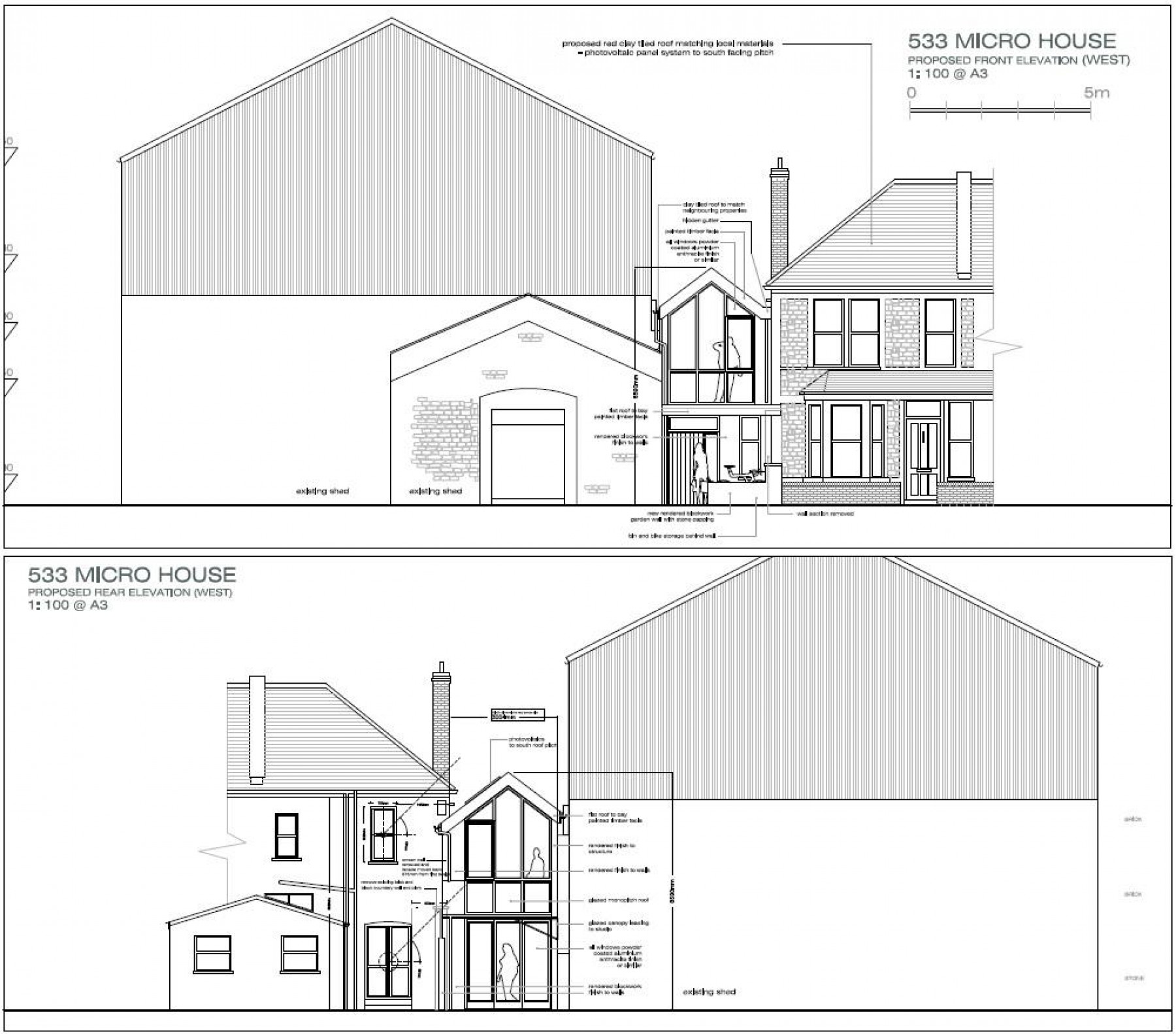
Planning has been granted to erect a bespoke micro house with Studio.
We understand the resale value of the completed property is in the region of £250,000

GROUND FLOOR
Entrance Hall
Open plan kitchen / living space
Bathroom

FIRST FLOOR
Master Bedroom

OUTSIDE
Garden
Studio

PLANNING GRANTED

Reference17/06132/F
Alternative ReferencePP-06510537
Application ReceivedFri 03 Nov 2017
Application ValidatedMon 13 Nov 2017
AddressLand Adjacent To 34 Parnall Road Bristol BS16 3JG
ProposalErection of two storey 1-bed 'micro house' (Use Class C3).
StatusDecided
DecisionGRANTED subject to condition(s)
Decision Issued DateWed 17 Jan 2018
Appeal StatusUnknown

PLANNING INFORMATION

Full details of the decision notice and proposed plans can be downloaded with the online legal pack.

RENTAL APPRAISAL

About this property:

If this property were developed according to the plans we would expect to achieve a rental income in the region of £800pcm.

Next steps:

If you would like further information on our services or on this or any other property please contact us at our Bristol office on 01179 55 18 17 or via email at enquiries@piperproperty.co.uk. Alternatively please visit our website www.piperproperty.co.uk for information on our office locations, services and to find out how we do things differently.


Local Information

Schools Stations Healthcare
Floorplan for MICRO HOUSE - PLANNING GRANTED Floorplan for MICRO HOUSE - PLANNING GRANTED