Lot 20

Building Plot Adjacent to, 33 Parklands, High Littleton, BS39 6LB

Sold @ Auction £124,000 +++

Bedrooms 4 Bathrooms 2 Reception 2

  • FOR SALE BY PUBLIC AUCTION
  • WEDNESDAY 23RD MAY
  • ALL SAINTS CHURCH, CLIFTON, BS8 2HY
  • WEEKLY SET VIEWINGS
  • DOWNLOAD ONLINE LEGAL PACKS
  • MAY 2018
  • RURAL VIEWS TO REAR
  • PLANNING GRANTED
  • EXTENDED 6 WEEK COMPLETION
  • DETACHED 4 BEDROOM HOUSE

FOR SALE BY AUCTION

SOLD @ HOLLIS MORGAN MAY AUCTION

GUIDE £115,000 +++
SOLD @ £124,000

LOT NUMBER 20
Wednesday 23rd May 2018
All Saints Church Pembroke Road, Clifton, Bristol BS8 2HY
Legal packs will be available for inspection from 18:00.
The sale will begin promptly at 19:00

EXTENDED COMPLETION

Completion is set for 6 weeks or earlier subject to mutual consent.

VIEWINGS

The site is available for external viewing at all times.

SOLICITORS

Lucy Price
Star Legal
Lucy.Price@star-legal.co.uk

ONLINE LEGAL PACKS

Digital Copies of the Online legal pack can be downloaded Free of Charge.
Please visit the Hollis Morgan Website and select the chosen lot from our Current Auction List.
Follow the RED link to "Download Legal Packs" For the first visit you will be required to register simply with your email and a password.
Having set up your account you can download legal packs or if they are not yet available they will automatically be sent to you when we receive them.
You will be automatically updated by email if any new information is added.
There will be a note added to the list to confirm AUCTION PACK NOW COMPLETE when no further information is due to be added.
*** STAY UPDATED *** By registering for the legal pack we can ensure you are kept updated on any changes to this Lot in the build up to the sale.

THE LAND

A Freehold parcel of land with charming rural views to the rear.

LOCATION

The land is located in the picturesque setting of High Littleton. Local amenities and services are all within close proximity. Bristol City Centre is approximately 11 miles away.

THE OPPORTUNITY

PLANNING GRANTED

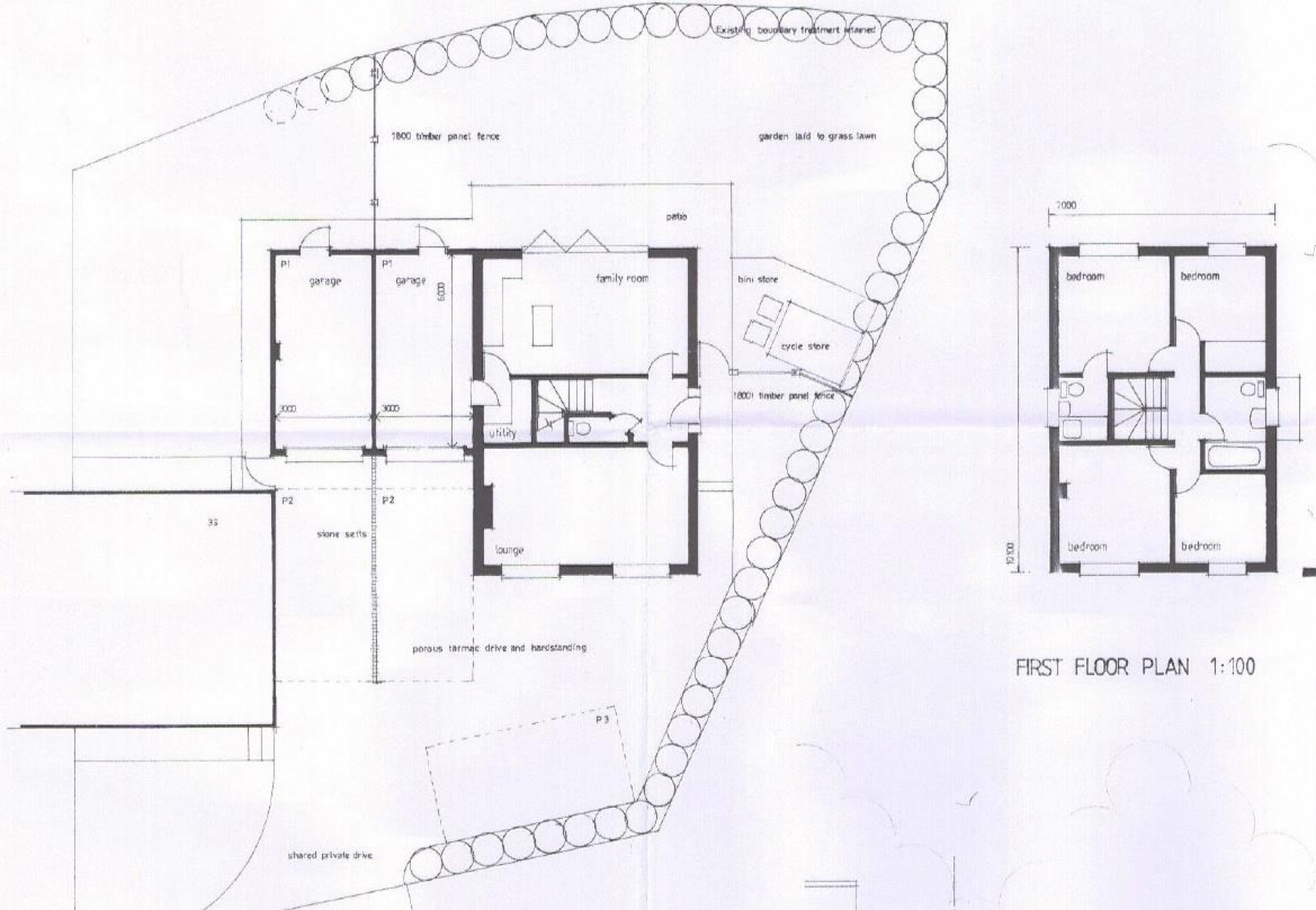
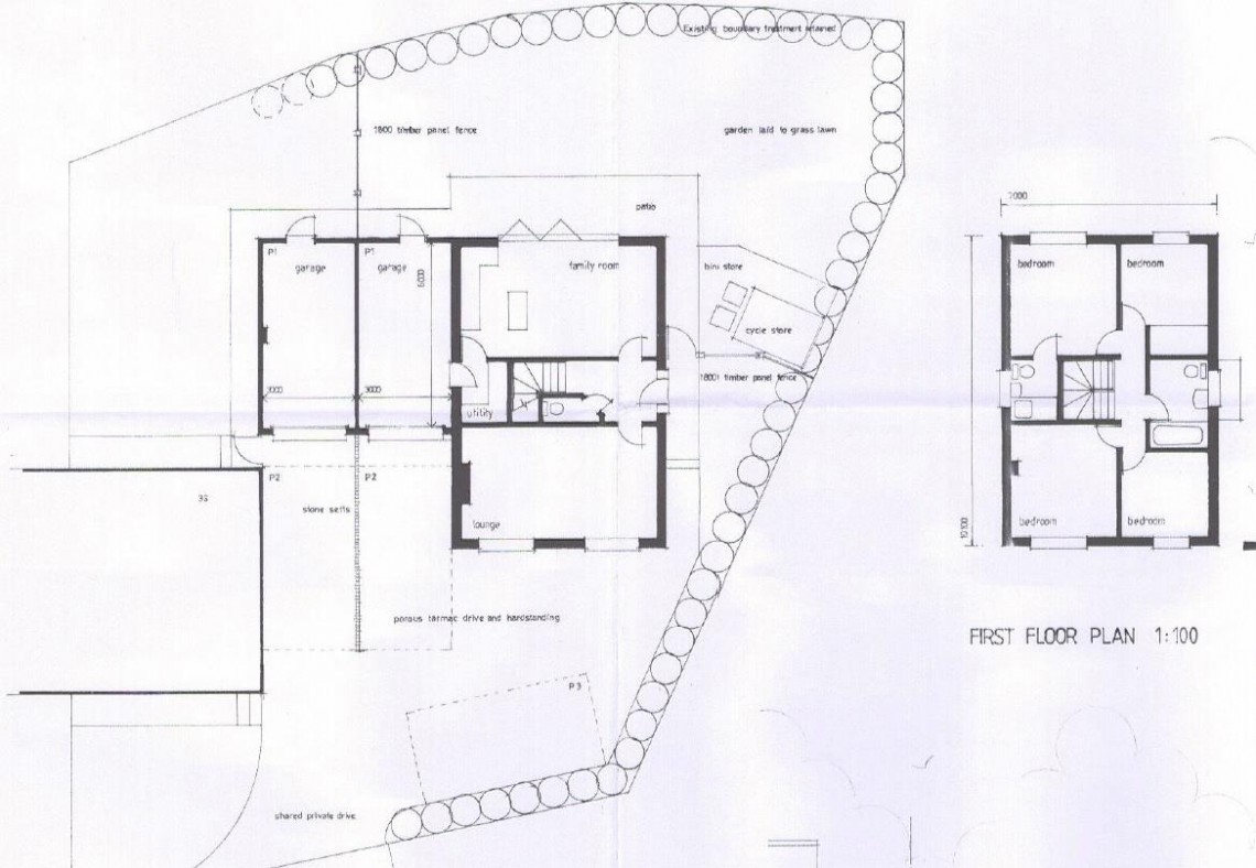
Planning has been granted to erect a detached family home ( 1400 Sq Ft ) arranged over two floors with garage and fine rural views to the rear.

GDV

We understand the completed property has a resale value of £350,000 - £400,000 subject to specifications.

GROUND FLOOR
Entrance Hall
Reception 1
Open plan living space with bi fold doors to rear garden
WC

FIRST FLOOR
Bedroom 1
En Suiter
Bedroom 2
Bedroom 3
Bedroom 4
Family Bathroom

OUTSIDE
Garage
Parking
Bike Store
Front, Rear and Side gardens.

GARAGES
2 x Single Garages to be built - 1 to be retained by the original house ( 33 Parklands )

PLANNING GRANTED

Town and Country Planning Act 1990
NOTIFICATION OF DECISION
Application Type: Full Application Application No: 16/04535/FUL
Address to which the proposal relates: 33 Parklands High Littleton Bristol Bath And North East
Somerset
Description of Proposal: Erection of a dwelling following demolition of the outbuilding.
Application submitted by: Mr Tiley

PLANNING INFORMATION

Full details of the plans and proposals can be downloaded with the online legal pack.

BUYER'S PREMIUM

Please be aware all purchasers are subject to a £1000 + VAT (£1,200 inc VAT) buyer's premium which is ALWAYS payable upon exchange of contracts whether the sale is concluded before, during or after the auction date.

GUIDE PRICE

An indication of the seller's current minimum acceptable price at auction. The guide price or range of guide prices is given to assist consumers in deciding whether or not to pursue a purchase. It is usual, but not always the case, that a provisional reserve range is agreed between the seller and the auctioneer at the start of marketing. As the reserve is not fixed at this stage and can be adjusted by the seller at any time up to the day of the auction in the light of interest shown during the marketing period, a guide price is issued. This guide price can be shown in the form of a minimum and maximum price range within which an acceptable sale price (reserve) would fall, or as a single price figure within 10% of which the minimum acceptable price (reserve) would fall. A guide price is different to a reserve price (see separate definition). Both the guide price and the reserve price can be subject to change up to and including the day of the auction.

RESERVE PRICE

The seller's minimum acceptable price at auction and the figure below which the auctioneer cannot sell. The reserve price is not disclosed and remains confidential between the seller and the auctioneer. Both the guide price and the reserve price can be subject to change up to and including the day of the auction.

PRE AUCTION OFFERS

Some properties may be available to buy prior to the auction.
Pre auction offers can be only submitted by completing the OFFER FORM which can be downloaded with the online legal pack - please email the COMPLETED form to – olly@hollismorgan.co.uk.
Please note offers will not be considered until you have VIEWED the property and the COMPLETE LEGAL PACK has been released.
There will be a note added to the list to confirm AUCTION PACK NOW COMPLETE when no further information is due to be added.
In the event of an offer being accepted the property will only be removed from the auction and viewings stopped once contracts have successfully EXCHANGED subject to the standard auction terms and payment of the buyer’s premium ( £1,200 ) to Hollis Morgan.
Contracts can be signed either via the solicitors or at the Hollis Morgan offices subject to appointment.

SURVEYS AND VALUATIONS

If you would like to arrange a survey or mortgage valuation of this Lot BEFORE the auction please instruct your appointed surveyor to contact Hollis Morgan and we will arrange access for them to inspect the property. Please note that buyers CANNOT attend the surveys and the surveyors are responsible for collecting and returning keys to the Hollis Morgan offices in Clifton.

BIDDING AT THE AUCTION

This property is for sale by public auction and if you intend to bid please bring the following:

Proof of identity (valid passport or photo driving licence).
Proof of address (bank statement, recent utility bill, council tax bill or tenancy agreement).
10% deposit payment.
Buyers premium payment.
Details of your solicitor.

PAYING THE DEPOSIT & BUYERS PREMIUM

We can only accept the following at the auction:

Personal or Company Cheque
Bankers Draft
Debit Card ( NOT CREDIT CARD )

TELEPHONE AND PROXY BIDDING

If you cannot attend the auction (although we strongly advise you do) you can make a TELEPHONE or PROXY BID. This authorises the auctioneer to bid on your behalf up to a pre-set limit. Forms and relevant conditions are available to download with the online legal pack. A completed form, ID and two cheques (one for the 10% deposit and one for the Buyer's Administration Fee of £1,200) are required by the Auction Department at least two full working days before the auction.

AUCTION BUYERS GUIDE VIDEO

We have short video guides for both buying and selling by Public Auction on the Hollis Morgan Website. If you have any further questions regarding the process please don’t hesitate to contact Auction HQ.

WHY HOLLIS MORGAN?

Hollis Morgan regularly hold the largest property auctions across Bristol and the West Country from our iconic Sale Room in Clifton, since we formed in 2010 we have sold the most £££'s of land and property by Public Auction in the region - EVERY YEAR!
Between 2010 and 2017 we have held 45 auctions, offering 1135 lots and raising over £225m for clients across the region
Did you know….Hollis Morgan sold more £££’s of land and property by auction than all the other Bristol Auctioneers combined in 2017 with over £49m of successful sales!

TESTIMONIALS

We are very proud of what our past clients have say about us - please visit the Hollis Morgan website to read their testimonials.

CHARITY OF THE YEAR

Hollis Morgan are supporting Bristol charity based Off the Record! as our 2018 charity of the year with 5% of each buyers premium donated to help provide free and confidential mental health support and information to young people aged 11-25 in Bristol - www.otrbristol.org.uk In 2017 we were delighted to be involved in raising £30,000 over 3 events for the “Life for a cure” Bristol based meningitis charity - www.ryanbresnahan.org Visit the Charity page of our Website for further details - https://www.hollismorgan.co.uk/charity/


Local Information

Schools Stations Healthcare
Floorplan for BUILDING PLOT - PLANNING GRANTED