Sold @ Auction £300,000

Masters Church Site, Park Road, Kingswood, BS15 1QU

Bedrooms 29 Bathrooms 22 Reception 22

  • FOR SALE BY PUBLIC AUCTION
  • WEDNESDAY 11th APRIL
  • ALL SAINTS CHURCH, CLIFTON, BS8 2HY
  • WEEKLY SET VIEWINGS
  • DOWNLOAD ONLINE LEGAL PACKS
  • 2 ACRE DEVELOPMENT SITE
  • CONVERSION OF CHURCH - 19 FLATS
  • 3 NEW BUILD HOUSES
  • PLUS PARKLAND & TABERNACLE
  • REQUIRES PLANNING

FOR SALE BY AUCTION

*** SOLD PRIOR TO AUCTION ***

GUIDE £225,000 +++
SOLD PRIOR @ £300,000

LOT NUMBER 31
Wednesday 11th April 2018
All Saints Church Pembroke Road, Clifton, Bristol BS8 2HY
Legal packs will be available for inspection from 18:00.
The sale will begin promptly at 19:00

THE PROPERTIES

A Freehold 2 acre site with access from Park Road and Regent Street with four main elements.

Masters Church (Grade II listed - 1851)
Graveyard
New Build Site

Adjoining Properties ( Not included )

Chapel House - Sold in 2015 and now refurbished and in private ownership
Tabernacle - Transferred to local charity The Whitfield Tabernacle Trust.

LOCATION

The Site occupies a secluded position close to the bustling Kingswood High Street. Local amenities and services including convenience stores, pubs, bars and cafes are all within walking distance .Located just four miles east of Central Bristol, High Street, Kingswood, is conveniently situated on the A420 which is a major route leading out of the city centre and also provides direct access to the Avon Ring Road and in turn to the M32, M4 and M5 motorway networks.

THE OPPORTUNITY

Planning has been previously sought but it has yet to be decided and the site is sold without the benefit of granted planning permission but with the huge potential for the following scheme.

MASTERS CHURCH
Planning sought for 19 Duplex Apartments with parking.

NEW BUILD SITE
Planning sought for a terrace of 3 x 3 Bedroom houses with parking and gardens.

GRAVEYARD
Planning sought to redesign into open parkland and parking for associated buildings.

PLANNING - AWAITING DECISION

Reference PK16/4840/F
Alternative Reference PP-05422269
Application Received Fri 19 Aug 2016
Application Validated Thu 15 Sep 2016
Address Masters Church Park Road Kingswood Bristol South Gloucestershire BS15 1QU
Proposal Change of use of the former Masters Church to 19no. apartments with access, parking and associated works.
Status Awaiting decision
Appeal Status Unknown
Appeal Decision Not Available

PLANNING INFO

Full details of the proposed plans can be downloaded with the online legal pack.

CHURCH - DEVELOPMENT SCHEDULE

GROUND FLOOR

Apartment 1
2 bed / 76sq m

Apartment 2
1 bed / 66.3sq m

Apartment 3
1 bed / 55.1sq m

Apartment 4
1 bed duplex / 42.3sq m

Apartment 5
1 bed duplex / 48.4sq m

Apartment 6
1 bed duplex / 48.5sq m

Apartment 7
1 bed duplex / 48.5sq m

Apartment 8
1 bed duplex / 50.9sq m

FIRST FLOOR

Apartment 9
1 bed duplex / 66.7sq m

Apartment 10
1 bed duplex / 47.2sq m

Apartment 11
1 bed duplex / 47.6sq m

Apartment 12
1 bed duplex / 48sq m

Apartment 13
1 bed / 55.1sq m

SECOND FLOOR

Apartment 14
1 bed / 44.1sq m

Apartment 15
1 bed duplex / 89sq m

Apartment 16
1 bed duplex / 61sq m

Apartment 17
1 bed duplex / 60.9sq m

Apartment 18
1 bed duplex / 60.7sq m

Apartment 19
1 bed duplex / 87.6sq m

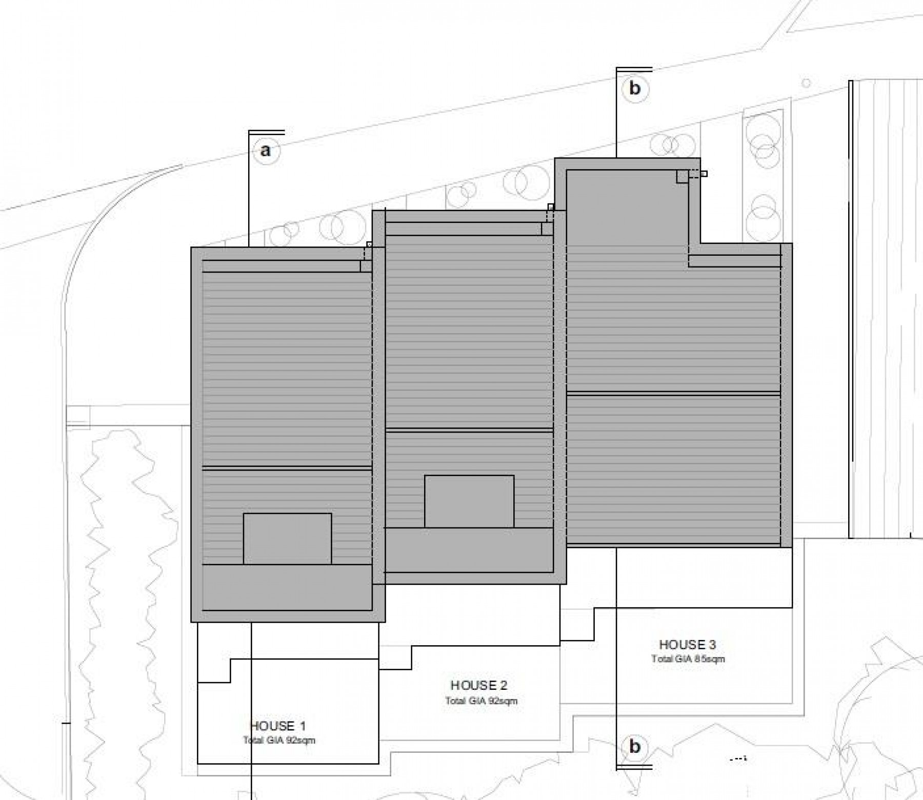
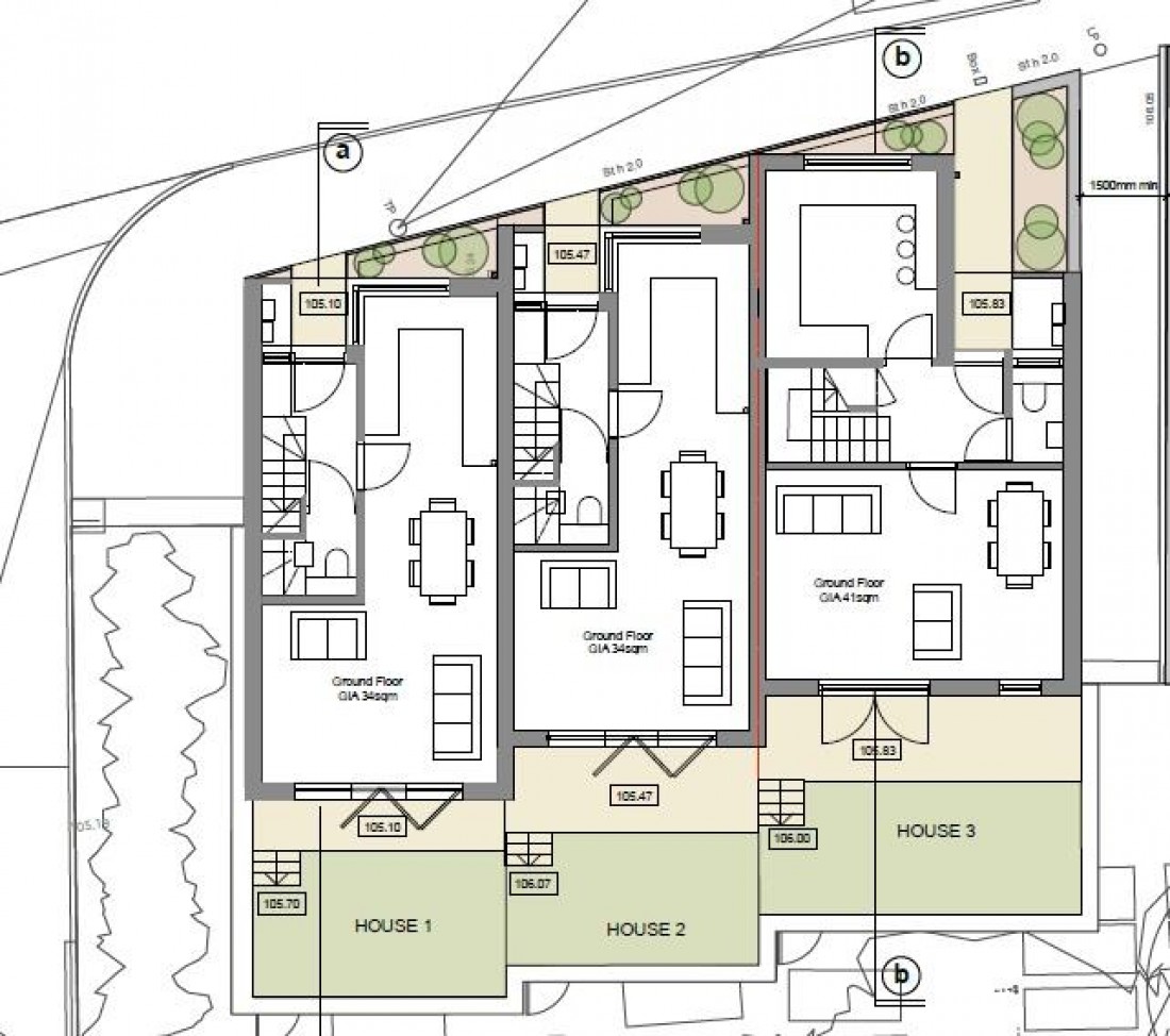
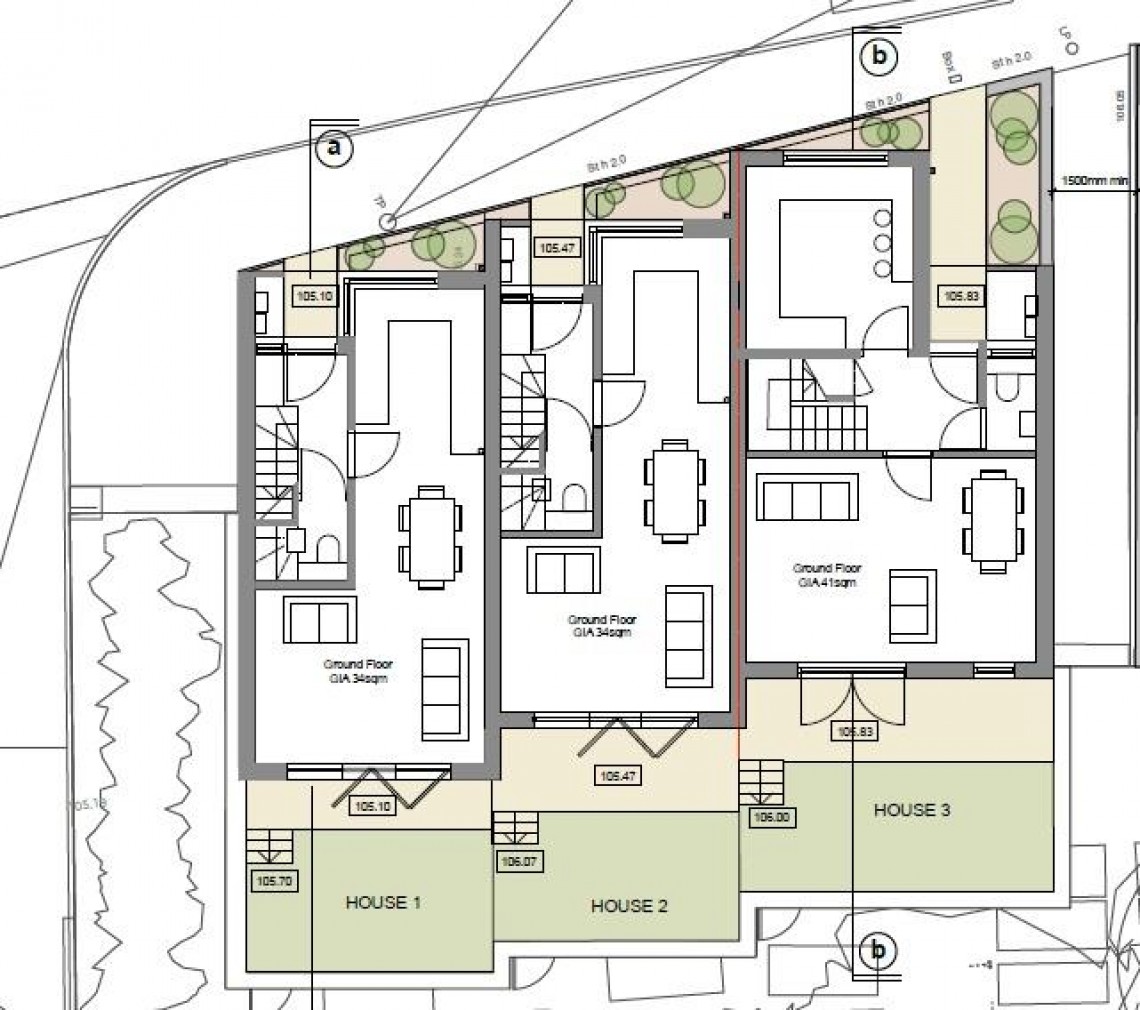
NEW BUILD - DEVELOPMENT SCHEDULE

HOUSE 1
Ground Floor ( 34 Sq M ) Open Plan Living onto Garden + WC
First Floor ( 36.5 Sq M ) Bedroom 2, Bedroom 3, Bathroom
Top Floor ( 21.5 Sq M ) Bedroom, 1 En Suite
Off Street Parking
Total 92 Sq M

HOUSE 2
Ground Floor ( 34 Sq M ) Open Plan Living onto Garden + WC
First Floor ( 36.5 Sq M ) Bedroom 2, Bedroom 3, Bathroom
Top Floor ( 21.5 Sq M ) Bedroom, 1 En Suite
Off Street Parking
Total 92 Sq M

HOUSE 3
Ground Floor ( 41 Sq M ) Kitchen, Reception onto Garden + WC
First Floor ( 44 Sq M ) Bedroom 1, En suite, Bedroom 2, Bedroom 3, Bathroom
Off Street Parking
Total 85 Sq M

SITE HISTORY

The Whitfield Tabernacle was erected in 1741 at the request of George Whitfield who donated money for the project when he left to preach in America. Whitfield was a contemporary of Charles and John Wesley at Oxford and together with John Cennick of Bristol were largely responsible for establishing Methodism as a separate church of which Wesleyan Methodism was the largest element. Meetings at The Tabernacle became so popular that the building was extended in 1802, and 1851, and in 1851 a new larger church - The Masters Church designed by Henry Masters, a local builder and architect, was erected in 1851 on the west side of the site.


Local Information

Schools Stations Healthcare
Floorplan for 2 ACRE PLOT - SCOPE FOR 23 HOUSES / FLATS Floorplan for 2 ACRE PLOT - SCOPE FOR 23 HOUSES / FLATS Floorplan for 2 ACRE PLOT - SCOPE FOR 23 HOUSES / FLATS Floorplan for 2 ACRE PLOT - SCOPE FOR 23 HOUSES / FLATS Floorplan for 2 ACRE PLOT - SCOPE FOR 23 HOUSES / FLATS Floorplan for 2 ACRE PLOT - SCOPE FOR 23 HOUSES / FLATS Floorplan for 2 ACRE PLOT - SCOPE FOR 23 HOUSES / FLATS Floorplan for 2 ACRE PLOT - SCOPE FOR 23 HOUSES / FLATS Floorplan for 2 ACRE PLOT - SCOPE FOR 23 HOUSES / FLATS Floorplan for 2 ACRE PLOT - SCOPE FOR 23 HOUSES / FLATS Floorplan for 2 ACRE PLOT - SCOPE FOR 23 HOUSES / FLATS