Lot 24

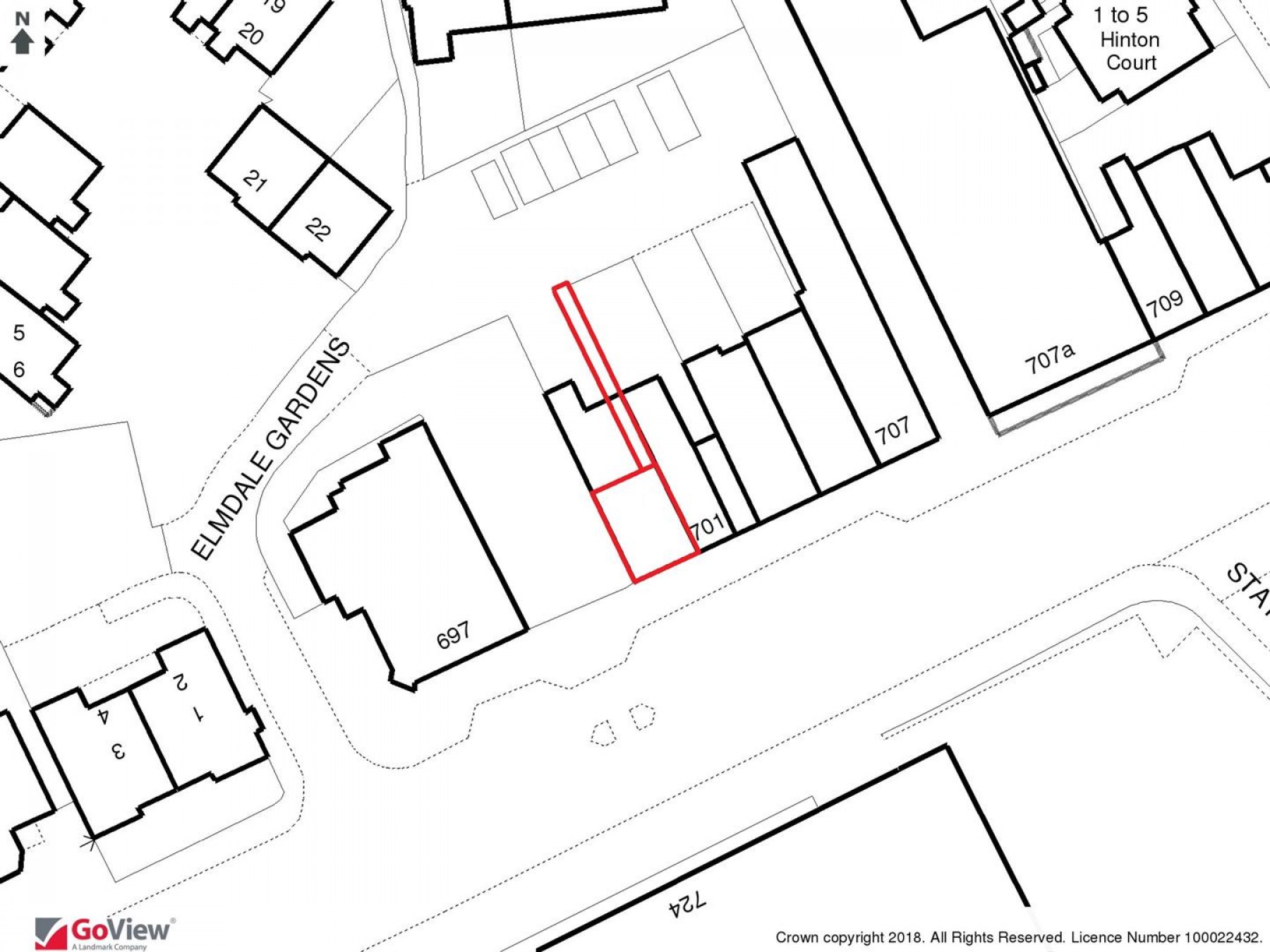
699 A Fishponds Road, Fishponds, BS16 3UH

Sold @ Auction £125,000 +++

Bedrooms 2 Bathrooms 1 Reception 1

  • FOR SALE BY PUBLIC AUCTION
  • WEDNESDAY 11th APRIL
  • ALL SAINTS CHURCH, CLIFTON, BS8 2HY
  • WEEKLY SET VIEWINGS
  • DOWNLOAD ONLINE LEGAL PACKS
  • APRIL 2018
  • PRIVATE ENTRANCE
  • LET FOR £750 PCM
  • VACANT FROM DECEMBER 2018
  • EXCELLENT HOME / INVESTMENT

FOR SALE BY AUCTION

*** SOLD @ APRIL AUCTION ***

GUIDE £115,000 +++
SOLD @ £125,000

LOT NUMBER 24
Wednesday 11th April 2018
All Saints Church Pembroke Road, Clifton, Bristol BS8 2HY
Legal packs will be available for inspection from 18:00.
The sale will begin promptly at 19:00

SOLICITORS

Ed Pitt
TLT LLP
D: +44 (0)333 006 0824
F: +44 (0)333 006 1484
Edward.Pitt@TLTsolicitors.com
www.TLTsolicitors.com

ONLINE LEGAL PACKS

Digital Copies of the Online legal pack can be downloaded Free of Charge.
Please visit the Hollis Morgan Website and select the chosen lot from our Current Auction List.
Follow the RED link to "Download Legal Packs" For the first visit you will be required to register simply with your email and a password.
Having set up your account you can download legal packs or if they are not yet available they will automatically be sent to you when we receive them.
You will be automatically updated by email if any new information is added.
*** STAY UPDATED *** By registering for the legal pack we can ensure you are kept updated on any changes to this Lot in the build up to the sale.

THE PROPERTY

A spacious leasehold ( 999 years ) maisonette ( 815 Sq Ft ) with private entrance at the rear of the property leading to bright and airy accommodation in good decorative order.
Sold subject to existing tenancy agreements.

LOCATION

The property occupies a prime location on this busy and popular High Street location with independent retailers, pubs, bars, cafes and convenience stores.
The M32 Motorway is nearby and provides direct routes in and out of Bristol and the City Centre is approximately two miles away.

THE OPPORTUNITY

INVESTMENT / HOME

The property is let for £9,000 pa ( £750 pcm ) on an AST agreement expiring 1/11/2018

Alternatively the property would make an excellent home in this sought after location once the tenancy agreement has expired.

RENTAL APPRAISAL

About this property:

If this flat were presented to the market in a good condition we would expect to achieve a rental income of £795pcm.

Next steps:

If you would like further information on our services or on this or any other property please contact us at our Bristol office on 01179 55 18 17 or via email at enquiries@piperproperty.co.uk. Alternatively please visit our website www.piperproperty.co.uk for information on our office locations, services and to find out how we do things differently.

EPC

For full details of the EPC please refer to the online legal pack.

BUYER'S PREMIUM

Please be aware all purchasers are subject to a £1000 + VAT (£1,200 inc VAT) buyer's premium which is ALWAYS payable upon exchange of contracts whether the sale is concluded before, during or after the auction date.

GUIDE PRICE

An indication of the seller's current minimum acceptable price at auction. The guide price or range of guide prices is given to assist consumers in deciding whether or not to pursue a purchase. It is usual, but not always the case, that a provisional reserve range is agreed between the seller and the auctioneer at the start of marketing. As the reserve is not fixed at this stage and can be adjusted by the seller at any time up to the day of the auction in the light of interest shown during the marketing period, a guide price is issued. This guide price can be shown in the form of a minimum and maximum price range within which an acceptable sale price (reserve) would fall, or as a single price figure within 10% of which the minimum acceptable price (reserve) would fall. A guide price is different to a reserve price (see separate definition). Both the guide price and the reserve price can be subject to change up to and including the day of the auction.

RESERVE PRICE

The seller's minimum acceptable price at auction and the figure below which the auctioneer cannot sell. The reserve price is not disclosed and remains confidential between the seller and the auctioneer. Both the guide price and the reserve price can be subject to change up to and including the day of the auction.

PRE AUCTION OFFERS

Some properties may be available to buy prior to the auction.
Pre auction offers can be only submitted by completing the OFFER FORM which can be downloaded with the online legal pack - please email the COMPLETED form to – olly@hollismorgan.co.uk.
Please note offers will not be considered until you have VIEWED the property and the COMPLETE LEGAL PACK has been released.
In the event of an offer being accepted the property will only be removed from the auction and viewings stopped once contracts have successfully EXCHANGED subject to the standard auction terms and payment of the buyer’s premium ( £1,200 ) to Hollis Morgan.
Contracts can be signed either via the solicitors or at the Hollis Morgan offices subject to appointment.

SURVEYS AND VALUATIONS

If you would like to arrange a survey or mortgage valuation of this Lot BEFORE the auction please instruct your appointed surveyor to contact Hollis Morgan and we will arrange access for them to inspect the property. Please note that buyers CANNOT attend the surveys and the surveyors are responsible for collecting and returning keys to the Hollis Morgan offices in Clifton.

BIDDING AT THE AUCTION

This property is for sale by public auction and if you intend to bid please bring the following:

Proof of identity (valid passport or photo driving licence).
Proof of address (bank statement, recent utility bill, council tax bill or tenancy agreement).
10% deposit payment.
Buyers premium payment.
Details of your solicitor.

PAYING THE DEPOSIT & BUYERS PREMIUM

We can only accept the following at the auction:

Personal or Company Cheque
Bankers Draft
Debit Card ( NOT CREDIT CARD )

TELEPHONE AND PROXY BIDDING

If you cannot attend the auction (although we strongly advise you do) you can make a TELEPHONE or PROXY BID. This authorises the auctioneer to bid on your behalf up to a pre-set limit. Forms and relevant conditions are available to download with the online legal pack. A completed form, ID and two cheques (one for the 10% deposit and one for the Buyer's Administration Fee of £1,200) are required by the Auction Department at least two full working days before the auction.

AUCTION BUYERS GUIDE VIDEO

We have short video guides for both buying and selling by Public Auction on the Hollis Morgan Website. If you have any further questions regarding the process please don’t hesitate to contact Auction HQ.

TESTIMONIALS

We are very proud of what our past clients have say about us - please visit the Hollis Morgan website to read their testimonials.

CHARITY OF THE YEAR

Hollis Morgan are supporting Bristol charity based Off the Record! as our 2018 charity of the year with 5% of each buyers premium donated to help provide free and confidential mental health support and information to young people aged 11-25 in Bristol - www.otrbristol.org.uk In 2017 we were delighted to be involved in raising £30,000 over 3 events for the “Life for a cure” Bristol based meningitis charity - www.ryanbresnahan.org Visit the Charity page of our Website for further details - https://www.hollismorgan.co.uk/charity/


Local Information

Schools Stations Healthcare
Floorplan for MAISONETTE - INVESTMENT / HOME Floorplan for MAISONETTE - INVESTMENT / HOME