Sold @ Auction £335,000

Land to Rear of 58, Grimsbury Road, Kingswood, BS15 9SD

Bedrooms 9 Bathrooms 6 Reception 3

  • PARCEL OF LAND
  • PLANNING GRANTED
  • 3 X 3 BED DETACHED HOUSES
  • GDV £975,000
  • SITE READY TO GO

FOR SALE BY AUCTION

*** SOLD POST AUCTION ***

GUIDE PRICE £300K +++
SOLD POST AUCTION £335K

LOT NUMBER 21
Wednesday 21st February 2018
All Saints Church Pembroke Road, Clifton, Bristol BS8 2HY
Legal packs will be available for inspection from 18:00.
The sale will begin promptly at 19:00

THE LAND

A Freehold parcel of land accessed from Grimsbury Road.

LOCATION

Located within the popular suburb of Kingswood. Local amenities and services including convenience stores and local retailers are all within walking distance. Bristol City Centre is approximately five miles away.

THE OPPORTUNITY

Planning has been granted to erect 3 Detached executive homes with gardens and garages.
We understand the resale value of each unit is in the region of £325,000
GDV £975,000

PLANNING GRANTED

NOTICE OF DECISION
South Gloucestershire Council in pursuance of powers under the above mentioned Act hereby PERMIT:
DESCRIPTION OF DEVELOPMENT: Erection of 3 no detached dwellings with access and associated works.
APP REF: PK16/4380/F
DATE VALID: 9th August 2016
DECISION DATE: 6th November 2017

PLANNING INFORMATION

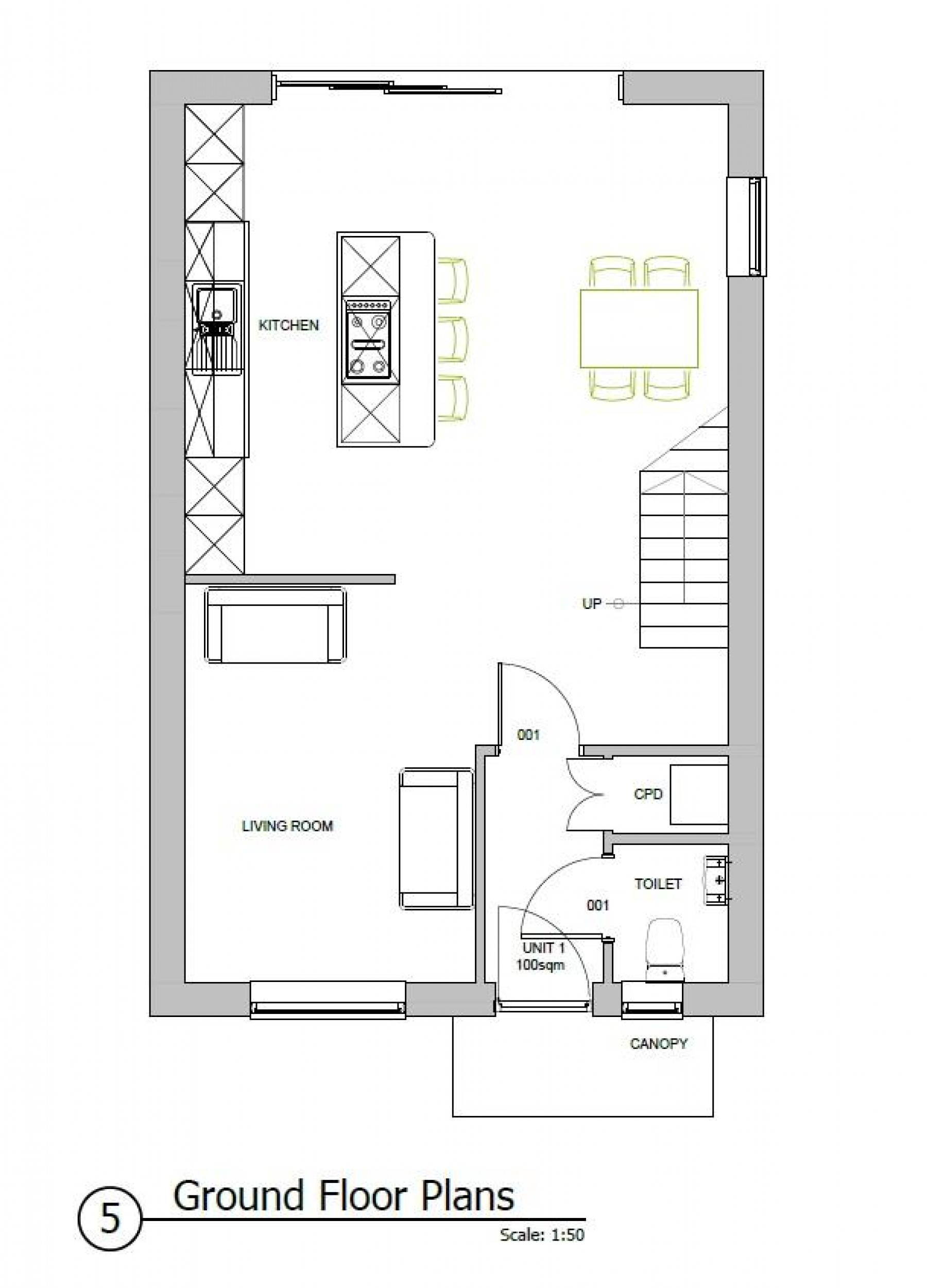
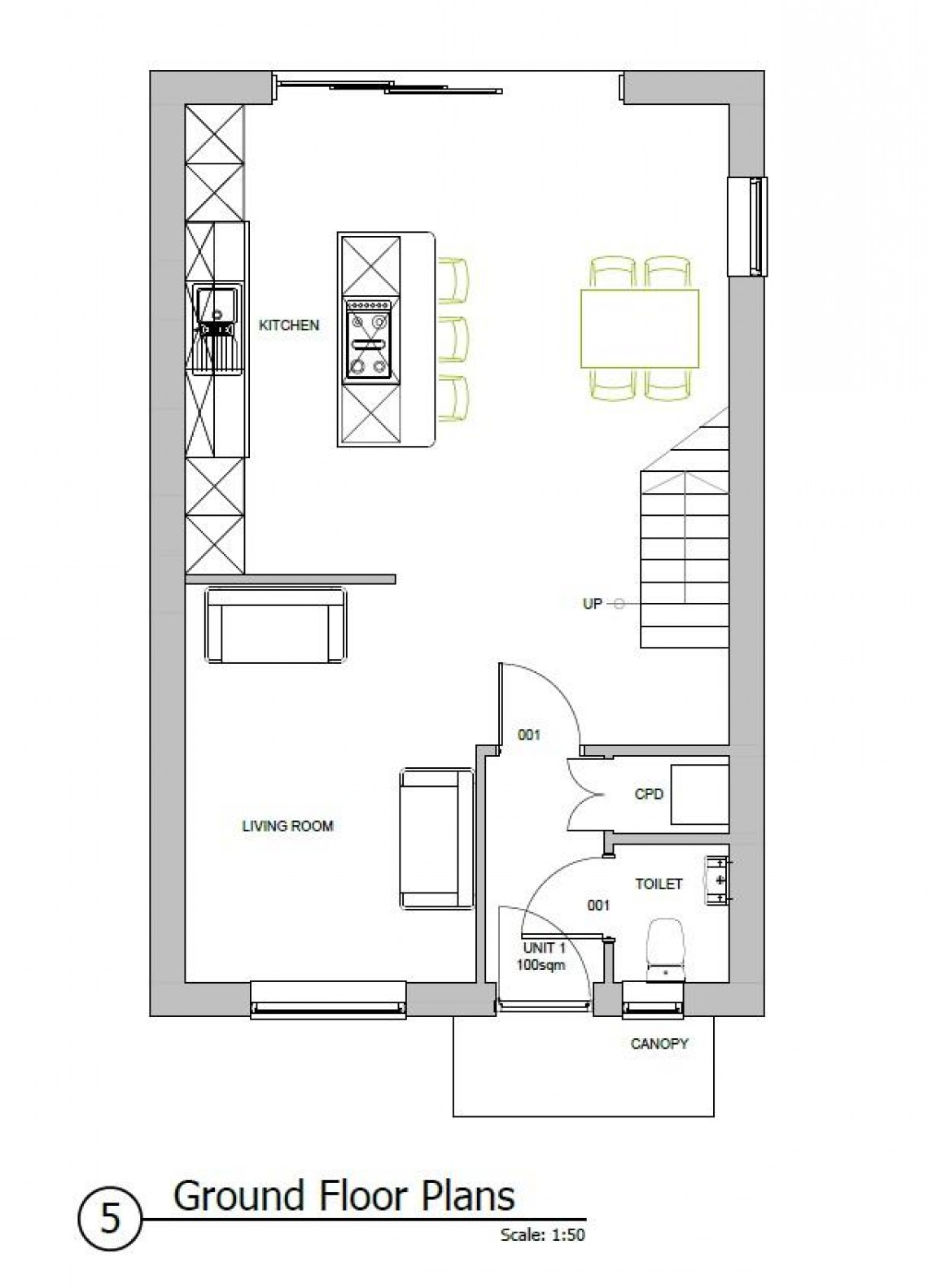
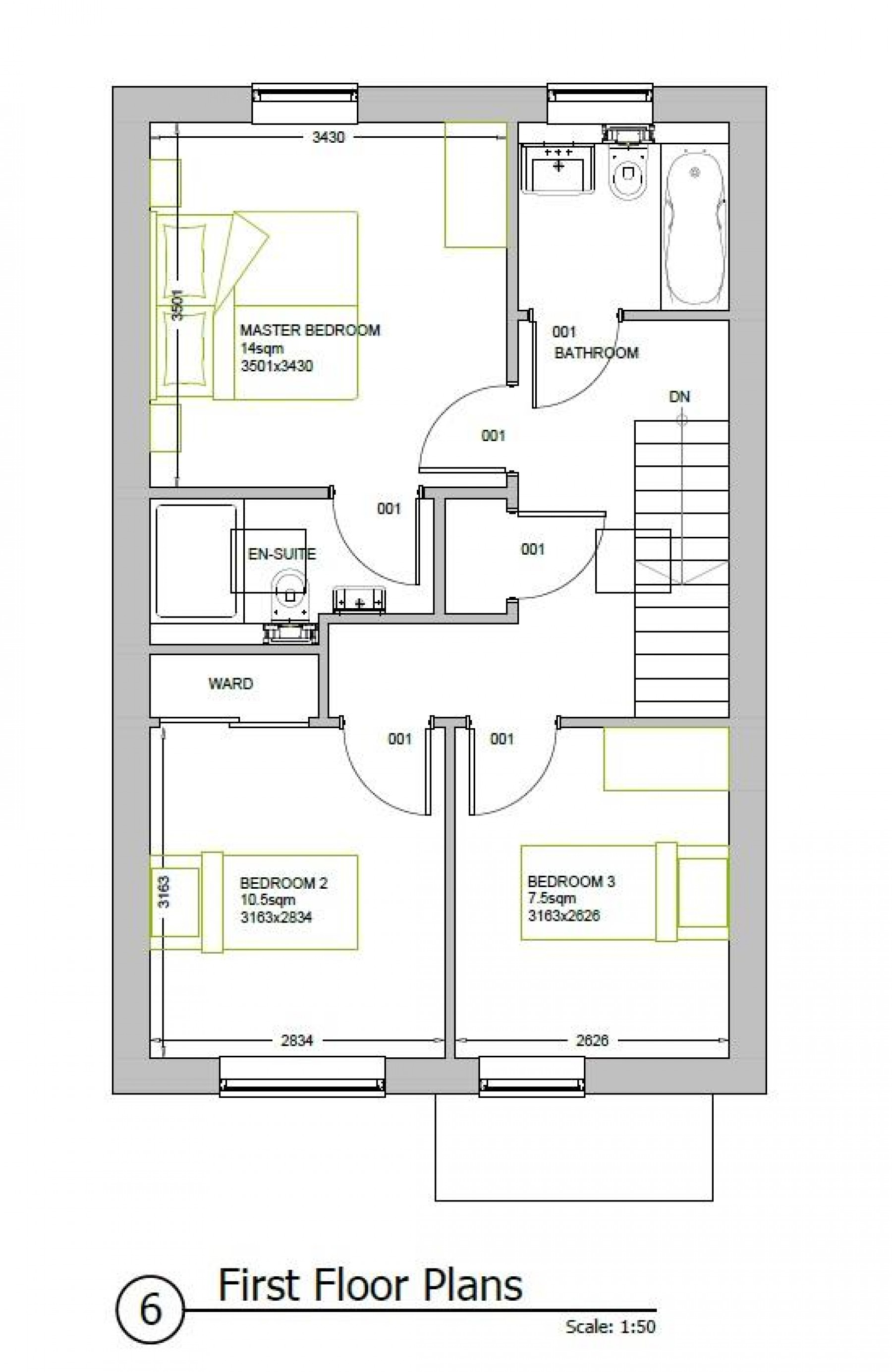
Full details of the planning granted and proposed elevations, floorplans etc can be downloaded with the online legal pack.

RENTAL APPRAISAL

About this property:

Each of the houses once developed and presented to the rental market to a high standard would achieve a rental income of £1150 - £1200pcm.
If the room marked as the lounge in the floorplan were to be separated from the rest of the living area/kitchen the property could be let to sharers (subject to the necessary consents) in which case we would expect to achieve a rental income of between £1,850 and £1,950 (with bills being included in the rent).

Next steps:

If you would like further information on our services or on this or any other property please contact us at our Bristol office on 01179 55 18 17 or via email at enquiries@piperproperty.co.uk. Alternatively please visit our website www.piperproperty.co.uk for information on our office locations, services and to find out how we do things differently.


Local Information

Schools Stations Healthcare
Floorplan for PLANNING GRANTED - 3 X 3 BED HOUSES Floorplan for PLANNING GRANTED - 3 X 3 BED HOUSES Floorplan for PLANNING GRANTED - 3 X 3 BED HOUSES Floorplan for PLANNING GRANTED - 3 X 3 BED HOUSES