Sold @ Auction £340,000

Plot Adjacent to, Mill End House, Patch Elm Lane, Rangeworthy, BS37 7LT

Bedrooms 4 Bathrooms 2 Reception 2

  • PARCEL OF LAND
  • PLANNING GRANTED
  • 4 BED DETACHED HOUSE
  • RURAL VIEWS
  • SCOPE FOR HIGHER DENSITY

FOR SALE BY AUCTION

*** SOLD @ HOLLIS MORGAN FEBRUARY AUCTION ***

GUIDE £250,000 +++
SOLD @ £340,000

LOT NUMBER 32
Wednesday 21st February 2018
All Saints Church Pembroke Road, Clifton, Bristol BS8 2HY
Legal packs will be available for inspection from 18:00.
The sale will begin promptly at 19:00

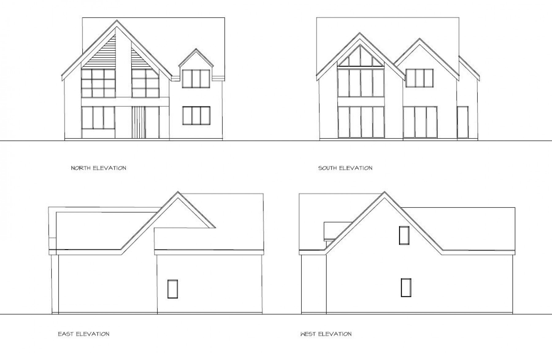
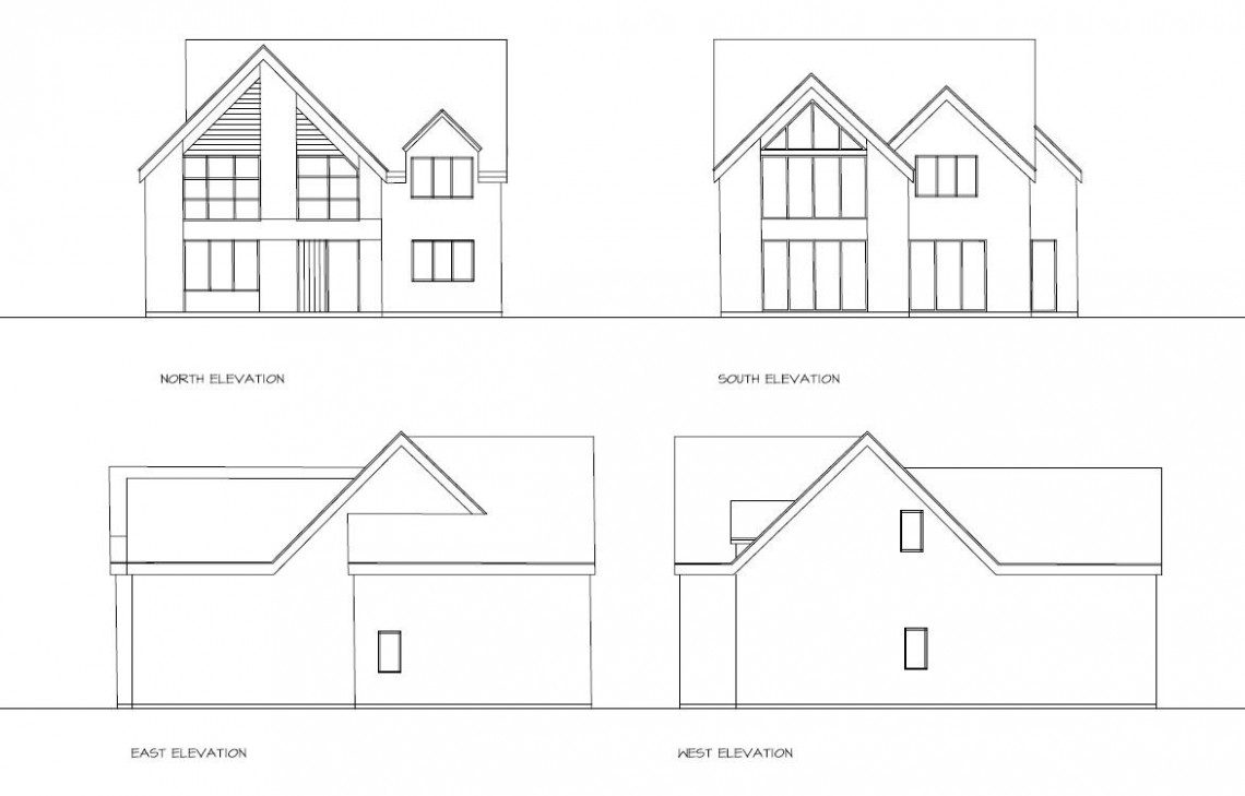
THE LAND

A Freehold parcel of land accessed via a quiet country lane with rural views.

LOCATION

The land is set in semi-rural location in the village of Rangeworthy, convenient to the town centres of Yate, Thornbury and Wotton-under-Edge. Rangeworthy itself offers a village shop, post office, primary school and restaurant with a comprehensive range of amenities, facilities and schooling available in the larger towns. The site is convenient to the motorway network, with junction 14 of the M5 and junction 18 of the M4 both being within 10 miles. Bristol city centre and the intercity Railway station at Parkway are also readily accessible.

THE OPPORTUNITY

PLANNING GRANTED

Planning granted to erect a detached four bedroom family home with fine rural views in this sought after semi rural location close to the City.

HIGHER DENSITY SCHEME

Given the size of the plot there may be scope to achieve a higher density scheme on the site subject to gaining the necessary consents.

PLANNING GRANTED

REF: PT17/2222/O
DATE VALID: 7th June 2017
DECISION DATE: 18th September 2017
NOTICE OF DECISION - South Gloucestershire Council in pursuance of powers under the above mentioned Act
hereby PERMIT:
APPLICATION NO: PT17/2222/O
DESCRIPTION OF DEVELOPMENT: Demolition of existing storage shed. Erection of 1 no. new dwelling with garage (outline) with access, appearance, layout and scale to be determined, all other matters reserved.
LOCATION: Land To West Of Mill End House Patch Elm Lane, Rangeworthy Bristol South Gloucestershire

PLANNING INFORMATION

Full details of the planing decision and proposed plans can be downloaded with the online legal pack.


Local Information

Schools Stations Healthcare
Floorplan for PLANNING GRANTED - DETACHED HOUSE Floorplan for PLANNING GRANTED - DETACHED HOUSE