SOLD, £85,000

Plot to Rear of 30, Gerrard Close, Filwood Park, BS4 1UH

Bedrooms 2 Bathrooms 2 Reception 2

  • FREEHOLD BUILDING PLOT
  • PLANNING GRANTED
  • 2 BEDROOM END OF TERRACE
  • GARDENS AND PARKING
  • SITE READY TO GO

FOR SALE BY AUCTION

*** SOLD PRIOR TO AUCTION ***

GUIDE PRICE £55,000 +++
SOLD PRIOR £85,000

LOT NUMBER 5
Wednesday 21st February 2018
All Saints Church Pembroke Road, Clifton, Bristol BS8 2HY
Legal packs will be available for inspection from 18:00.
The sale will begin promptly at 19:00

THE LAND

A Freehold triangular parcel of land - formerly gardens to 30 Gerrard Close positioned at the end of a quiet cul de sac.

LOCATION

Gerrard Close is located within the popular suburb of Filwood Park. Local amenities and services including convenience stores, pubs and cafes are all within close proximity. Bristol City Centre is approximately four miles away.

THE OPPORTUNITY

PLANNING GRANTED

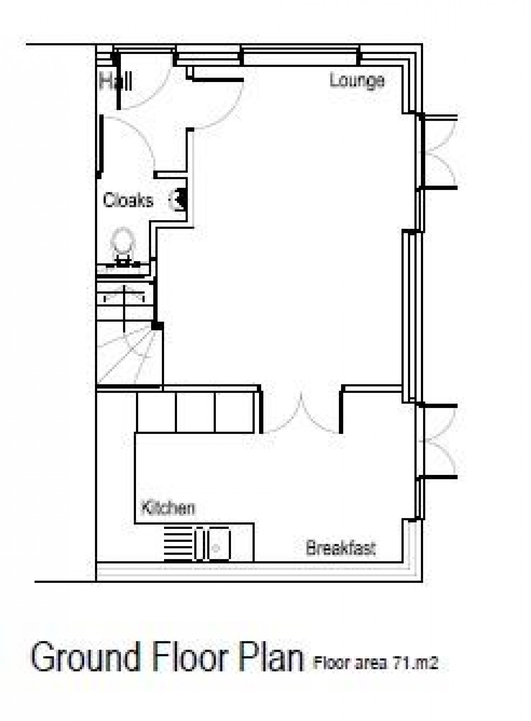
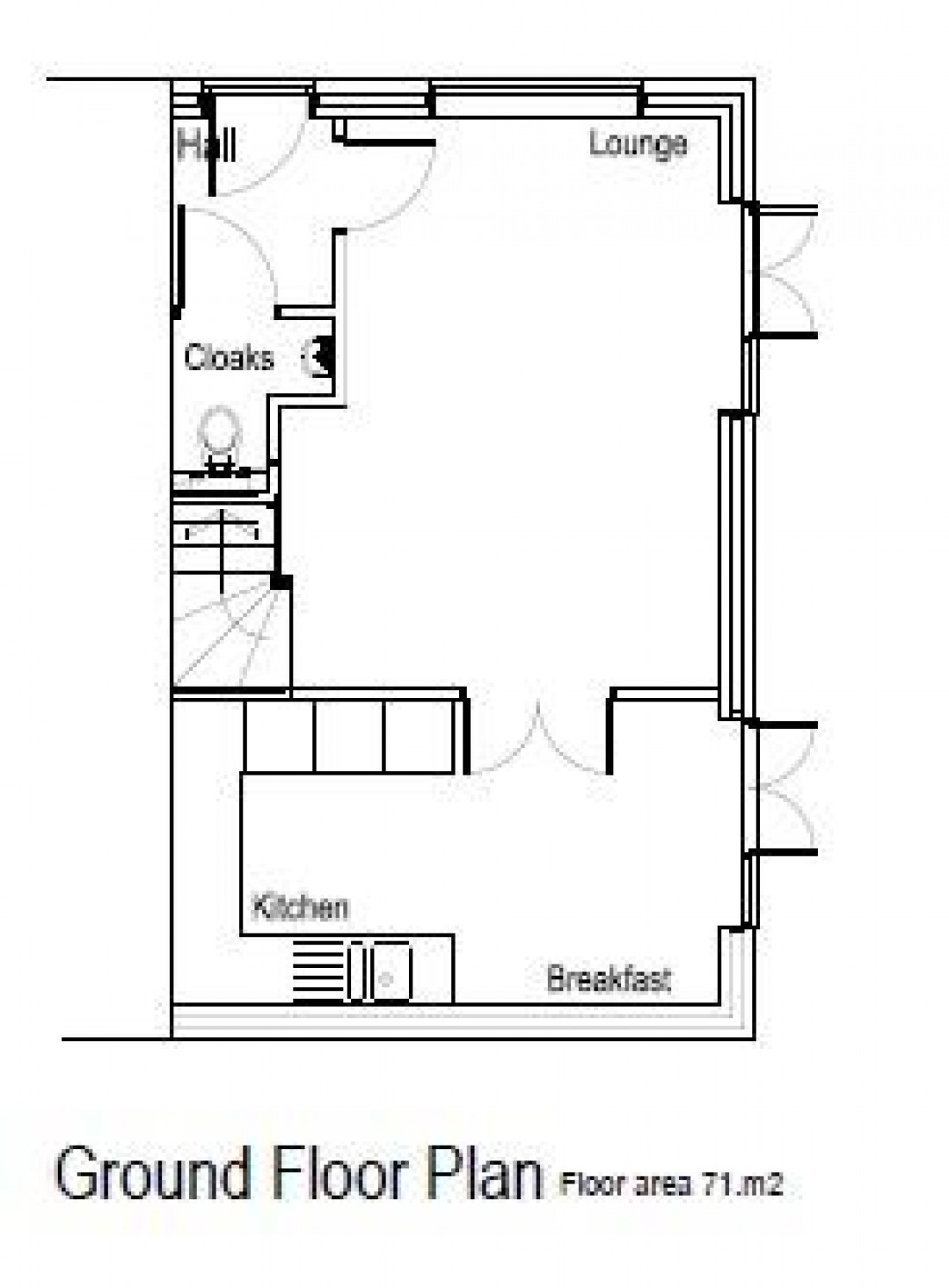
Planning has been granted to erect an end of terrace two bedroom house ( 770 Sq Ft ) with GARDEN and PARKING. with parking and gardens.

PLANNING GRANTED

Decision : GRANTED subject to condition(s)
Application no: 17/01423/F
Type of application: Full Planning
Site address: 30 Gerrard Close, Bristol, BS4 1UH
Description of development: Erection of two storey 2 bed house
Applicant: Mr Andy Tooze
Agent: David Cahill Design
Committee/delegation date: 18.05.17
Date of Notice: 18.05.17

PLANNING INFORMATION

Full details of the plans, proposed elevations and decision notice can be downloaded with the online legal pack.

RENTAL APPRAISAL

What rent can we achieve for you?

The Bristol Residential Letting Co. are confident this property would make a good rental investment. Josh Box of The Bristol Residential Letting Co suggests a rent in the region of:
2 Bedroom house - £850-900pcm

If you would like to discuss more detail on the potential for rental, you can call me (0117 370 8818) or email (josh@bristolreslet.com) for a no obligation discussion. Alternatively why not drop into my Office (222 North Street, Southville, BS3 1JD) where I am always happy to advise investors on maximising their investment.

EPC

For full details of the EPC please refer to the online legal pack.


Local Information

Schools Stations Healthcare
Floorplan for PLANNING GRANTED - 2 BED HOUSE Floorplan for PLANNING GRANTED - 2 BED HOUSE