Sold @ Auction £122,000

Land Adjacent to, 222, Ashton Drive, Ashton, BS3 2QA

Bedrooms 3 Bathrooms 1 Reception 1

  • FREEHOLD BUILDING PLOT
  • PLANNING GRANTED
  • OPEN PLAN LIVING SPACE
  • 3 BEDROOMS
  • ENCLOSED REAR GARDEN

FOR SALE BY AUCTION

*** SOLD @ NOVEMBER AUCTION – 95% SUCCESS RATE AND OVER £10M OF LAND AND PROPERTY SOLD ***

GUIDE £99,000 +++
SOLD @ £122,000

LOT NUMBER 12
Wednesday 29th November 2017
All Saints Church Pembroke Road, Clifton, Bristol BS8 2HY
Legal packs will be available for inspection from 18:00.
The sale will begin promptly at 19:00

THE LAND

A Freehold corner Plot in this popular cul de sac location.

LOCATION

Ashton Drive is located just off Winterstoke Road within the popular suburb of Ashton. Local amenities and services are all within close proximity including a Salnsbury's supermarket. Bristol City Centre is approximately three miles away.

THE OPPORTUNITY

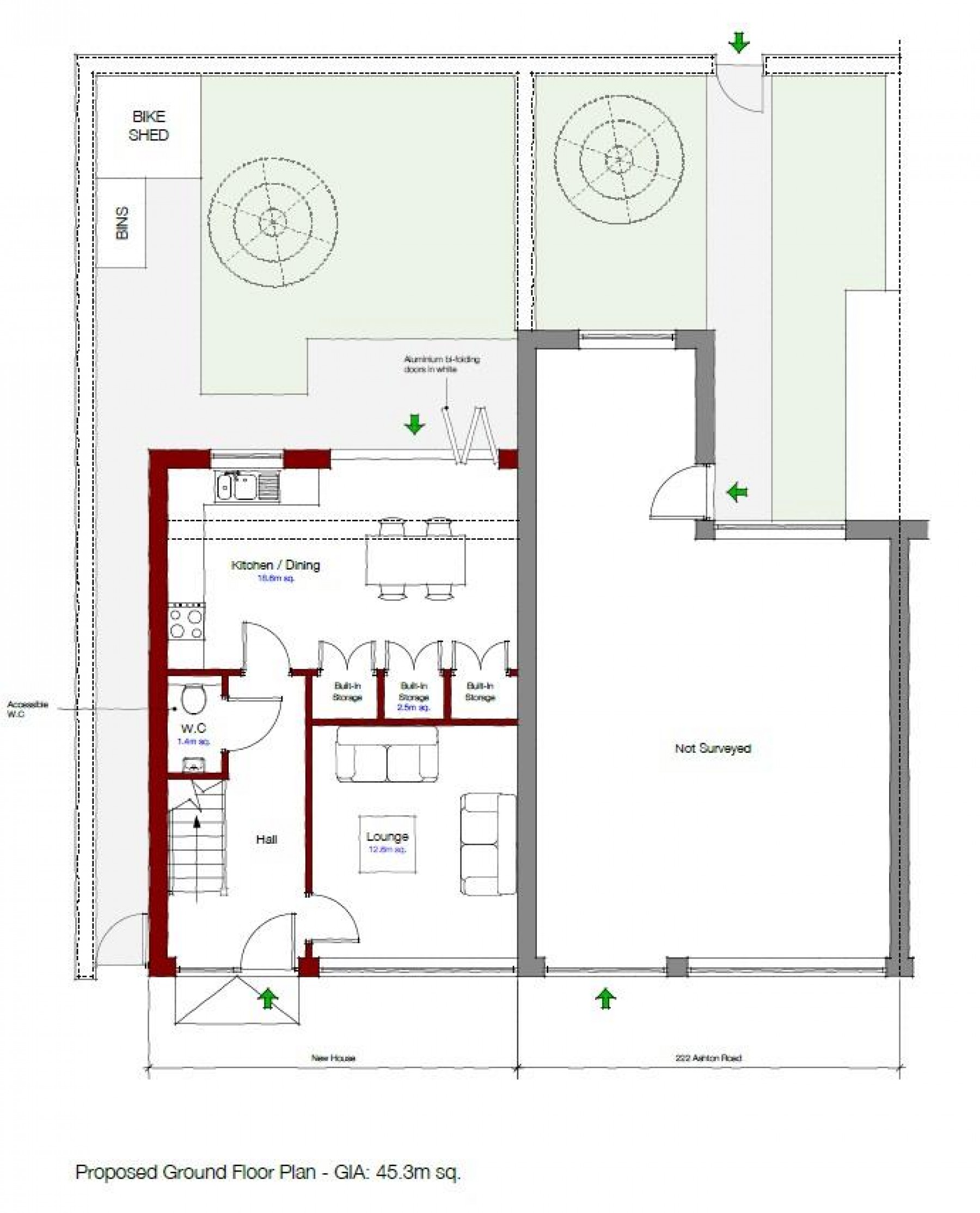
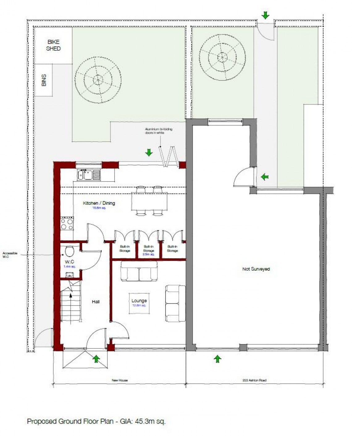
Planning has been Granted to erect a semi detached 3 bedroom property on the corner plot with enclosed rear garden and two parking spaces.

GROUND FLOOR
Entrance Hall
Reception 1
Open Plan Kitchen / Diner

FIRST FLOOR
Bedroom 1
Bedroom 2
Bedroom 3
Bathroom

OUTSIDE
Enclosed Rear garden
Front Garden - Planning includes two parking spaces

PLANNING GRANTED

Decision : GRANTED subject to condition(s)
Application no: 17/04644/F
Type of application: Full Planning
Site address: 222 Ashton Drive, Bristol, BS3 2QA.
Description of development: Erection of a two-storey attached dwellinghouse on land adjacent to 222 Ashton Drive.
Applicant: Anford Homes Ltd
Agent: Stokes Morgan Planning Ltd
Committee/delegation date: 23.10.17
Date of Notice: 23.10.17

PLANNING INFORMATION

Full details of the planning granted can be downloaded from the online legal pack.

RENTAL APPRAISAL OF NEW HOUSE

The local lettings experts say:

The Bristol Residential Letting Co. are confident this property would make a good rental investment. Don McKeever of The Bristol Residential Letting Co suggests a rent in the region of:

3 Bedroom House - £1100-£1200

If you would like to discuss more detail on the potential for rental, you can call Don (0117 370 8818) for a no obligation discussion. He will be very happy to advise on maximising the return on this property.


Local Information

Schools Stations Healthcare
Floorplan for FREEHOLD CORNER PLOT - PLANNING GRANTED Floorplan for FREEHOLD CORNER PLOT - PLANNING GRANTED