Lot 12

Land Adjacent to, 222 Ashton Drive, Ashton, BS3 2QA

Sold @ Auction £122,000 +++

Bedrooms 3 Bathrooms 1 Reception 1

  • For Sale By Public Auction
  • Wednesday 27th September
  • All Saints Church, Clifton, BS8 2HY
  • Weekly Set Viewings
  • Download Online Legal Packs
  • NOVEMBER 2017
  • PLANNING GRANTED
  • OPEN PLAN LIVING SPACE
  • 3 BEDROOMS
  • ENCLOSED REAR GARDEN

FOR SALE BY AUCTION

*** SOLD @ NOVEMBER AUCTION – 95% SUCCESS RATE AND OVER £10M OF LAND AND PROPERTY SOLD ***

GUIDE £99,000 +++
SOLD @ £122,000

LOT NUMBER 12
Wednesday 29th November 2017
All Saints Church Pembroke Road, Clifton, Bristol BS8 2HY
Legal packs will be available for inspection from 18:00.
The sale will begin promptly at 19:00

EXTENDED COMPLETION

Completion is set for 10th January 2018 or earlier subject to mutual consent.

VIEWING

The site is open for viewings at all times.

SOLICITORS

Julian Chapman
Julian@devlaw.co.uk
Devereux & Co
T : (0117) 941 9056
F : (0117) 959 3355

ONLINE LEGAL PACKS

Digital Copies of the Online legal pack can be downloaded Free of Charge.
Please visit the Hollis Morgan Website and select the chosen lot from our Current Auction List.
Follow the RED link to "Download Legal Packs" For the first visit you will be required to register simply with your email and a password.
Having set up your account you can download legal packs or if they are not yet available they will automatically be sent to you when we receive them.
You will be automatically updated by email if any new information is added.
*** STAY UPDATED *** By registering for the legal pack we can ensure you are kept updated on any changes to this Lot in the build up to the sale.

THE PROPERTY

A Freehold corner Plot in this popular cul de sac location.

LOCATION

Ashton Drive is located just off Winterstoke Road within the popular suburb of Ashton. Local amenities and services are all within close proximity including a Salnsbury's supermarket. Bristol City Centre is approximately three miles away.

THE OPPORTUNITY

Planning has been Granted to erect a semi detached 3 bedroom property on the corner plot with enclosed rear garden and two parking spaces.

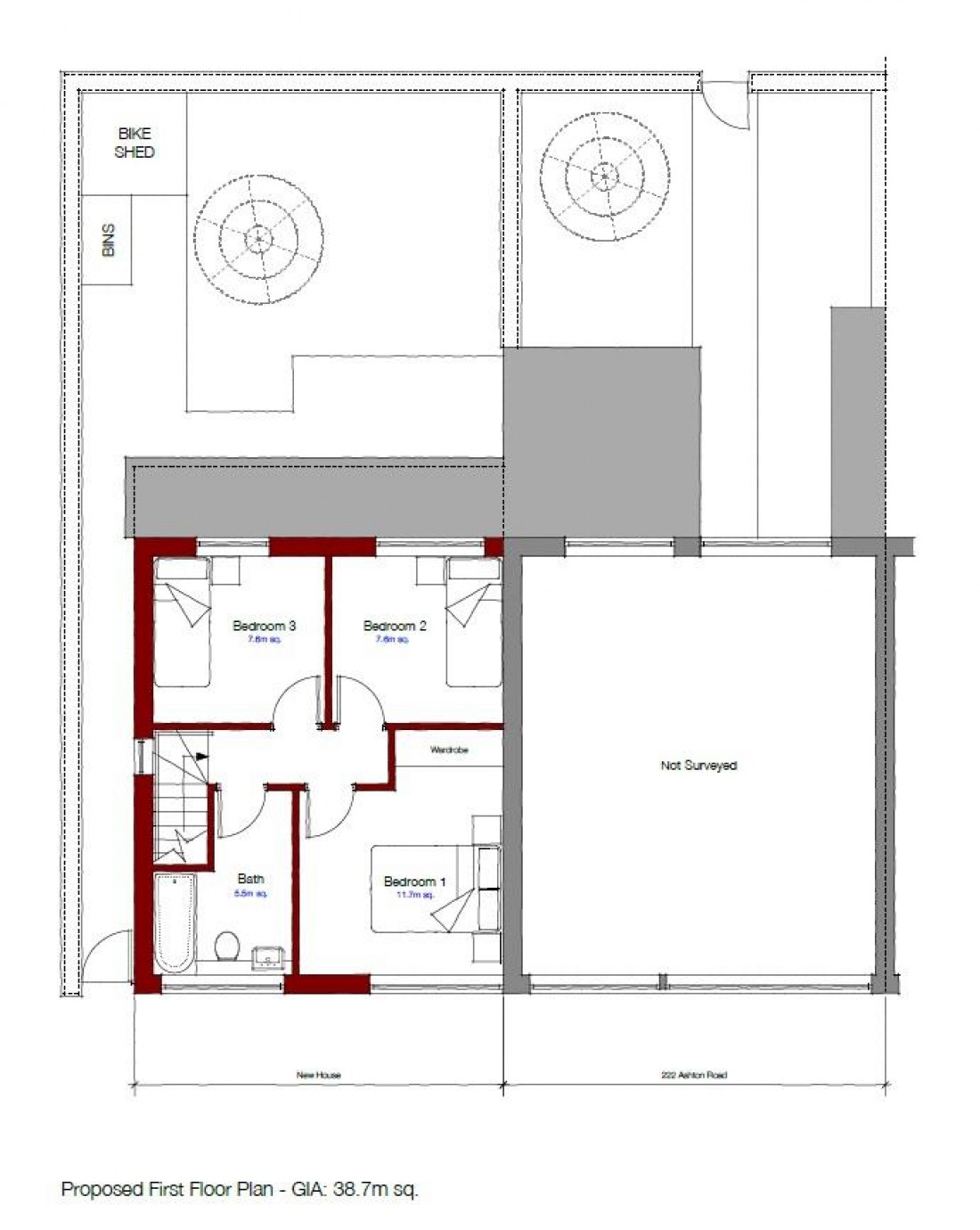
GROUND FLOOR
Entrance Hall
Reception 1
Open Plan Kitchen / Diner

FIRST FLOOR
Bedroom 1
Bedroom 2
Bedroom 3
Bathroom

OUTSIDE
Enclosed Rear garden
Front Garden - Planning includes two parking spaces

PLANNING GRANTED

Decision : GRANTED subject to condition(s)
Application no: 17/04644/F
Type of application: Full Planning
Site address: 222 Ashton Drive, Bristol, BS3 2QA.
Description of development: Erection of a two-storey attached dwellinghouse on land adjacent to 222 Ashton Drive.
Applicant: Anford Homes Ltd
Agent: Stokes Morgan Planning Ltd
Committee/delegation date: 23.10.17
Date of Notice: 23.10.17

PLANNING INFORMATION

Full details of the planning granted can be downloaded from the online legal pack.

RENTAL APPRAISAL OF NEW HOUSE

The local lettings experts say:

The Bristol Residential Letting Co. are confident this property would make a good rental investment. Don McKeever of The Bristol Residential Letting Co suggests a rent in the region of:

3 Bedroom House - £1100-£1200

If you would like to discuss more detail on the potential for rental, you can call Don (0117 370 8818) for a no obligation discussion. He will be very happy to advise on maximising the return on this property.

EPC

For full details of the EPC please refer to the online legal pack.

BUYER'S PREMIUM

Please be aware all purchasers are subject to a £750 + VAT (£900 inc VAT) buyer's premium which is ALWAYS payable upon exchange of contracts whether the sale is concluded before, during or after the auction date.

GUIDE PRICE

An indication of the seller's current minimum acceptable price at auction. The guide price or range of guide prices is given to assist consumers in deciding whether or not to pursue a purchase. It is usual, but not always the case, that a provisional reserve range is agreed between the seller and the auctioneer at the start of marketing. As the reserve is not fixed at this stage and can be adjusted by the seller at any time up to the day of the auction in the light of interest shown during the marketing period, a guide price is issued. This guide price can be shown in the form of a minimum and maximum price range within which an acceptable sale price (reserve) would fall, or as a single price figure within 10% of which the minimum acceptable price (reserve) would fall. A guide price is different to a reserve price (see separate definition). Both the guide price and the reserve price can be subject to change up to and including the day of the auction.

RESERVE PRICE

The seller's minimum acceptable price at auction and the figure below which the auctioneer cannot sell. The reserve price is not disclosed and remains confidential between the seller and the auctioneer. Both the guide price and the reserve price can be subject to change up to and including the day of the auction.

PRE AUCTION OFFERS

Some properties may be available to buy prior to the auction.
Pre auction offers can be only submitted by completing the OFFER FORM which can be downloaded with the online legal pack - please email the COMPLETED form to – olly@hollismorgan.co.uk.
Please note offers will not be considered until you have VIEWED the property and the COMPLETE LEGAL PACK has been released.
In the event of an offer being accepted the property will only be removed from the auction and viewings stopped once contracts have successfully EXCHANGED subject to the standard auction terms and payment of the buyer’s premium ( £900 ) to Hollis Morgan.
Contracts can be signed either via the solicitors or at the Hollis Morgan offices subject to appointment.

SURVEYS AND VALUATIONS

If you would like to arrange a survey or mortgage valuation of this Lot BEFORE the auction please instruct your appointed surveyor to contact Hollis Morgan and we will arrange access for them to inspect the property. Please note that buyers CANNOT attend the surveys and the surveyors are responsible for collecting and returning keys to the Hollis Morgan offices in Clifton.

BIDDING AT THE AUCTION

This property is for sale by public auction and if you intend to bid please bring the following:

Proof of identity (valid passport or photo driving licence).
Proof of address (bank statement, recent utility bill, council tax bill or tenancy agreement).
10% deposit payment.
Buyers premium payment.
Details of your solicitor.

PAYING THE DEPOSIT & BUYERS PREMIUM

We can only accept the following at the auction:

Personal or Company Cheque
Bankers Draft
Debit Card ( NOT CREDIT CARD )

TELEPHONE AND PROXY BIDDING

If you cannot attend the auction (although we strongly advise you do) you can make a TELEPHONE or PROXY BID. This authorises the auctioneer to bid on your behalf up to a pre-set limit. Forms and relevant conditions are available to download with the online legal pack. A completed form, ID and two cheques (one for the 10% deposit and one for the Buyer's Administration Fee of £900) are required by the Auction Department at least two full working days before the auction.

AUCTION BUYERS GUIDE VIDEO

We have short video guides for both buying and selling by Public Auction on the Hollis Morgan Website. If you have any further questions regarding the process please don’t hesitate to contact Auction HQ.

TESTIMONIALS

We are very proud of what our past clients have say about us - please visit the Hollis Morgan website to read their testimonials.

CHARITY OF THE YEAR

Hollis Morgan are supporting Bristol based “ Life for a Cure” as our 2017 Charity of the year which aims ‘a LIFE for a CURE’, to raise funds in support of finding the ‘Ultimate Vaccine’ for Meningitis B. We are delighted to announce that 5 % of every buyer’s premium will be donated to ‘a Life for a Cure’ which was founded as both a legacy to Ryan and to help raise awareness and valuable funds in search of the ultimate vaccine. This Bristol charity run purely on a voluntary basis is simply about working together to stop other amazing young lives being lost to meningitis. - to learn more about Ryans Story and this fantastic cause please visit there website. www.ryanbresnahan.org/ In 2016 we raised £4,000 for Bristol based housing charity “Home Start” to learn more visit the charity section of our website - www.hollismorgan.co.uk/charity/


Local Information

Schools Stations Healthcare
Floorplan for FREEHOLD CORNER PLOT - PLANNING GRANTED Floorplan for FREEHOLD CORNER PLOT - PLANNING GRANTED