SOLD, £795,000

Development Opportunity @, 76, Grove Road, Coombe Dingle, BS9 2RT

Bedrooms 4 Bathrooms 2 Reception 2

  • SITE FOR DEVELOPMENT
  • SECLUDED LOCATION
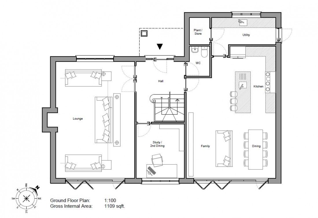
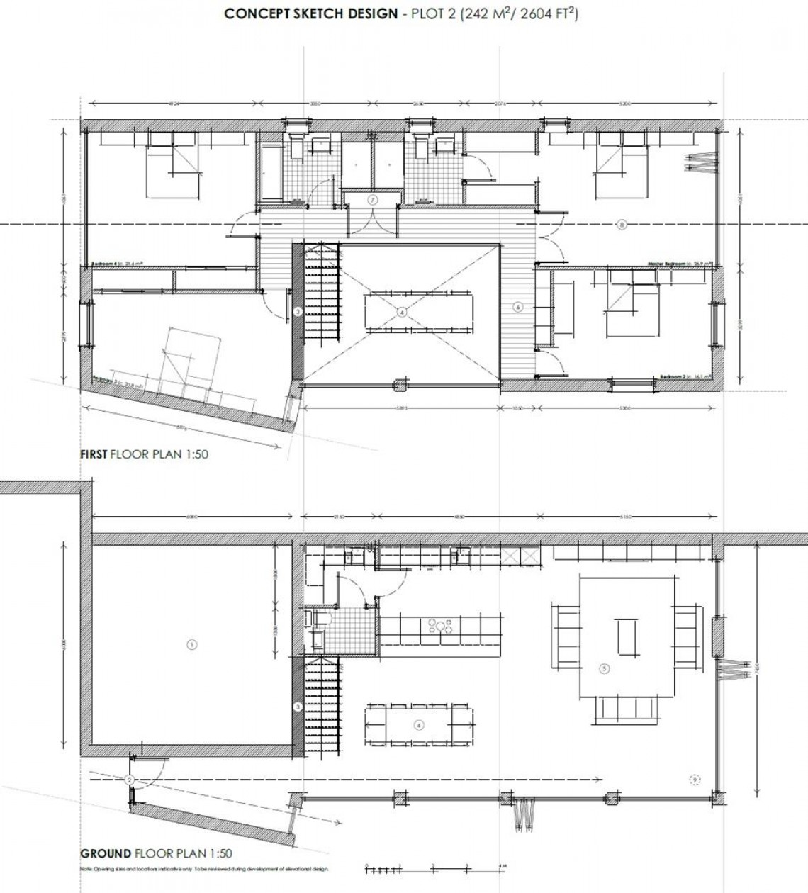
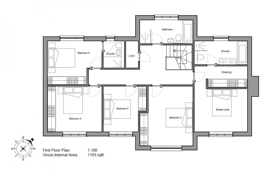
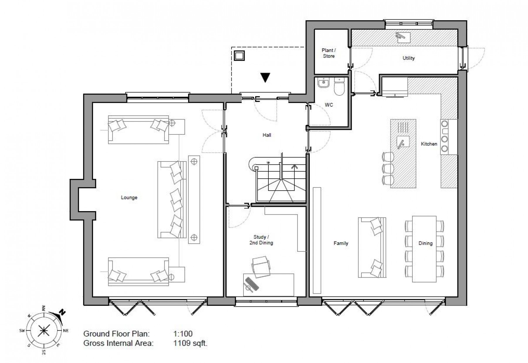
  • SCOPE FOR 2 X 3000 SQ FT DETACHED
  • SUBJECT TO PLANNING CONSENTS
  • FAR REACHING VIEWS & LARGE GARDENS
  • CLOSE TO WOODLANDS
  • EXCELLENT PROJECT
  • GDV £2.25
  • NO ONWARD CHAIN
  • QUICK SALE REQUIRED

THE PROPERTY

This is one of those rare opportunities to acquire a development site with enormous potential in an secluded and elevated location, facing South with panoramic views over the surrounding leafy suburbs across to the open countryside - this location truly combines the virtues of country living with all the advantages and facilities of the City yet the house basks in the peaceful ambiance of this quasi rural setting.
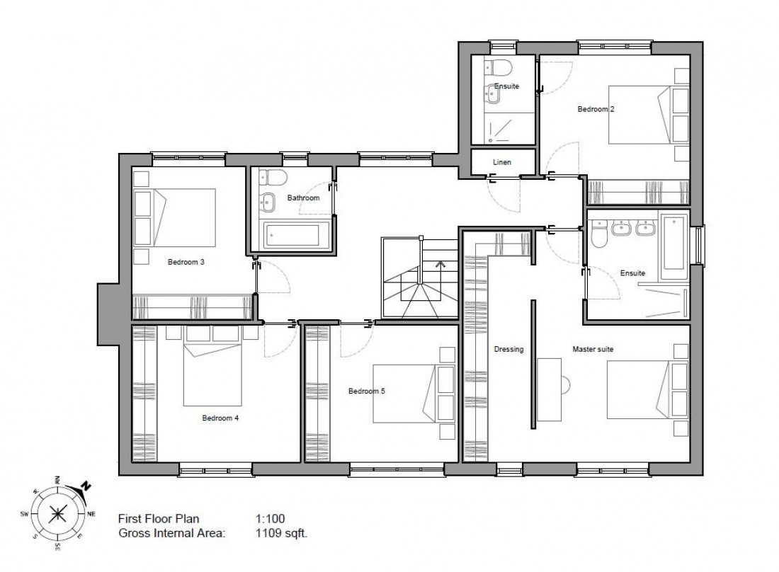
Existing 1950's detached house ( 2524 Sq Ft ) in need of complete updating.

LOCATION

Grove Road enjoys a semi-rural status on the cusp of suburbia, the Kings Weston Estate and the Dingle. There are neighbours in proximity and yet the wooded setting provides privacy and extreme tranquility. The adjacent environs offer bridle paths and foot paths with woodland and gorge walks. From this property a short idyllic walk will lead you through woods and the famous echo gate to the picturesque hamlet of Henbury with its historic church and famous graveyard. Equally a walk in another direction will take you to the village of Westbury on Trym are a myriad of shops and supermarkets suitable for day to day living as well as schools, primary, secondary, state and independent. For sporting pursuits there are golf courses, health, leisure and tennis clubs. Grove Road is in itself a unique semi - rural winding lane Road which has evolved over the years with old cottages and individual houses developed at different periods to provide the area with a unique charm and character of its own. Coombe Dingle which is situated in north west Bristol has excellent links to the motorway networks as well as Bristol's commercial centre

THE OPPORTUNITY

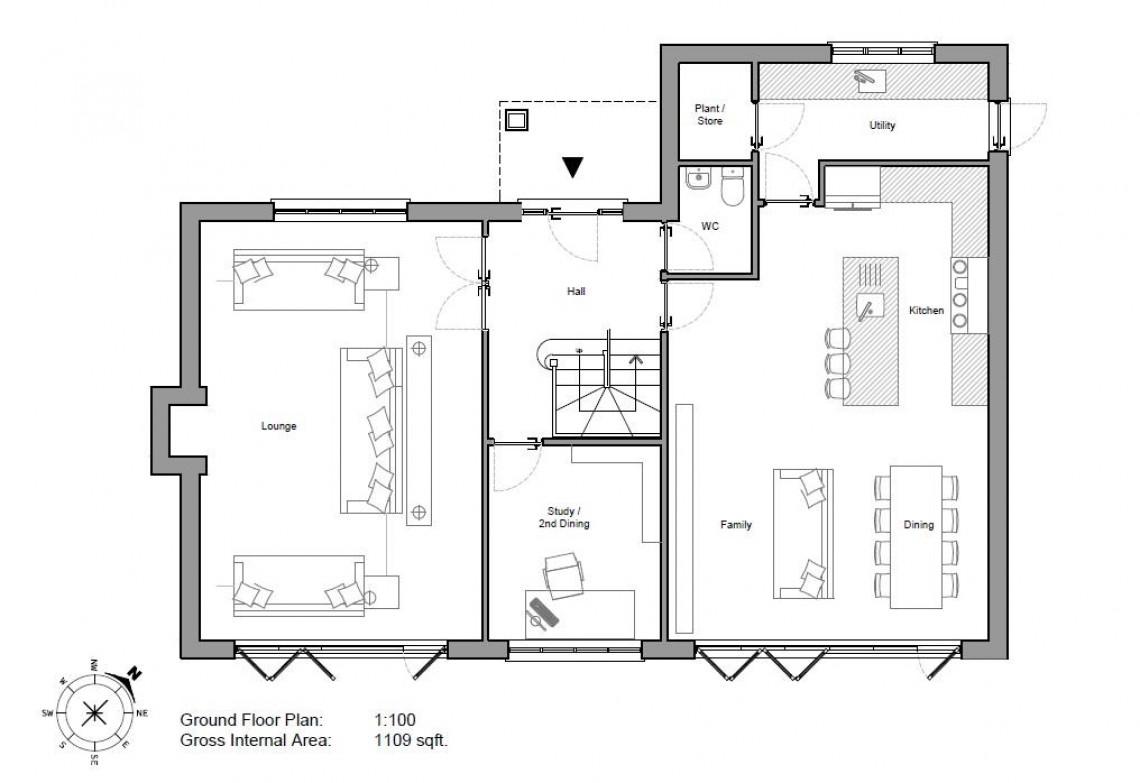
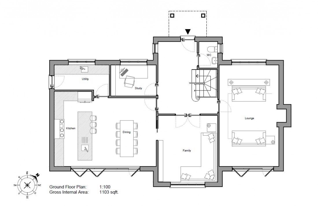
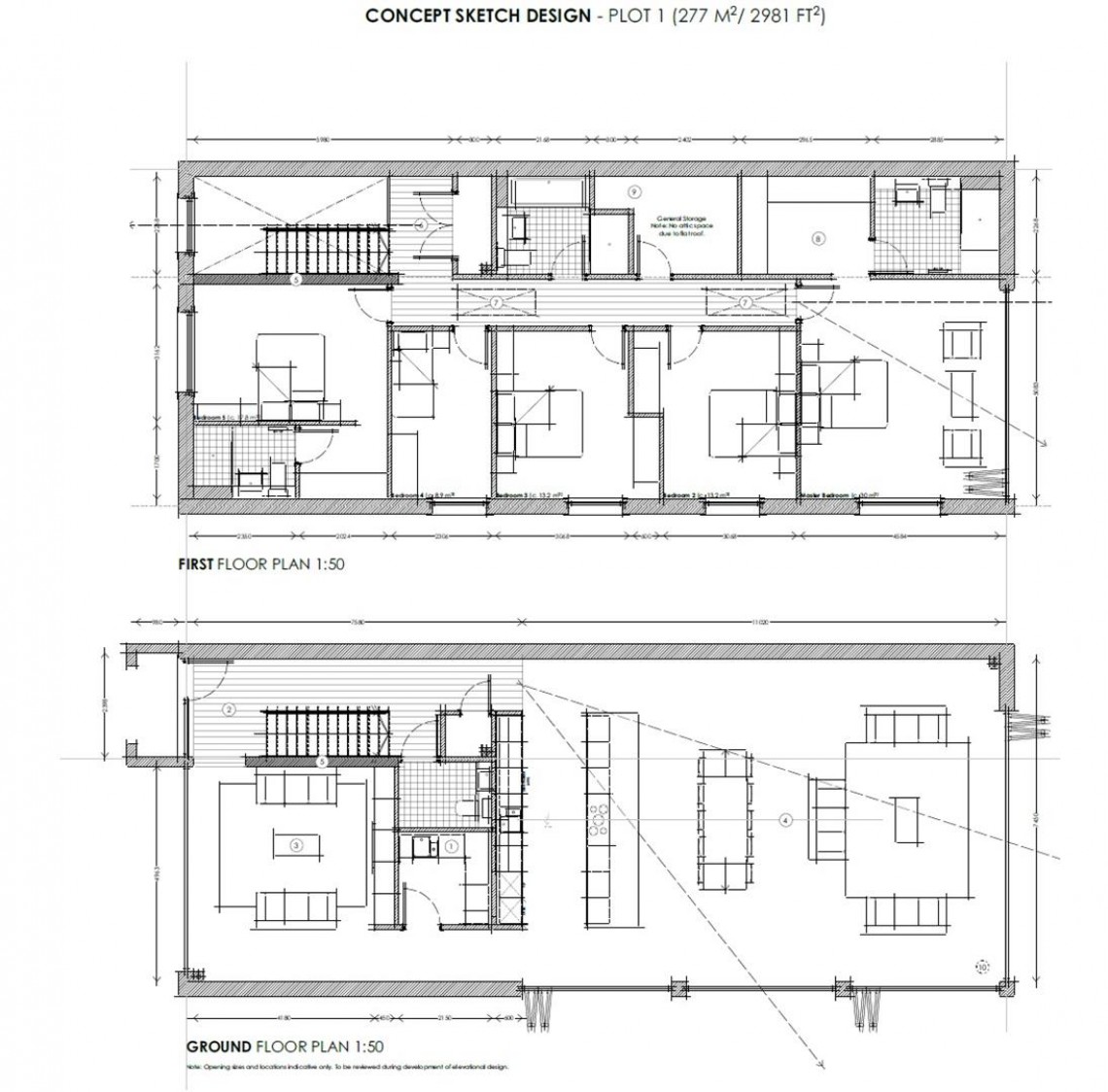
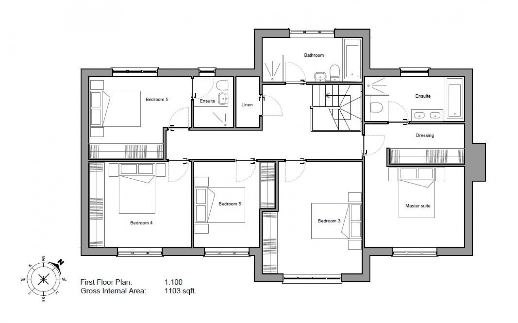
Planning was sought in 2016 to develop the site to create for 2 x 3000 Sq Ft 5 Bed Houses with a GDV £2.25m
The planning was rejected but we understand that an adapted scheme may prove more successful - buyers should make their own investigations.

PLANNING - REFUSED

Decision : REFUSED
Application no: 16/01406/F
Type of application: Full Planning
Site address: 76 Grove Road, Coombe Dingle, Bristol, BS9 2RT.
Description of development: Replacement of two storey dwelling with 2 no. two storey dwellings and associated garages and landscaping.
Applicant: Land Promotions (Estates) Ltd
Agent: Franklin Design Associates
Committee/Delegation Date: 31.10.16
Date of notice: 31.10.16

EPC

For full details of the EPC please refer to the online legal pack.


Local Information

Schools Stations Healthcare
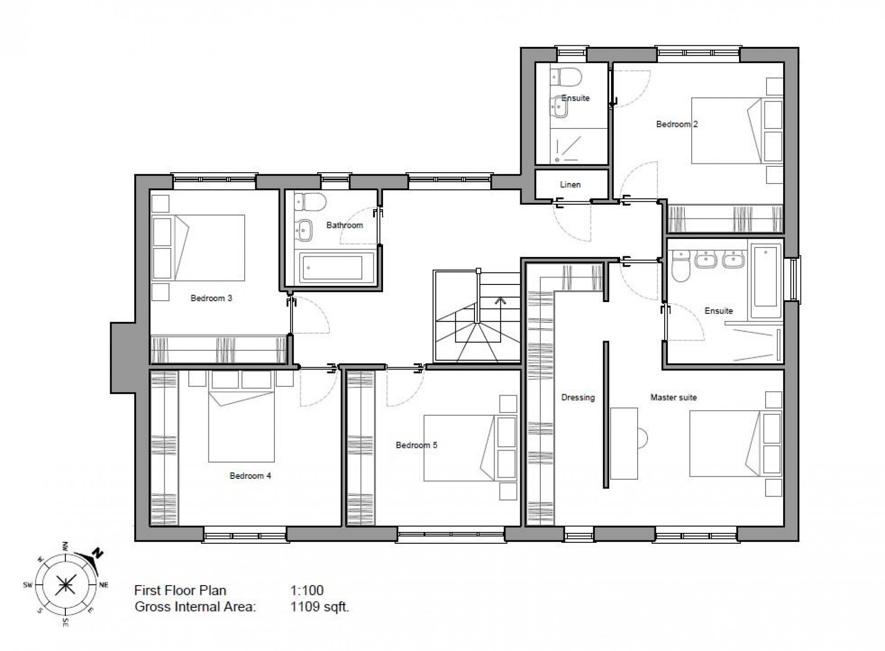
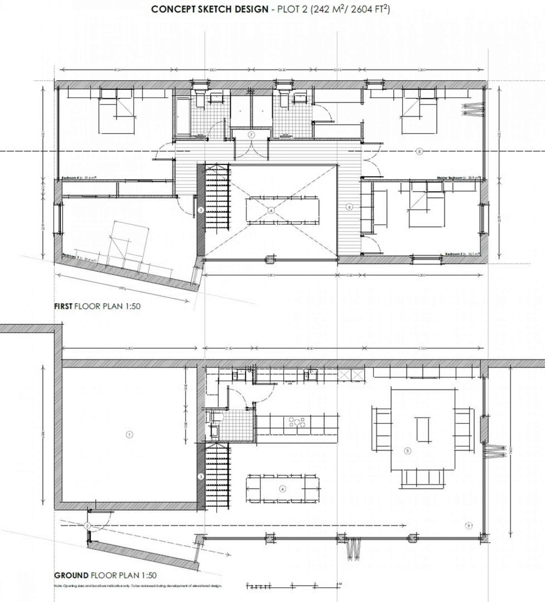
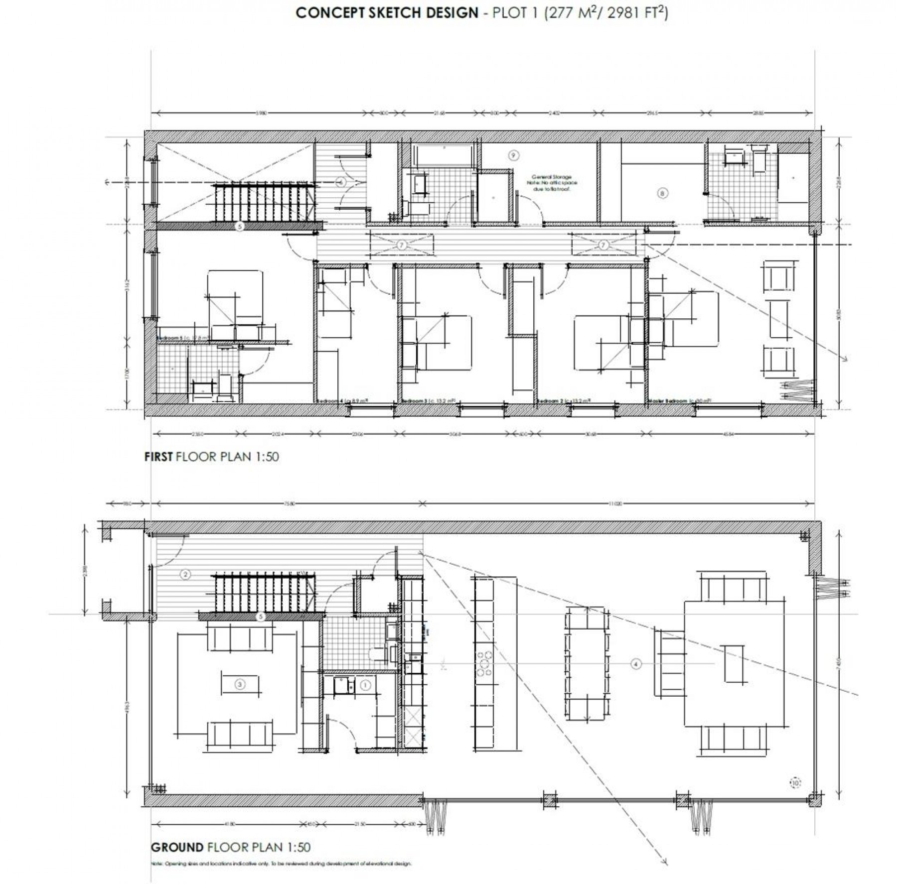
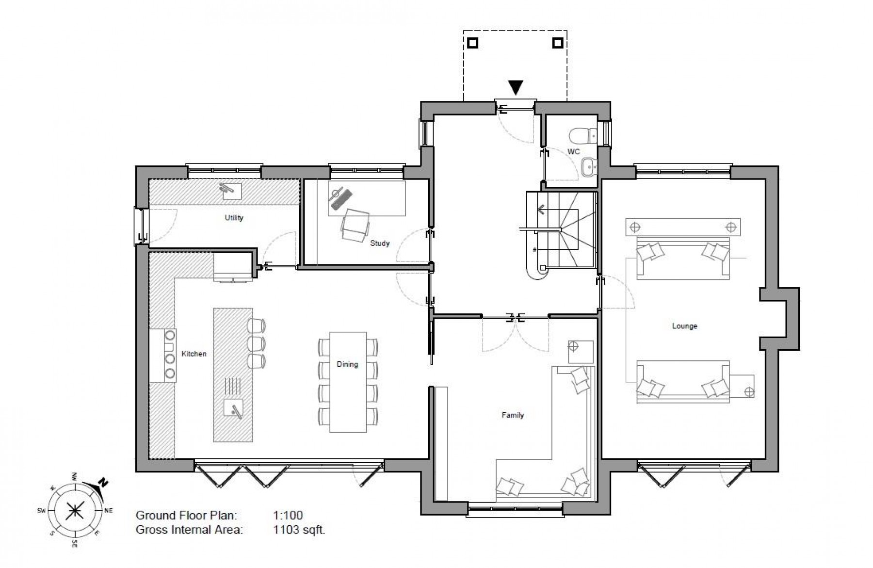
Floorplan for Site @ 76 Grove Road, Coombe Dingle Floorplan for Site @ 76 Grove Road, Coombe Dingle Floorplan for Site @ 76 Grove Road, Coombe Dingle Floorplan for Site @ 76 Grove Road, Coombe Dingle