SOLD, Guide Price £850,000

Development Site, Berkeley Hospital, Marybrook Street, GL13 9AD

Bedrooms 38 Bathrooms 32 Reception 12

  • LAND FOR SALE
  • INFORMAL TENDER
  • PLANNING GRANTED
  • 12 HOUSES
  • GDV £3M
  • CLEAR AND LEVEL SITE
  • CENTRAL LOCATION

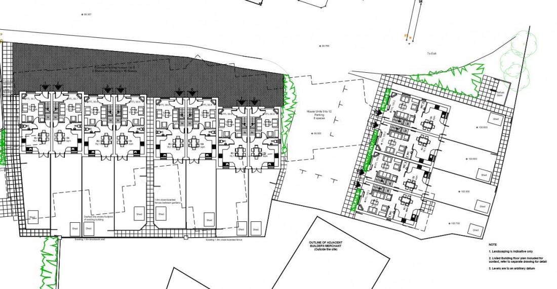
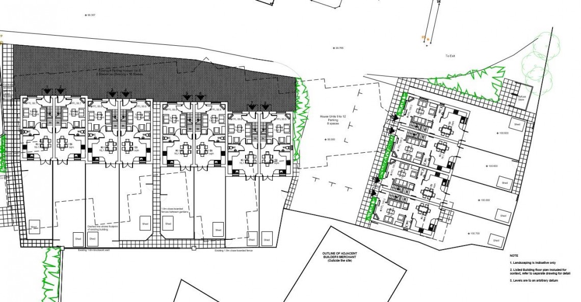
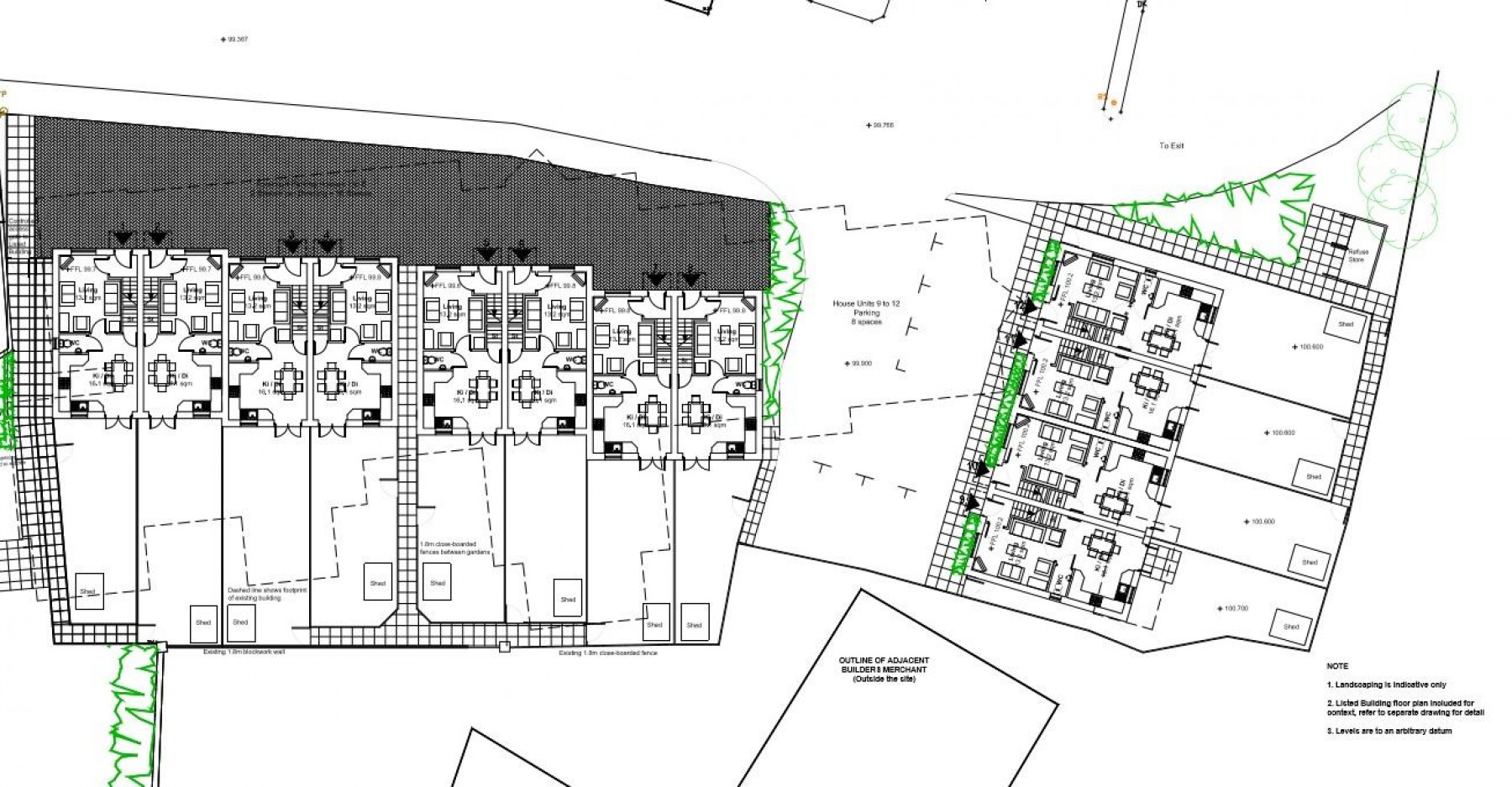
THE LAND

A level Freehold parcel of land that has been cleared ready for development to commence in the heart of the Town.

LOCATION

The site is situated in a popular historic town centre which is famous for its Castle and the Jenner museum. The attractive town centre has a range of local retailers along with library, doctors surgery and primary school. Berkeley town is well placed for access to the adjoining towns of Thornbury and Dursley, both have a wider range of shopping facilities along with leisure facilities including swimming pool, golf courses and gyms. Cam/Dursley 'Park and Ride' railway station is within a ten minute drive which provides easy access to Gloucester, Bristol and Cheltenham and onward connections to the National Rail Network. The town is also well placed for access to the A38 and M5/M4 motorway network.

THE OPPORTUNITY

Planning has been granted to erect a scheme of 12 townhouses with a GDV of approx £2.900,000 - £3,000.000.

PLANNING GRANTED

Under the above Act the District Council as Local Planning Authority HEREBY GRANTS Planning Permission for Demolition of buildings and redevelopment of site to provide 12no. new dwellings.
(Resubmission of S.15/1254/FUL).

Full details available on the local authority planning portal or Contact Calum Melhuish at Hollis Morgan.

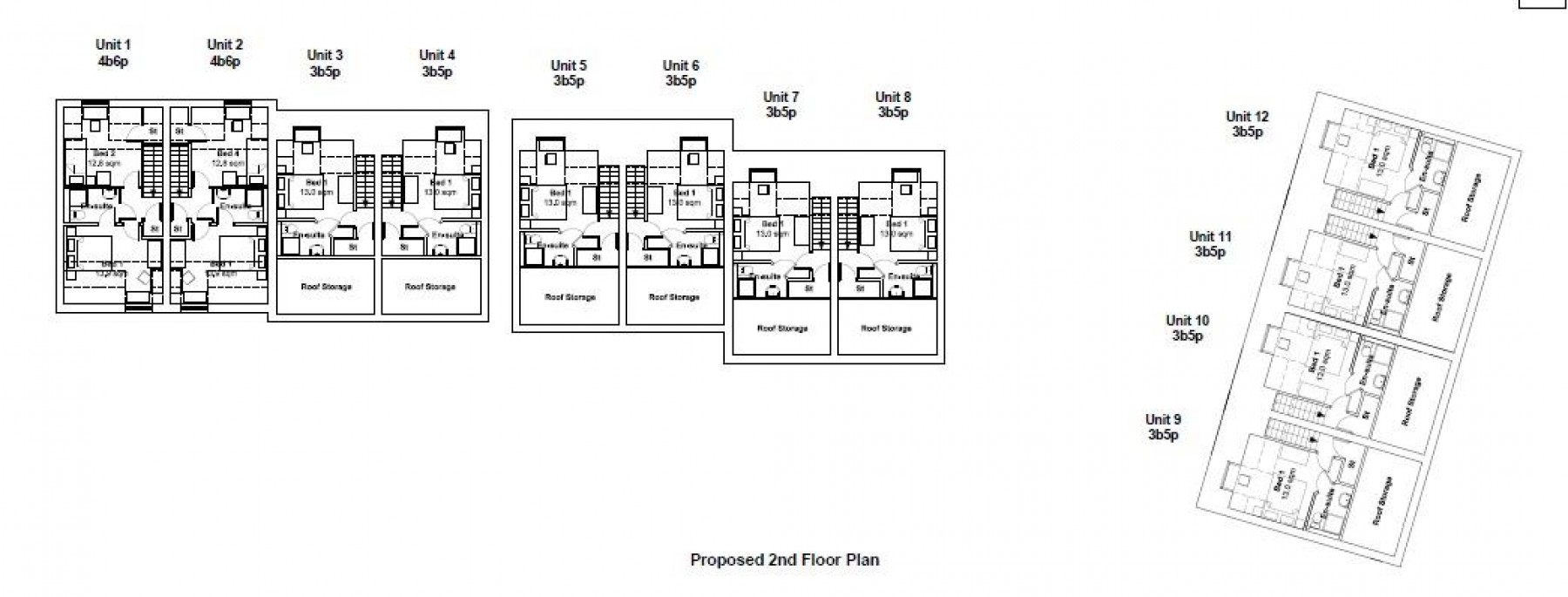
ACCOMODATION / GDV SCHEDULE

4 bedroom townhouse 1166 (x1) - £275,000
4 bedroom townhouse 1166 ( x1) - £265,000
3 bedroom townhouse 1005 (x5) - £250,000
3 bedroom townhouse 1005 (x5) - £240,000

VIEWINGS

External viewings, the site is open for inspection.


Local Information

Schools Stations Healthcare
Floorplan for PP GRANTED FOR 12 HOUSES - G.D.V £3 M Floorplan for PP GRANTED FOR 12 HOUSES - G.D.V £3 M Floorplan for PP GRANTED FOR 12 HOUSES - G.D.V £3 M