UNDER OFFER, Guide Price £275,000

566, Fishponds Road, Fishponds, BS16 3DD

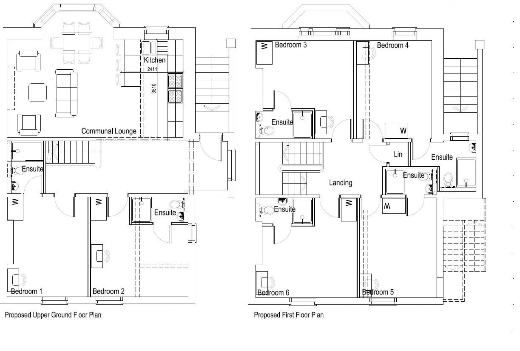
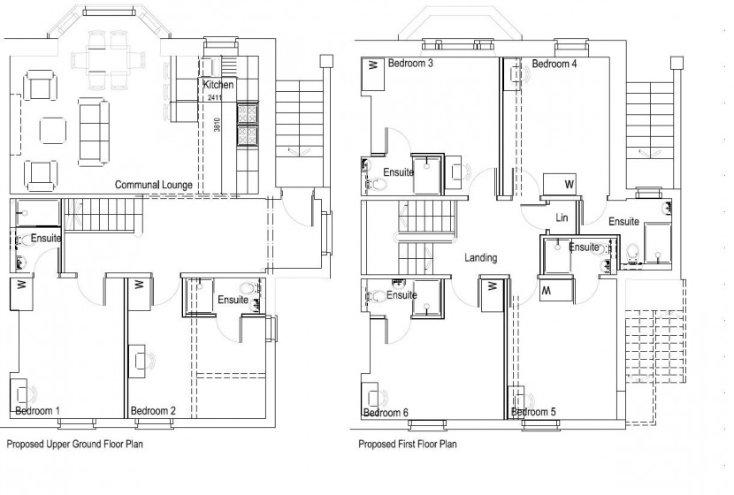
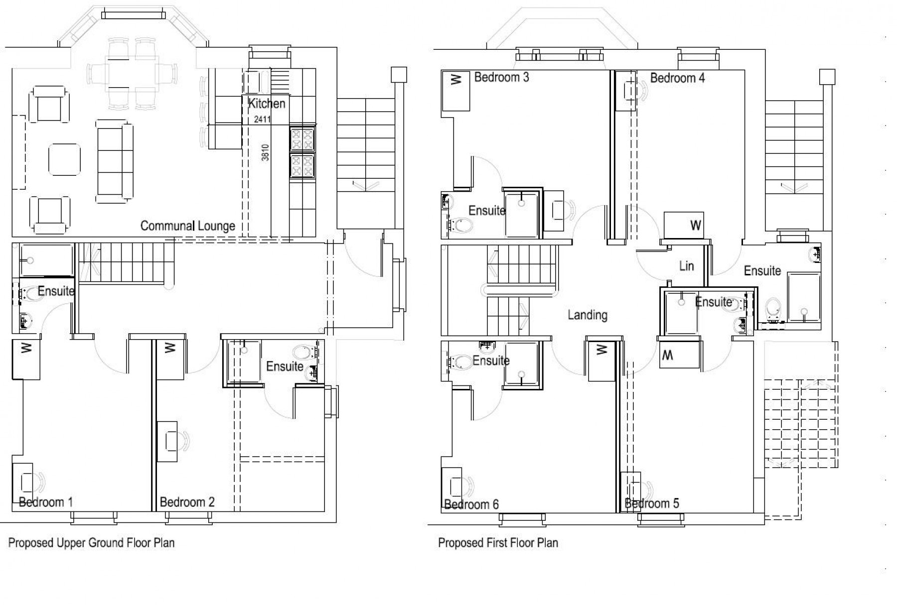
Bedrooms 6 Bathrooms 2 Reception 1

  • PLANNING GRANTED 6 BED HMO
  • REQUIRES COMPLETE UPDATING
  • SCOPE FOR £43k PA INCOME
  • EXISTING 4 BED MAISONETTE
  • OFF STREET PARKING

THE PROPERTY

A large maisonette ( 1563 Sq Ft ) occupying the upper floors of this imposing period property with high ceilings and period detail.
The self contained property includes the original entrance and the parking area to the front.

GARDEN FLAT

Please note the garden flat is for sale separately in the same auction with a Guide of £99,000 +++

LOCATION

The property is situated on the vibrant and bustling Fishponds Road. A vast array of local amenities are immediately available including independent retailers, convenience stores, cafes, bars, restaurants. Bristol City Centre is approximately three miles away.

THE OPPORTUNITY

The property is sold with vacant possession and is now in need of complete modernisation.

6 BED HMO - PLANNING GRANTED

Planning has been granted to convert the existing accommodation into a 6 bedroom ( with en suite ) and communal kitchen / dining area.
The HMO would generate £550 - £600 pcm per room.
POTENTIAL INCOME upto £43K PA

FAMILY HOME / LARGE 4 BED FLAT

The existing layout provides spacious accommodation and four bedrooms.

PLANNING GRANTED

Decision : GRANTED subject to condition(s)
Application no: 17/01238/F
Type of application: Full Planning
Site address: 566 Fishponds Road, Fishponds, Bristol, BS16 3DD.
Description of development: Conversion of existing house to 1 x 3-bed flat and 6-bed House of Multiple Occupation (HMO)
Applicant: Mr S Mead
Agent: David Cahill Design Consultants Ltd
Committee/delegation date: 15.05.17
Date of Notice: 15.05.17

PLANNING INFORMATION

Full details of the planning and proposed layouts are available to download with the online legal pack

RENTAL APPRAISAL

About this property:

If offered to the market today in a modernised state we would expect to achieve circa £1600 per calendar month on the property as a 4 bed in its existing layout.

Planning having been granted to convert the existing accommodation into a 6 bedroom (with en-suite ) and communal kitchen / dining area. The HMO would generate £550- £600 pcm per room.

Next steps:

If you would like further information on our services or on this or any other property please contact us at our Bristol office on 01179 55 18 17 or via email at enquiries@piperproperty.co.uk. Alternatively, please visit our website www.piperproperty.co.uk for information on our office locations, services and to find out how we do things differently. We look forward to hearing from you.


Local Information

Schools Stations Healthcare
Floorplan for PLANNING GRANTED 6 BED HMO Floorplan for PLANNING GRANTED 6 BED HMO Floorplan for PLANNING GRANTED 6 BED HMO