Lot 26

Land to Rear of, 62 Market Place, Warminster, BA12 9AZ

Auction Guide Price £225,000 +++

Bedrooms 16 Bathrooms 10 Reception 8

  • For Sale By Public Auction
  • Wednesday 27th September
  • All Saints Church, Clifton, BS8 2HY
  • Weekly Set Viewings
  • Download Online Legal Packs
  • SEPTEMBER 2017
  • 4 FLATS
  • 4 HOUSES
  • GDV £1.2M
  • HIGH STREET LOCATION

FOR SALE BY AUCTION

*** STILL AVAILABLE - OPEN TO OFFERS ***

LOT NUMBER 26
Wednesday 27th September 2017
All Saints Church Pembroke Road, Clifton, Bristol BS8 2HY
Legal packs will be available for inspection from 18:00.
The sale will begin promptly at 19:00

VIEWINGS

External Viewings at all times.

SOLICITORS

Jonathan Webb
Cook & Co Solicitors
jonathan.webb@cookco.co.uk
DDI: +44 (0) 1173251039 Ext 239
T: +44 (0) 1173179719
M: +44 (0) 7540633389
F: +44 (0) 1173179720

ONLINE LEGAL PACKS

Digital Copies of the Online legal pack can be downloaded Free of Charge.
Please visit the Hollis Morgan Website and select the chosen lot from our Current Auction List.
Follow the RED link to "Download Legal Packs" For the first visit you will be required to register simply with your email and a password.
Having set up your account you can download legal packs or if they are not yet available they will automatically be sent to you when we receive them.
You will be automatically updated by email if any new information is added.
*** STAY UPDATED *** By registering for the legal pack we can ensure you are kept updated on any changes to this Lot in the build up to the sale.

THE LAND

A Freehold parcel of land to the rear of the High Street.

LOCATION

The site is located in the heart of the popular market town of Warminster within 50 yards of the vibrant High Street. The City of Bath is within 15 miles whilst Bristol is approximately 1 hours' drive.

THE OPPORTUNITY

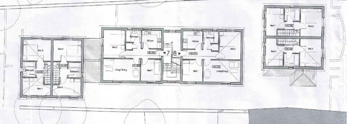
Full Planning has been granted to erect 4 x 2 bedroom Semi Detached Houses and 4 x 2 bedroom Flats.

GDV VALUES

Dwelling 1 £155,000
Dwelling 2 £155,000
Dwelling 3 £135,000
Dwelling 4 £135,000
Dwelling 5 £160,000
Dwelling 6 £160,000
Dwelling 7 £145,000
Dwelling 8 £145,000

GDV £1.19m

PLANNING INFORMATION

GRANTED

Application Reference Number: 14/00484/FUL
Particulars of Development: Construction of four houses and four flats
At: Land To Rear Of 62 And 66, Market Place, Warminster, Wiltshire

CERTIFICATE OF LAWFULNESS

Particulars of Development: Certificate of Lawfulness to establish that a material operation has been carried out which constitutes the commencement of the development granted planning permission under 14/00484/FUL

At: Land to rear of 62/66 Market Place, Warminster, Wiltshire BA12 9AW

PLANS AND DRAWINGS

All plans, drawings and information can be downloaded with the online legal pack.

BUYER'S PREMIUM

Please be aware all purchasers are subject to a £750 + VAT (£900 inc VAT) buyer's premium which is ALWAYS payable upon exchange of contracts whether the sale is concluded before, during or after the auction date.

GUIDE PRICE

An indication of the seller's current minimum acceptable price at auction. The guide price or range of guide prices is given to assist consumers in deciding whether or not to pursue a purchase. It is usual, but not always the case, that a provisional reserve range is agreed between the seller and the auctioneer at the start of marketing. As the reserve is not fixed at this stage and can be adjusted by the seller at any time up to the day of the auction in the light of interest shown during the marketing period, a guide price is issued. This guide price can be shown in the form of a minimum and maximum price range within which an acceptable sale price (reserve) would fall, or as a single price figure within 10% of which the minimum acceptable price (reserve) would fall. A guide price is different to a reserve price (see separate definition). Both the guide price and the reserve price can be subject to change up to and including the day of the auction.

RESERVE PRICE

The seller's minimum acceptable price at auction and the figure below which the auctioneer cannot sell. The reserve price is not disclosed and remains confidential between the seller and the auctioneer. Both the guide price and the reserve price can be subject to change up to and including the day of the auction.

PRE AUCTION OFFERS

Some properties may be available to buy prior to the auction.
Pre auction offers can be only submitted by completing the OFFER FORM which can be downloaded with the online legal pack - please email the COMPLETED form to – olly@hollismorgan.co.uk.
Please note offers will not be considered until you have VIEWED the property and the COMPLETE LEGAL PACK has been released.
In the event of an offer being accepted the property will only be removed from the auction and viewings stopped once contracts have successfully EXCHANGED subject to the standard auction terms and payment of the buyer’s premium ( £900 ) to Hollis Morgan.
Contracts can be signed either via the solicitors or at the Hollis Morgan offices subject to appointment.

SURVEYS AND VALUATIONS

If you would like to arrange a survey or mortgage valuation of this Lot BEFORE the auction please instruct your appointed surveyor to contact Hollis Morgan and we will arrange access for them to inspect the property. Please note that buyers CANNOT attend the surveys and the surveyors are responsible for collecting and returning keys to the Hollis Morgan offices in Clifton.

BIDDING AT THE AUCTION

This property is for sale by public auction and if you intend to bid please bring the following:

Proof of identity (valid passport or photo driving licence).
Proof of address (bank statement, recent utility bill, council tax bill or tenancy agreement).
10% deposit payment.
Buyers premium payment.
Details of your solicitor.

PAYING THE DEPOSIT & BUYERS PREMIUM

We can only accept the following at the auction:

Personal or Company Cheque
Bankers Draft
Debit Card ( NOT CREDIT CARD )

TELEPHONE AND PROXY BIDDING

If you cannot attend the auction (although we strongly advise you do) you can make a TELEPHONE or PROXY BID. This authorises the auctioneer to bid on your behalf up to a pre-set limit. Forms and relevant conditions are available to download with the online legal pack. A completed form, ID and two cheques (one for the 10% deposit and one for the Buyer's Administration Fee of £900) are required by the Auction Department at least two full working days before the auction.

AUCTION BUYERS GUIDE VIDEO

We have short video guides for both buying and selling by Public Auction on the Hollis Morgan Website. If you have any further questions regarding the process please don’t hesitate to contact Auction HQ.

AUCTION BUYERS GUIDE VIDEO

We have short video guides for both buying and selling by Public Auction on the Hollis Morgan Website. If you have any further questions regarding the process please don’t hesitate to contact Auction HQ.

CHARITY OF THE YEAR

Hollis Morgan are supporting Bristol based “ Life for a Cure” as our 2017 Charity of the year which aims ‘a LIFE for a CURE’, to raise funds in support of finding the ‘Ultimate Vaccine’ for Meningitis B. We are delighted to announce that 5 % of every buyer’s premium will be donated to ‘a Life for a Cure’ which was founded as both a legacy to Ryan and to help raise awareness and valuable funds in search of the ultimate vaccine. This Bristol charity run purely on a voluntary basis is simply about working together to stop other amazing young lives being lost to meningitis. - to learn more about Ryans Story and this fantastic cause please visit there website. www.ryanbresnahan.org/ In 2016 we raised £4,000 for Bristol based housing charity “Home Start” to learn more visit the charity section of our website - www.hollismorgan.co.uk/charity/


Local Information

Schools Stations Healthcare
Floorplan for LAND - PLANNING GRANTED 8 UNITS Floorplan for LAND - PLANNING GRANTED 8 UNITS Floorplan for LAND - PLANNING GRANTED 8 UNITS Floorplan for LAND - PLANNING GRANTED 8 UNITS
EPC Graph for LAND - PLANNING GRANTED 8 UNITS