Sold @ Auction £320,000

Development Site @, Bath Road, Farmborough, BA2 0BX

Bedrooms 16 Bathrooms 12 Reception 8

  • PLANNING GRANTED
  • GDV £1.5M
  • 4 X 4 BED HOUSES
  • VILLAGE LOCATION
  • RURAL VIEWS FRONT AND REAR

FOR SALE BY AUCTION

*** SOLD @ AUCTION ***
GUIDE PRICE - £350k +++
SOLD @ £320K

LOT NUMBER 28
Wednesday 19th July 2017
All Saints Church Pembroke Road, Clifton, Bristol BS8 2HY
Legal packs will be available for inspection from 18:00.
The sale will begin promptly at 19:00

THE PROPERTY

A Freehold site occupying a prominent location with rural views to front and rear in the Village of Farmborough.

LOCATION

The village is situated approximately 8 miles outside the City of Bath and is also ideally located for those needing access to the adjoining City of Bristol, via the A37. The village itself affords a host of local amenities, including a local convenience store and garage, a church, a local primary school, two public houses and a village hall. There is a bus services into both Bath and Bristol with a main line service to London Paddington at Bath Spa station.

THE OPPORTUNITY

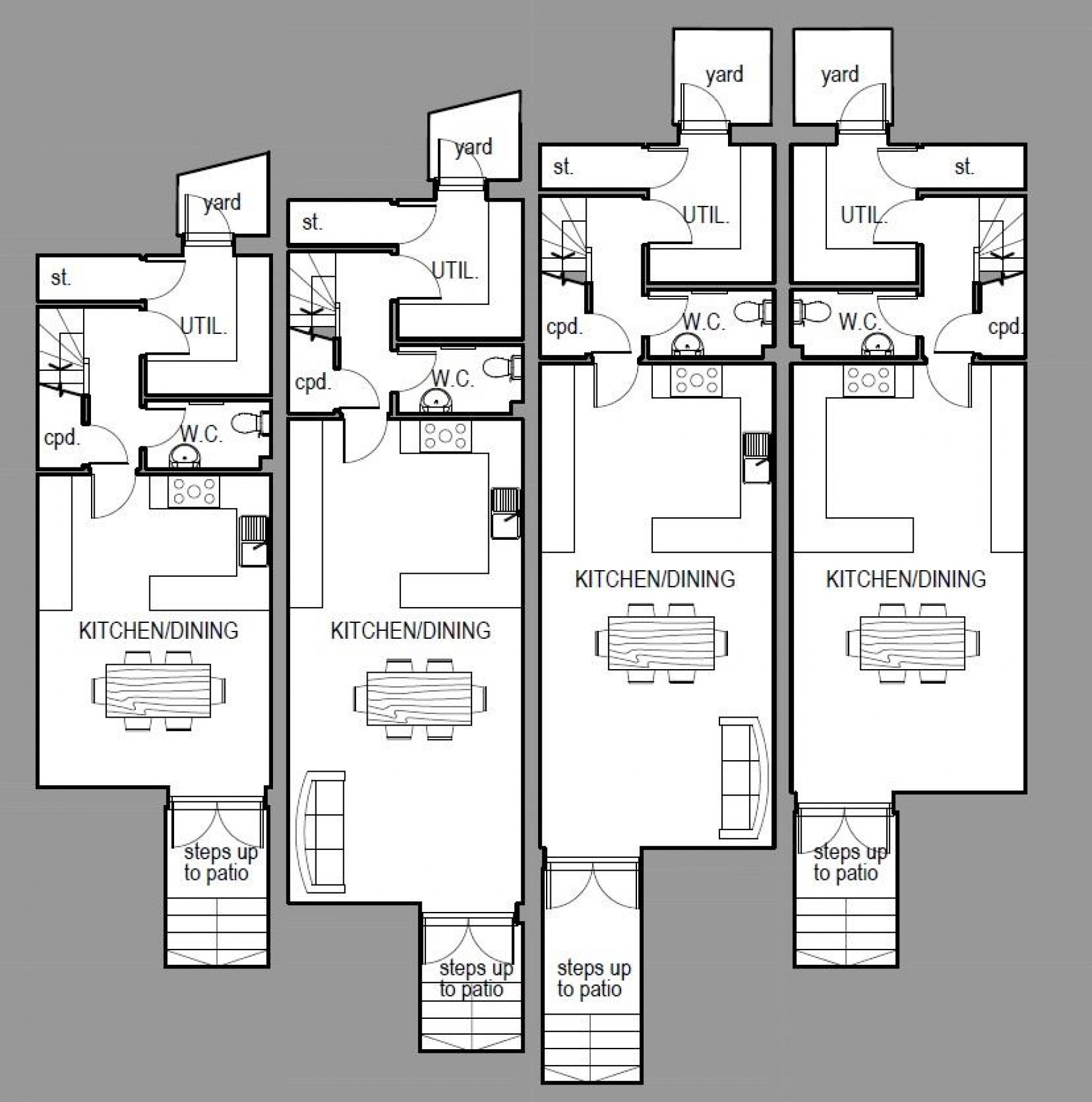
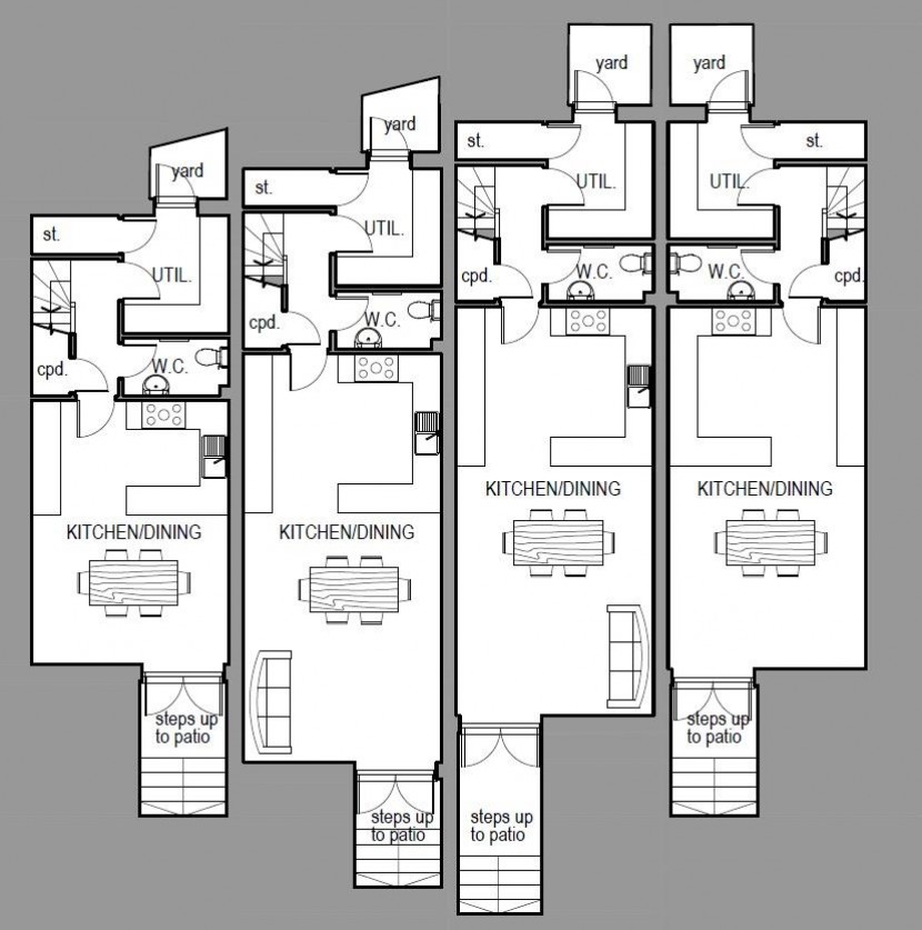
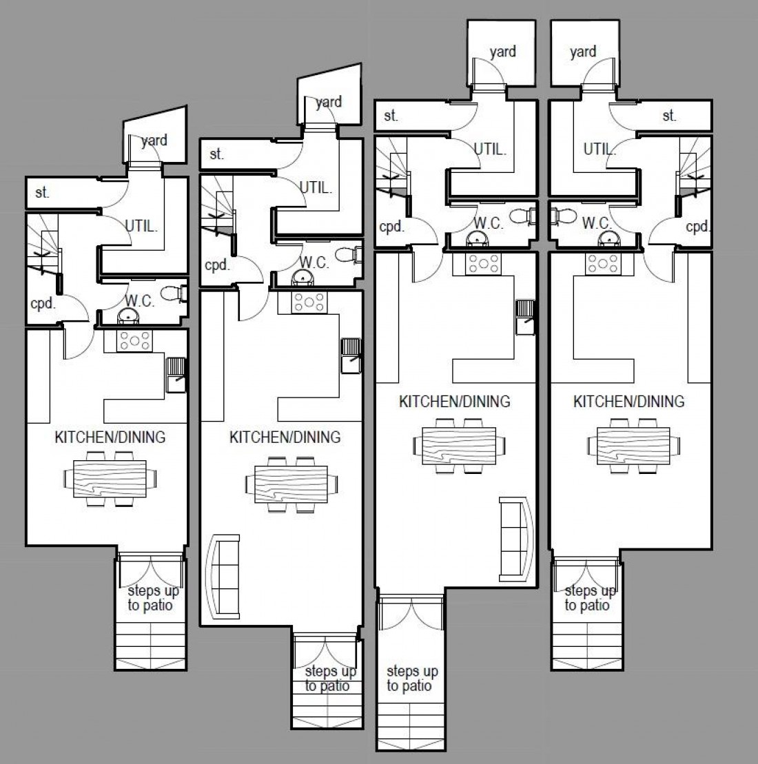
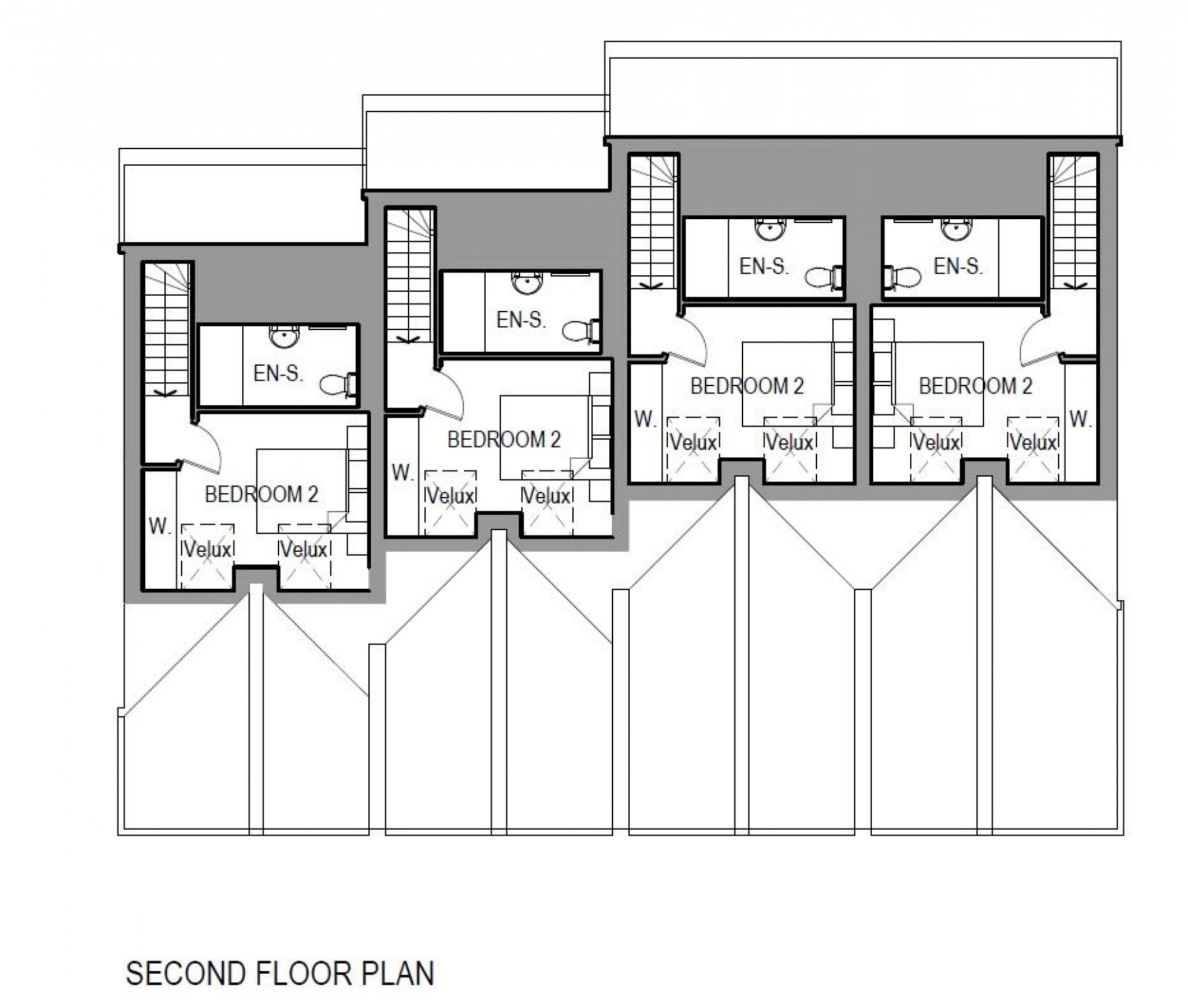
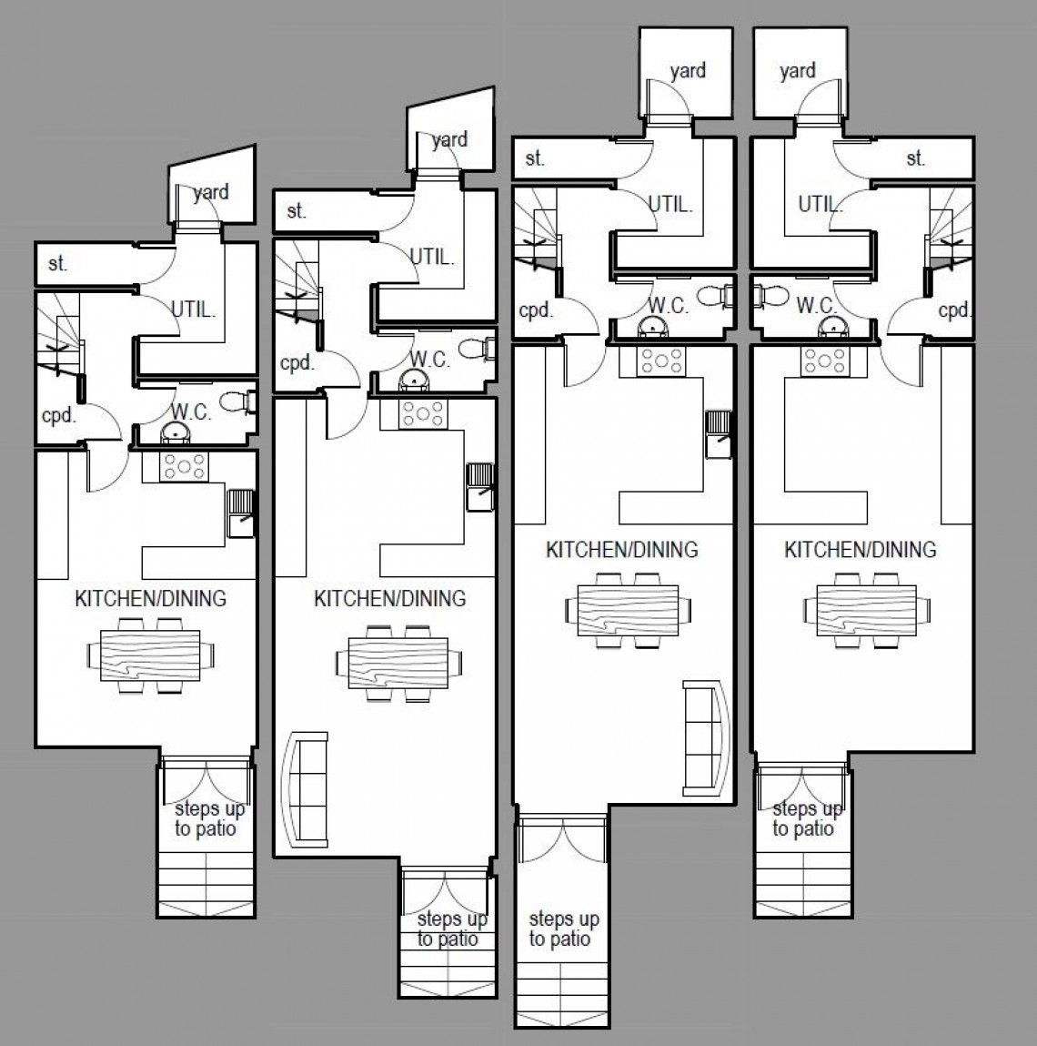
Planning has been granted to demolish the existing structures and to create a terrace of 4 x 4 bedroom homes.

SCHEDULE OF GROSS INTERNAL FLOOR AREAS:

UNIT 1 - 4 BEDROOM WITH G.I.A. OF 140.5m2
UNIT 2 - 4 BEDROOM WITH G.I.A. OF 169.5m2
UNIT 3 - 4 BEDROOM WITH G.I.A. OF 173.4m2
UNIT 4 - 4 BEDROOM WITH G.I.A. OF 165.5m2

TOTAL FLOOR AREA PROPOSED = 649m2

GDV - £1.5m

We understand the resale value is circa £375,000 per unit.

PLANNING GRANTED

Town and Country Planning Act 1990
NOTIFICATION OF DECISION
Application Type: Pl Permission (ApprovalReserved Matters)
Address to which the proposal relates: Application No: 16/04999/RES Unoccupied Bath Road Garage Bath Road Farmborough Bath
Description of Proposal: Approval of reserved matters (scale, layout and appearance) with regard to outline application 16/01614/OUT for the re-development of the site to provide 4 No. terraced houses
Application submitted by: Executors Of the Estate Of Mrs Rita Miller
The above development is APPROVED in accordance with the application, plans and drawings submitted by you subject to the condition(s

PLANNING INFORMATION

Full details of the scheme including drawings, elevations and decision notices can be downloaded with the online legal pack.


Local Information

Schools Stations Healthcare
Floorplan for *** SOLD @ AUCTION *** Floorplan for *** SOLD @ AUCTION *** Floorplan for *** SOLD @ AUCTION *** Floorplan for *** SOLD @ AUCTION ***