Lot 9

Development Site @ Kingsway Avenue, Kingswood, BS15 8AW

Sold @ Auction £399,000 +++

Bedrooms 13 Bathrooms 7 Reception 7

  • For Sale By Public Auction
  • Weds 19th July
  • All Saints Church, Clifton, BS8 2HY
  • Weekly Set Viewings
  • Download Online Legal Packs
  • JULY 2017
  • 2 X 3 Bedroom Townhouses
  • 3 X 1 Bedroom Apartments
  • 4 X 2 Bedroom Apartments
  • GDV - £1.655m +

FOR SALE BY AUCTION

*** SOLD @ AUCTION ***
GUIDE PRICE - £395K +++
SOLD @ £399K

LOT NUMBER 9
Wednesday 19th July 2017
All Saints Church Pembroke Road, Clifton, Bristol BS8 2HY
Legal packs will be available for inspection from 18:00.
The sale will begin promptly at 19:00

EXTENDED COMPLETION

Completion is set for 5 weeks or earlier by mutual consent.

VIEWING

External inspection at all times.

SOLICITORS

Sarah Chitty
Foot Anstey
sarah.chitty@footanstey.com
(0)117 915 4916

ONLINE LEGAL PACKS

Digital Copies of the Online legal pack can be downloaded Free of Charge.
Please visit the Hollis Morgan Website and select the chosen lot from our Current Auction List.
Follow the RED link to "Download Legal Packs" For the first visit you will be required to register simply with your email and a password.
Having set up your account you can download legal packs or if they are not yet available they will automatically be sent to you when we receive them.
You will be automatically updated by email if any new information is added.
*** STAY UPDATED *** By registering for the legal pack we can ensure you are kept updated on any changes to this Lot in the build up to the sale.

THE LAND

A prominent Freehold corner plot of 0.203 Acres with Road frontage onto both Kingsway Avenue and Two Mile Hill Road.

LOCATION

The land is located just off Two Mile Hill Road within the popular suburb of Kingswood. Local amenities and services are all within close proximity including the vibrant Church Road which boasts an array of independent retailers, pubs, bars, cafes and restaurants. Bristol City Centre is approximately three miles away.

THE OPPORTUNITY

Planning has been granted to erect a stylish scheme of 9 Units

GDV - £1.65m.

2 X 3 Bedroom Townhouses
3 X 1 Bedroom Apartments
4 X 2 Bedroom Apartments

PLANNING GRANTED

Decision : GRANTED subject to condition(s)
Application no: 15/04808/F
Type of application: Full Planning
Site address: Land East Side Of, Kingsway Avenue, & Site Of 124-128, Two Mile Hill Avenue, Bristol
Description of development: Erection of 2 houses and 7no. apartments with associated external works, parking and landscaping.
Applicant: Christian Grant Ltd
Agent: Angus Meek Architects Ltd
Committee/delegation date: 13.11.15
Date of Notice: 13.11.15

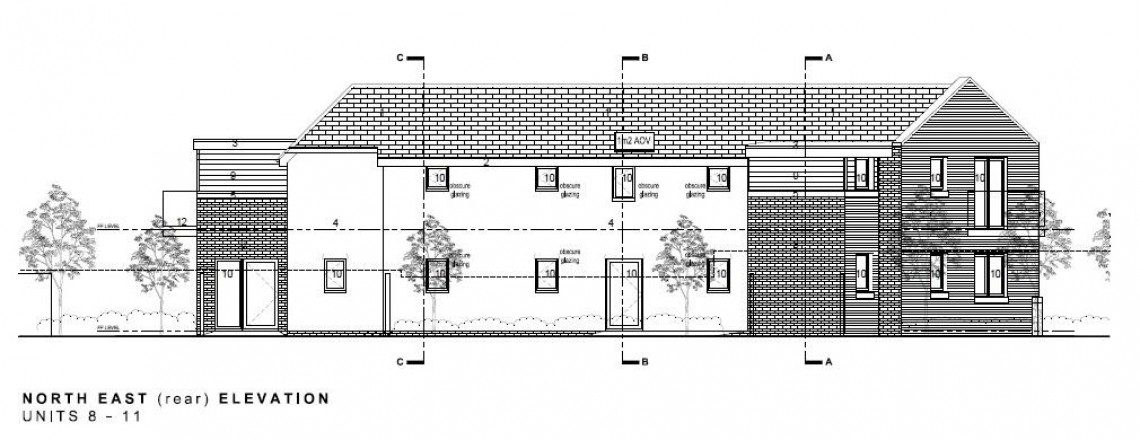
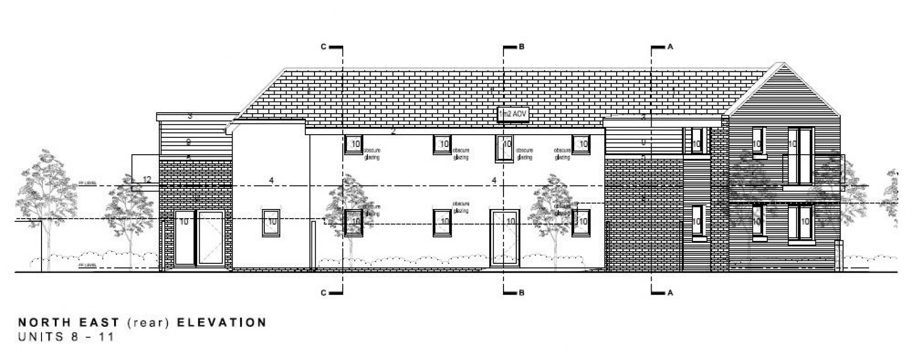
PLANS ETC

Full details of the plans, elevations and decision notices can be downloaded with the online legal pack.

NEW HOMES - GDV ADVICE

Please contact Calum Melhuish from the Hollis Morgan New Homes team to discuss GDV and details on this development.
0117 973 65 65
Calum@hollismorgan.co.uk

RENTAL APPRAISAL

Piper Property have valued the above property as follows and would be delighted to assist potential investors in achieving the strongest rental return. Piper Property have a unique approach to lettings and guarantee our clients a higher return combined with the highest service levels whilst maintaining our status as the only letting agency to have achieved the gold standard on the Bristol Ethical Lettings Charter. We cover all areas of Bristol, Bath and Cardiff from our offices and are always on hand to give free, independent advice without obligation.

About this property:

On the three bedroom townhouses we would expect to achieve a rental income in the region of £1,200 per calendar month.

On the 2 Bedroom apartments we would expect to achieve £825 per calendar month.

On the 1 bedroom apartments we would expect to achieve £725 per calendar month.

Next steps:

If you would like further information on our services or on this or any other property please contact us at our Bristol office on 01179 55 18 17 or via email at enquiries@piperproperty.co.uk. Alternatively please visit our website www.piperproperty.co.uk for information on our office locations, services and to find out how we do things differently

BUYER'S PREMIUM

Please be aware all purchasers are subject to a £750 + VAT (£900 inc VAT) buyer's premium which is ALWAYS payable upon exchange of contracts whether the sale is concluded before, during or after the auction date.

GUIDE PRICE

An indication of the seller's current minimum acceptable price at auction. The guide price or range of guide prices is given to assist consumers in deciding whether or not to pursue a purchase. It is usual, but not always the case, that a provisional reserve range is agreed between the seller and the auctioneer at the start of marketing. As the reserve is not fixed at this stage and can be adjusted by the seller at any time up to the day of the auction in the light of interest shown during the marketing period, a guide price is issued. This guide price can be shown in the form of a minimum and maximum price range within which an acceptable sale price (reserve) would fall, or as a single price figure within 10% of which the minimum acceptable price (reserve) would fall. A guide price is different to a reserve price (see separate definition). Both the guide price and the reserve price can be subject to change up to and including the day of the auction.

RESERVE PRICE

The seller's minimum acceptable price at auction and the figure below which the auctioneer cannot sell. The reserve price is not disclosed and remains confidential between the seller and the auctioneer. Both the guide price and the reserve price can be subject to change up to and including the day of the auction.

PRE AUCTION OFFERS

Some properties may be available to buy prior to the auction. Pre auction offers can be only submitted by completing the OFFER FORM which can be downloaded with the online legal pack - please email the COMPLETED form to – olly@hollismorgan.co.uk. Please note offers will not be considered until you have VIEWED the property and the COMPLETE LEGAL PACK has been released. In the event of an offer being accepted the property will only be removed from the auction and viewings stopped once contracts have successfully EXCHANGED subject to the standard auction terms and payment of the buyer’s premium ( £900 ) to Hollis Morgan. Contracts can be signed either via the solicitors or at the Hollis Morgan offices subject to appointment.

SURVEYS AND VALUATIONS

If you would like to arrange a survey or mortgage valuation of this Lot BEFORE the auction please instruct your appointed surveyor to contact Hollis Morgan and we will arrange access for them to inspect the property. Please note that buyers CANNOT attend the surveys and the surveyors are responsible for collecting and returning keys to the Hollis Morgan offices in Clifton.

BIDDING AT THE AUCTION

This property is for sale by public auction and if you intend to bid please bring the following:

Proof of identity (valid passport or photo driving licence).
Proof of address (bank statement, recent utility bill, council tax bill or tenancy agreement).
10% deposit payment.
Buyers premium payment.
Details of your solicitor.

PAYING THE DEPOSIT & BUYERS PREMIUM

We can only accept the following at the auction:

Personal or Company Cheque
Bankers Draft
Debit Card ( NOT CREDIT CARD )

TELEPHONE AND PROXY BIDDING

If you cannot attend the auction (although we strongly advise you do) you can make a TELEPHONE or PROXY BID. This authorises the auctioneer to bid on your behalf up to a pre-set limit. Forms and relevant conditions are available to download with the online legal pack. A completed form, ID and two cheques (one for the 10% deposit and one for the Buyer's Administration Fee of £900) are required by the Auction Department at least two full working days before the auction.

AUCTION BUYERS GUIDE VIDEO

We have short video guides for both buying and selling by Public Auction on the Hollis Morgan Website. If you have any further questions regarding the process please don’t hesitate to contact Auction HQ.

TESTIMONIALS

We are very proud of what our past clients have say about us - please visit the Hollis Morgan website to read their testimonials.

CHARITY OF THE YEAR

Hollis Morgan are supporting Bristol based “ Life for a Cure” as our 2017 Charity of the year which aims ‘a LIFE for a CURE’, to raise funds in support of finding the ‘Ultimate Vaccine’ for Meningitis B. We are delighted to announce that 5 % of every buyer’s premium will be donated to ‘a Life for a Cure’ which was founded as both a legacy to Ryan and to help raise awareness and valuable funds in search of the ultimate vaccine. This Bristol charity run purely on a voluntary basis is simply about working together to stop other amazing young lives being lost to meningitis. - to learn more about Ryans Story and this fantastic cause please visit there website. www.ryanbresnahan.org/ In 2016 we raised £4,000 for Bristol based housing charity “Home Start” to learn more visit the charity section of our website - www.hollismorgan.co.uk/charity/


Local Information

Schools Stations Healthcare
Floorplan for *** SOLD @ AUCTION *** Floorplan for *** SOLD @ AUCTION *** Floorplan for *** SOLD @ AUCTION ***