Sold @ Auction £498,000

The Old Forge, Limington Road, Limington, BA22 8EH

Bedrooms 20 Bathrooms 10 Reception 10

  • PLANNING GRANTED
  • Stylish Village Development
  • 5 x 4 Bedroom Houses
  • Rural Views
  • GDV £2m +

FOR SALE BY AUCTION

*** SOLD @ MAY AUCTION ***

GUIDE PRICE £460,000 +++
SOLD @ £498,000

LOT NUMBER 26
Wednesday 24th May 2017
All Saints Church Pembroke Road, Clifton, Bristol BS8 2HY
Legal packs will be available for inspection from 18:00.
The sale will begin promptly at 19:00

THE LAND

A level parcel of land of circa 1.39 Acres with derelict outbuildings and charming semi rural views over Pastureland and excellent road frontage onto Limington Road.

LOCATION

The land is situated on the edge of the picturesque village of Limington which is comprised of mostly period properties and a church (Thomas Wolsey was a rector here before becoming a cardinal during Henry VIII's reign).
Nearby Sherborne offers a comprehensive range of amenities as well as a main line railway station with direct trains to Waterloo (from 2 hours 15 minutes).
The A303 is nearby and offers excellent links to the West Country and London via the motorway network.
Bristol and Exeter airports are both approximately 40 miles away.

THE OPPORTUNITY

Planning has been granted to erect 5 stylish homes in this semi rural setting close to the Village of Limington.
We understand the resale value is in the region of £400,000 per unit with a predicted GDV of £2m +

There may be scope to further increase the density of the site subject to planning.

PLANNING GRANTED

Outline application for the erection of up to 5 dwellings (GR 354005/122444)
Application No. 15/04446/OUT
Type of application Outline Application
Case Officer Andrew Collins
Location Address The Old Forge Limington Road Limington Yeovil Somerset BA22 8EH
Ward IVELCHESTER
Parish Limington
Area EAST
Applicant Name Mr D Stark
Status Application permitted with conditions
Decision Application Permitted with Conditions
Date received 01 October 2015
Date validated 01 October 2015
Target date 26 November 2015
Target committee date
Actual committee date
Decision date 23 February 2017

PLANS ETC

Full details of the planning including drawings, elevations and floor plans can be downloaded with the online legal pack.

SCHEDULE OF ACCOMMODATION

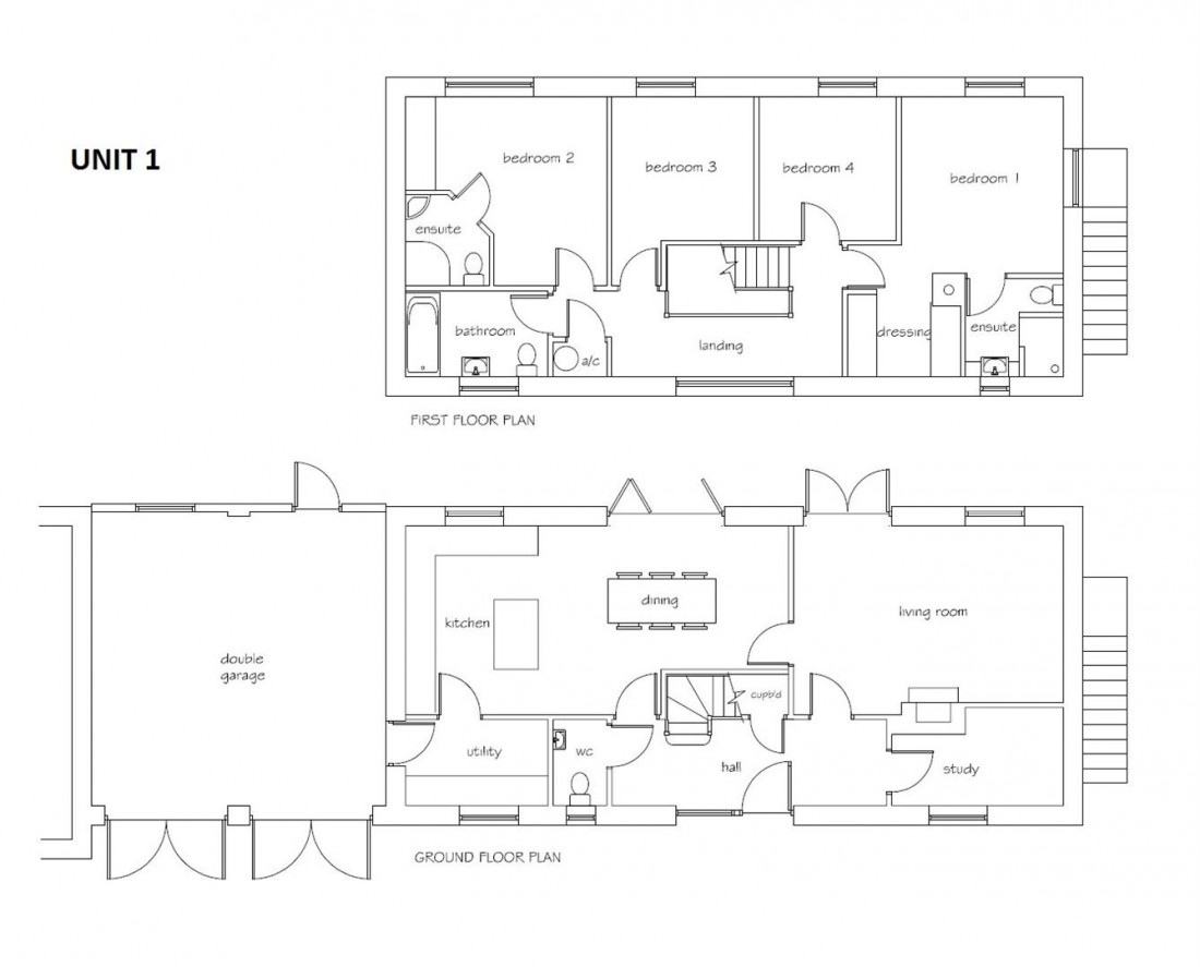
UNIT 1

GROUND FLOOR
Open Plan Living Space, Living Room, Utility, WC and Study
FIRST FLOOR
Four Bedrooms, Two En suite, Family Bathroom
OUTSIDE
Double garage, Enclosed Rear Garden

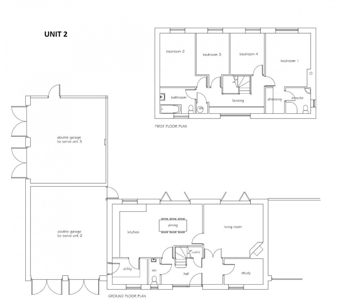
UNIT 2

GROUND FLOOR
Open Plan Living Space, Living Room, Utility, WC and Study
FIRST FLOOR
Four Bedrooms, One En suite, Family Bathroom
OUTSIDE
Double garage, Enclosed Rear Garden

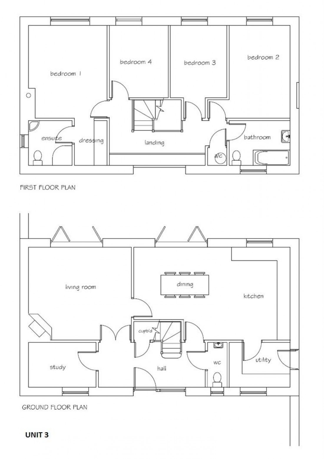
UNIT 3

GROUND FLOOR
Open Plan Living Space, Living Room, Utility, WC and Study
FIRST FLOOR
Four Bedrooms, One En suite, Family Bathroom
OUTSIDE
Two Off Street Parking Spaces, Enclosed Rear Garden

UNIT 4

GROUND FLOOR
Open Plan Living Space, Living Room, Utility, WC and Study / Bedroom 5
FIRST FLOOR
Four Bedrooms, Two En suite, Family Bathroom
OUTSIDE
Double Gargae, Two Off Street Parking Spaces, Enclosed Rear Garden

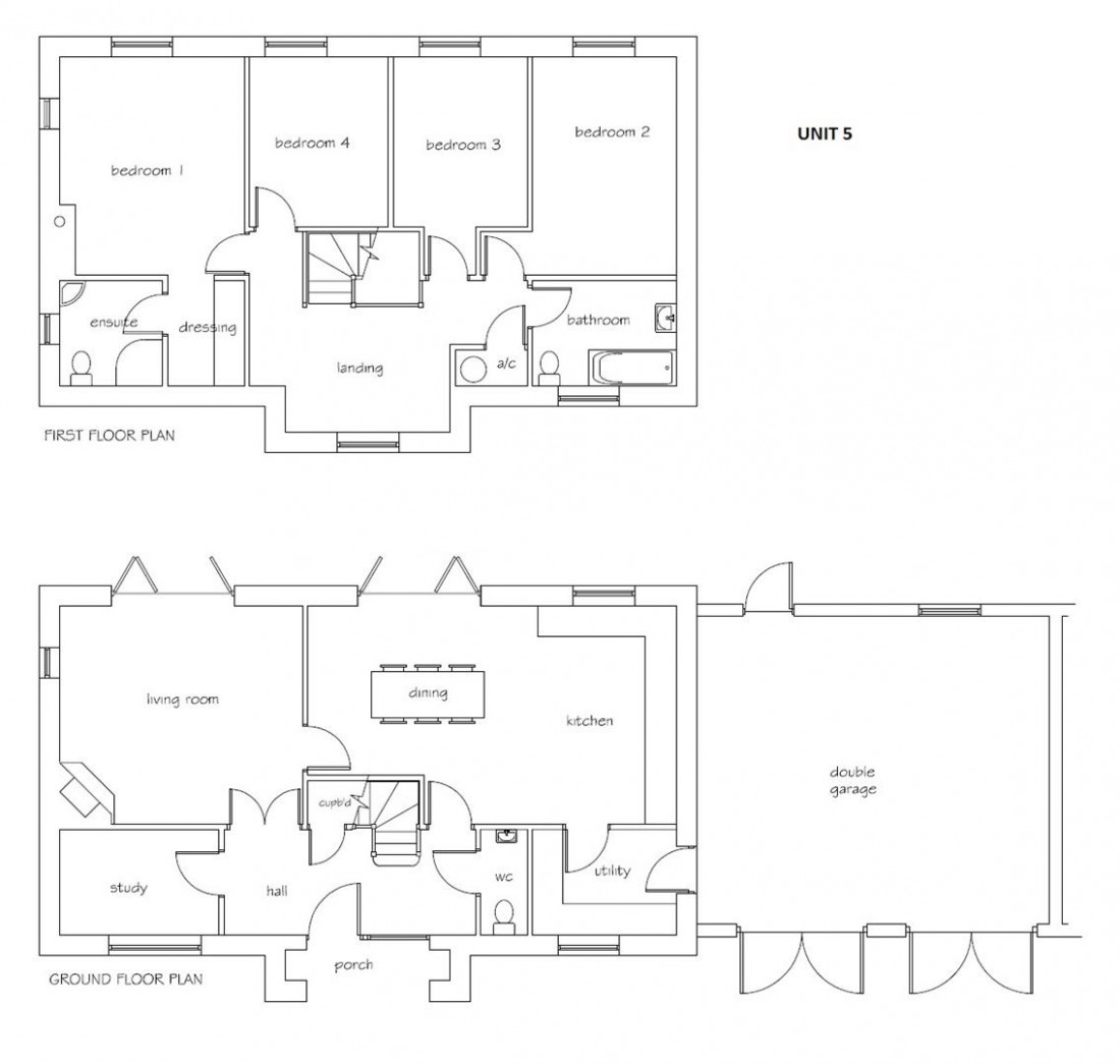
UNIT 5

GROUND FLOOR
Open Plan Living Space, Living Room, Utility, WC and Study
FIRST FLOOR
Four Bedrooms, One En suite, Family Bathroom
OUTSIDE
Double Garage, Enclosed Rear Garden


Local Information

Schools Stations Healthcare
Floorplan for *** REDUCED PRICE *** Development Site @ The Old Forge, Limington BA22 Floorplan for *** REDUCED PRICE *** Development Site @ The Old Forge, Limington BA22 Floorplan for *** REDUCED PRICE *** Development Site @ The Old Forge, Limington BA22 Floorplan for *** REDUCED PRICE *** Development Site @ The Old Forge, Limington BA22 Floorplan for *** REDUCED PRICE *** Development Site @ The Old Forge, Limington BA22