Sold @ Auction £350,000

Development Site, 111, Staple Hill Road, Fishponds, BS16 5AD

Bedrooms 7 Bathrooms 6 Reception 6

  • GDV £1M
  • PLANNING GRANTED
  • 5 X 1 BED FLATS
  • 1 X 2 BED FLAT
  • DEVELOPMENT OPPORTUNITY

FOR SALE BY AUCTION

*** SOLD @ AUCTION ***

GUIDE PRICE £325,000
SOLD @ £350,000

LOT NUMBER 5
Wednesday 24th May 2017
All Saints Church Pembroke Road, Clifton, Bristol BS8 2HY
Legal packs will be available for inspection from 18:00.
The sale will begin promptly at 19:00

THE PROPERTY

A large rectangular plot with existing detached mixed use property that has been soft stripped and ready for demolition.

LOCATON

The site is situated in a popular residential are betwixt Fishponds High St and Staple Hill Hihg Street with local amenities and service are all within close proximity.

THE OPPORTUNITY

Planning has been granted to demolish the existing building and erect a block of flats with parking to rear.

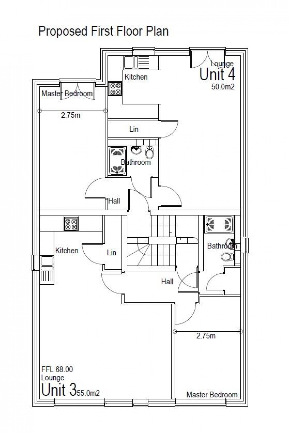
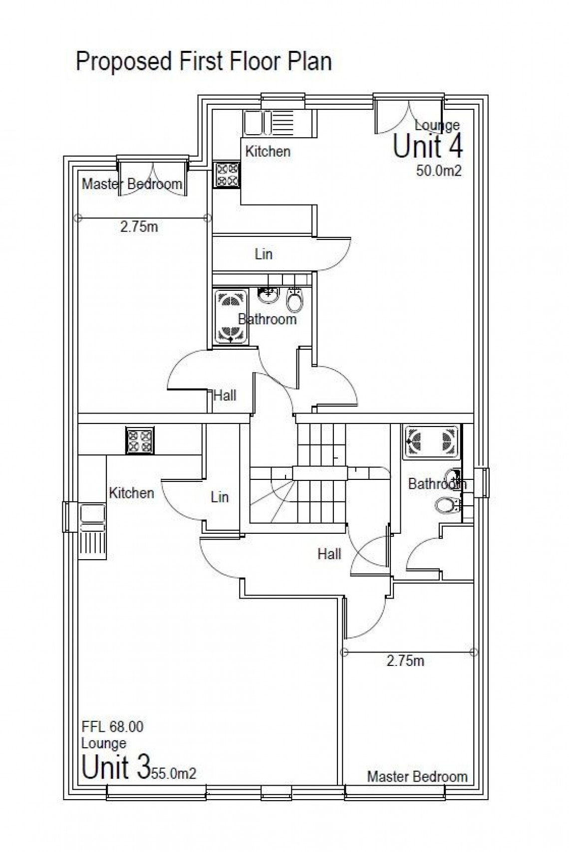
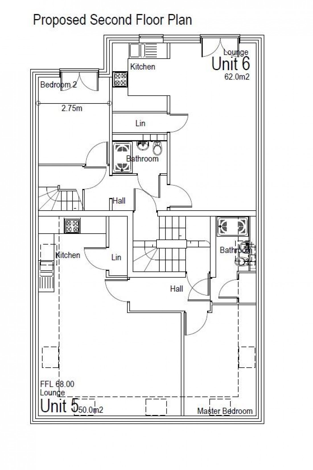
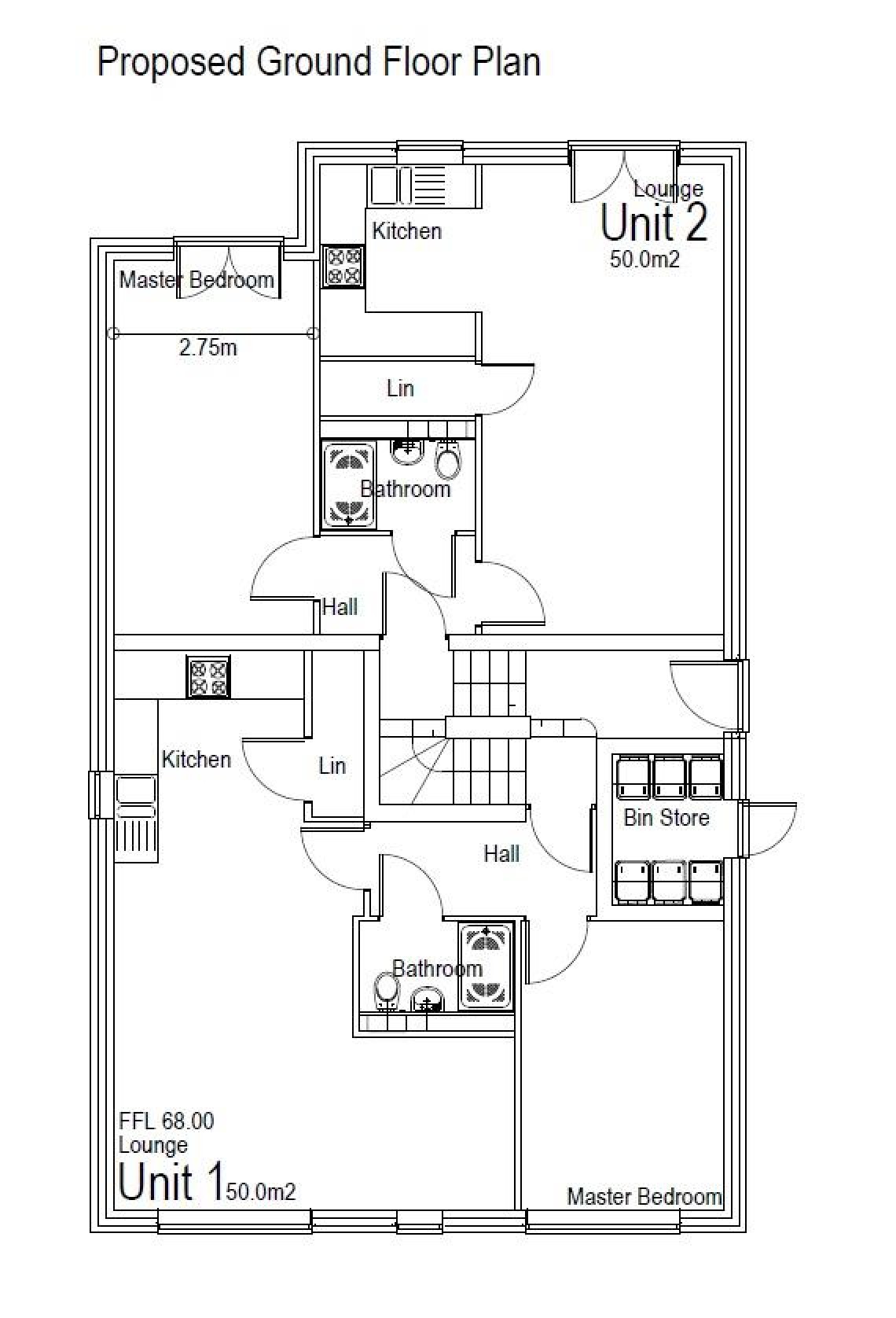
5 x 1 Bed Flats
1 x 2 Bed Flat

GDV

2 x Ground floor flats - £165,000 each
3 x 1st and 2nd floor - £160,000 each
1 x 2 Bed flat with loft room - £190,000

TOTAL - £1m

POTENTIAL RENTAL INCOME

1 bed flat – £685 pcm
2 bed flat with loft room - £800 pcm

Gross potential income £50,700 per annum

PLANNING GRANTED

Decision : GRANTED subject to condition(s)
Application no: 16/01535/F
Type of application: Full Planning
Site address: 111 Staple Hill Road, Bristol, BS16 5AD.
Description of development: Demolition of existing shop and premise and flat and construct 5 no.one bed flats and 1 no.two bed maisonette.
Applicant: Prestige Development Bristol Ltd
Agent: David Cahill Design Consultants Ltd
Committee/delegation date: 01.03.17
Date of Notice: 01.03.1


Local Information

Schools Stations Healthcare
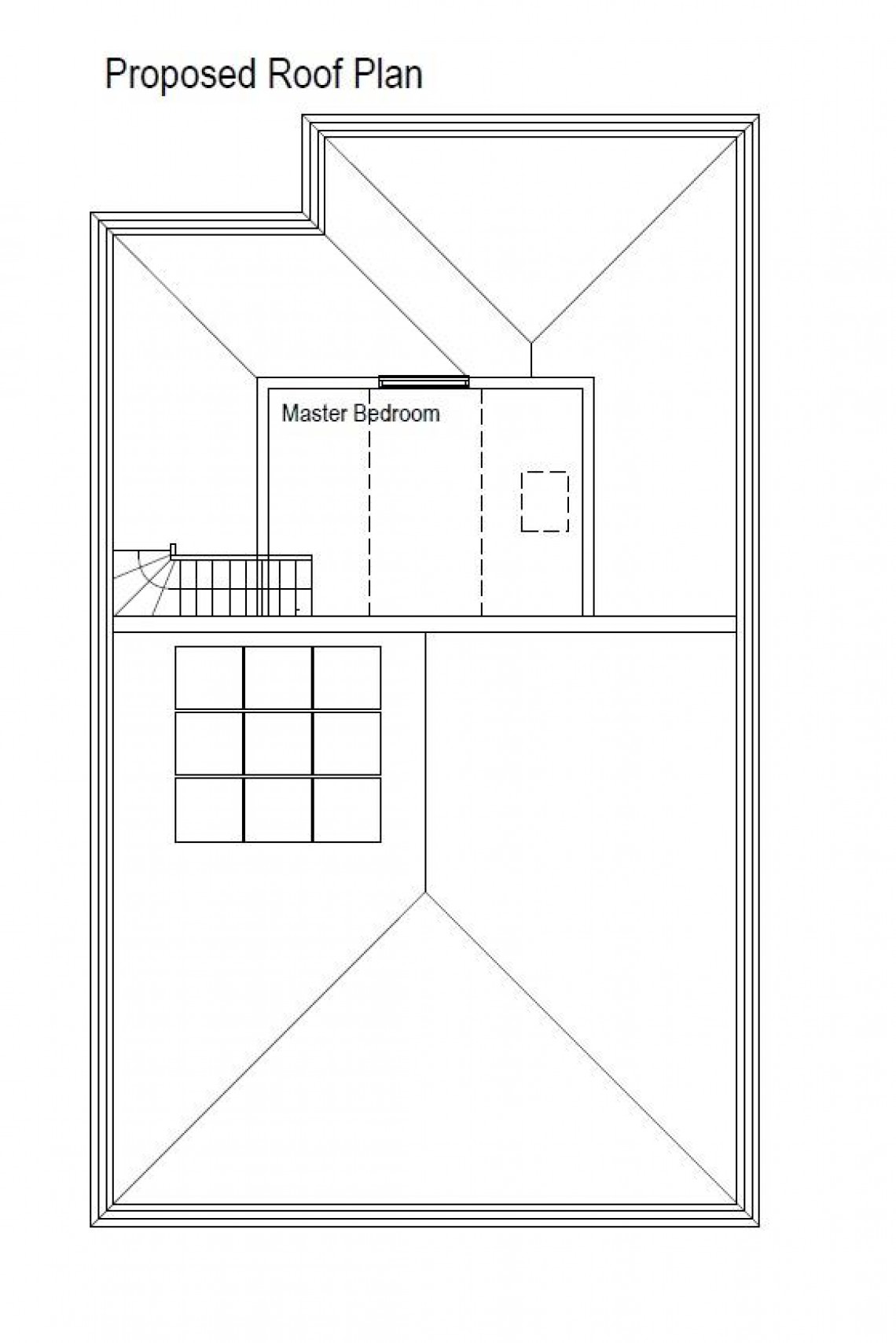
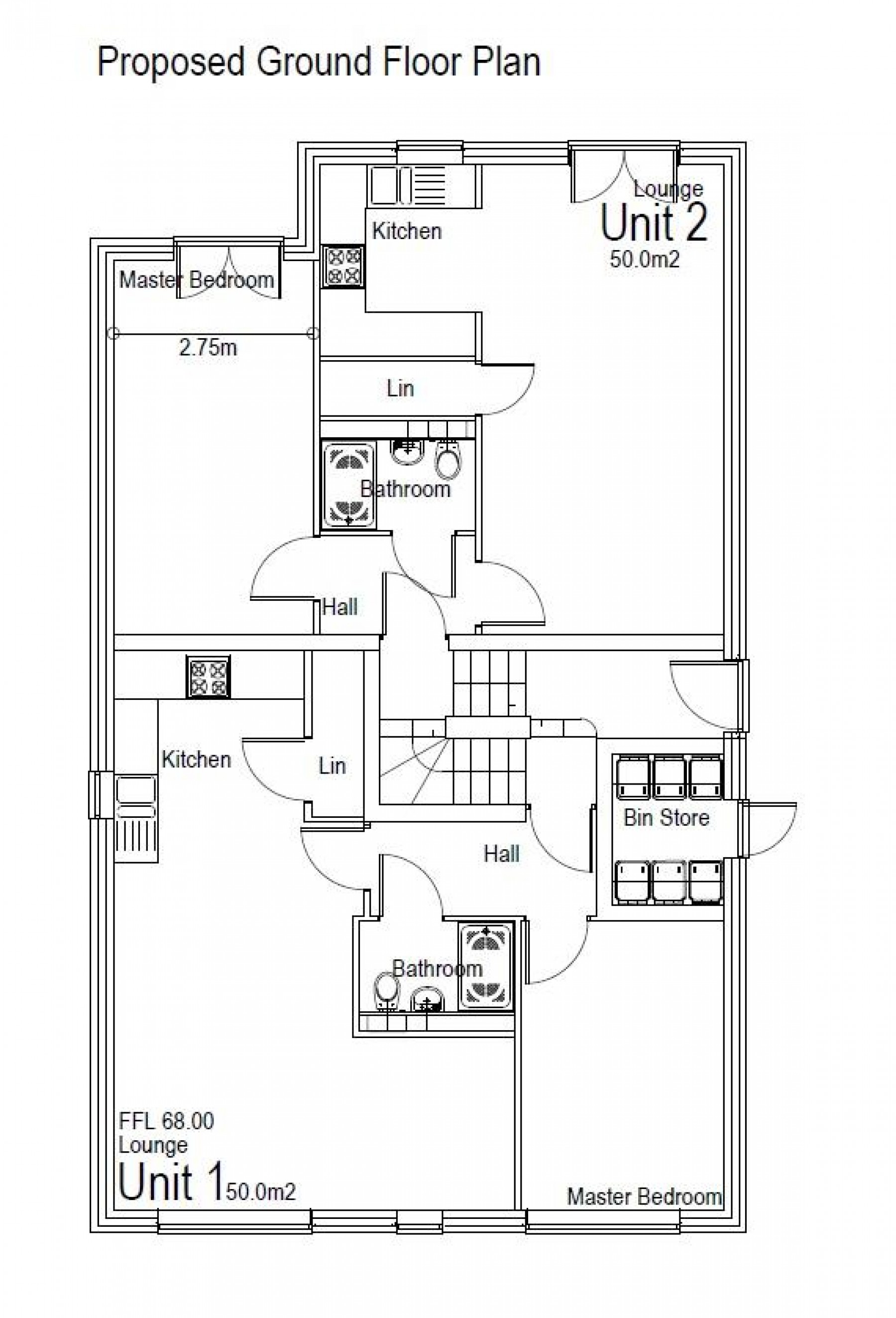
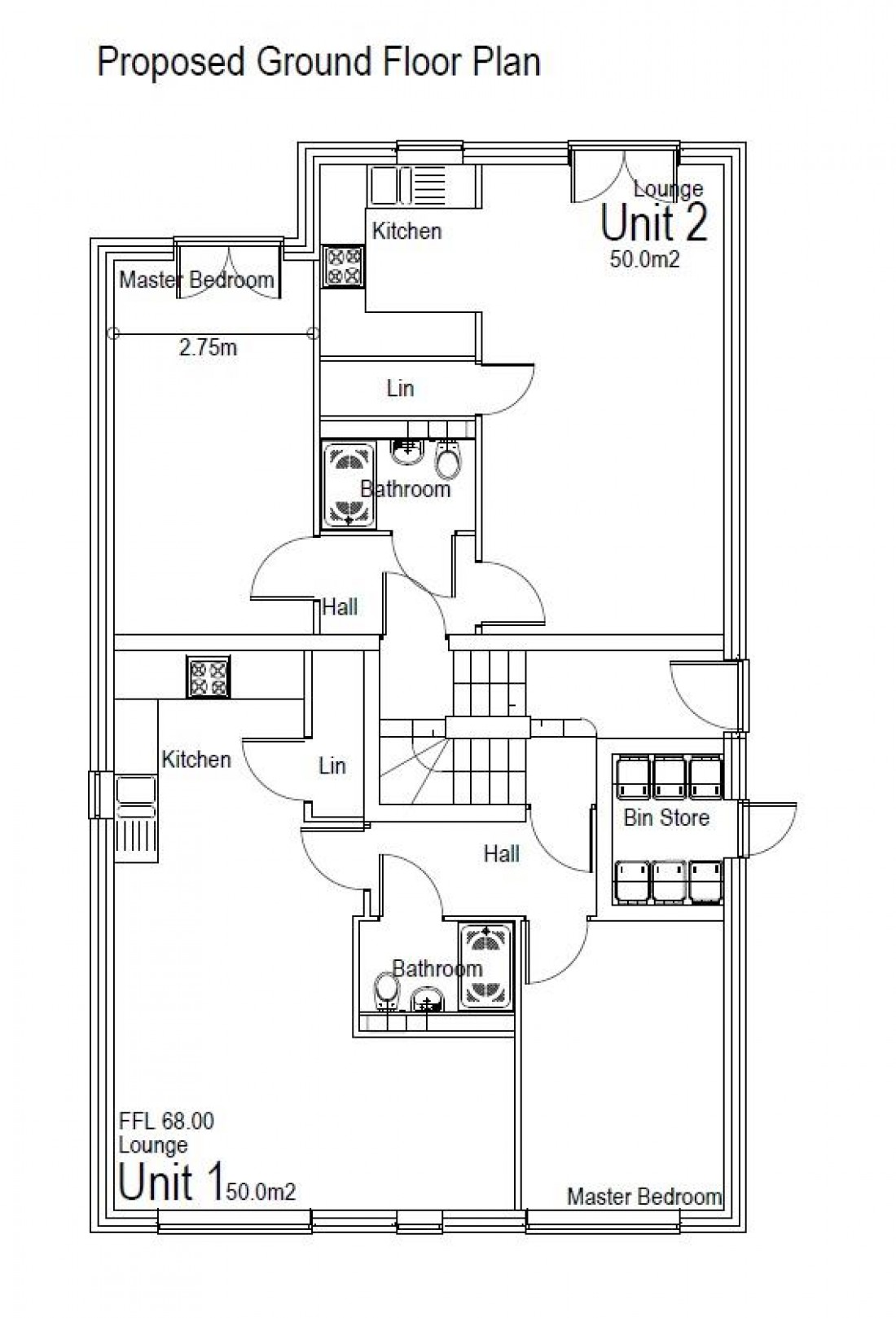
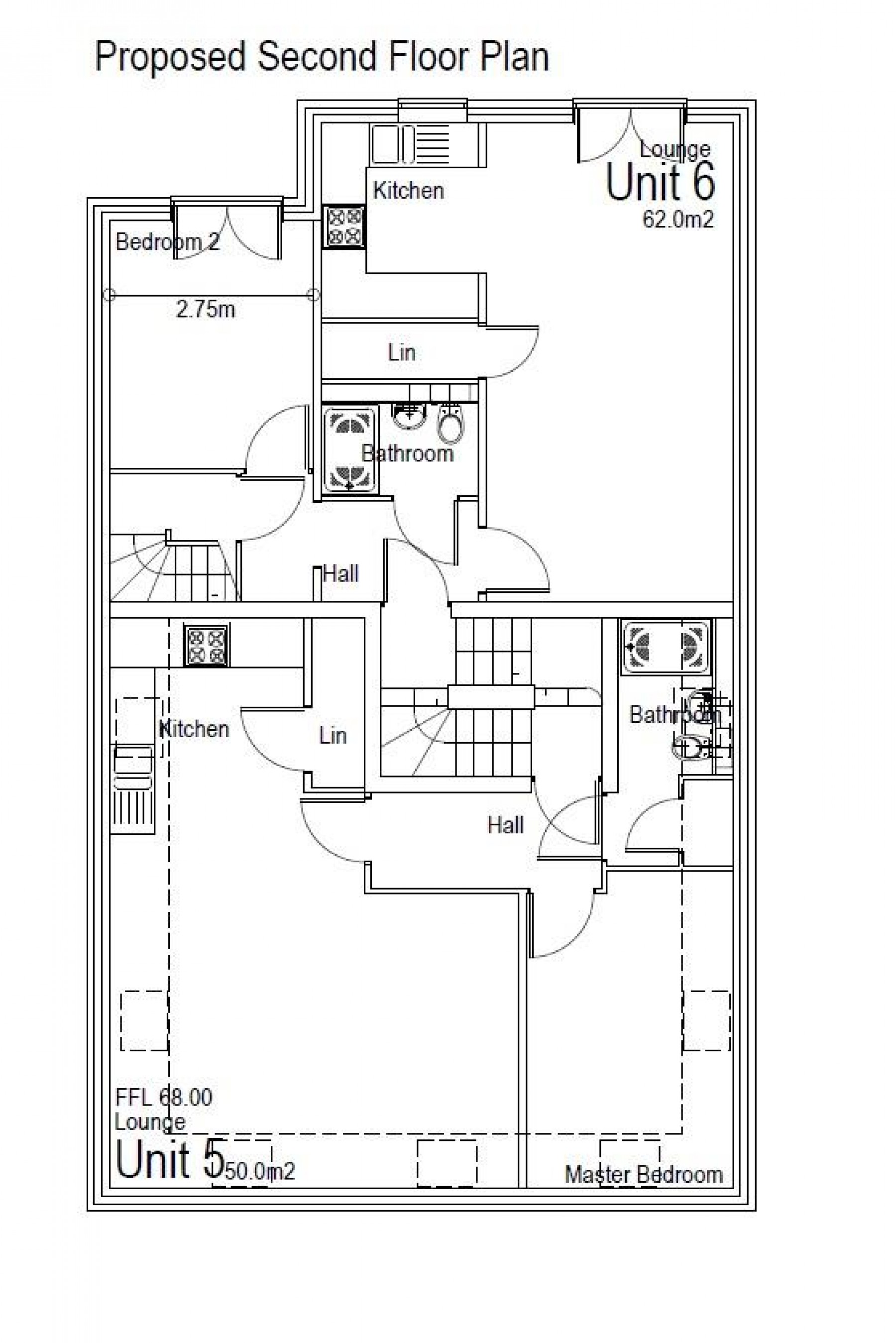
Floorplan for PLANNING GRANTED FOR 6 FLATS - GDV £1M Floorplan for PLANNING GRANTED FOR 6 FLATS - GDV £1M Floorplan for PLANNING GRANTED FOR 6 FLATS - GDV £1M Floorplan for PLANNING GRANTED FOR 6 FLATS - GDV £1M