Lot 5

Development Site, 111 Staple Hill Road, Fishponds, BS16 5AD

Sold @ Auction £350,000 +++

Bedrooms 7 Bathrooms 6 Reception 6

  • For Sale By Public Auction
  • Wednesday 24th May
  • All Saints Church, Clifton, BS8 2HY
  • Download Online Legal Packs
  • DEVELOPMENT OPPORTUNITY
  • MAY 2017
  • GDV £1M
  • PLANNING GRANTED
  • 5 X 1 BED FLATS
  • 1 X 2 BED FLAT

FOR SALE BY AUCTION

*** SOLD @ AUCTION ***

GUIDE PRICE £325,000
SOLD @ £350,000

LOT NUMBER 5
Wednesday 24th May 2017
All Saints Church Pembroke Road, Clifton, Bristol BS8 2HY
Legal packs will be available for inspection from 18:00.
The sale will begin promptly at 19:00

JOINT AGENTS

C J Hole
Downend Branch
Local gents providing advice on resale values.
T: 0117 9565 655
david.whitmee@cjhole.co.uk
www.cjhole.co.uk

VIEWING

The site is open for external inspection at all times.

SOLICITORS

Wards solicitors
Katrina Bartlett
01454 204 880
Katrina.Bartlett@wards.uk.com
19 West Walk, Yate Shopping Centre, BS37 4AX

ONLINE LEGAL PACKS

Digital Copies of the Online legal pack can be downloaded Free of Charge.
Please visit the Hollis Morgan Website and select the chosen lot from our Current Auction List.
Follow the RED link to "Download Legal Packs" For the first visit you will be required to register simply with your email and a password.
Having set up your account you can download legal packs or if they are not yet available they will automatically be sent to you when we receive them. You will be automatically updated by email if any new information is added.
*** STAY UPDATED *** By registering for the legal pack we can ensure you are kept updated on any changes to this Lot in the build up to the sale.

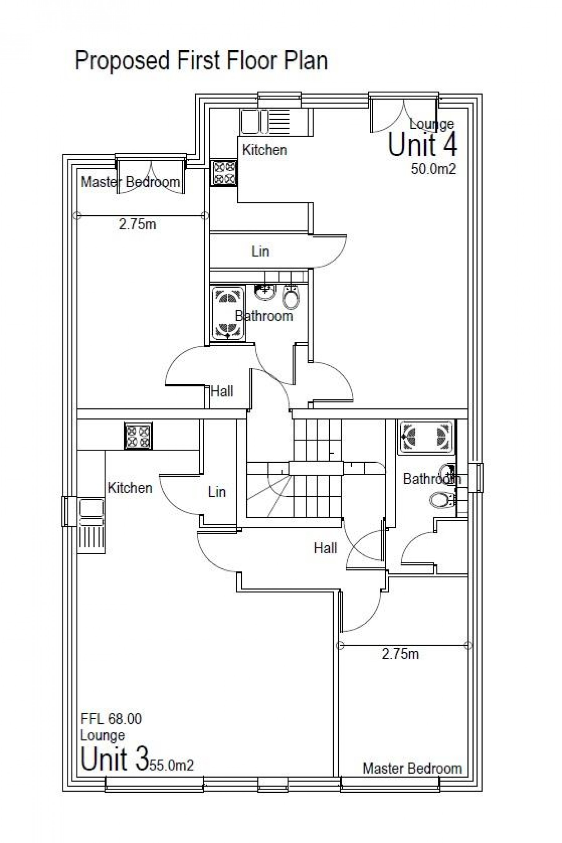
THE PROPERTY

A large rectangular plot with existing detached mixed use property that has been soft stripped and ready for demolition.

LOCATON

The site is situated in a popular residential are betwixt Fishponds High St and Staple Hill Hihg Street with local amenities and service are all within close proximity.

THE OPPORTUNITY

Planning has been granted to demolish the existing building and erect a block of flats with parking to rear.

5 x 1 Bed Flats
1 x 2 Bed Flat

GDV

2 x Ground floor flats - £165,000 each
3 x 1st and 2nd floor - £160,000 each
1 x 2 Bed flat with loft room - £190,000

TOTAL - £1m

POTENTIAL RENTAL INCOME

1 bed flat – £685 pcm
2 bed flat with loft room - £800 pcm

Gross potential income £50,700 per annum

PLANNING GRANTED

Decision : GRANTED subject to condition(s)
Application no: 16/01535/F
Type of application: Full Planning
Site address: 111 Staple Hill Road, Bristol, BS16 5AD.
Description of development: Demolition of existing shop and premise and flat and construct 5 no.one bed flats and 1 no.two bed maisonette.
Applicant: Prestige Development Bristol Ltd
Agent: David Cahill Design Consultants Ltd
Committee/delegation date: 01.03.17
Date of Notice: 01.03.1

PLAN AND INFORMAITON

All details of plans and elevations etc can be downloaded with the online legal pack.

GUIDE PRICE

An indication of the seller's current minimum acceptable price at auction. The guide price or range of guide prices is given to assist consumers in deciding whether or not to pursue a purchase. It is usual, but not always the case, that a provisional reserve range is agreed between the seller and the auctioneer at the start of marketing. As the reserve is not fixed at this stage and can be adjusted by the seller at any time up to the day of the auction in the light of interest shown during the marketing period, a guide price is issued. This guide price can be shown in the form of a minimum and maximum price range within which an acceptable sale price (reserve) would fall, or as a single price figure within 10% of which the minimum acceptable price (reserve) would fall. A guide price is different to a reserve price (see separate definition). Both the guide price and the reserve price can be subject to change up to and including the day of the auction.

RESERVE PRICE

The seller's minimum acceptable price at auction and the figure below which the auctioneer cannot sell. The reserve price is not disclosed and remains confidential between the seller and the auctioneer. Both the guide price and the reserve price can be subject to change up to and including the day of the auction.

BUYER'S PREMIUM

Please be aware all purchasers are subject to a £750 + VAT (£900 inc VAT) buyer's premium which is ALWAYS payable upon exchange of contracts whether the sale is concluded before, during or after the auction date.

PRE AUCTION OFFERS

Some properties may be available to buy prior to the auction. Pre auction offers can be only submitted by completing the OFFER FORM which can be downloaded with the online legal pack - please email the COMPLETED form to – olly@hollismorgan.co.uk. Please note offers will not be considered until you have VIEWED the property and the COMPLETE LEGAL PACK has been released. In the event of an offer being accepted the property will only be removed from the auction and viewings stopped once contracts have successfully EXCHANGED subject to the standard auction terms and payment of the buyer’s premium ( £900 ) to Hollis Morgan. Contracts can be signed either via the solicitors or at the Hollis Morgan offices subject to appointment.

EPC

For full details of the EPC please refer to the online legal pack.

AUCTION BUYERS GUIDE VIDEO

We have short video guides for both buying and selling by Public Auction on the Hollis Morgan Website. If you have any further questions regarding the process please don’t hesitate to contact Auction HQ.

BIDDING AT THE AUCTION

This property is for sale by public auction and if you intend to bid please bring the following: Proof of identity (valid passport or photo driving licence). Proof of address (bank statement, recent utility bill, council tax bill or tenancy agreement). 10% deposit payment. Buyers premium payment. Details of your solicitor.

PAYING THE DEPOSIT & BUYERS PREMIUM

We can only accept the following at the auction: Personal or Company Cheque Bankers Draft Debit Card ( NOT CREDIT CARD )

AUCTION FINANCE

Some properties may require specialist auction finance- please contact Hollis Morgan for access to expert advice and "whole of market" rates.

TELEPHONE AND PROXY BIDDING

If you cannot attend the auction (although we strongly advise you do) you can make a TELEPHONE or PROXY BID. This authorises the auctioneer to bid on your behalf up to a pre-set limit. Forms and relevant conditions are available to download with the online legal pack. A completed form, ID and two cheques (one for the 10% deposit and one for the Buyer's Administration Fee of £900) are required by the Auction Department at least two full working days before the auction.

SURVEYS AND VALUATIONS

If you would like to arrange a survey or mortgage valuation of this Lot BEFORE the auction please instruct your appointed surveyor to contact Hollis Morgan and we will arrange access for them to inspect the property. Please note that buyers CANNOT attend the surveys and the surveyors are responsible for collecting and returning keys to the Hollis Morgan offices in Clifton.

CHARITY OF THE YEAR

Hollis Morgan are supporting Bristol based “ Life for a Cure” as our 2017 Charity of the year which aims ‘a LIFE for a CURE’, to raise funds in support of finding the ‘Ultimate Vaccine’ for Meningitis B. We are delighted to announce that 5 % of every buyer’s premium will be donated to ‘a Life for a Cure’ which was founded as both a legacy to Ryan and to help raise awareness and valuable funds in search of the ultimate vaccine. This Bristol charity run purely on a voluntary basis is simply about working together to stop other amazing young lives being lost to meningitis. - to learn more about Ryans Story and this fantastic cause please visit there website. www.ryanbresnahan.org/ In 2016 we raised £4,000 for Bristol based housing charity “Home Start” to learn more visit the charity section of our website - www.hollismorgan.co.uk/charity/

TESTIMONIALS

We are very proud of what our past clients have say about us - please visit the Hollis Morgan website to read their testimonials.


Local Information

Schools Stations Healthcare
Floorplan for PLANNING GRANTED FOR 6 FLATS - GDV £1M Floorplan for PLANNING GRANTED FOR 6 FLATS - GDV £1M Floorplan for PLANNING GRANTED FOR 6 FLATS - GDV £1M Floorplan for PLANNING GRANTED FOR 6 FLATS - GDV £1M