Lot 15

Land @ 721 - 739 Bishport Avenue, Hartcliffe, BS13 0RP

Sold @ Auction £225,000 +++

Bedrooms 15 Bathrooms 9 Reception 9

  • For Sale By Public Auction
  • Wednesday 27th September
  • All Saints Church, Clifton, BS8 2HY
  • Weekly Set Viewings
  • Download Online Legal Packs
  • SEPTEMBER 2017
  • Positive Pre App for 9 Flats
  • GDV - £1.15m - £1.24m
  • Lapsed PP for 4 Houses
  • Freehold

FOR SALE BY AUCTION

LOT NUMBER 15
Wednesday 27th September 2017
All Saints Church Pembroke Road, Clifton, Bristol BS8 2HY
Legal packs will be available for inspection from 18:00.
The sale will begin promptly at 19:00

VIEWING

External inspection at all times.

SOLICITORS

Alun Rosser
Howells Solicitors
1 Court Rd, Bridgend, CF31 1BE
alun.rosser@howellslegal.com
01656 477477

ONLINE LEGAL PACKS

Digital Copies of the Online legal pack can be downloaded Free of Charge.
Please visit the Hollis Morgan Website and select the chosen lot from our Current Auction List.
Follow the RED link to "Download Legal Packs" For the first visit you will be required to register simply with your email and a password.
Having set up your account you can download legal packs or if they are not yet available they will automatically be sent to you when we receive them.
You will be automatically updated by email if any new information is added.
*** STAY UPDATED *** By registering for the legal pack we can ensure you are kept updated on any changes to this Lot in the build up to the sale.

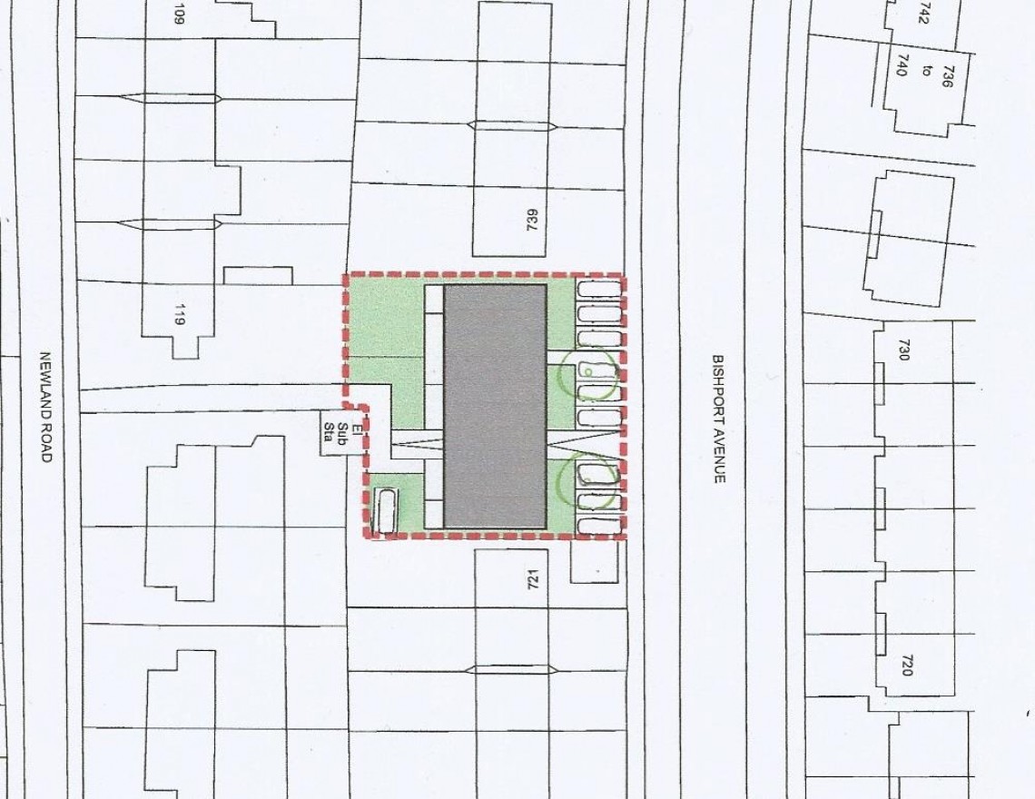
THE LAND

A Freehold parcel of Land with access from Bishport Avenue.

LOCATION

Situated in South Bristol, Hartclife is served by both Primary and Comprehensive schools, a Health Centre, numerous local Shops, Morrisons supermarket and the Imperial Park retail centre at Hartcliffe Way provides a wide range of larger stores which include B&Q and Argos, and a bus route which serves both the City Centre and Cribbs Causeway.

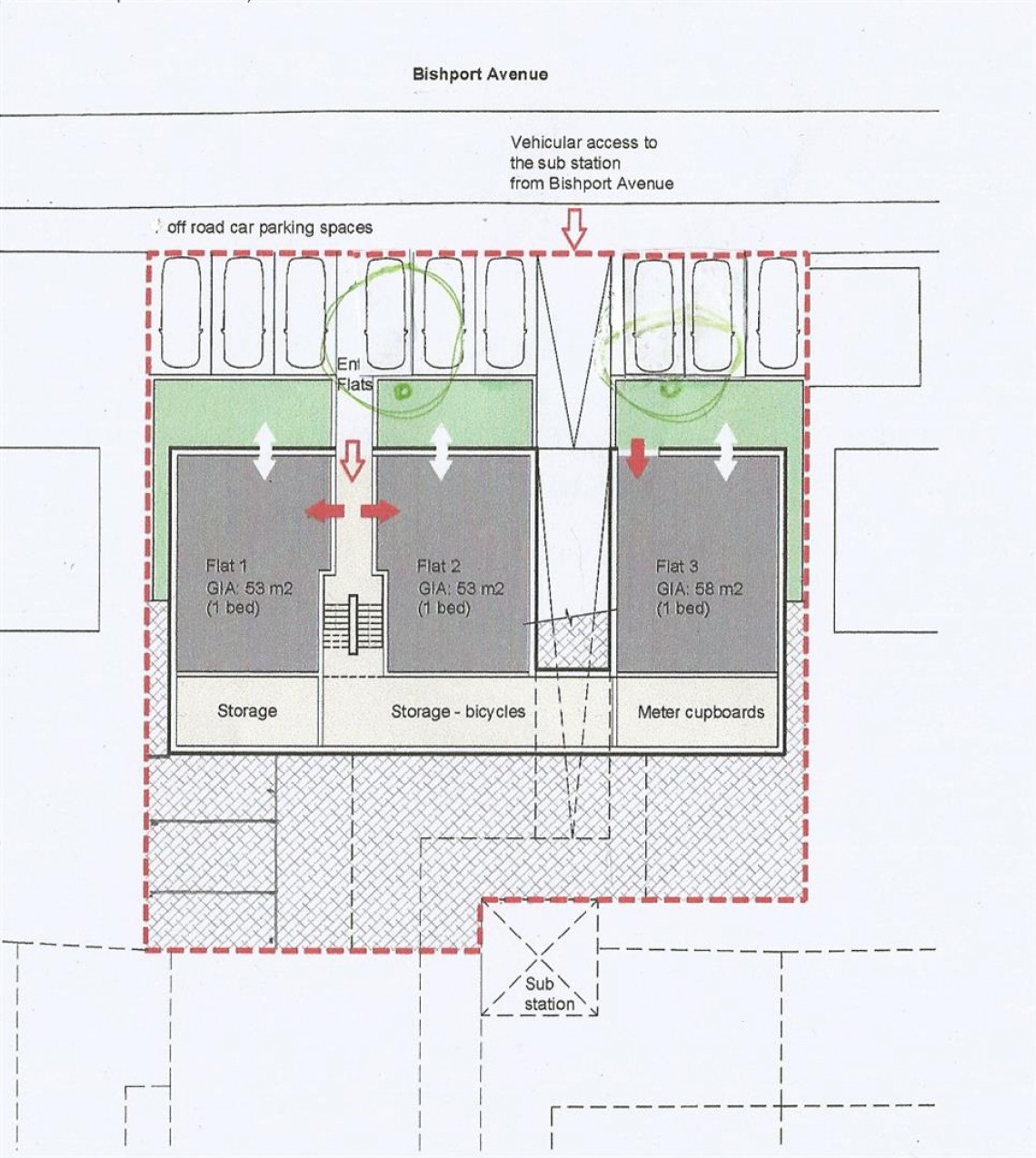
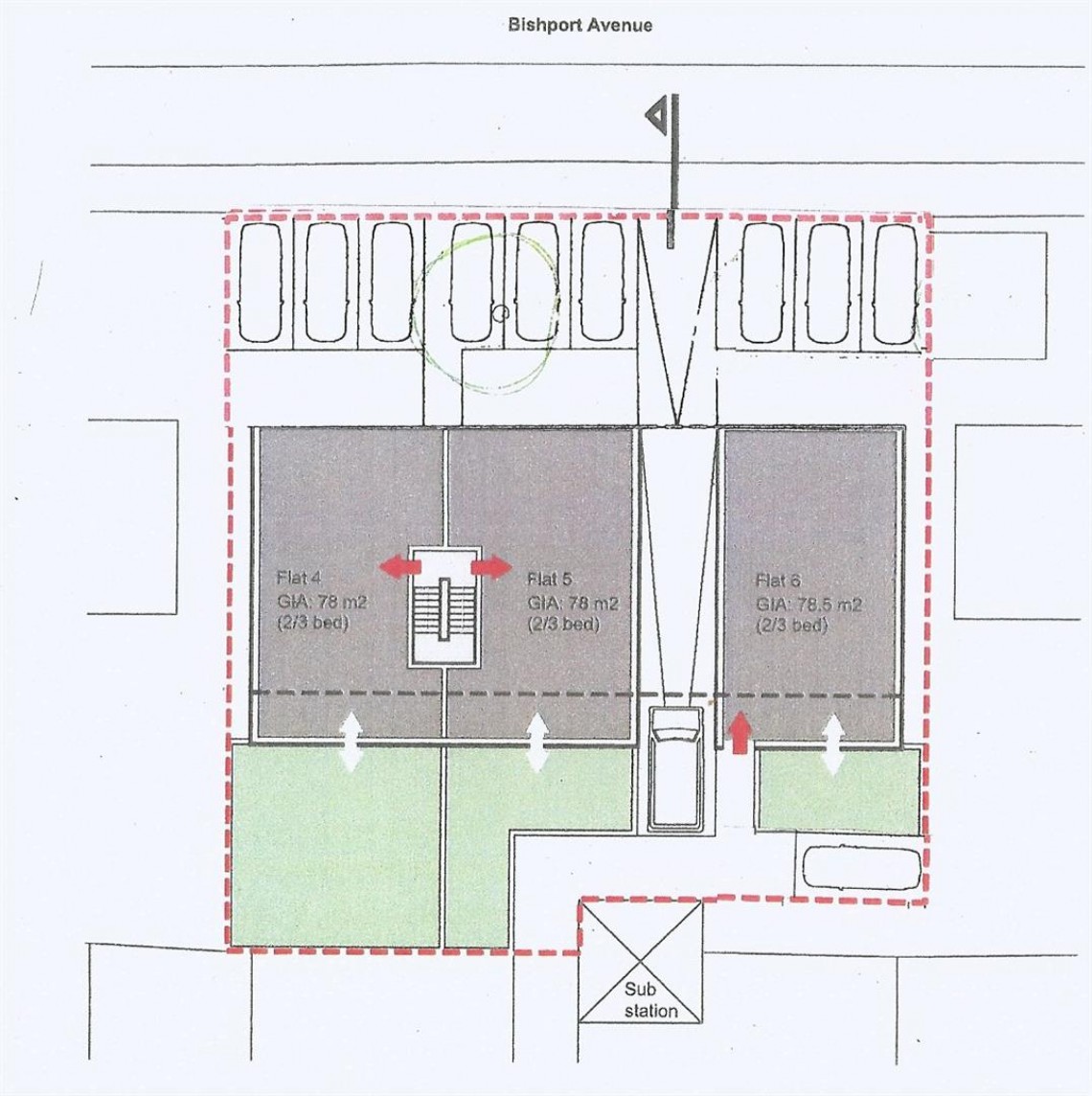
THE OPPORTUNITY

Development Opportunity for a block of 9 Flats with 10 off street parking space subject to consents.

3 x 1 Beds ( £110,000 - £120,000 per unit )
2 x 2 Beds ( £130,000 - £140,00 per unit )
4 x 2/3 Beds ( £140,000 - £150,000 per unit )
10 x Off Street Parking

GDV - £1.15m - £1.24m

Alternatively buyers may wish to pursue the lasped planning scheme for 4 houses.

SUMMARY OF PRE APP RESPONSE

SUMMARY

The general principle of the proposed development is acceptable for new residential units forming 9 apartments. The principle is accepted subject to ensuring that an adequate standard of living accommodation can be achieved and there is minimal adverse impact on the amenity of neighbouring residential proposes.

PROPOSAL

The proposed development comprises the construction of a 3 block proposal containing 9 residential units.

PRINCIPLE OF DEVELOPMENT

The site is located on the south side of Bristol, approximately 5 miles from the services within the city centre. The principle of the development is considered acceptable for 9 flats which would contribute towards meeting the Council’s housing needs, therefore meeting the requirements of the Core Strategy (Policy BCS5).
The existing street scene is predominately made up of residential properties with the interjection of some retail units along Bishport Avenue. The addition of residential flats at this location would likely improve the character of the site and allow a continuation of the urban form along Bishport Avenue. It is unclear from the information provided whether the existing land is associated with any of the existing residential dwellings and whether the current parking on this site are for the purposes of any dwellings. Any future planning application would need to clarify this.
In terms of design, the injection of sympathetic contemporary apartments would be welcomed, as there appears to be a range of designs along Bishport Avenu

FLAT SPECIFICATION

Flat 1
1 Bed / 51 m2

Flat 2
1 Bed / 51 m2

Flat 3
1 Bed / 55 m2

Flat 4
2/3 Bed 78 m2

Flat 5
2/3 Bed 78 m2

Flat 6
3 Bed 84.5 m2

Flat 7
2 bed 70 m2

Flat 8
2 Bed 70 m2

Flat 9
2/3 Bed 75 m2

LAPSED PLANNING 4 HOUSES

Reference 09/03961/F
Application Received Wed 07 Oct 2009
Application Validated Wed 07 Oct 2009
Address Land Adjacent To 721 Bishport Avenue Bristol
Proposal Construct 2 no. two bedroom semi detached houses and 2 no. three bedroom semi detached houses.
Status Decided
Decision GRANTED subject to condition(s)
Decision Issued Date Fri 04 Feb 2011
Appeal Status Unknown

PLANNING INFORMATION AND PRE APP

Please refer to online legal pack for further information.

NEW HOMES GDV ADVICE

Please contact Calum Melhuish from the Hollis Morgan New Homes team to discuss GDV and details on this development.
0117 973 65 65
Calum@hollismorgan.co.uk

RENTAL APPRAISAL

The local lettings experts say:

The Bristol Residential Letting Co. are confident this property would make a good rental investment. Don McKeever of The Bristol Residential Letting Co suggests a rent in the region of:
1 bedroom flat - £650pcm
2 bedroom flat - £775pcm
2/3 bedroom flat - £825pcm
If you would like to discuss more detail on the potential for rental, you can call Don (0117 370 8818) for a no obligation discussion. He will be very happy to advise on maximising the return on this property.

BUYER'S PREMIUM

Please be aware all purchasers are subject to a £750 + VAT (£900 inc VAT) buyer's premium which is ALWAYS payable upon exchange of contracts whether the sale is concluded before, during or after the auction date.

GUIDE PRICE

An indication of the seller's current minimum acceptable price at auction. The guide price or range of guide prices is given to assist consumers in deciding whether or not to pursue a purchase. It is usual, but not always the case, that a provisional reserve range is agreed between the seller and the auctioneer at the start of marketing. As the reserve is not fixed at this stage and can be adjusted by the seller at any time up to the day of the auction in the light of interest shown during the marketing period, a guide price is issued. This guide price can be shown in the form of a minimum and maximum price range within which an acceptable sale price (reserve) would fall, or as a single price figure within 10% of which the minimum acceptable price (reserve) would fall. A guide price is different to a reserve price (see separate definition). Both the guide price and the reserve price can be subject to change up to and including the day of the auction.

RESERVE PRICE

The seller's minimum acceptable price at auction and the figure below which the auctioneer cannot sell. The reserve price is not disclosed and remains confidential between the seller and the auctioneer. Both the guide price and the reserve price can be subject to change up to and including the day of the auction.

PRE AUCTION OFFERS

Some properties may be available to buy prior to the auction. Pre auction offers can be only submitted by completing the OFFER FORM which can be downloaded with the online legal pack - please email the COMPLETED form to – olly@hollismorgan.co.uk. Please note offers will not be considered until you have VIEWED the property and the COMPLETE LEGAL PACK has been released. In the event of an offer being accepted the property will only be removed from the auction and viewings stopped once contracts have successfully EXCHANGED subject to the standard auction terms and payment of the buyer’s premium ( £900 ) to Hollis Morgan. Contracts can be signed either via the solicitors or at the Hollis Morgan offices subject to appointment.

SURVEYS AND VALUATIONS

If you would like to arrange a survey or mortgage valuation of this Lot BEFORE the auction please instruct your appointed surveyor to contact Hollis Morgan and we will arrange access for them to inspect the property. Please note that buyers CANNOT attend the surveys and the surveyors are responsible for collecting and returning keys to the Hollis Morgan offices in Clifton.

BIDDING AT THE AUCTION

This property is for sale by public auction and if you intend to bid please bring the following:

Proof of identity (valid passport or photo driving licence).
Proof of address (bank statement, recent utility bill, council tax bill or tenancy agreement).
10% deposit payment.
Buyers premium payment.
Details of your solicitor.

PAYING THE DEPOSIT & BUYERS PREMIUM

We can only accept the following at the auction:

Personal or Company Cheque
Bankers Draft
Debit Card ( NOT CREDIT CARD )

TELEPHONE AND PROXY BIDDING

If you cannot attend the auction (although we strongly advise you do) you can make a TELEPHONE or PROXY BID. This authorises the auctioneer to bid on your behalf up to a pre-set limit. Forms and relevant conditions are available to download with the online legal pack. A completed form, ID and two cheques (one for the 10% deposit and one for the Buyer's Administration Fee of £900) are required by the Auction Department at least two full working days before the auction.

AUCTION BUYERS GUIDE VIDEO

We have short video guides for both buying and selling by Public Auction on the Hollis Morgan Website. If you have any further questions regarding the process please don’t hesitate to contact Auction HQ.

TESTIMONIALS

We are very proud of what our past clients have say about us - please visit the Hollis Morgan website to read their testimonials.

CHARITY OF THE YEAR

Hollis Morgan are supporting Bristol based “ Life for a Cure” as our 2017 Charity of the year which aims ‘a LIFE for a CURE’, to raise funds in support of finding the ‘Ultimate Vaccine’ for Meningitis B. We are delighted to announce that 5 % of every buyer’s premium will be donated to ‘a Life for a Cure’ which was founded as both a legacy to Ryan and to help raise awareness and valuable funds in search of the ultimate vaccine. This Bristol charity run purely on a voluntary basis is simply about working together to stop other amazing young lives being lost to meningitis. - to learn more about Ryans Story and this fantastic cause please visit there website. www.ryanbresnahan.org/ In 2016 we raised £4,000 for Bristol based housing charity “Home Start” to learn more visit the charity section of our website - www.hollismorgan.co.uk/charity/


Local Information

Schools Stations Healthcare