Sold @ Auction £520,000

Land to rear, 57 - 59, High Street, Westbury-On-Trym, BS9 3ED

Bedrooms 12 Bathrooms 4 Reception 4

  • PLANNING GRANTED
  • 3 X 3 Bed Detached Houses
  • 950 Sq Ft Per Unit
  • Level Access to High Street
  • DEVELOPMENT OPPORTUNITY

FOR SALE BY AUCTION

*** SOLD PRIOR TO AUCTION ***

GUIDE £470,000
SOLD PRIOR @ £520,000

LOT NUMBER 10
Thursday 6th April 2017
All Saints Church Pembroke Road, Clifton, Bristol BS8 2HY
Legal packs will be available for inspection from 18:00.
The sale will begin promptly at 19:00

THE LAND

An enclosed level site of circa 0.2 acre with excellent access to Westbury High Street.
Vehicular Access from Westfield Road.
All services are connected - refer to legal pack.
Please note that the entire driveway outlined in red is not included in the sale - please refer to legal pack.

LOCATION

Westbury-on-Trym lies to the North West of Bristol's City Centre and is advantageously placed with a host of amenities on the doorstep. These include primary schools (Elmlea and W-O-T Primary) as well as secondary schools, state and independent.
There is open parkland and woodland walks with Durdham Downs and the Kings Weston Estate respectively nearby.
For health and leisure there are sports clubs and tennis clubs (the closest of which is within the adjacent University campus) as well as golf courses.
For the commuter there is good ease of access to the motorway networks, M5, M4, M32 and Bristol's commercial centre.

THE OPPORTUNITY

DEVELOPMENT OPPORTUNITY

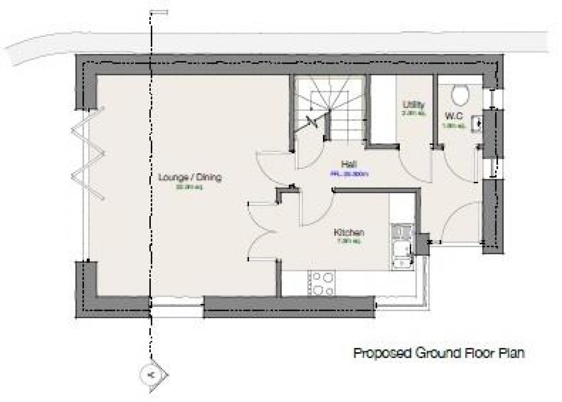
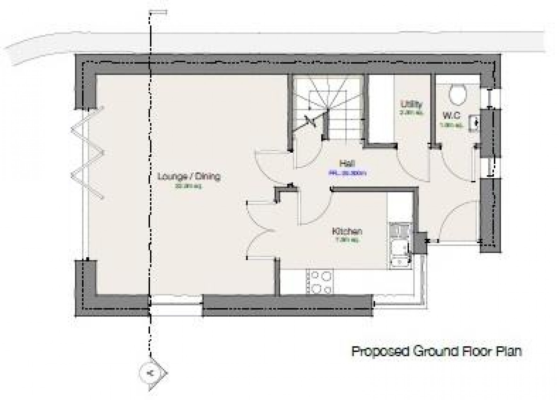
Planning has been granted to demolish the existing outbuildings and to erect 3 x 3 Bedroom 950 Sq Ft Detached Houses with private gardens.

We understand the resale value of each unit is in the region of £475,000 - £500,000

There may be scope to increase the values if the units are designed specifically targeting over 65's given the level pedestrian access to Westbury High Street.

ORIGINAL PLANNING GRANTED ( 2 HOUSES )

Reference 16/00340/F
Alternative Reference PP-04628368
Application Received Fri 22 Jan 2016
Application Validated Mon 01 Feb 2016
Address 57-59 High Street Westbury Bristol BS9 3ED
Proposal Demolition of single-storey outbuildings to rear. Material change of use of yard from light industry (B1c) through erection of two no. two-storey single dwelling houses (Use Class C3) with three no. bedrooms, private gardens and off-street parking.
Status Decided
Decision GRANTED subject to condition(s)
Decision Issued Date Mon 18 Jul 2016

NEW PLANNING GRANTED ( 3RD HOUSE )

Reference 16/06563/F
Alternative Reference PP-05668539
Application Received Thu 01 Dec 2016
Application Validated Thu 01 Dec 2016
Address Land To The Rear 57-59 High Street Westbury Bristol BS9 3ED
Proposal Erection of detached dwelling.
Status Decided
Decision GRANTED subject to condition(s)
Decision Issued Date Fri 03 Feb 2017

NEW HOMES - GDV ADVICE

Please contact Calum Melhuish from the Hollis Morgan New Homes team to discuss GDV and details on this development.
0117 973 65 65
Calum@hollismorgan.co.uk

PLANNING

Full details of the plans, elevations, decision notices etc can be downloaded with the online legal pack.


Local Information

Schools Stations Healthcare
Floorplan for *** SOLD @ HOLLIS MORGAN APRIL AUCTION ***