Lot 10

Land to the rear of, 57-59 High Street, Westbury-On-Trym, BS9 3ED

Sold @ Auction £520,000 +++

Bedrooms 12 Bathrooms 4 Reception 4

  • For Sale By Public Auction
  • Thursday 6th April
  • All Saints Church, Clifton, BS8 2HY
  • Weekly Set Viewings
  • Download Online Legal Packs
  • APRIL 2017
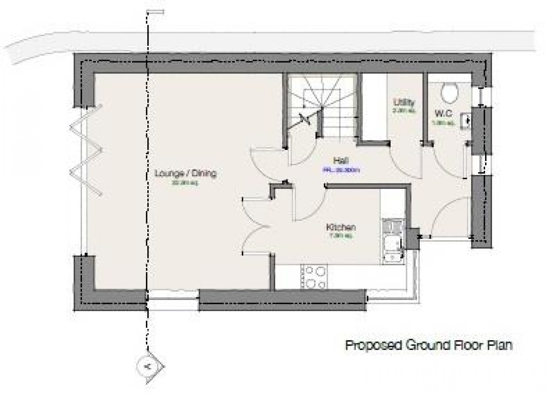
  • 3 X 3 Bed Detached Houses
  • 950 Sq Ft Per Unit
  • Level Access to High Street
  • DEVELOPMENT OPPORTUNITY

FOR SALE BY AUCTION

*** SOLD PRIOR TO AUCTION ***

GUIDE £470,000
SOLD PRIOR @ £520,000

LOT NUMBER 10
Thursday 6th April 2017
All Saints Church Pembroke Road, Clifton, Bristol BS8 2HY
Legal packs will be available for inspection from 18:00.
The sale will begin promptly at 19:00

VIEWINGS

Viewings by appointment with Hollis Morgan
Please contact Calum Melhuish - 0117 973 6565
calum@hollismorgan.co.uk

SOLICITORS

Julian Chapman
Julian@devlaw.co.uk
Devereux & Co
T : (0117) 941 9056
F : (0117) 959 3355

ONLINE LEGAL PACKS

Digital Copies of the Online legal pack can be downloaded Free of Charge.
Please visit the Hollis Morgan Website and select the chosen lot from our Current Auction List.
Follow the RED link to "Download Legal Packs" For the first visit you will be required to register simply with your email and a password.
Having set up your account you can download legal packs or if they are not yet available they will automatically be sent to you when we receive them.
You will be automatically updated by email if any new information is added.
*** STAY UPDATED *** By registering for the legal pack we can ensure you are kept updated on any changes to this Lot in the build up to the sale.

THE LAND

An enclosed level site of circa 0.2 acre with excellent access to Westbury High Street.
Vehicular Access from Westfield Road.
All services are connected - refer to legal pack.
Please note that the entire driveway outlined in red is not included in the sale - please refer to legal pack.

LOCATION

Westbury-on-Trym lies to the North West of Bristol's City Centre and is advantageously placed with a host of amenities on the doorstep. These include primary schools (Elmlea and W-O-T Primary) as well as secondary schools, state and independent.
There is open parkland and woodland walks with Durdham Downs and the Kings Weston Estate respectively nearby.
For health and leisure there are sports clubs and tennis clubs (the closest of which is within the adjacent University campus) as well as golf courses.
For the commuter there is good ease of access to the motorway networks, M5, M4, M32 and Bristol's commercial centre.

THE OPPORTUNITY

DEVELOPMENT OPPORTUNITY

Planning has been granted to demolish the existing outbuildings and to erect 3 x 3 Bedroom 950 Sq Ft Detached Houses with private gardens.

We understand the resale value of each unit is in the region of £475,000 - £500,000

There may be scope to increase the values if the units are designed specifically targeting over 65's given the level pedestrian access to Westbury High Street.

ORIGINAL PLANNING GRANTED ( 2 HOUSES )

Reference 16/00340/F
Alternative Reference PP-04628368
Application Received Fri 22 Jan 2016
Application Validated Mon 01 Feb 2016
Address 57-59 High Street Westbury Bristol BS9 3ED
Proposal Demolition of single-storey outbuildings to rear. Material change of use of yard from light industry (B1c) through erection of two no. two-storey single dwelling houses (Use Class C3) with three no. bedrooms, private gardens and off-street parking.
Status Decided
Decision GRANTED subject to condition(s)
Decision Issued Date Mon 18 Jul 2016

NEW PLANNING GRANTED ( 3RD HOUSE )

Reference 16/06563/F
Alternative Reference PP-05668539
Application Received Thu 01 Dec 2016
Application Validated Thu 01 Dec 2016
Address Land To The Rear 57-59 High Street Westbury Bristol BS9 3ED
Proposal Erection of detached dwelling.
Status Decided
Decision GRANTED subject to condition(s)
Decision Issued Date Fri 03 Feb 2017

NEW HOMES - GDV ADVICE

Please contact Calum Melhuish from the Hollis Morgan New Homes team to discuss GDV and details on this development.
0117 973 65 65
Calum@hollismorgan.co.uk

PLANNING

Full details of the plans, elevations, decision notices etc can be downloaded with the online legal pack.

BUYER'S PREMIUM

Please be aware all purchasers are subject to a £750 + VAT (£900 inc VAT) buyer's premium which is ALWAYS payable upon exchange of contracts whether the sale is concluded before, during or after the auction date.

GUIDE PRICE

An indication of the seller's current minimum acceptable price at auction. The guide price or range of guide prices is given to assist consumers in deciding whether or not to pursue a purchase. It is usual, but not always the case, that a provisional reserve range is agreed between the seller and the auctioneer at the start of marketing. As the reserve is not fixed at this stage and can be adjusted by the seller at any time up to the day of the auction in the light of interest shown during the marketing period, a guide price is issued. This guide price can be shown in the form of a minimum and maximum price range within which an acceptable sale price (reserve) would fall, or as a single price figure within 10% of which the minimum acceptable price (reserve) would fall. A guide price is different to a reserve price (see separate definition). Both the guide price and the reserve price can be subject to change up to and including the day of the auction.

RESERVE PRICE

The seller's minimum acceptable price at auction and the figure below which the auctioneer cannot sell. The reserve price is not disclosed and remains confidential between the seller and the auctioneer. Both the guide price and the reserve price can be subject to change up to and including the day of the auction.

PRE AUCTION OFFERS

Some properties may be available to buy prior to the auction. Pre auction offers can be only submitted by completing the OFFER FORM which can be downloaded with the online legal pack - please email the COMPLETED form to – olly@hollismorgan.co.uk. Please note offers will not be considered until you have VIEWED the property and the COMPLETE LEGAL PACK has been released. In the event of an offer being accepted the property will only be removed from the auction and viewings stopped once contracts have successfully EXCHANGED subject to the standard auction terms and payment of the buyer’s premium ( £900 ) to Hollis Morgan. Contracts can be signed either via the solicitors or at the Hollis Morgan offices subject to appointment.

SURVEYS AND VALUATIONS

If you would like to arrange a survey or mortgage valuation of this Lot BEFORE the auction please instruct your appointed surveyor to contact Hollis Morgan and we will arrange access for them to inspect the property. Please note that buyers CANNOT attend the surveys and the surveyors are responsible for collecting and returning keys to the Hollis Morgan offices in Clifton.

BIDDING AT THE AUCTION

This property is for sale by public auction and if you intend to bid please bring the following:

Proof of identity (valid passport or photo driving licence).
Proof of address (bank statement, recent utility bill, council tax bill or tenancy agreement).
10% deposit payment.
Buyers premium payment.
Details of your solicitor.

PAYING THE DEPOSIT & BUYERS PREMIUM

We can only accept the following at the auction:

Personal or Company Cheque
Bankers Draft
Debit Card ( NOT CREDIT CARD )

TELEPHONE AND PROXY BIDDING

If you cannot attend the auction (although we strongly advise you do) you can make a TELEPHONE or PROXY BID. This authorises the auctioneer to bid on your behalf up to a pre-set limit. Forms and relevant conditions are available to download with the online legal pack. A completed form, ID and two cheques (one for the 10% deposit and one for the Buyer's Administration Fee of £900) are required by the Auction Department at least two full working days before the auction.

AUCTION BUYERS GUIDE VIDEO

We have short video guides for both buying and selling by Public Auction on the Hollis Morgan Website. If you have any further questions regarding the process please don’t hesitate to contact Auction HQ.

TESTIMONIALS

We are very proud of what our past clients have say about us - please visit the Hollis Morgan website to read their testimonials.

CHARITY OF THE YEAR

Hollis Morgan are supporting Bristol based “ Life for a Cure” as our 2017 Charity of the year which aims ‘a LIFE for a CURE’, to raise funds in support of finding the ‘Ultimate Vaccine’ for Meningitis B. We are delighted to announce that 5 % of every buyer’s premium will be donated to ‘a Life for a Cure’ which was founded as both a legacy to Ryan and to help raise awareness and valuable funds in search of the ultimate vaccine. This Bristol charity run purely on a voluntary basis is simply about working together to stop other amazing young lives being lost to meningitis. - to learn more about Ryans Story and this fantastic cause please visit there website. www.ryanbresnahan.org/ In 2016 we raised £4,000 for Bristol based housing charity “Home Start” to learn more visit the charity section of our website - www.hollismorgan.co.uk/charity/


Local Information

Schools Stations Healthcare
Floorplan for *** SOLD @ HOLLIS MORGAN APRIL AUCTION ***