Sold @ Auction £100,000

21 A, Jacobs Wells Road, Cliftonwood, BS8 1DS

Bedrooms 1 Bathrooms 1 Reception 1

  • PLANNING GRANTED
  • Stylish 1 bedroom flat
  • Private Entrance
  • Scope to increase Ceiling heights

FOR SALE BY AUCTION

*** SOLD PRIOR TO AUCTION ***

LOT NUMBER 34
Wednesday 30th November 2017
All Saints Church Pembroke Road, Clifton, Bristol BS8 2HY
Legal packs will be available for inspection from 18:00.
The sale will begin promptly at 19:00

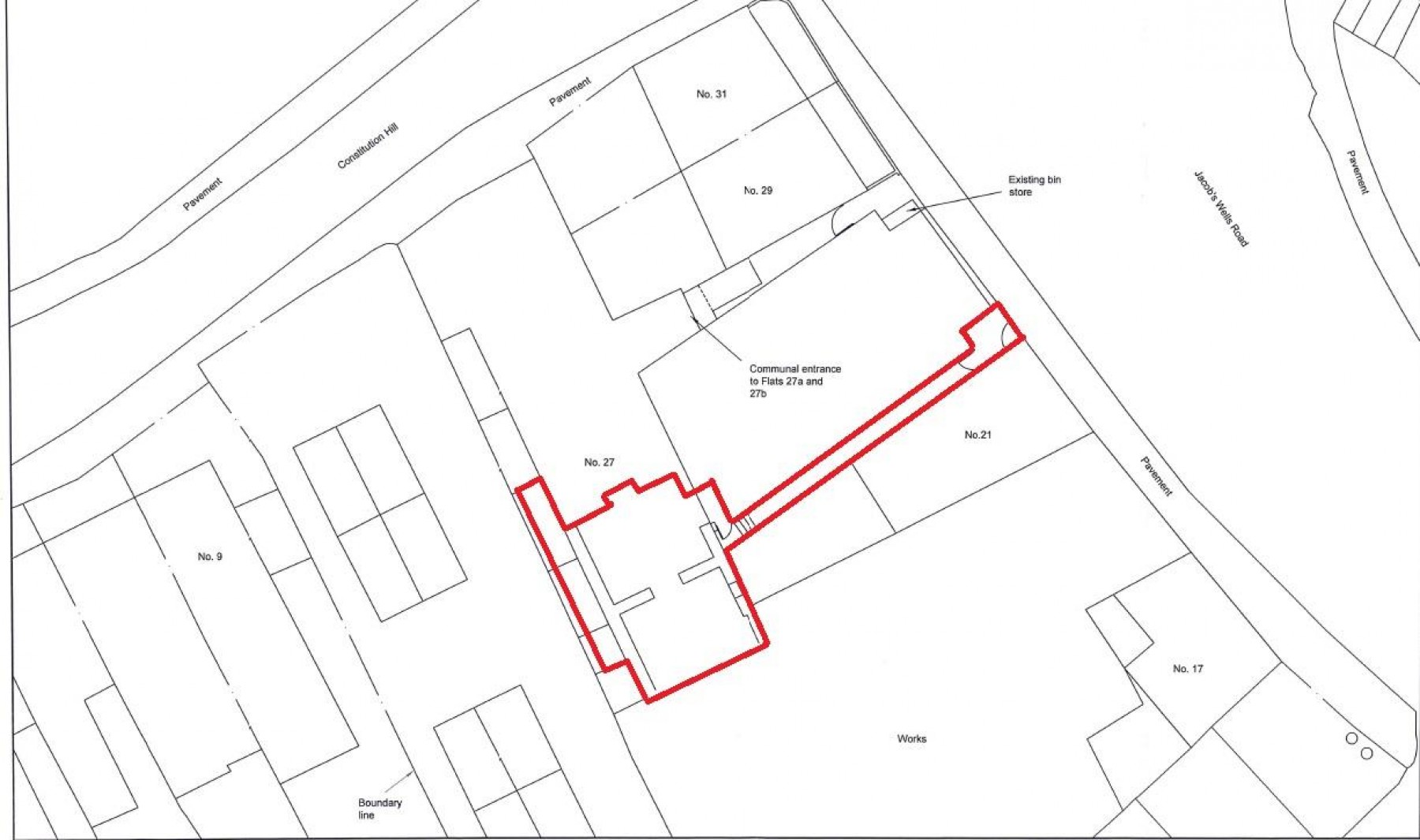
THE PROPERTY

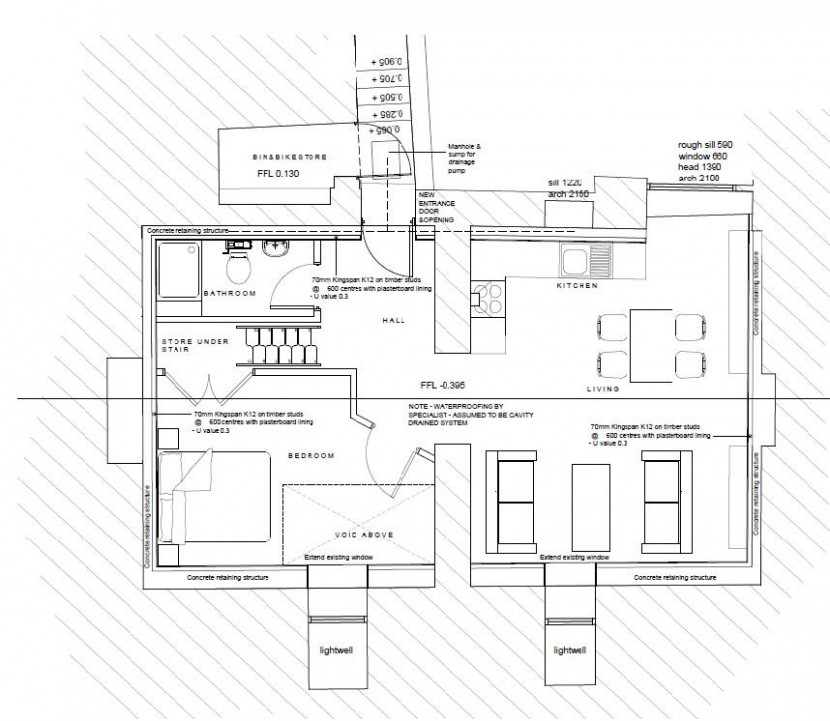
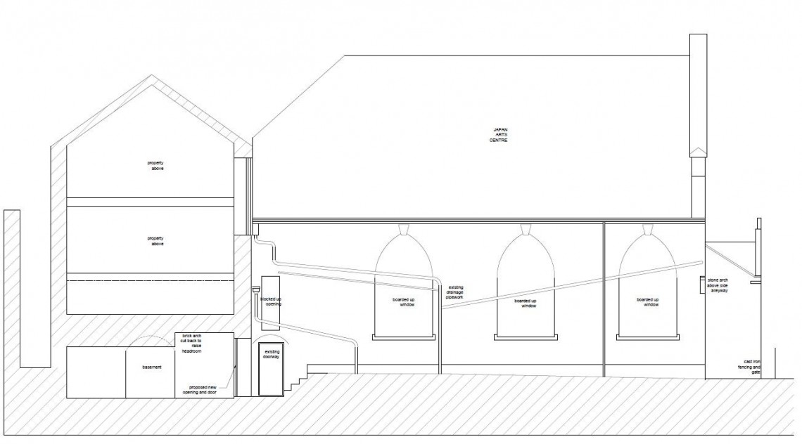
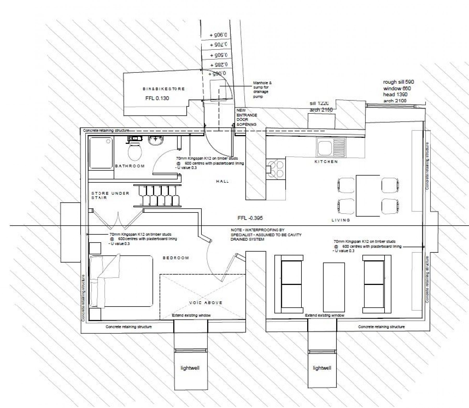
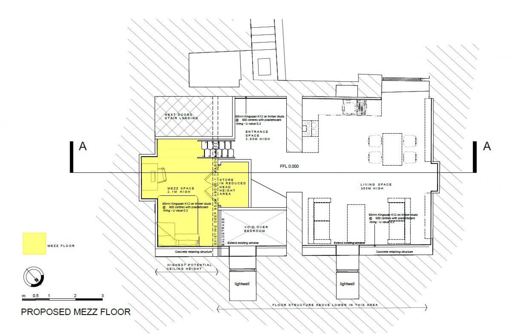
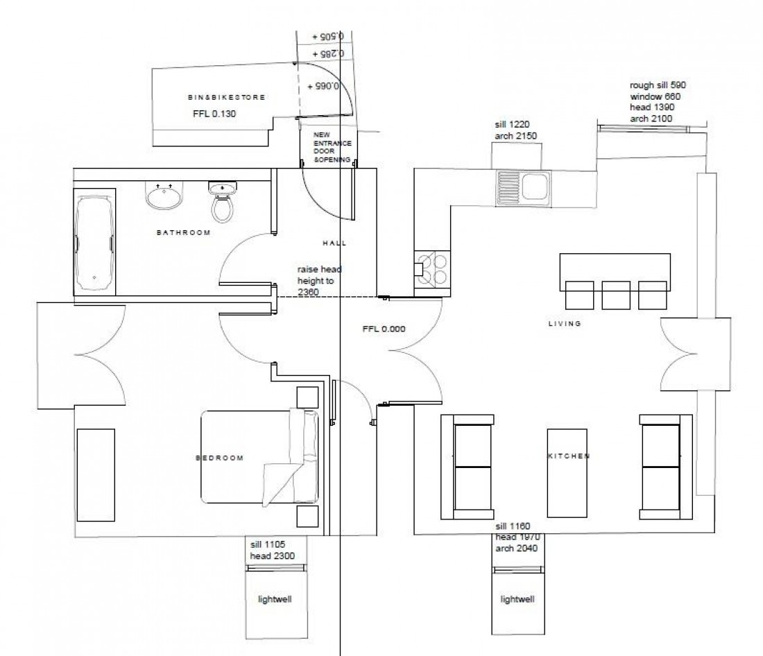
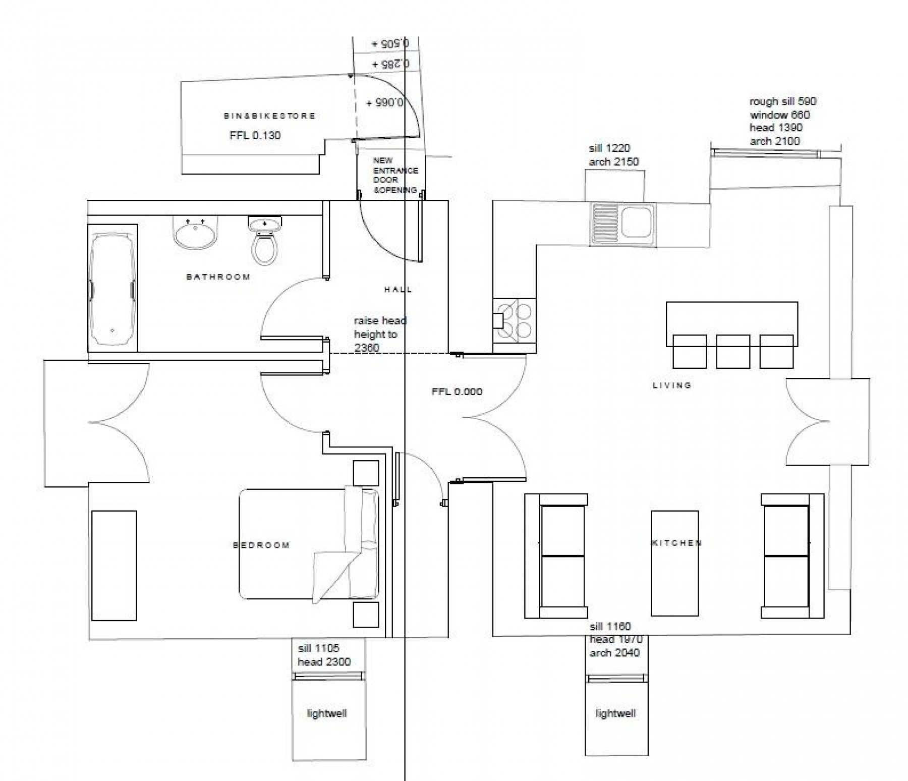
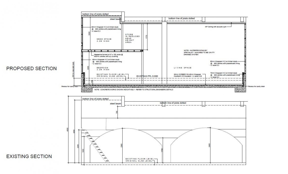
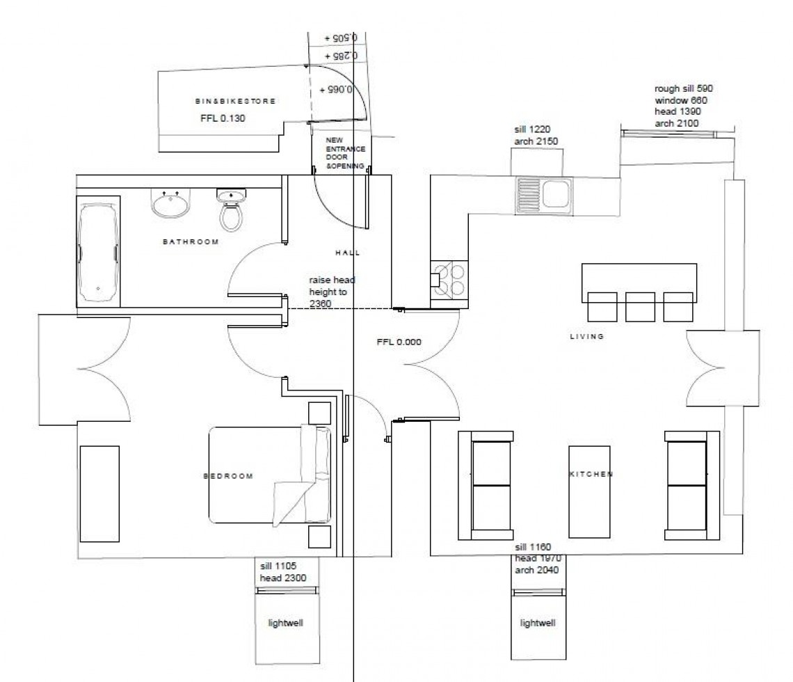
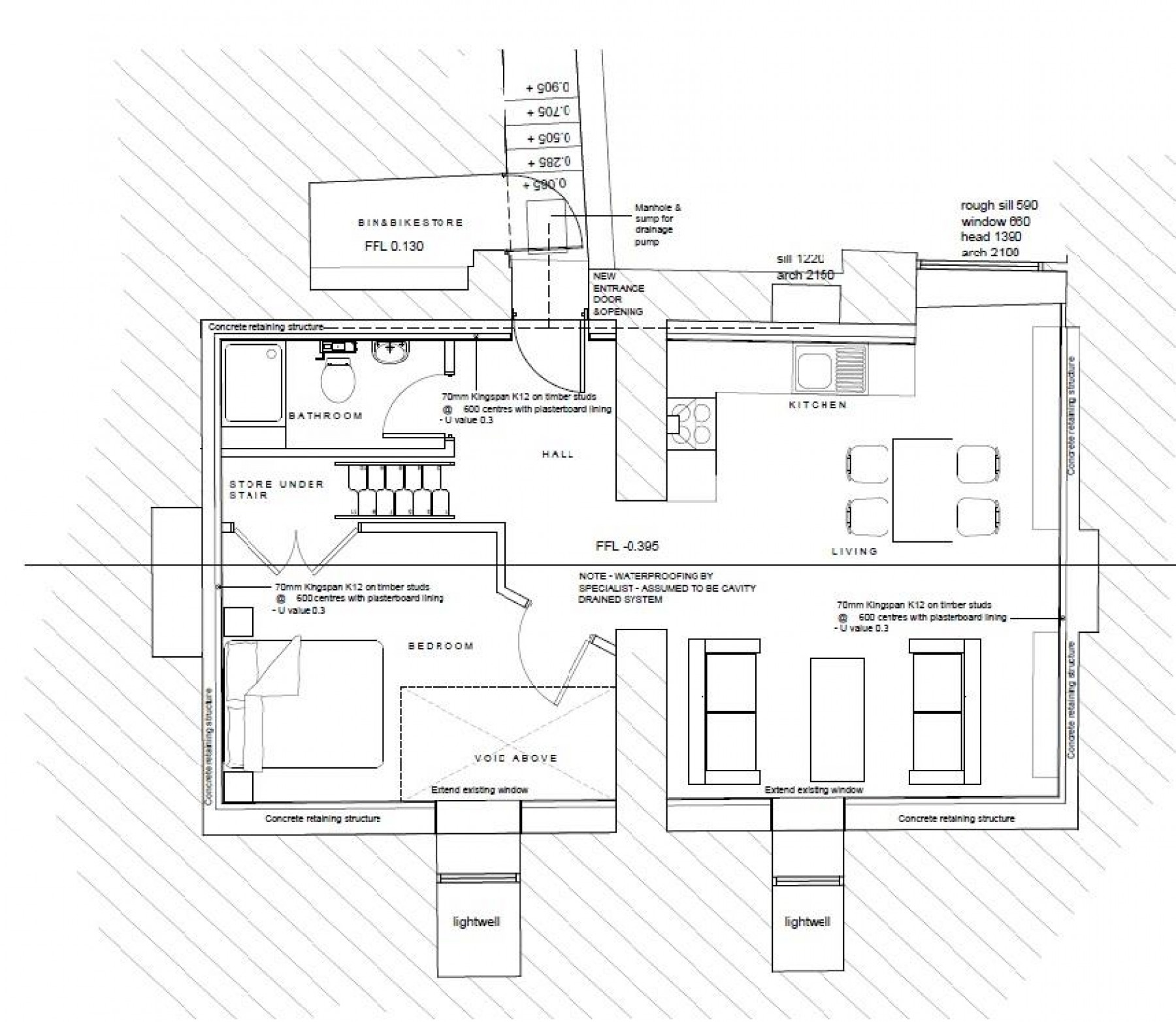
Occupying the lower ground floor of this imposing period property is an self contained interesting vaulted space with natural light and a private entrance.
The unit is accessed via a private pathway to the left hand side of the Chapel ( which is currently being converted into a family home ) and comprises two large vaulted rooms with additional ceiling height above.

Leasehold tenure on a 999 year lease at peppercorn rent "The Freehold reversion to be transferred to a tenants’ owned management company following completion of the sale of this last unit in the building".

LOCATION

The property occupies a prominent position on Jacob Wells Road within the popular suburb of Clifton Wood. Strategically located, local attractions including: Clifton Village, The Harbourside, The Triangle and The University of Bristol are all within walking distance.

THE OPPORTUNITY

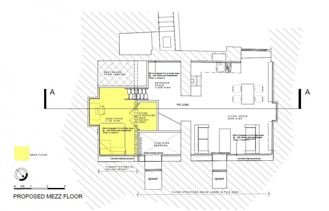
Planning has been granted to develop the unit into a self contained one bedroom flat.
There is scope to remove the vaulted ceilings to reveal the much higher original ceilings and also to increase the size of the windows.

PLANNING GRANTED

Application No. 15/04499/COU
Address 21A Jacobs Wells Road, Bristol, BS8 1DS
Description of Development Prior approval for the change of use from Storage or Distribution buildings Use Class B8 to residential accommodation falling within Use Class C3 (dwelling houses)
Agent Aspect360 Ltd
Applicant Hyland Properties Ltd
Decision Prior Approval is given for the above development and as described in the notice to the
council received on 26 August 2015
Date of decision: 21.10.15

PLANNING GRANTED

Decision : GRANTED subject to condition(s)
Application no: 15/06346/F
Type of application: Full Planning
Site address: 21A Jacobs Wells Road, Bristol, BS8 1DS.
Description of development: Proposed new entrance doorway into building.
Applicant: Hyland Properties Ltd
Agent: Aspect360 Ltd
Committee/delegation date: 02.02.16
Date of Notice: 02.02.16

RENTAL APPRAISAL - CLIFTON RENTALS

Unique opportunity to develop this hidden site and stamp your own design onto what could be a stunning property. Due to location property would be developed in a modern contemporary way and maximise light. The property would ideally suit professional(s) and if developed to high standard could achieve circa £1000pcm.

If you have any queries please contact Clifton Rentals on info@clifton-rentals.co.uk or 0117 911 3423/07854367689


Local Information

Schools Stations Healthcare
Floorplan for 21a Jacobs Wells Road, Cliftonwood, Bristol Floorplan for 21a Jacobs Wells Road, Cliftonwood, Bristol Floorplan for 21a Jacobs Wells Road, Cliftonwood, Bristol