SOLD, Sale Agreed £225,000

The Retreat, Newhaven Road, Redcliffe Bay, BS20 8LH

Bedrooms 5 Bathrooms 2 Reception 27

FOR SALE BY AUCTION

SOLD JUNE 2014

£225,000

THE LAND

A West facing building plot with panoramic views of the Bristol Channel situated in the ever popular Redcliffe Bay.

LOCATION

Newhaven Road is located within the North Somerset area of Portishead. Bristol City Centre is approximately 20 minutes drive.

THE OPPORTUNITY

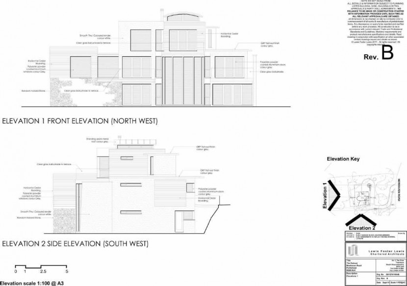
Planning has been granted for the erection of a contemporary four bedroom detached family ( circa 2300 Sq Ft ) family home designed to take full advantage of the sea views.

PLANNING

Planning reference: 11/P/2076/F
http://wam.n-somerset.gov.uk/MULTIWAM/findCaseFile.do;jsessionid=86EB62B2DE7D05B0A5F66D838252334C?appNumber=11%2FP%2F2076%2FF&appType=planning&action=Search

PLANS

Full details of all plans, planning permission, elevations etc are available to download with the online legal pack.


Local Information

Schools Stations Healthcare