UNDER OFFER, Guide Price £210,000

16, Parson Street, Bedminster, BS3 5PT

Bedrooms 5 Bathrooms 2 Reception 2

  • Large end of terrace property
  • Scope for Attic Conversion
  • 2 Bed Ground Floor Flat
  • 3 Bed Upper Maisonette
  • DEVELOPMENT OPPORTUNITY

THE PROPERTY

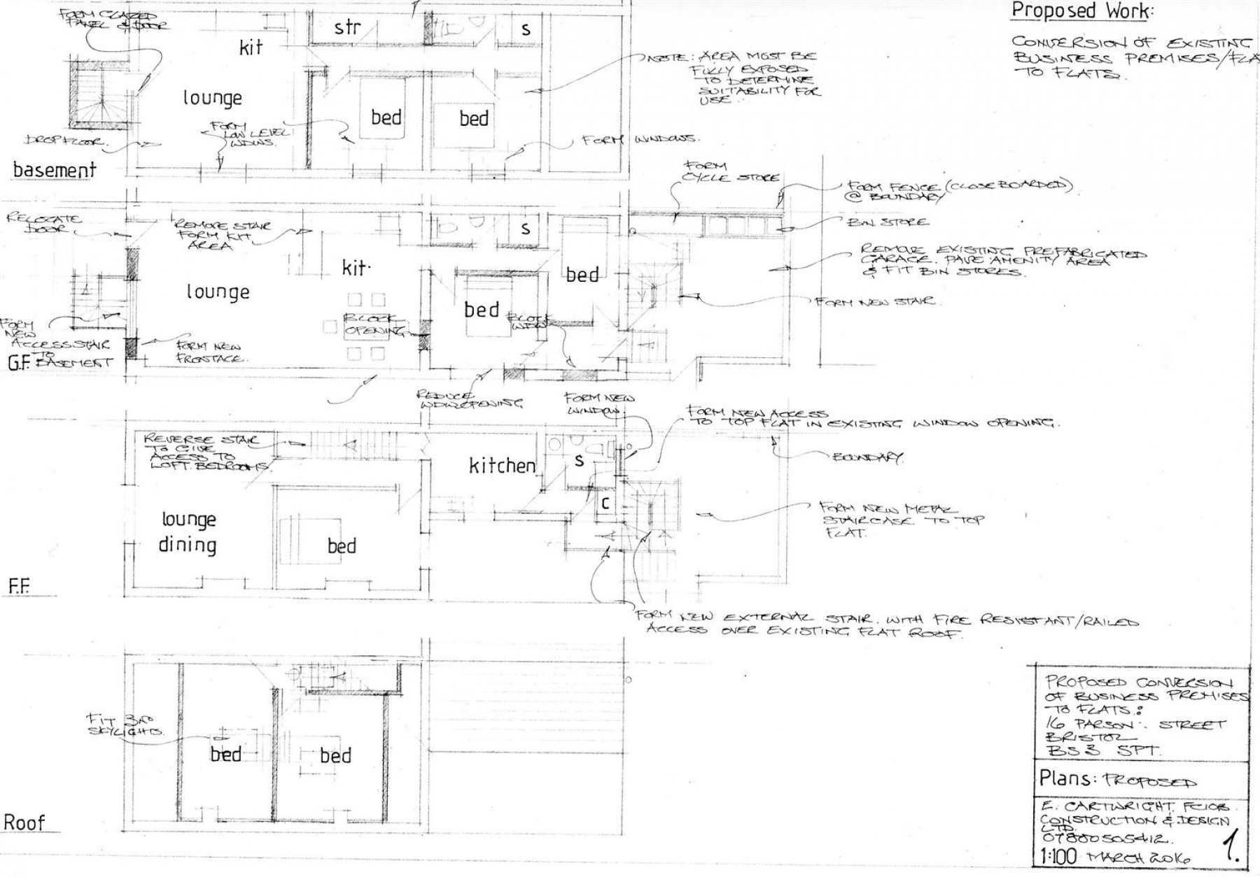
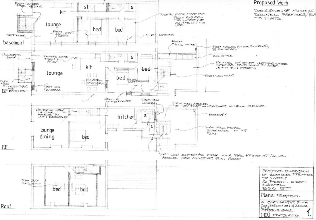
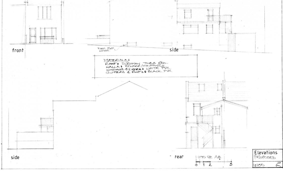
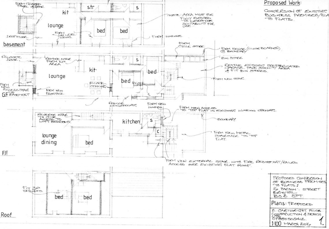
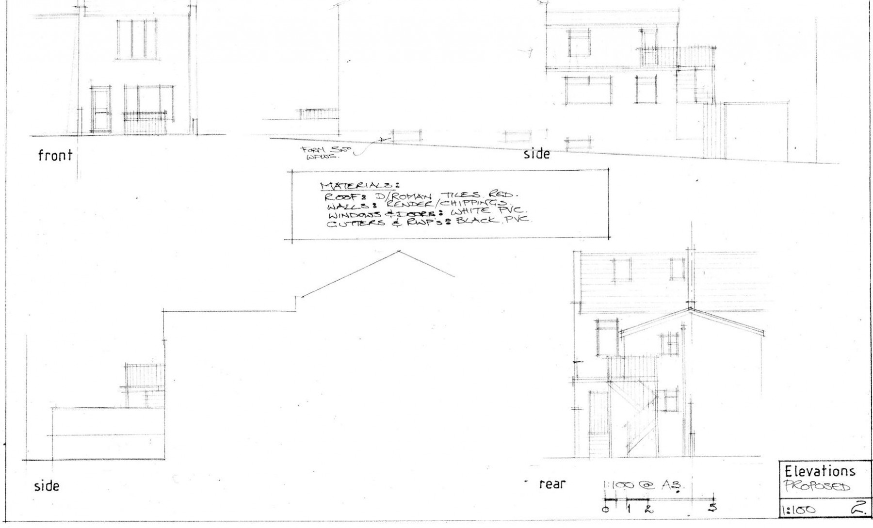
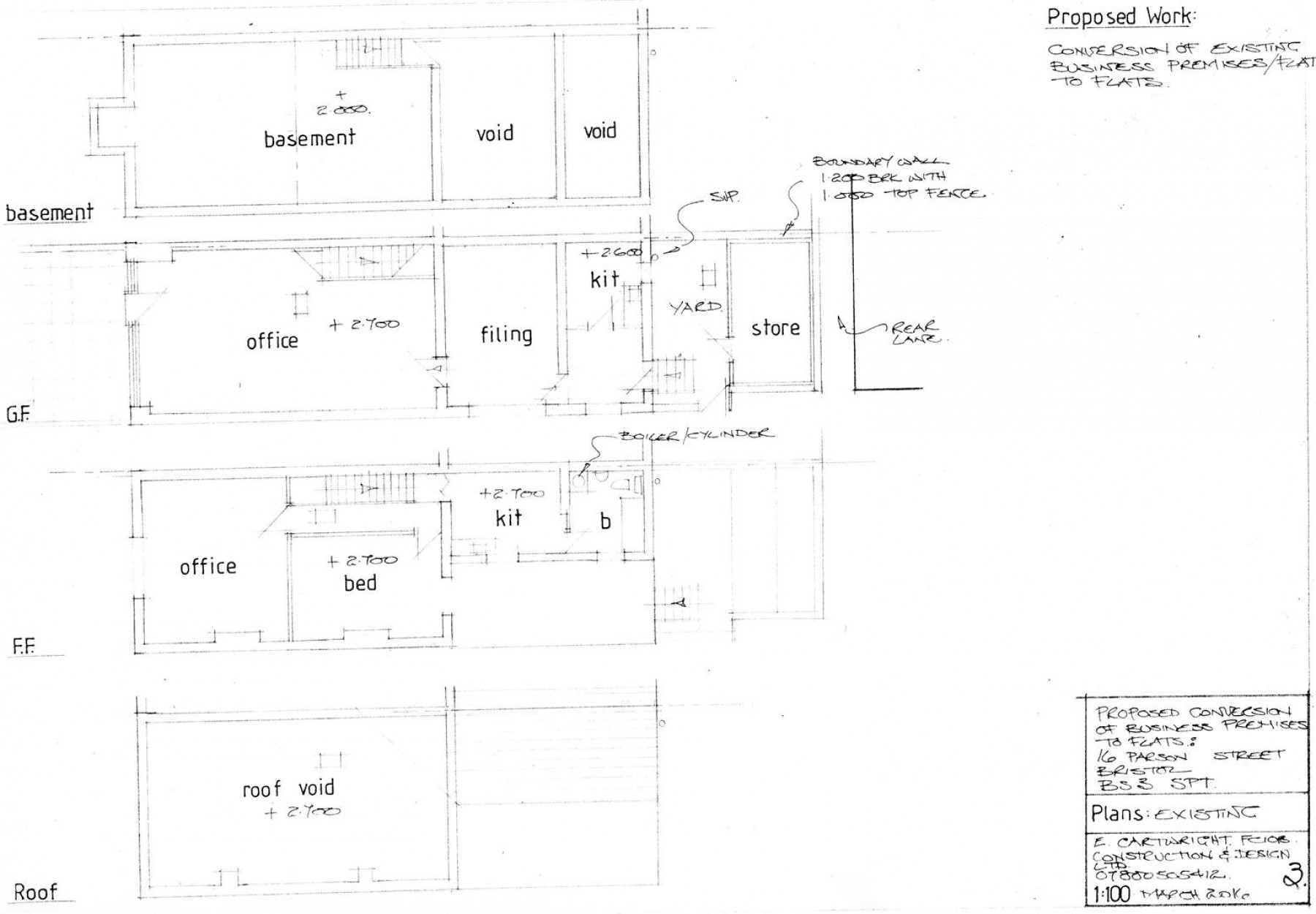
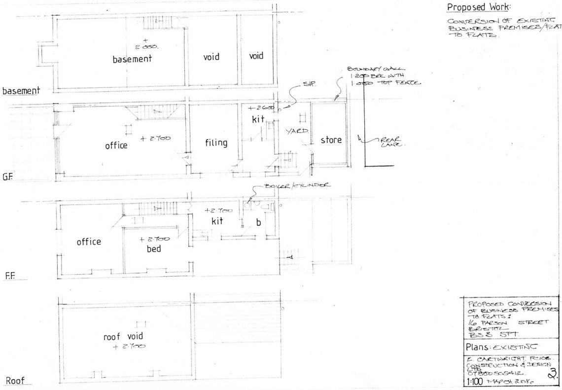
A prominent corner property arranged over two floors with basement.
The detached garage to the rear has been replaced by a small work shop but we understand the drop kerb still remains.
The Freehold mixed use property is sold with vacant possession having previously been used as offices and residential accommodation above..

LOCATION

Parson Street is located just off Hartcliffe Way within the popular suburb of Bedminster. Local amenities and services are all within close proximity including West Street which offers an array of independent retailers, convenience stores, pubs, bars and cafes. Bristol City Centre is less than two miles away.

THE OPPORTUNITY

The property now requires updating but offers excellent scope, subject to gaining the necessary consents, for a flat development scheme.

There is potential for the following scheme subject to gaining the necessary consents

GROUND FLOOR

Self contained 2 bedroom flat.
Re-sale £200,000

FIRST FLOOR PLUS ATTIC SPACE

Three bedroom maisonette with access via external staircase to rear.
Re-sale £250,000

BASEMENT

There may be scope for an additional unit on the basement level - buyers must make their own investigations.

Alternative schemes would be continued mixed use or HMO style investment.


Local Information

Schools Stations Healthcare
Floorplan for 16 Parson Street, Bristol Floorplan for 16 Parson Street, Bristol Floorplan for 16 Parson Street, Bristol