Lot 17

Former Berkeley Hospital Marybrook Street, Berkeley, GL13 9AD

Sold @ Auction £235,000 +++

Bedrooms 11 Bathrooms 8 Reception 8

  • For Sale By Public Auction
  • Wednesday 30th November
  • All Saints Church, Clifton, BS8 2HY
  • Weekly Set Viewings
  • Download Online Legal Pack
  • NOVEMBER 2016
  • Huge Potential
  • Scope for Flat Development
  • Scheme for 8 Units
  • DEVELOPMENT OPPORTUNITY

FOR SALE BY AUCTION

GUIDE PRICE £200,000+++
SOLD POST AUCTION £235,000

Wednesday 30th November 2016
All Saints Church Pembroke Road, Clifton, Bristol BS8 2HY
Legal packs will be available for inspection from 18:00.
The sale will begin promptly at 19:00

VAT

We understand there is NO VAT payable on the purchase price

SOLICITORS

Jonathan Webb
Cook & Co Solicitors
jonathan.webb@cookco.co.uk
DDI: +44 (0) 1173251039 Ext 239
T: +44 (0) 1173179719
M: +44 (0) 7540633389
F: +44 (0) 1173179720

ONLINE LEGAL PACKS

Digital Copies of the Online legal pack can be downloaded Free of Charge.
Please visit the Hollis Morgan Website and select the chosen lot from our Current Auction List.
Follow the RED link to "Download Legal Packs" For the first visit you will be required to register simply with your email and a password.
Having set up your account you can download legal packs or if they are not yet available they will automatically be sent to you when we receive them. You will be automatically updated by email if any new information is added.
*** STAY UPDATED *** By registering for the legal pack we can ensure you are kept updated on any changes to this Lot in the build up to the sale.

THE PROPERTY

A commanding detached Grade II Listed former hospital occupying a prominent Village position.
The Freehold property is sold with vacant possession and has been "soft stripped" with all asbestos removed and ready for works to commence.

LOCATION

The former hospital is located in the small town of Berkeley in Gloucestershire. Local amenities and services are all within close proximity. The M5 motorway network is less than three miles away and offers direct routes to Gloucester (17 miles) and Bristol (21 miles)

THE OPPORTUNITY

Planning has been granted by Stroud County Council ( S.16/1186/FUL ) to develop the Former Hospital Site

SCHEME
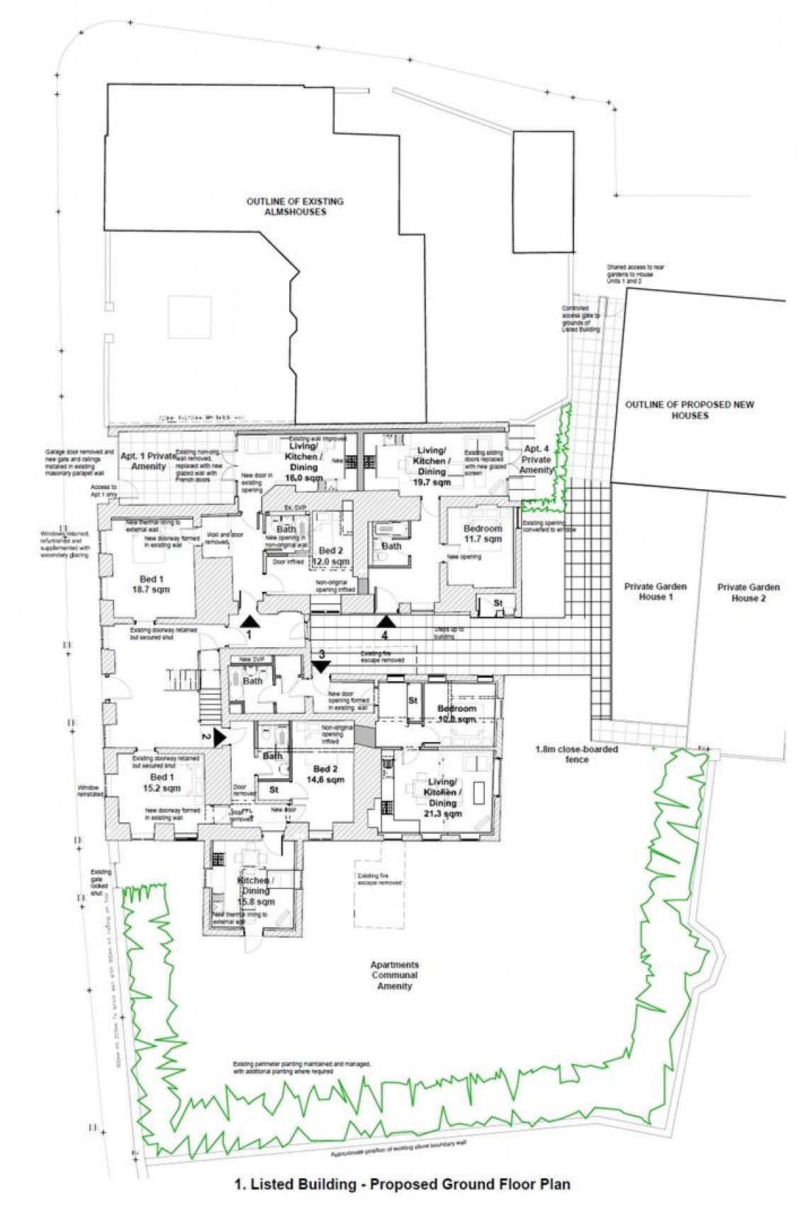
Conversion of former hospital building to provide 8 no. apartments and demolition of buildings and redevelopment of site to provide 12 no. new dwellings. (Resubmission of S.15/1254/FUL)

On offer is the Grade II Listed former hospital building with the proposed scheme of 8 stylish 1 & 2 bed flats.
( Please note the remainder of the site and associated planning is being retained and developed by the client )

Listed Building Consent was Granted in July 2015 – S15/1255/LBC

ALTERNATIVE PROPOSED SCHEMES CAN BE DOWNLOADED WITH THE ON LINE LEGAL PACK

PROPOSED ACCOMMODATION SCHEDULE

Unit 1 GF 2 Bed / 1 Bath / Private Garden
Unit 2 GF 2 Bed / 1 Bath / Communal Garden ( Direct Access )
Unit 3 GF 1 Bed / 1 Bath / Communal Garden
Unit 4 GF 1 Bed / 1 Bath / Private Garden
Unit 5 FF 1 Bed / 1 Bath / Communal Garden
Unit 6 FF 1 Bed / 1 Bath / Communal Garden
Unit 7 FF 2 Bed / 1 Bath / Communal Garden
Unit 8 TF 1 Bed / 1 Bath / Communal Garden

PROPOSED GDV

1 £160,000
2 £160,000
3 £140,000
4 £140,000
5 £140,000
6 £140,000
7 £160,000
8 £140,000

GDV £1,180,000

PLANNING INFORMATION

Please refer to online legal pack for further details.

EXTENDED COMPLETION

Completion is set for Friday 6th January.

EPC

For full details of the EPC please refer to the online legal pack.

BUYER'S PREMIUM

Please be aware all purchasers are subject to a £750 + VAT (£900 inc VAT) buyer's premium which is ALWAYS payable upon exchange of contracts whether the sale is concluded before, during or after the auction date.

GUIDE PRICE

An indication of the seller's current minimum acceptable price at auction. The guide price or range of guide prices is given to assist consumers in deciding whether or not to pursue a purchase. It is usual, but not always the case, that a provisional reserve range is agreed between the seller and the auctioneer at the start of marketing. As the reserve is not fixed at this stage and can be adjusted by the seller at any time up to the day of the auction in the light of interest shown during the marketing period, a guide price is issued. This guide price can be shown in the form of a minimum and maximum price range within which an acceptable sale price (reserve) would fall, or as a single price figure within 10% of which the minimum acceptable price (reserve) would fall. A guide price is different to a reserve price (see separate definition). Both the guide price and the reserve price can be subject to change up to and including the day of the auction.

RESERVE PRICE

The seller's minimum acceptable price at auction and the figure below which the auctioneer cannot sell. The reserve price is not disclosed and remains confidential between the seller and the auctioneer. Both the guide price and the reserve price can be subject to change up to and including the day of the auction.

PRE AUCTION OFFERS

Some properties may be available to buy prior to the auction.
Pre auction offers can be only submitted by completing the OFFER FORM which can be downloaded with the online legal pack - please email the COMPLETED form to – olly@hollismorgan.co.uk.
Please note offers will not be considered until you have VIEWED the property and the COMPLETE LEGAL PACK has been released.
In the event of an offer being accepted the property will only be removed from the auction and viewings stopped once contracts have successfully EXCHANGED subject to the standard auction terms and payment of the buyer’s premium ( £900 ) to Hollis Morgan.
Contracts can be signed either via the solicitors or at the Hollis Morgan offices subject to appointment.

SURVEYS AND VALUATIONS

If you would like to arrange a survey or mortgage valuation of this Lot BEFORE the auction please instruct your appointed surveyor to contact Hollis Morgan and we will arrange access for them to inspect the property. Please note that buyers CANNOT attend the surveys and the surveyors are responsible for collecting and returning keys to the Hollis Morgan offices in Clifton.

BIDDING AT THE AUCTION

This property is for sale by public auction and if you intend to bid please bring the following

Proof of identity (valid passport or photo driving licence).
Proof of address (bank statement, recent utility bill, council tax bill or tenancy agreement).
10% deposit payment.
Buyers premium payment.
Details of your solicitor.

PAYING THE DEPOSIT & BUYERS PREMIUM

We can only accept the following at the auction

Personal or Company Cheque
Bankers Draft
Debit Card ( NOT CREDIT CARD )

TELEPHONE AND PROXY BIDDING

If you cannot attend the auction (although we strongly advise you do) you can make a TELEPHONE or PROXY BID. This authorises the auctioneer to bid on your behalf up to a pre-set limit. Forms and relevant conditions are available to download with the online legal pack. A completed form, ID and two cheques (one for the 10% deposit and one for the Buyer's Administration Fee of £900) are required by the Auction Department at least two full working days before the auction.

AUCTION BUYERS GUIDE VIDEO

We have short video guides for both buying and selling by Public Auction on the Hollis Morgan Website. If you have any further questions regarding the process please don’t hesitate to contact Auction HQ.

TESTIMONIALS

We are very proud of what our past clients have say about us - please visit the Hollis Morgan website to read their testimonials.

CHARITY OF THE YEAR

Hollis Morgan are supporting Home Start Bristol as our 2016 Charity of the year. We are delighted to announce that 10% of every buyer’s premium will be donated to this excellent local charity – Home-Start Bristol provides a unique kind of help which has a profound impact on struggling families with young children, 98% of those who finished a period of support reported that their wellbeing had increased. If you would like to find out more about Home-Start Bristol and how you can support us please visit our website www.homestartbristol.org.uk


Local Information

Schools Stations Healthcare
Floorplan for High Street, Berkeley Floorplan for High Street, Berkeley Floorplan for High Street, Berkeley Floorplan for High Street, Berkeley Floorplan for High Street, Berkeley