Sold @ Auction £299,000

Development Site to Rear, 14, Tower Road South, Warmley, BS30 8BJ

Bedrooms 7 Bathrooms 7 Reception 7

FOR SALE BY AUCTION

LOT NUMBER 4
Wednesday 20th July 2016
All Saints Church Pembroke Road, Clifton, Bristol BS8 2HY
Legal packs will be available for inspection from 18:00.
The sale will begin promptly at 19:00

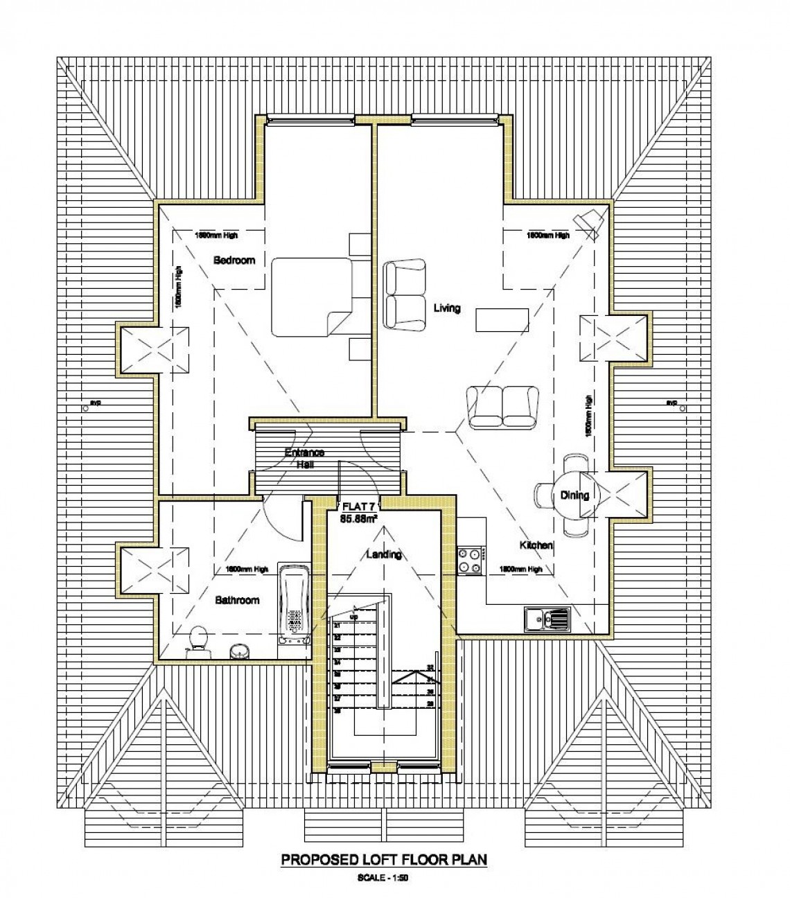
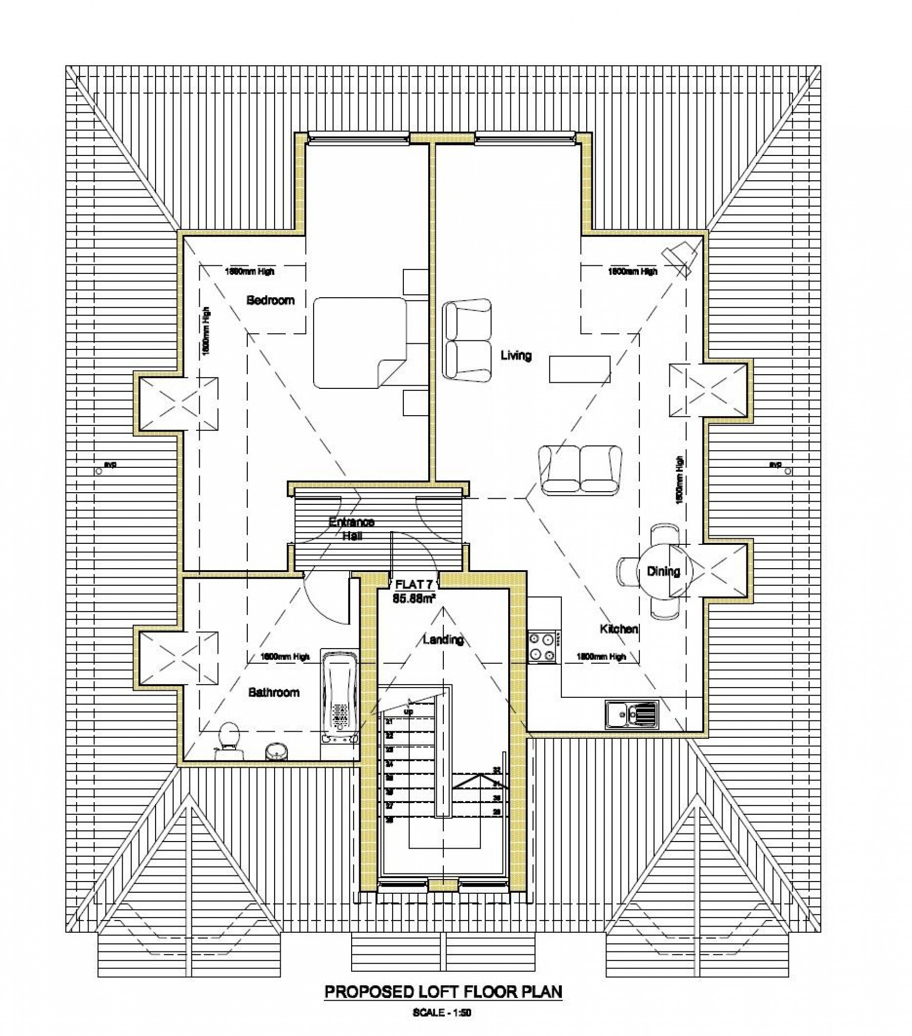
THE LAND

A large mature parcel of land to the rear of 14 Tower Road South with vehicular access.

LOCATION

The land is located close to Warmley High Street just outside the popular suburb of Kingswood. Local amenities and services including independent retailers, local pubs, bars and restaurants are all within close proximity. Warmley benefits from excellent transport links with the A4174 Ring Road nearby providing easy access to Bristol (approximately 6 miles away).

THE OPPORTUNITY

Full Planning has been granted to develop the site into a detached block of 7 x 1 bedroom flats with off street parking.
The site is "Oven Ready" and ready to go.
PLEASE REFER TO ONLINE LEGAL PACK FOR FULL DETAILS OF THE PLANNING

PLANNING GRANTED

Reference PK12/0962/F
Alternative Reference PP-01868572
Application Received Mon 19 Mar 2012
Address 14 Tower Road South Warmley Bristol South Gloucestershire BS30 8BJ
Proposal Erection of 7 no self contained flats with parking, new vehicular access and associated works.(Re submission of PK11/3767/F)
Status Approve With Conditions


Local Information

Schools Stations Healthcare