Sold @ Auction £145,000

Land with Planning, Belgrave Hill, Clifton, BS8 2UA

Bedrooms 4 Bathrooms 2 Reception 21

FOR SALE BY AUCTION

*** SOLD PRIOR TO AUCTION ***

LOT NUMBER 15
Wednesday 8th June
All Saints Church Pembroke Road, Clifton, Bristol BS8 2HY
Legal packs will be available for inspection from 18:00.
The sale will begin promptly at 19:00

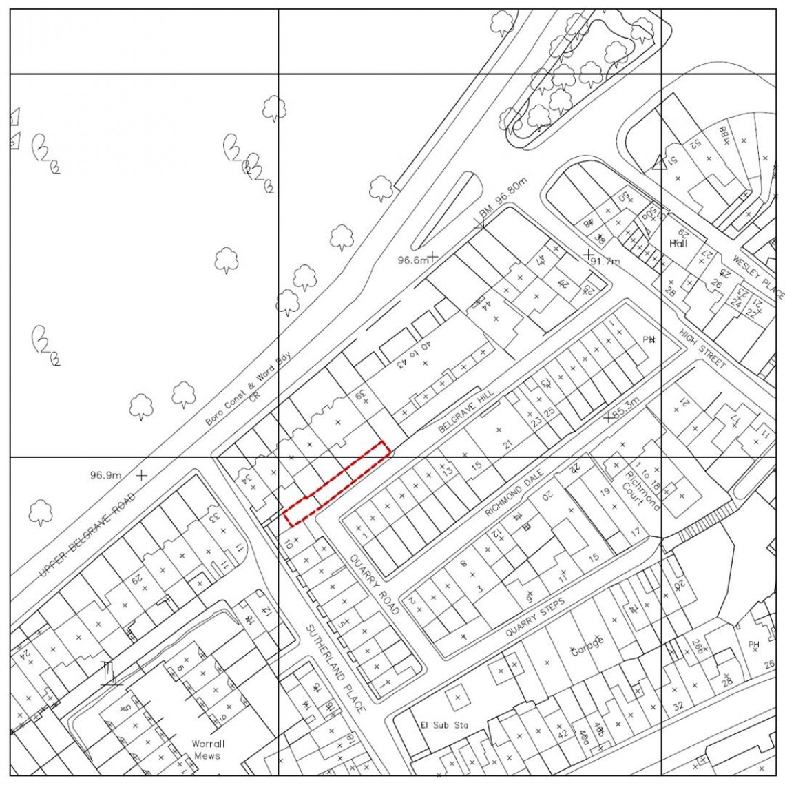
THE LAND

A rare leasehold parcel of land on Belgrave Hill.

LOCATON

The land is located in a highly sought after prime area of the City within walking distance of the amenities on Whiteladies Road and also Durdham Downs.

THE OPPORTUNITY

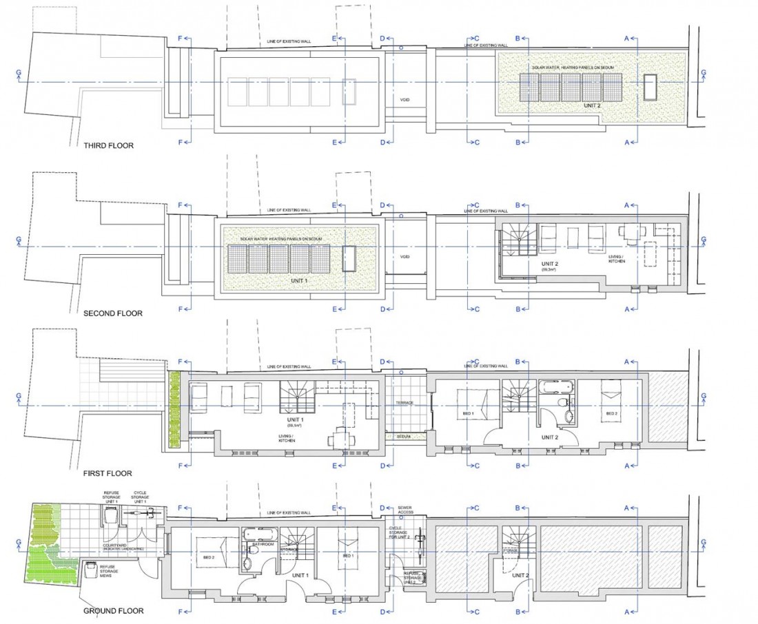
Planning has been granted to erect 2 x 2 bedroom houses.
There may be scope ( subject to gaining the necessary consents ) for alternative schemes such as a single dwelling or higher density student accommodation.
We suggest the GDV for this scheme is in the region of £800,000.
Please refer to on line legal pack for build cost and profit analysis. provided by our client.

PLANNING INFORMATION

Reference: 14/02366/F
Alternative Reference: PP-03175703
Application Received: 19 May 2014
Address: Land On North Side Of Belgrave Hill Bristol
Proposal: Proposed development of 2 no. Use Class C3 dwellings with associated external works.
Status: GRANTED subject to condition(s)
Decision issued date - 14th November 2014


Local Information

Schools Stations Healthcare
Floorplan for Belgrave Hill, Bristol