Sold @ Auction £115,000

Land Adjacent to, 18, Victoria Place, Southville, BS3 3BP

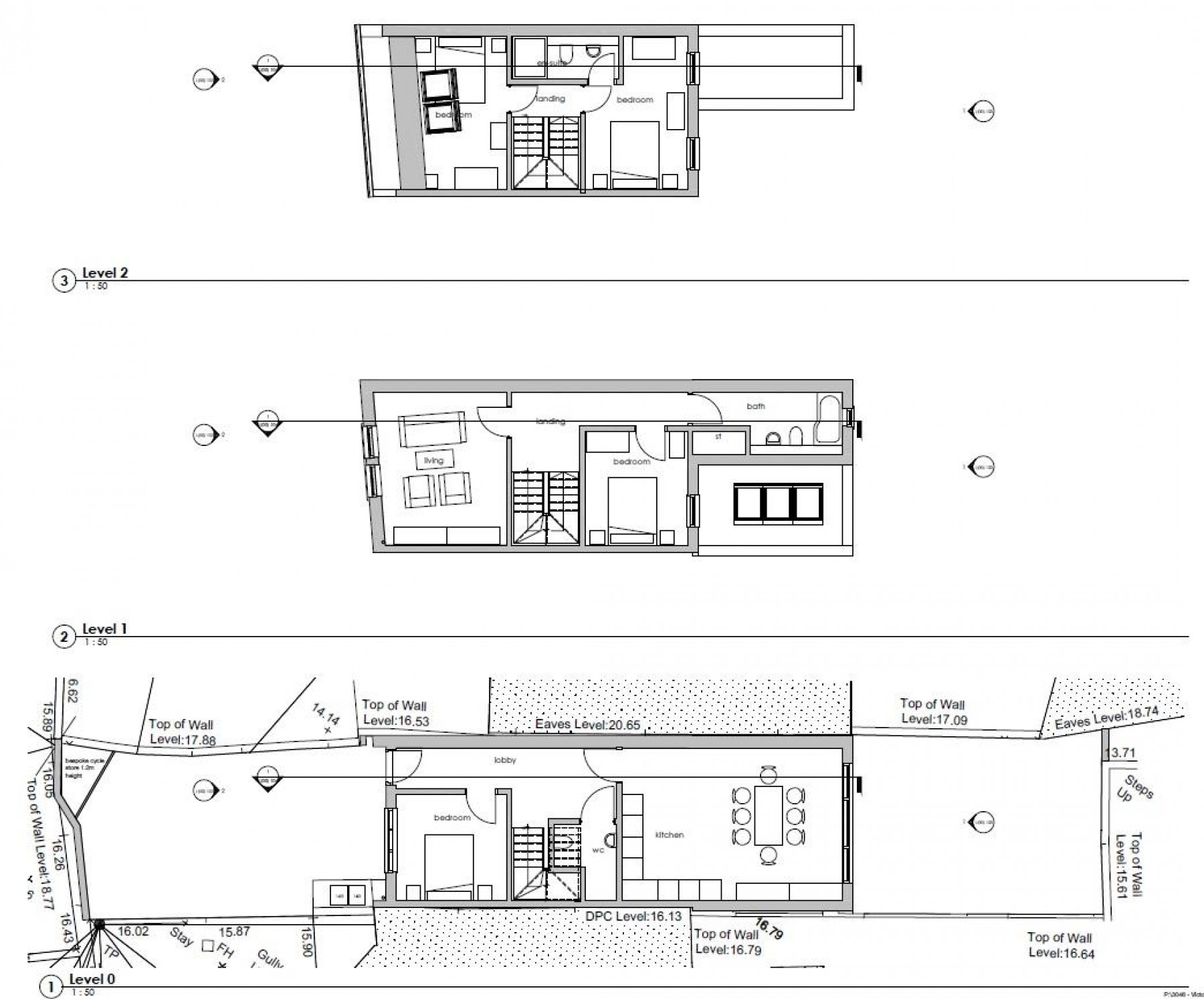
Bedrooms 4 Bathrooms 2 Reception 1

  • Planning Granted
  • 4 Bedroom Family Home
  • Cul De Sac Locaiton
  • GDV - circa £400k

FOR SALE BY AUCTION

SOLD @ AUCTION

GUIDE PRICE £110K
SOLD £115K


LOT NUMBER 26
Wednesday 8th June
All Saints Church Pembroke Road, Clifton, Bristol BS8 2HY
Legal packs will be available for inspection from 18:00.
The sale will begin promptly at 19:00

THE LAND

A level enclosed parcel of land with access from a quiet residential terrace.

LOCATION

Victoria Place is situated just off West Street within the popular suburb of Bedminster. Both North Street and West Street are within close proximity and offer a wide variety of amenities including bars, pubs, cafes and independent retailers. Bristol City Centre and the Harbourside district is within a mile whilst there are also regular public transport links running from Bedminster to the Cabot Circus shopping complex which is approximately two miles away.

THE OPPORTUNITY

Full planning permission has been granted for the erection of a detached four bedroom house.
We would suggest the resale value of this property is approximately £400,000.

PLANNING GRANTED

Decision : GRANTED subject to condition(s)
Application no: 14/00826/F
Type of application: Full Planning
Site address: Land Adj, 18 Victoria Place, Bristol, BS3 3BP.
Description of development: Proposed erection of a 4 bedroom single dwelling on land adjacent to 18 Victoria Place.
Applicant: Mr R Clarke
Agent: Origin3 Studio
Committee/delegation date: 16.05.14
Date of Notice: 16.05.14

PLANS

Full details of all plans, drawings etc. can be downloaded via the online legal pack.

RENTAL APPRAISAL

The local lettings experts say:
The Bristol Residential Letting Co. is confident this development would make a good rental investment. Don McKeever of The Bristol Residential Letting Co suggests a rent in the region of £1400 - £1600pcm will be achievable if refurbished for the professional market. If you would like to discuss more detail on the potential for rental, you can call Don (0117 370 8818) for a no obligation discussion. He will be very happy to advise on maximising the return on this property.


Local Information

Schools Stations Healthcare
Floorplan for Land @ Victoria Place, Southville, Bristol