Lot 19

Land to Rear, 28 - 30 Eldon Terrace, Windmill Hill, BS3 4NZ

Sold @ Auction £335,000 +++

Bedrooms 9 Bathrooms 3 Reception 3

  • For Sale By Public Auction
  • Wednesday 20th July 2016
  • All Saints Church, Clifton, BS8 2HY
  • Download Online Legal Packs
  • Full planning Granted
  • JULY 2016
  • Download the Planning Info
  • Site Ready to go
  • 3 Plots
  • Sought After Location

FOR SALE BY AUCTION

*** SOLD PRIOR TO AUCTION ***

LOT NUMBER 19
Wednesday 20th July 2016
All Saints Church Pembroke Road, Clifton, Bristol BS8 2HY
Legal packs will be available for inspection from 18:00.
The sale will begin promptly at 19:00

VIEWINGS

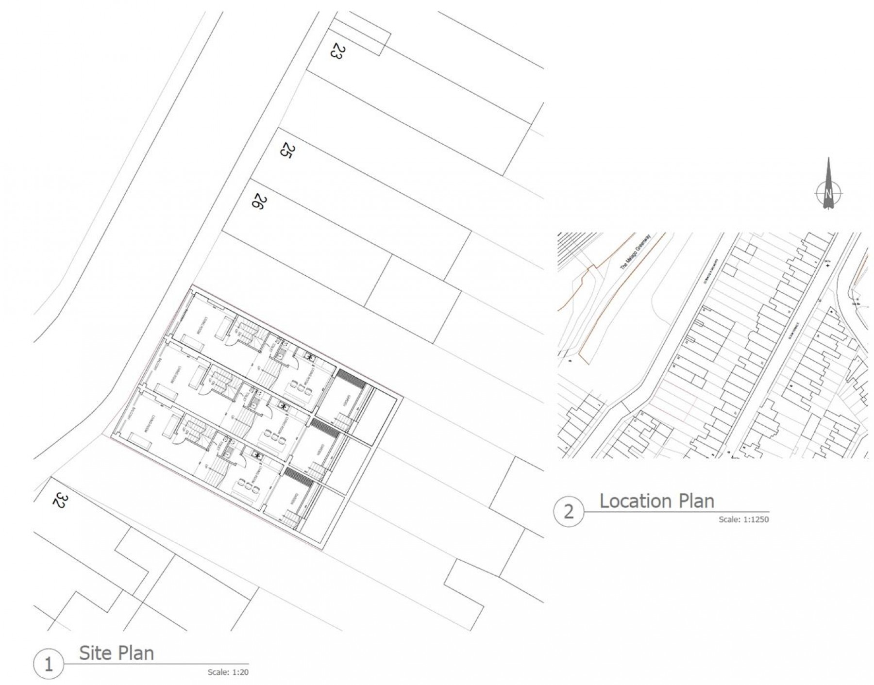
The site is open for external inspection from Cotswold Road North at all times.

SOLICITORS

Kirstie Wilkins
Ocean
199 Gloucester Road, Bishopston, Bristol, BS7 8BG
0117 916 6600
k.wilkins@oceanhome.co.uk

ONLINE LEGAL PACKS

Please visit the Hollis Morgan Website and select the chosen lot from our Current Auction List.
Legal Packs are free to download from Hollis Morgan.
Follow the RED link to "Download Legal Packs" For the first visit you will be required to register simply with your email and a password.
Having set up your account you can download legal packs or register to receive them if not yet available.
You will be automatically be updated if any new information is added.

THE LAND

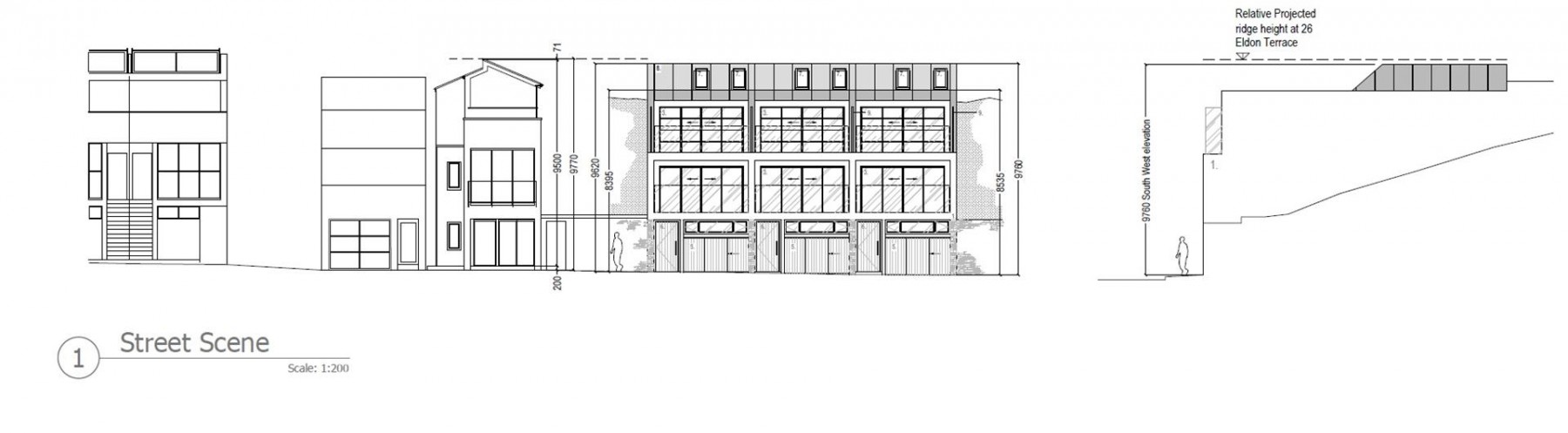
A parcel of land comprising three rear gardens fronting onto Cotswold Road North and adjacent to a small park with views over the City.

LOCATION

The Land lies within the popular residential suburb of Windmill Hill. Local amenities including independent retailers, pubs, bars, restaurants are all within close proximity as well as the ever popular North Street which is approximately one mile away. Parson Street train station is also within walking distance.

THE OPPORTUNITY

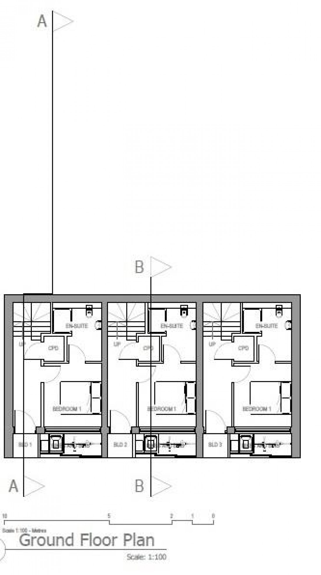
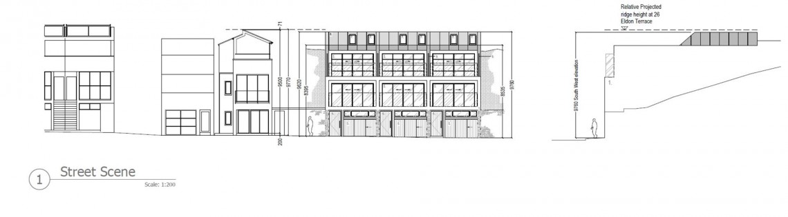
An excellent development opportunity - planning has been granted to erect a terrace of 3 x 3 bedroom family homes with parking and integral garages.

We would suggest the houses are worth £400,000 when complete and the site has a GDV of £1.2m.

Please refer to online legal pack for full planning information.

RENTAL APPRAISAL

The local lettings experts say:

The Bristol Residential Letting Co. are confident these properties would make a good rental investment. Don McKeever of The Bristol Residential Letting Co suggests a rental range of £1500-£1700pcm. If you would like to discuss more detail on the potential for rental, you can call Don (0117 370 8818) for a no obligation discussion. He will be very happy to advise on maximising the return on this property.

PLANNING GRANTED

Decision : GRANTED subject to condition(s)
Application no: 15/01736/F
Type of application: Full Planning
Site address: 28-30 Eldon Terrace, Bristol, BS3 4NZ.
Description of development: Construction of 3 x 3 bed town houses on land to the rear of 28-30 Eldon Terrace with primary access off Cotswold Road North.
Applicant: Scadding Developments
Agent: Dexter Building Design Ltd
Committee/delegation date: 02.09.15
Date of Notice: 08.09.15

SITE READY TO BUILD

Please refer to online legal pack for full details of

Land survey
Architect/building regs
Structural calcs/drawings
Tree report
Transport survey
Soil investigations
Energy report

DOWNLOAD PLANNING INFORMATION

Full details of the planning permission, drawings etc can be downloaded with the online legal pack.

GUIDE PRICE

An indication of the seller's current minimum acceptable price at auction. The guide price or range of guide prices is given to assist consumers in deciding whether or not to pursue a purchase. It is usual, but not always the case, that a provisional reserve range is agreed between the seller and the auctioneer at the start of marketing. As the reserve is not fixed at this stage and can be adjusted by the seller at any time up to the day of the auction in the light of interest shown during the marketing period, a guide price is issued. This guide price can be shown in the form of a minimum and maximum price range within which an acceptable sale price (reserve) would fall, or as a single price figure within 10% of which the minimum acceptable price (reserve) would fall. A guide price is different to a reserve price (see separate definition). Both the guide price and the reserve price can be subject to change up to and including the day of the auction.

RESERVE PRICE

The seller's minimum acceptable price at auction and the figure below which the auctioneer cannot sell. The reserve price is not disclosed and remains confidential between the seller and the auctioneer. Both the guide price and the reserve price can be subject to change up to and including the day of the auction.

OFFERS

Pre auction offers can be only submitted by completing the OFFER FORM which can be downloaded within the online legal pack. Please send the COMPLETED form to – olly@hollismorgan.co.uk Please note offers will not be considered until you have viewed the property and the COMPLETE legal pack has been released. In the event of an offer being accepted the property will only be removed from the auction and viewings stopped once contracts have successfully exchanged subject to the standard auction terms and payment of the buyers premium to Hollis Morgan.

AUCTION BUYERS GUIDE VIDEO

We have short video guides for both buying and selling by Public Auction on the Hollis Morgan Website. If you have any further questions regarding the process please don’t hesitate to contact Auction HQ.

TELEPHONE AND PROXY BIDDING

If you cannot attend the auction (although we strongly advise you do) you can make a TELEPHONE or PROXY BID. This authorises the auctioneer to bid on your behalf up to a pre-set limit. Forms and relevant conditions are available to download with the online legal pack. A completed form, ID and two cheques (one for the 10% deposit and one for the Buyer's Administration Fee of £900) are required by the Auction Department at least two full working days before the auction.

AUCTION FINANCE

Some properties may require specialist auction finance- please contact Hollis Morgan for access to expert advice and "whole of market" rates.

BUYER'S PREMIUM

Please be aware all purchasers are subject to a £750 + VAT buyer's premium which is ALWAYS payable upon exchange of contracts whether the sale is concluded before, during or after the auction date.

TESTIMONIALS

We are very proud of what our past clients have say about us - please visit the Hollis Morgan website to read their testimonials.

CHARITY OF THE YEAR

Hollis Morgan are supporting Home Start Bristol as our 2016 Charity of the year. We are delighted to announce that 10% of every buyer’s premium will be donated to this excellent local charity – Home-Start Bristol provides a unique kind of help which has a profound impact on struggling families with young children, 98% of those who finished a period of support reported that their wellbeing had increased. If you would like to find out more about Home-Start Bristol and how you can support us please visit our website www.homestartbristol.org.uk


Local Information

Schools Stations Healthcare
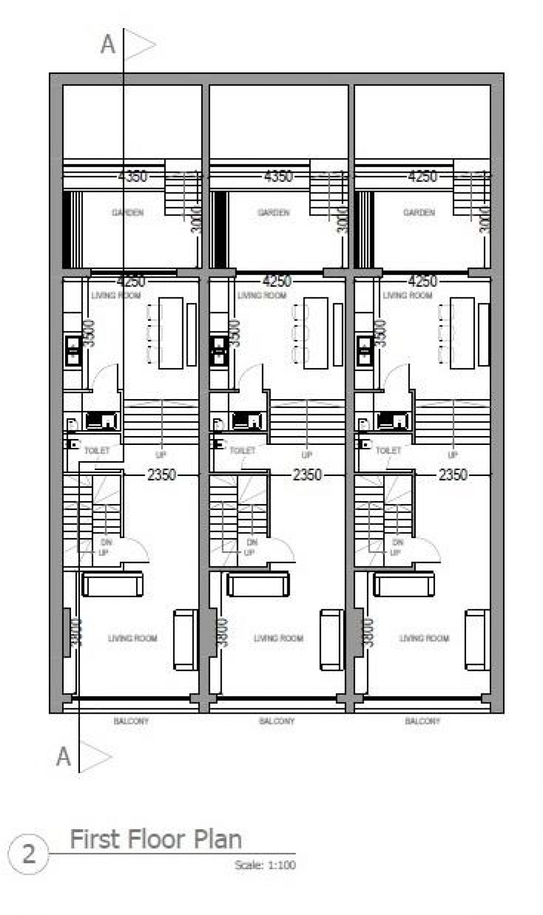
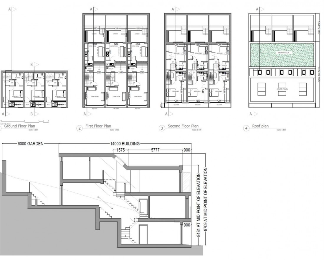
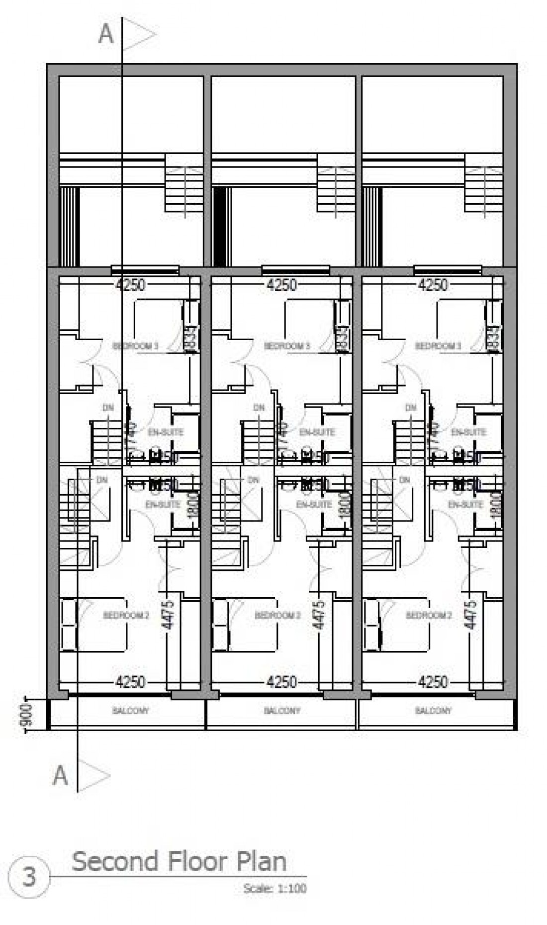
Floorplan for Land @ Eldon Terrace, Windmill Hill, Bristol Floorplan for Land @ Eldon Terrace, Windmill Hill, Bristol Floorplan for Land @ Eldon Terrace, Windmill Hill, Bristol Floorplan for Land @ Eldon Terrace, Windmill Hill, Bristol Floorplan for Land @ Eldon Terrace, Windmill Hill, Bristol