Sold @ Auction £565,000

Land to Rear of 12, Westbury Lane ( Access Via Grove Avenue ), Coombe Dingle, BS9 2PB

Bedrooms 10 Bathrooms 4 Reception 4

FOR SALE BY AUCTION

*** SOLD PRIOR TO AUCTION ***

LOT NUMBER 8
Wednesday 24th February 2016
All Saints Church Pembroke Road, Clifton, Bristol BS8 2HY
Legal packs will be available for inspection from 18:00.
The sale will begin promptly at 19:00

THE LAND

An enclosed Freehold parcel of land ( 0.11 Acres ) located at the rear of 12 Westbury Lane but approached from the much quieter Grove Avenue in this hugely desirable suburb of Bristol.

LOCATION

Grove Avenue in Coombe Dingle enjoys a semi-rural status on the cusp of suburbia, the Kings Weston Estate and the Dingle. There are neighbours in proximity and yet the wooded setting provides privacy and extreme tranquility. The adjacent environs offer bridle paths and foot paths with woodland and gorge walks. From this property a short idyllic walk will lead you through woods and the famous echo gate to the picturesque hamlet of Henbury with its historic church and famous graveyard. Equally a walk in another direction will take you to the village of Westbury on Trym are a myriad of shops and supermarkets suitable for day to day living as well as schools, primary, secondary, state and independent. For sporting pursuits there are golf courses, health, leisure and tennis clubs. Grove Avenue is in itself a unique semi - rural winding lane Road which has evolved over the years with old cottages and individual houses developed at different periods to provide the area with a unique charm and character of its own. Coombe Dingle which is situated in North West Bristol has excellent links to the motorway networks as well as Bristol's commercial centre

THE OPPORTUNITY

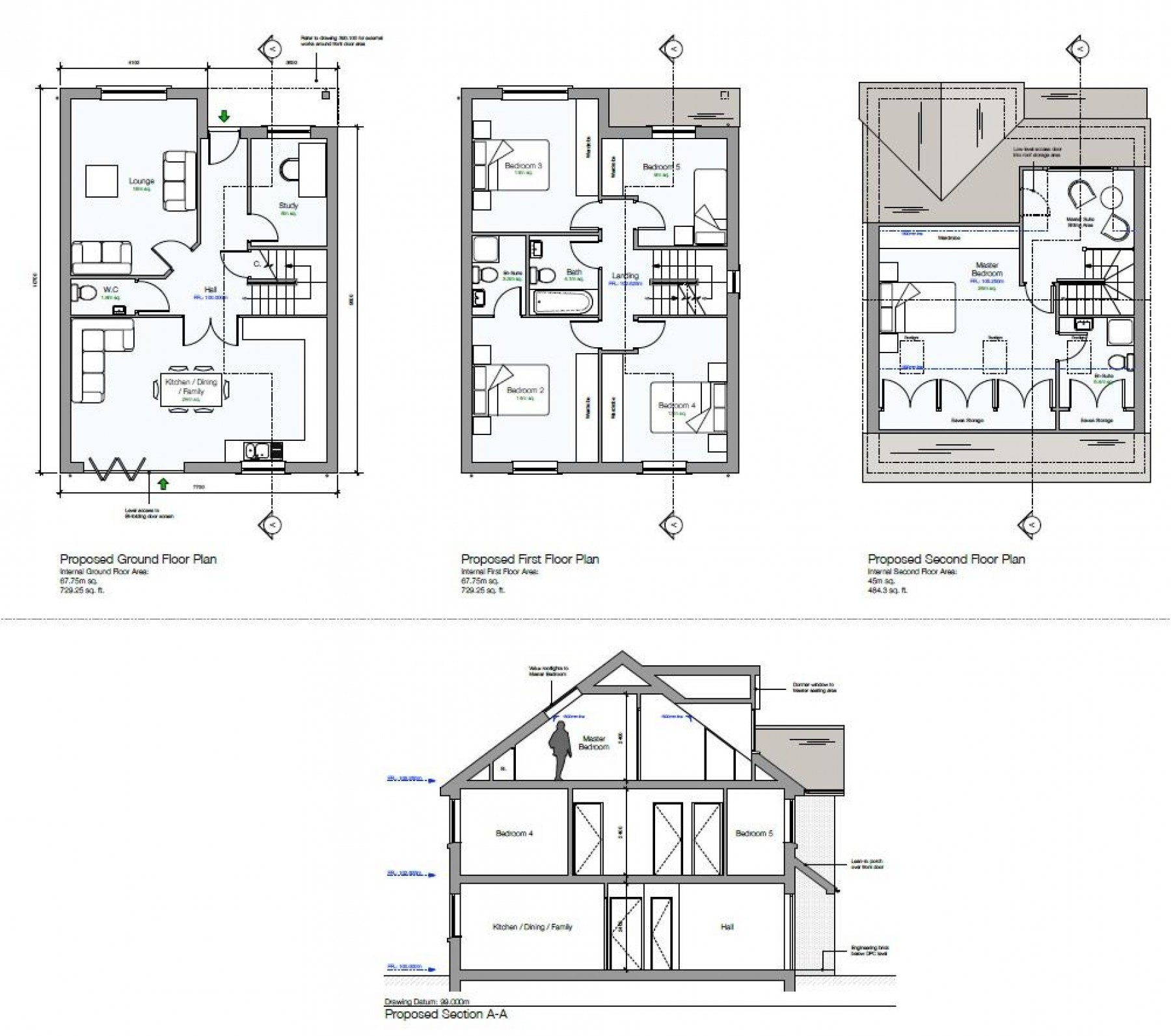
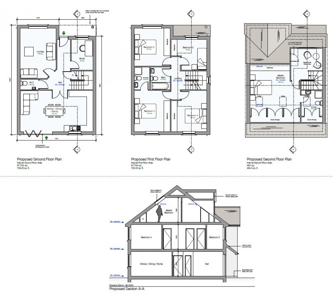
Planning has been granted to erect two detached luxury 5 bedroom family homes.

Each property is approx 2000 Sq Ft with tandem parking spaces and detached garage. The accommodation is arranged over three floors with the ground floor comprising reception room, study, cloakroom and large open plan kitchen, dining, family room with bi fold doors opening directly onto the enclosed South Facing garden. The second floor has four bedroom ( with one en suite ) and a family bathroom whilst the top floor provides the master bedroom with en suite and dressing area.

RESALE VALUES

Please contact Calum Melhuish, Residential Sales Manager, to discuss the value of this propertIes – calum@hollismorgan.co.uk

Calum Says; “ The market in BS9 and Coombe Dingle in particular is extremely buoyant, this combined with the scarcity of new build properties we can expect to achieve a premium price - on this basis i would suggest the resale values are in excess of £650,000 per unit."

PLANNING GRANTED

Reference 15/04150/F
Alternative Reference PP-04417971
Application Received Tue 11 Aug 2015
Application Validated Wed 26 Aug 2015
Proposal Erection of 2no. detached houses with five bedrooms (Use Class C3) with associated vehicular access, parking, detached garages, landscaping and drainage.
Status Decided
Decision GRANTED subject to condition(s)
Decision Issued Date Mon 02 Nov 2015


Local Information

Schools Stations Healthcare
Floorplan for Westbury Lane, Coombe Dingle, Bristol