Sold @ Auction £300,000

Development Site @, 48, Dubbers Lane, Fishponds, BS5 7EL

Bedrooms 16 Bathrooms 8 Reception 4

FOR SALE BY AUCTION

*** SOLD @ AUCTION FOR £300k ***

Guide £300K +++
LOT NUMBER 35
Wednesday 30th July 2014
All Saints Church Pembroke Road, Clifton, Bristol BS8 2HY
Legal packs will be available for inspection from 18:00.
The sale will begin promptly at 19:00

THE LAND

*** 1 ACRE IN TOTAL NOW INCLUDED - PLEASE REFER TO LEGAL PACK ***

A charming semi rural site of approximately 0.25 acre bordered by Greens Hill Woodlands with excellent access via Dubbers Lane.
Area : 0.233 acres (0.094 ha)
Length : 49.120 m (161.155 ft)
Width : 26.260 m (86.155 ft)

LOCATION

The land is located at the far end of Dubbers Lane and despite the semi rural feel is within 2 miles of the City Centre and a quarter mile from the local shopping facilities on Fishponds Road.

THE OPPORTUNITY

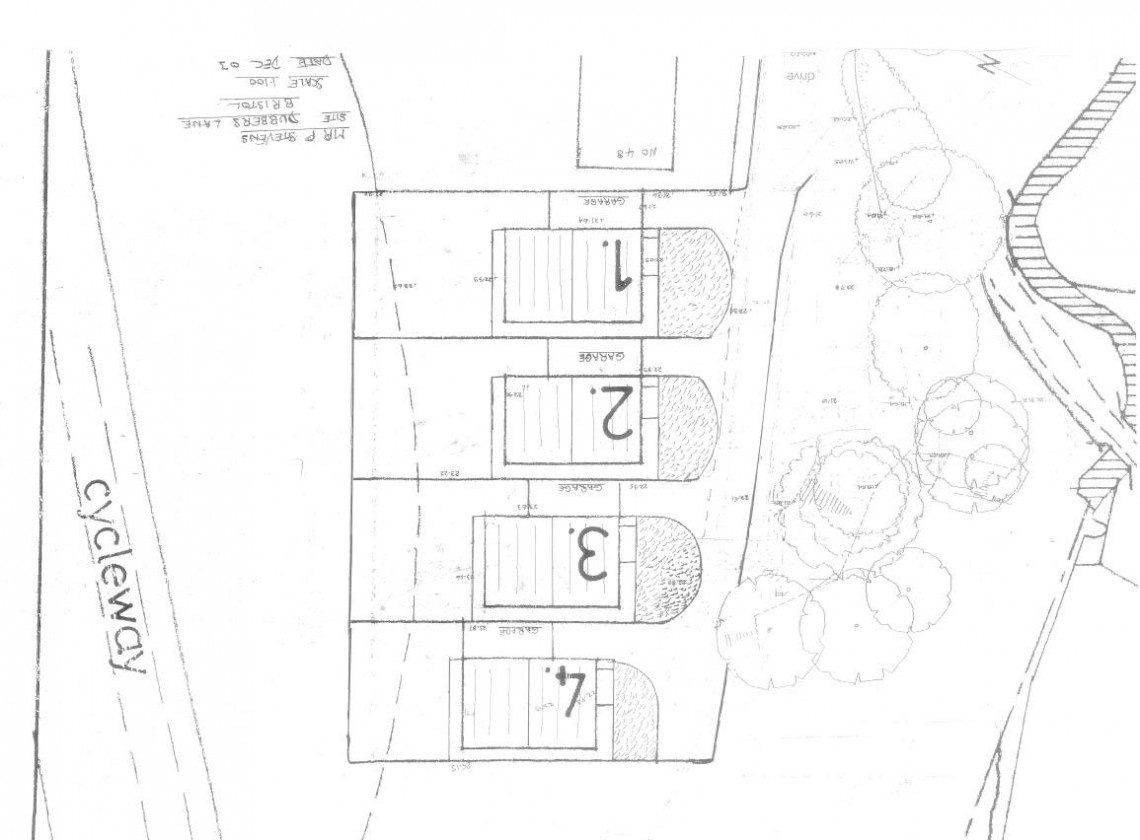
Planning was granted in 2004 to erect 4 x 4 bedroom detached houses.
Works have commenced ( see letter from council in online legal pack ) and we understand the planning is still valid and the site can continue to be built out.

PLANNING INFORMATION

Reference: 04/04534/F
Application Received: 28 Oct 2004
Address: Land Adjacent To 48 Dubbers Lane Bristol BS5 7EL
Proposal: Construction of 4 no single detached dwelling houses with garages.
Status: GRANTED subject to condition(s)
Appeal Status:
Appeal Decision:
Actual Decision Level: Delegated Decision

PLAND AND DRAWINGS

Basic planning information including a letter from the council acknowledging works have started is available to download and we are awaiting the original drawings.
We suggest buyers make their own enquiries.


Local Information

Schools Stations Healthcare