Sold @ Auction £95,000

Plot @, Stanshawes Drive, Yate, BS37 4ET

Bedrooms 4 Bathrooms 2

FOR SALE BY AUCTION

*** SOLD @ AUCTION - £95,000 ***

LOT NUMBER 20
Wednesday 22nd July 2015
All Saints Church Pembroke Road, Clifton, Bristol BS8 2HY
Legal packs will be available for inspection from 18:00.
The sale will begin promptly at 19:00

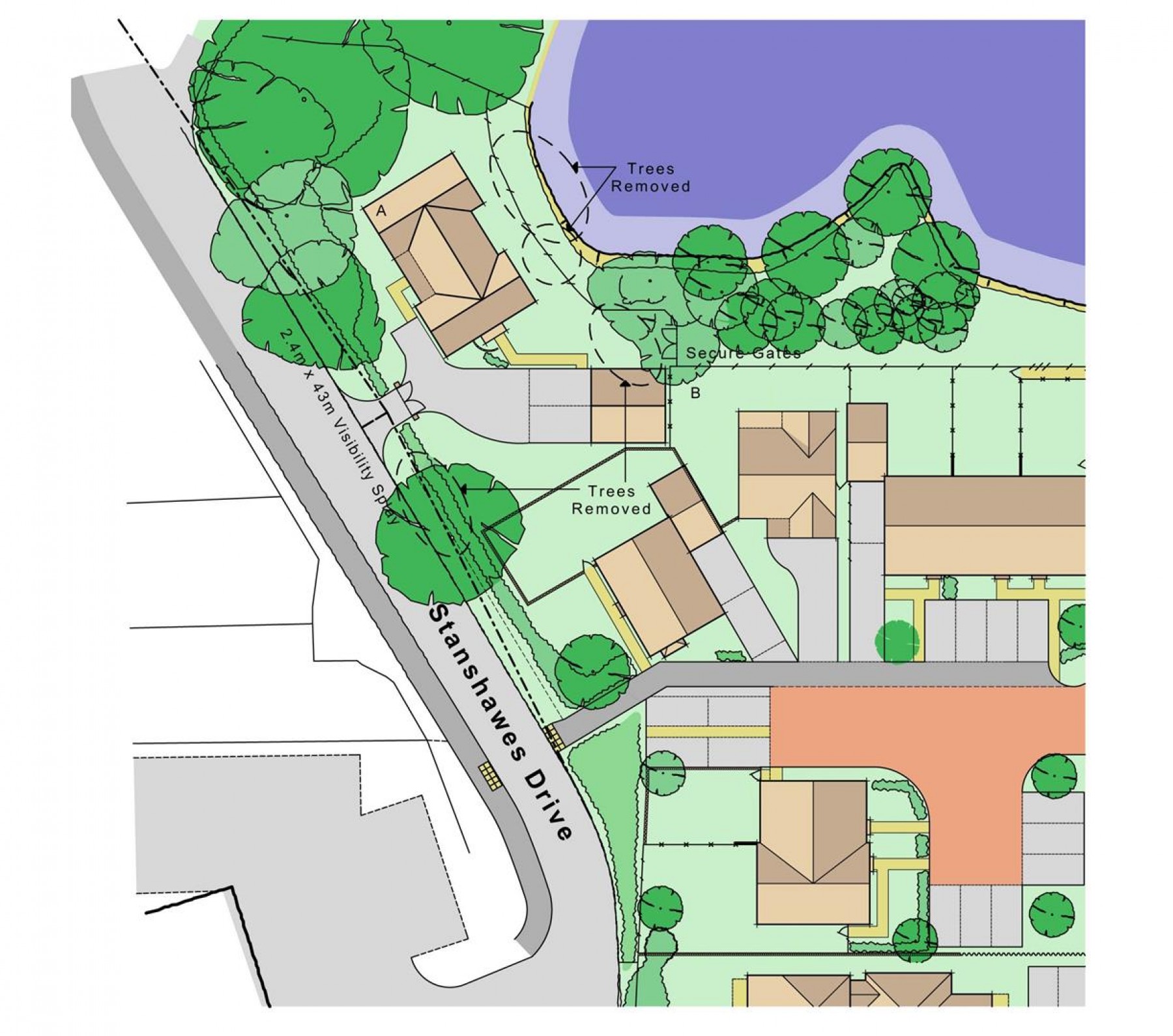
THE LAND

An enclosed parcel of land with vehicular access via Blue Cedar close and private driveway, the site backs overlooks a private Lake with mature trees.

LOCATION

Stanshawe Drive is a private residential area within Yate. Local amenities and services including Yate International Academy and Kingsgate Park are all within close proximity. Bristol City Centre is approximately eleven miles away.

THE OPPORTUNITY

Planning has been granted to erect a detached four bedroom family home which is designed to make the most of the scenic views of the lake to the rear.

PLANNING GRANTED

Appeal Ref: APP/P0119/W/14/3000831
Stanshawes Drive, Yate, South Gloucestershire
The appeal is made under section 78 of the Town and Country Planning Act 1990 against a refusal to grant planning permission.
The appeal is made by Terramond Limited against the decision of South Gloucestershire Council.
The application Ref PK14/1648/F, dated 24 April 2014, was refused by notice dated 2 October 2014.
The development proposed is the erection of 2 dwellings, access and all associated infrastructure.

DECISION

1. The appeal is ALLOWED and planning permission is GRANTED for the erection of 2 dwellings, access and all associated infrastructure at Stanshawes Drive, Yate, South Gloucestershire in accordance with the terms of the application, Ref PK14/1648/F, dated 24 April 2014 and the plans submitted with it, subject to the conditions set out in the annex to this decision.

PLANNING INFORMATION

Full details of the plans, decision notice and elevations can be downloaded with the online legal pack.

VAT

VAT will be payable on the Purchase Price unless the Buyer is able to give a warranty that they will use the Property for the purposes of constructing a dwelling house for their own use.


Local Information

Schools Stations Healthcare