Lot 14

The Coach House, 95A Chaplin Road, Easton, BS5 0LB

Sold @ Auction £100,000 +++

Bedrooms 2 Bathrooms 1 Reception 1

  • For Sale By Public Auction
  • Wednesday 24th February 2016
  • All Saints Church, Clifton, BS8 2HY
  • A
  • B
  • FEBRUARY 2016

FOR SALE BY AUCTION

GUIDE PRICE - £65K
SOLD @ AUCTION - £100K

LOT NUMBER 14
Wednesday 24th February 2016
All Saints Church Pembroke Road, Clifton, Bristol BS8 2HY
Legal packs will be available for inspection from 18:00.
The sale will begin promptly at 19:00

VIEWINGS

External Viewings at all Times.

SOLICITORS

Tim Adams
Adams Burrows
Tim@adamsburrows.co.uk
34 Broad Street, Staple Hill, Bristol, BS16 5NS
DX31855 STAPLE HILL
tel . 01179702240
fax. 01179702216

ONLINE LEGAL PACKS

Please visit the Hollis Morgan Website and select the chosen lot from our Current Auction List.
Legal Packs are free to download from Hollis Morgan.
Follow the RED link to "Download Legal Packs" For the first visit you will be required to register simply with your email and a password.
Having set up your account you can download legal packs or register to receive them if not yet available.
You will be automatically be updated if any new information is added.

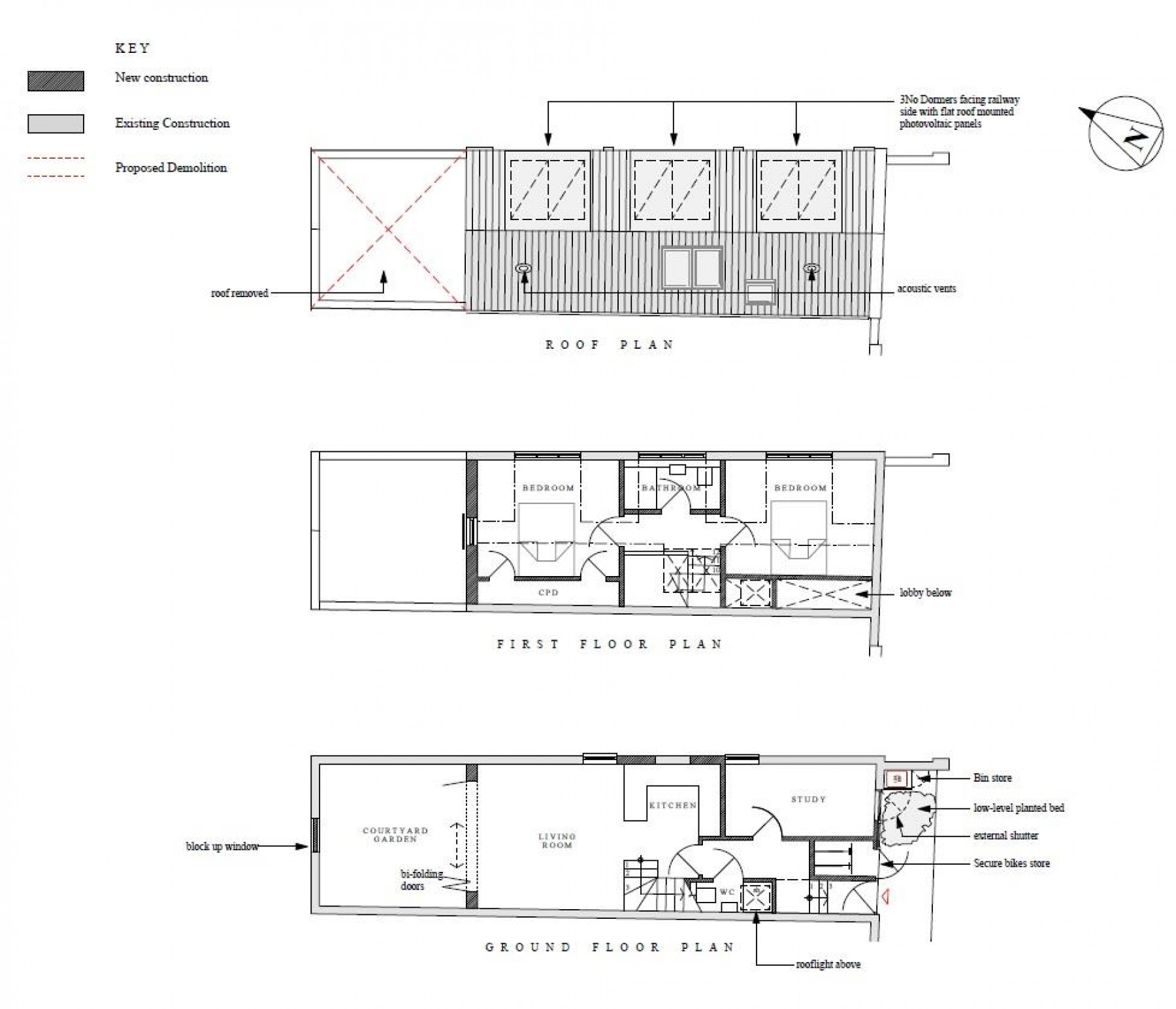
THE PROPERTY

A coach house situated at the end of Chaplin Road with full planning permission granted for conversion to a stylish 2 bedroom house.

LOCATION

Local amenities and services are all within walking distance. Bristol City Centre is approximately three miles away.

THE OPPORTUNITY

Planning granted and ready to develop in this highly sought after area close to the City Centre.

GROUND FLOOR

Study
WC
Open plan Kitchen Living Space

FIRST FLOOR

Bedroom 1
Bedroom 2
Bathroom

OUTSIDE

Courtyard Garden

PLANNING INFO

Reference: 15/03784/F
Application Received: 22nd July 2015
Address: 95A Chaplin Road Bristol BS5 0LB
Proposal: Conversion and change of use of the coach house from a light industrial use (Use Class B1c) to 2-bedroom dwelling (C3 Use Class).
Decision: GRANTED subject to condition(s)
Decision Issued Date: Tue 29 Dec 2015

PLANS

Full details of all plans, drawings etc. can be downloaded via the online legal pack.

EPC

For full details of the EPC please refer to the online legal pack.

BUYER'S PREMIUM

Please be aware all purchasers are subject to a £750 + VAT buyer's premium which is ALWAYS payable upon exchange of contracts whether the sale is concluded before, during or after the auction date.

GUIDE PRICE

An indication of the seller's current minimum acceptable price at auction. The guide price or range of guide prices is given to assist consumers in deciding whether or not to pursue a purchase. It is usual, but not always the case, that a provisional reserve range is agreed between the seller and the auctioneer at the start of marketing. As the reserve is not fixed at this stage and can be adjusted by the seller at any time up to the day of the auction in the light of interest shown during the marketing period, a guide price is issued. This guide price can be shown in the form of a minimum and maximum price range within which an acceptable sale price (reserve) would fall, or as a single price figure within 10% of which the minimum acceptable price (reserve) would fall. A guide price is different to a reserve price (see separate definition). Both the guide price and the reserve price can be subject to change up to and including the day of the auction.

RESERVE PRICE

The seller's minimum acceptable price at auction and the figure below which the auctioneer cannot sell. The reserve price is not disclosed and remains confidential between the seller and the auctioneer. Both the guide price and the reserve price can be subject to change up to and including the day of the auction.

OFFERS

Pre auction offers can be only submitted by completing the OFFER FORM which can be downloaded within the online legal pack. Please send the COMPLETED form to – olly@hollismorgan.co.uk Please note offers will not be considered until you have viewed the property and the COMPLETE legal pack has been released. In the event of an offer being accepted the property will only be removed from the auction and viewings stopped once contracts have successfully exchanged subject to the standard auction terms and payment of the buyers premium to Hollis Morgan.

AUCTION BUYERS GUIDE VIDEO

We have short video guides for both buying and selling by Public Auction on the Hollis Morgan Website. If you have any further questions regarding the process please don’t hesitate to contact Auction HQ.

TESTIMONIALS

We are very proud of what our past clients have say about us - please visit the Hollis Morgan website to read their testimonials.

CHARITY OF THE YEAR

Hollis Morgan are supporting Home Start Bristol as our 2016 Charity of the year. We are delighted to announce that 10% of every buyer’s premium will be donated to this excellent local charity – Home-Start Bristol provides a unique kind of help which has a profound impact on struggling families with young children, 98% of those who finished a period of support reported that their wellbeing had increased. If you would like to find out more about Home-Start Bristol and how you can support us please visit our website www.homestartbristol.org.uk


Local Information

Schools Stations Healthcare
Floorplan for Chaplin Road, Easton, Bristol Floorplan for Chaplin Road, Easton, Bristol