Lot 8

Land to the rear of, 12 Westbury Lane ( Access Via Grove Avenue ), Coombe Dingle, BS9 2PB

Sold @ Auction £500,000 +++

Bedrooms 10 Bathrooms 4 Reception 4

  • A
  • B
  • C
  • D
  • E
  • FEBRUARY 2016
  • DEVELOPMENT SITE
  • PLANNING GRANTED
  • 2 X 5 BEDS
  • GDV £1.3M

FOR SALE BY AUCTION

*** SOLD PRIOR TO AUCTION ***

LOT NUMBER 8
Wednesday 24th February 2016
All Saints Church Pembroke Road, Clifton, Bristol BS8 2HY
Legal packs will be available for inspection from 18:00.
The sale will begin promptly at 19:00

VIEWINGS

The Site can be viewed from Grove Avenue at all times.

SOLICITORS

Julian Chapman
Devereux & Co
52A High Street, Westbury on Trym, Bristol, BS9 3DZ
T: 0117 959 3344
Email: jpc@devlaw.co.uk

ONLINE LEGAL PACKS

Please visit the Hollis Morgan Website and select the chosen lot from our Current Auction List.
Legal Packs are free to download from Hollis Morgan.
Follow the RED link to "Download Legal Packs" For the first visit you will be required to register simply with your email and a password.
Having set up your account you can download legal packs or register to receive them if not yet available.
You will be automatically be updated if any new information is added.

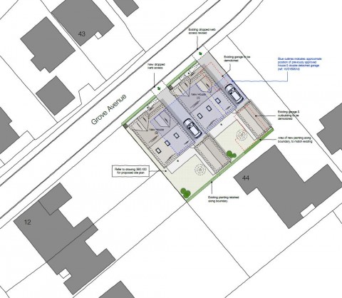
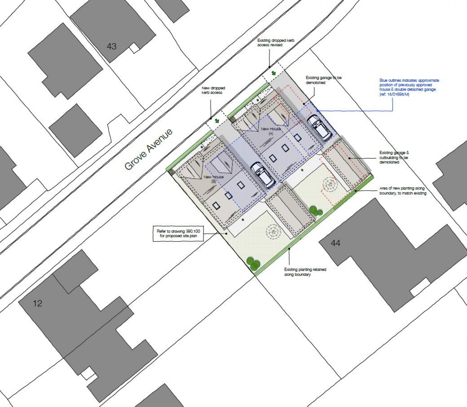
THE LAND

An enclosed Freehold parcel of land ( 0.11 Acres ) located at the rear of 12 Westbury Lane but approached from the much quieter Grove Avenue in this hugely desirable suburb of Bristol.

LOCATION

Grove Avenue in Coombe Dingle enjoys a semi-rural status on the cusp of suburbia, the Kings Weston Estate and the Dingle. There are neighbours in proximity and yet the wooded setting provides privacy and extreme tranquility. The adjacent environs offer bridle paths and foot paths with woodland and gorge walks. From this property a short idyllic walk will lead you through woods and the famous echo gate to the picturesque hamlet of Henbury with its historic church and famous graveyard. Equally a walk in another direction will take you to the village of Westbury on Trym are a myriad of shops and supermarkets suitable for day to day living as well as schools, primary, secondary, state and independent. For sporting pursuits there are golf courses, health, leisure and tennis clubs. Grove Avenue is in itself a unique semi - rural winding lane Road which has evolved over the years with old cottages and individual houses developed at different periods to provide the area with a unique charm and character of its own. Coombe Dingle which is situated in North West Bristol has excellent links to the motorway networks as well as Bristol's commercial centre

THE OPPORTUNITY

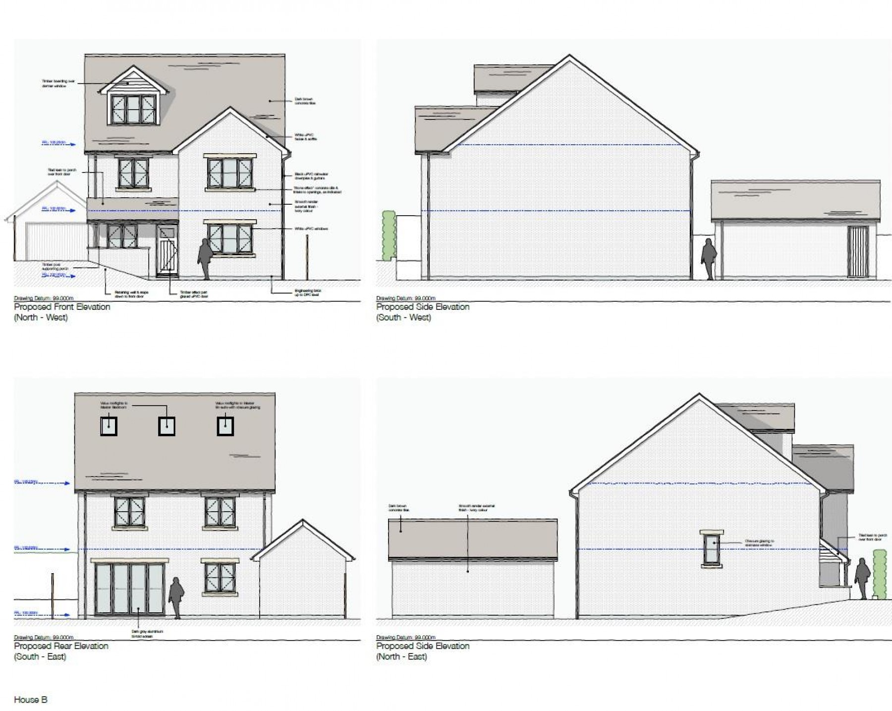
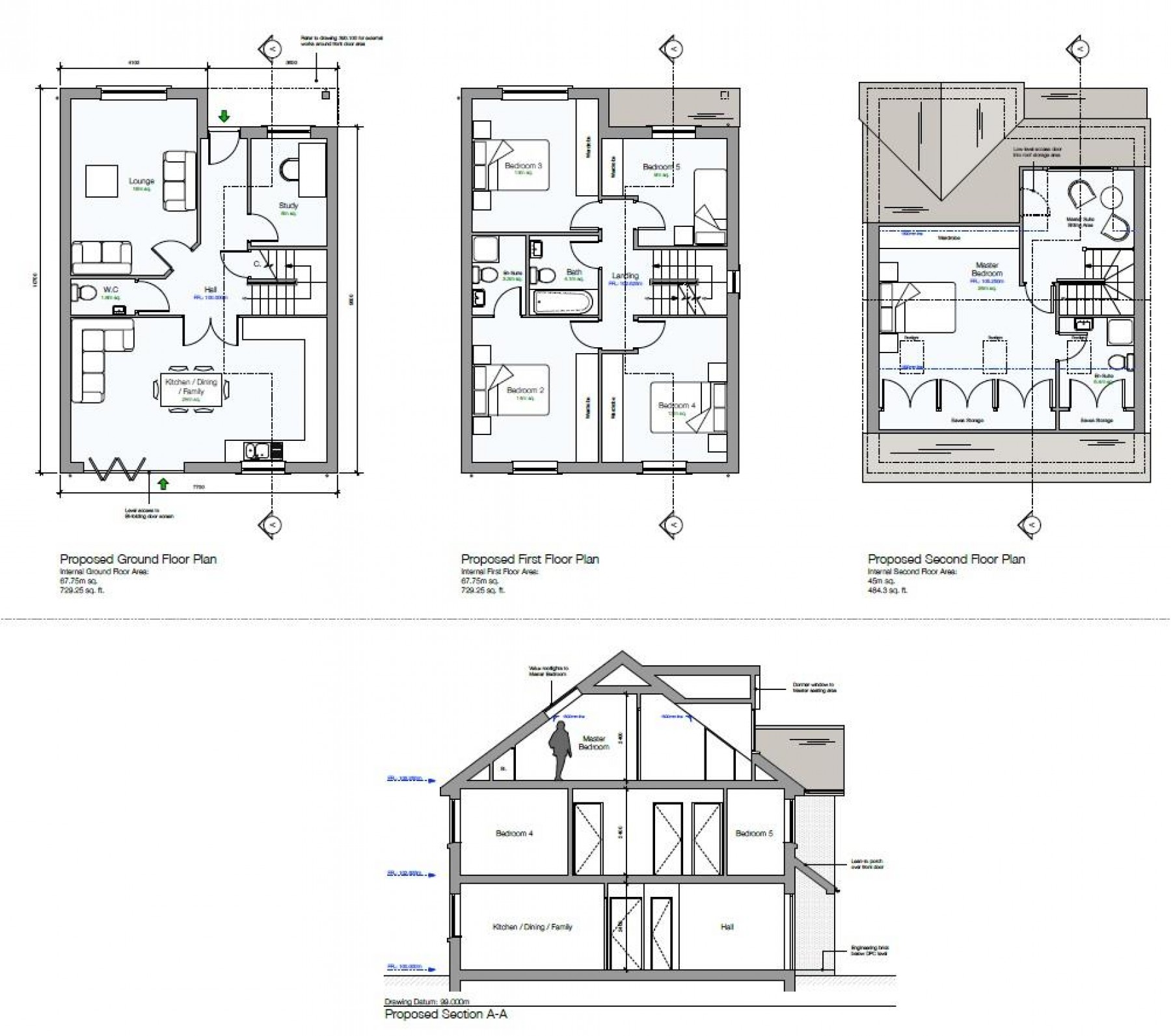
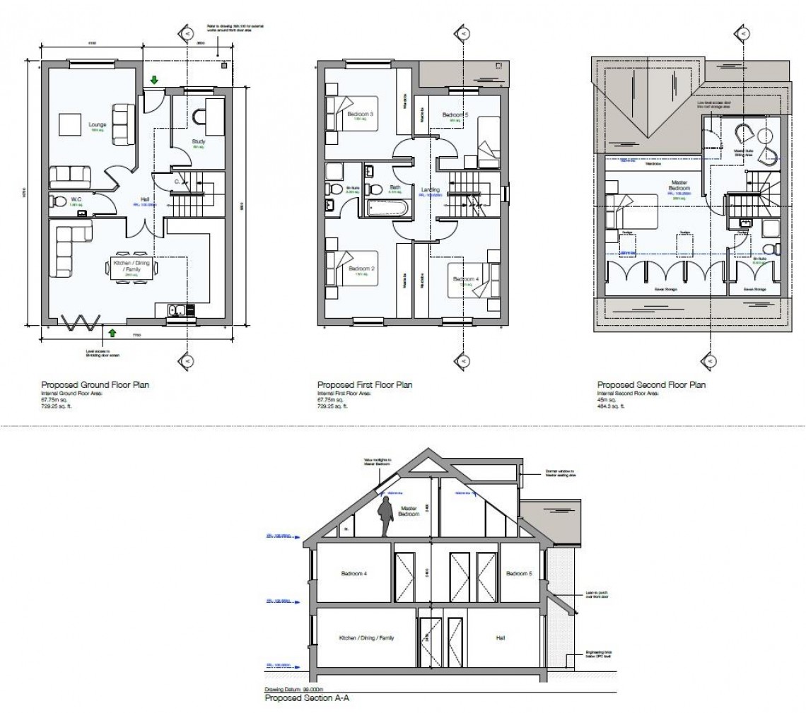
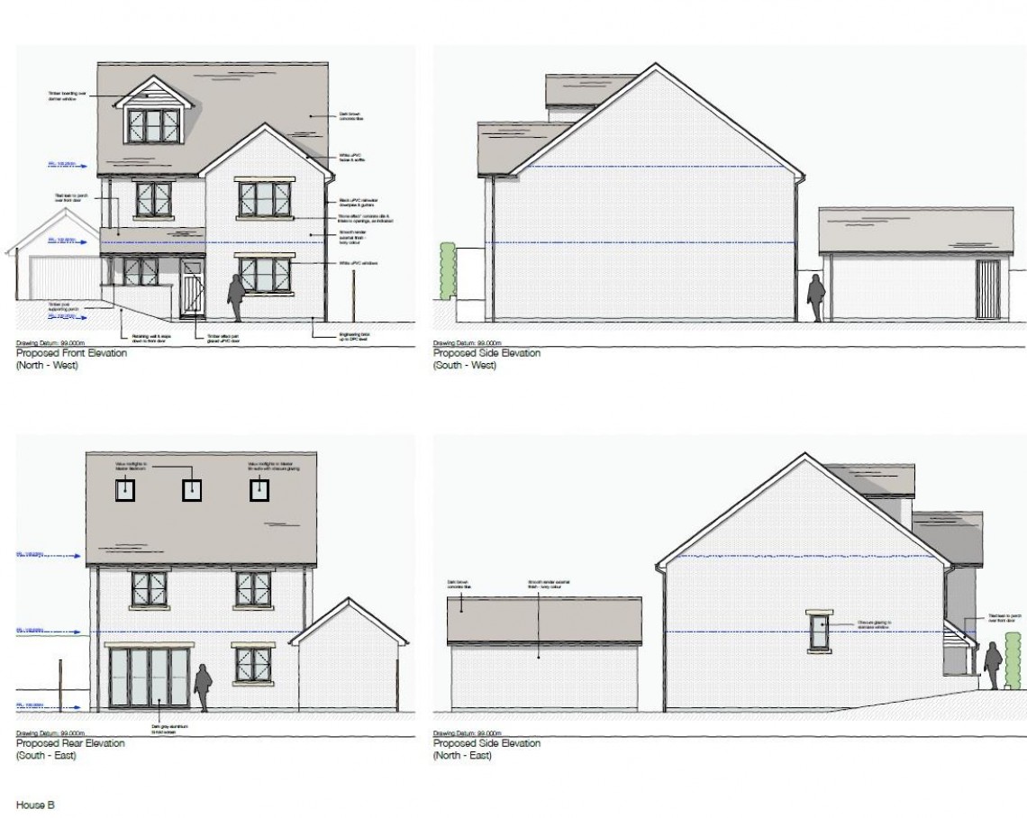
Planning has been granted to erect two detached luxury 5 bedroom family homes.

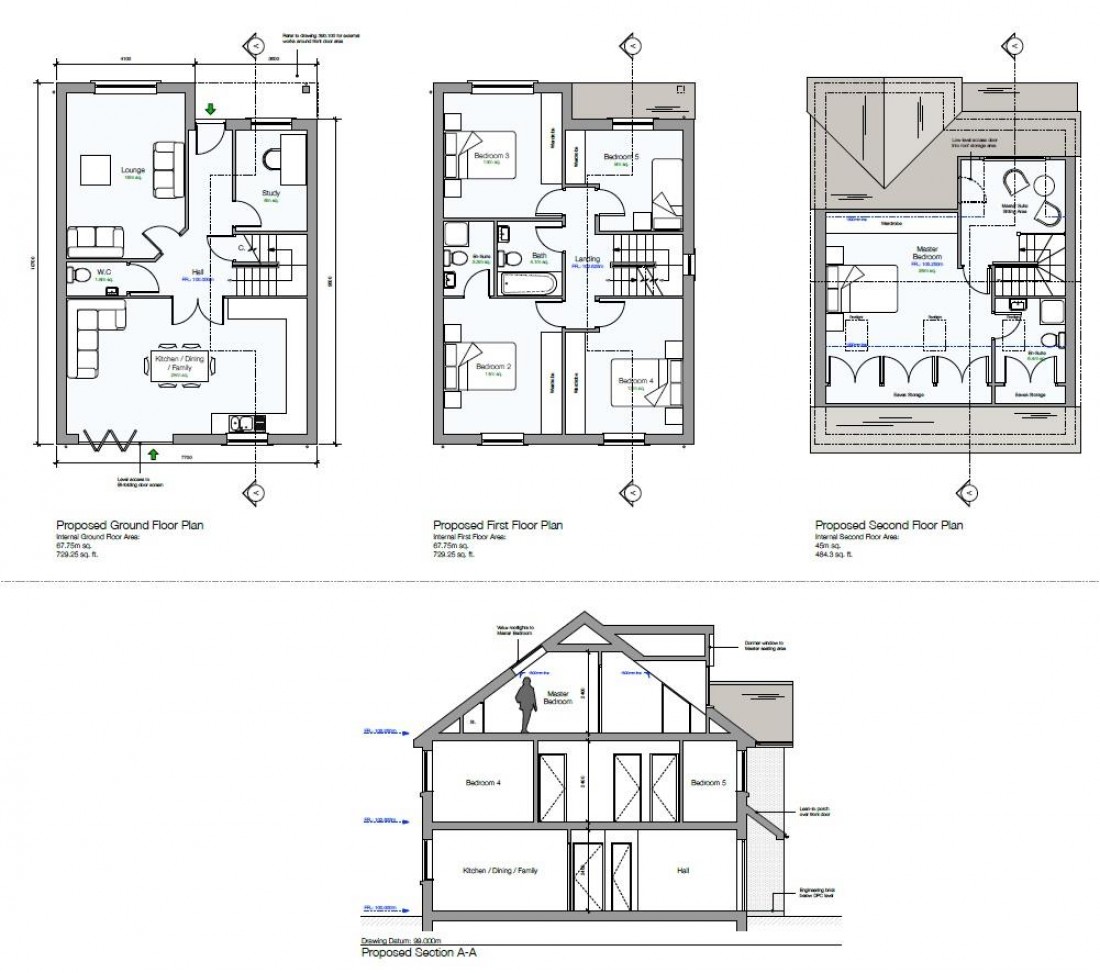
Each property is approx 2000 Sq Ft with tandem parking spaces and detached garage. The accommodation is arranged over three floors with the ground floor comprising reception room, study, cloakroom and large open plan kitchen, dining, family room with bi fold doors opening directly onto the enclosed South Facing garden. The second floor has four bedroom ( with one en suite ) and a family bathroom whilst the top floor provides the master bedroom with en suite and dressing area.

RESALE VALUES

Please contact Calum Melhuish, Residential Sales Manager, to discuss the value of this propertIes – calum@hollismorgan.co.uk

Calum Says; “ The market in BS9 and Coombe Dingle in particular is extremely buoyant, this combined with the scarcity of new build properties we can expect to achieve a premium price - on this basis i would suggest the resale values are in excess of £650,000 per unit."

PLANNING GRANTED

Reference 15/04150/F
Alternative Reference PP-04417971
Application Received Tue 11 Aug 2015
Application Validated Wed 26 Aug 2015
Proposal Erection of 2no. detached houses with five bedrooms (Use Class C3) with associated vehicular access, parking, detached garages, landscaping and drainage.
Status Decided
Decision GRANTED subject to condition(s)
Decision Issued Date Mon 02 Nov 2015

BUYER'S PREMIUM

Please be aware all purchasers are subject to a £750 + VAT buyer's premium which is ALWAYS payable upon exchange of contracts whether the sale is concluded before, during or after the auction date.

GUIDE PRICE

An indication of the seller's current minimum acceptable price at auction. The guide price or range of guide prices is given to assist consumers in deciding whether or not to pursue a purchase. It is usual, but not always the case, that a provisional reserve range is agreed between the seller and the auctioneer at the start of marketing. As the reserve is not fixed at this stage and can be adjusted by the seller at any time up to the day of the auction in the light of interest shown during the marketing period, a guide price is issued. This guide price can be shown in the form of a minimum and maximum price range within which an acceptable sale price (reserve) would fall, or as a single price figure within 10% of which the minimum acceptable price (reserve) would fall. A guide price is different to a reserve price (see separate definition). Both the guide price and the reserve price can be subject to change up to and including the day of the auction.

RESERVE PRICE

The seller's minimum acceptable price at auction and the figure below which the auctioneer cannot sell. The reserve price is not disclosed and remains confidential between the seller and the auctioneer. Both the guide price and the reserve price can be subject to change up to and including the day of the auction.

OFFERS

Pre auction offers can be only submitted by completing the OFFER FORM which can be downloaded within the online legal pack. Please send the COMPLETED form to – olly@hollismorgan.co.uk Please note offers will not be considered until you have viewed the property and the COMPLETE legal pack has been released. In the event of an offer being accepted the property will only be removed from the auction and viewings stopped once contracts have successfully exchanged subject to the standard auction terms and payment of the buyers premium to Hollis Morgan.

AUCTION BUYERS GUIDE VIDEO

We have short video guides for both buying and selling by Public Auction on the Hollis Morgan Website. If you have any further questions regarding the process please don’t hesitate to contact Auction HQ.

TESTIMONIALS

We are very proud of what our past clients have say about us - please visit the Hollis Morgan website to read their testimonials.

CHARITY OF THE YEAR

Hollis Morgan are supporting Home Start Bristol as our 2016 Charity of the year. We are delighted to announce that 10% of every buyer’s premium will be donated to this excellent local charity – Home-Start Bristol provides a unique kind of help which has a profound impact on struggling families with young children, 98% of those who finished a period of support reported that their wellbeing had increased. If you would like to find out more about Home-Start Bristol and how you can support us please visit our website www.homestartbristol.org.uk


Local Information

Schools Stations Healthcare
Floorplan for Westbury Lane, Coombe Dingle, Bristol