UNDER OFFER, Guide Price £950,000

Yew Tree Farm, Upper Town Lane, Felton, BS40 9YF

Bedrooms 14 Bathrooms 7 Reception 2

THE PROPERTY

This unique complex of properties comprises an original farmhouse, cottages and modern properties creating a small hamlet on the edge of this popular village. The properties all require some up-grading and finishing off. The site borders picturesque open rolling countryside and each individual property has its own garden and will enjoy the ambiance of village community life and the rural idyll. In addition there is an adjoining paddock of rough amenity land.
Circa 1.5 Acres.

LOCATION

Felton is a charming village lying just off the A38 within approximately eight miles of the centre of Bristol and within circa twenty to thirty minutes commuting distance of all the facilities of a major city conurbation. Lying at the western end of the highly desirable Chew Valley with its lakes offering fishing and sailing facilities, Felton comprises an intimate community of all age groups with both period and modern houses at its centre. The market village of Winford is nearby whilst Chew Magna with its excellent shopping and other facilities is within a few miles drive. Bristol airport is also easily accessible and the cities of both Bath and Wells are within travelling distance. Excellent schools in the area are often one of the reasons people choose to live in the village and the nearby primary school at Winford, and Chew Valley Secondary School, between Chew Stoke and Chew Magna are always sought after and in demand.

THE OPPORTUNITY

Planning has been granted to develop the site.

This is a rare investment/development opportunity in a most convenient rural location offering the following opportunities:-

The individual houses can obviously be up-graded and sold off.

The properties could be up-graded and rented out.

The properties could be used for some sort of quasi commercial use i.e. a bed and breakfast complex or possibly some sort of institutional purpose, possible retirement complex etc all subject to obtaining any necessary planning and other consents.

The density of the development could also be re-visited as well as the long term future of the amenity land.

SERVICES

Mains water. Mains sewerage for Dwellings 3, 5, 6 & 7.
Refer to legal pack

PLANNING

Application type: Full Planning Permission
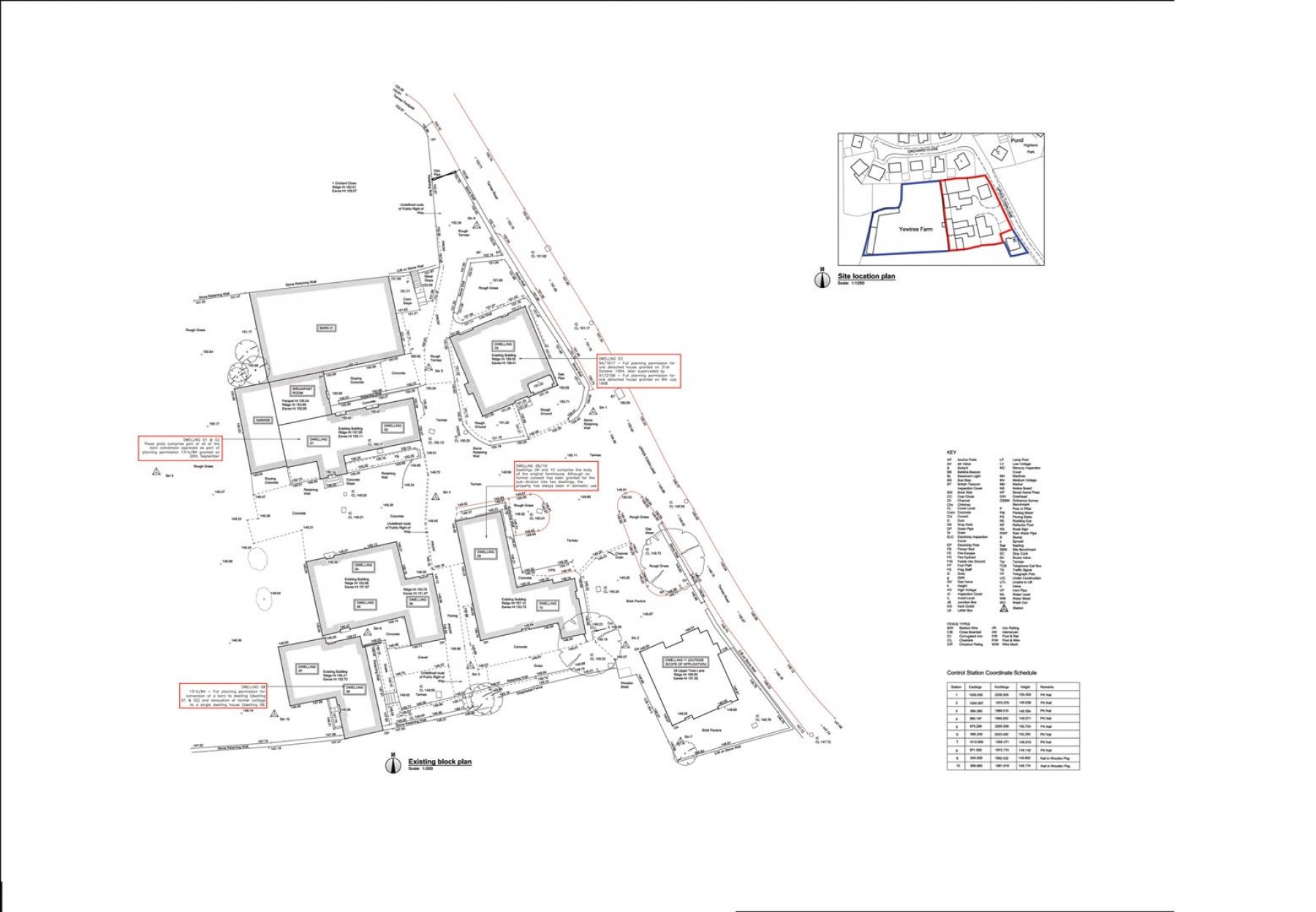
Development: Subdivision of farm house and existing dwelling (barn conversion) to form 2 additional dwellings with associated landscaping and parking including demolition of Barn 1 and outbuildings . Extensions and alterations to existing dwellings.
Location: Yewtree Farm Upper Town Lane Felton Winford BS40 9YF
Application no: 14/P/0210/F

PLANNING SCHEDULE

Dwelling 1 121m2. Stone built semi detached barn conversion 4 bedrooms

Dwelling 2 87m2. Stone built semi detached barn conversion 3 bedrooms

Dwelling 3 179m2. Modern detached house, 4 bedrooms

Dwelling 4 179m2. Stone built detached barn conversion 4 bedrooms, 0.7acre paddock

Dwelling 5 87m2. Semi detached farmhouse, 3 bedrooms

Dwelling 6 86m2. Semi detached farmhouse, 3 bedrooms

Dwelling 7 131m2. Modern detached house, 4 bedrooms

PLANING INFO

Details of the planning and all relevant drawings, maps and elevations can be downloaded with the online legal pack.


Local Information

Schools Stations Healthcare