FOR SALE £650,000

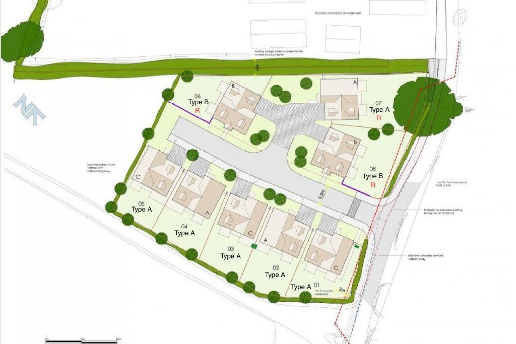
Plot 2, Ladymead Lane, Langford, BS40 5EF

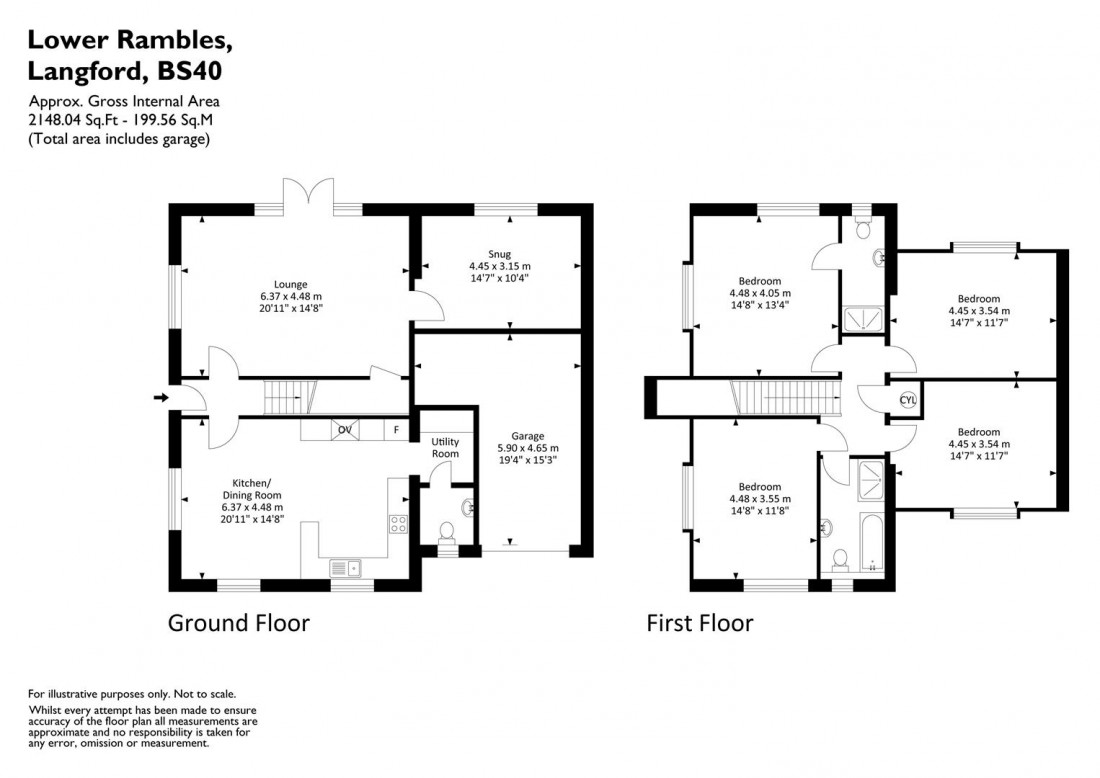
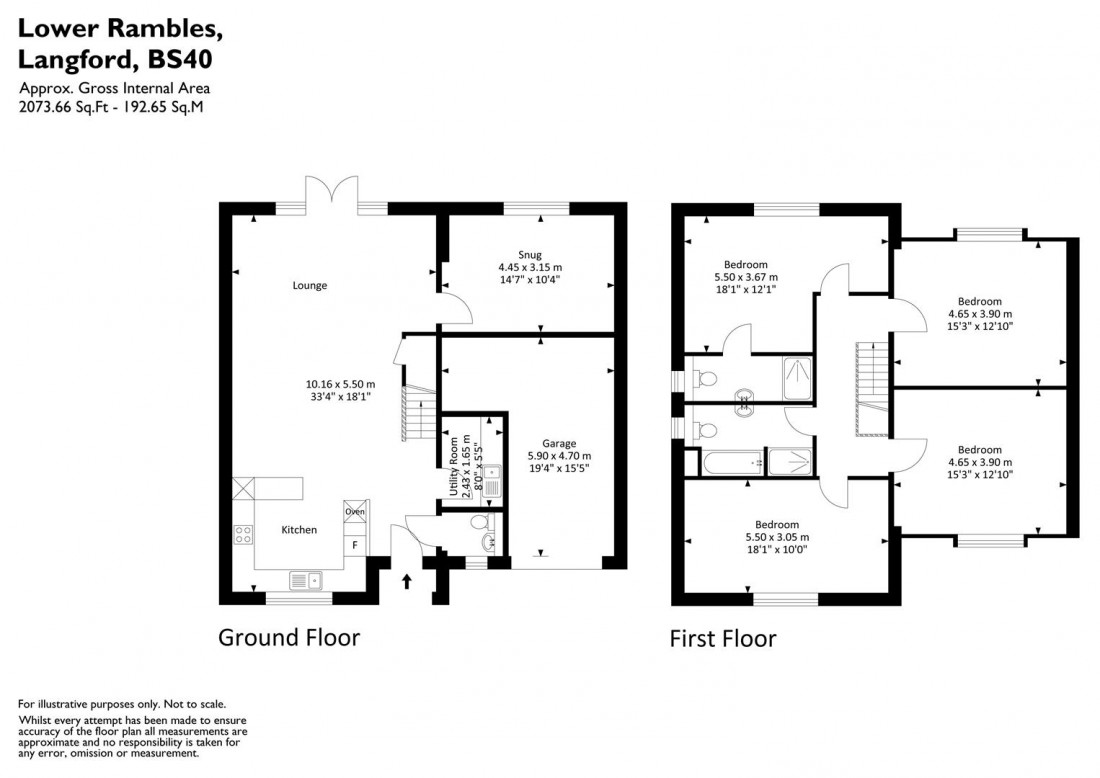
Bedrooms 4 Bathrooms 3 Reception 2

  • Bespoke Development of just 8 Homes
  • 10 Year ICW Warranty
  • Circa 2000 sq ft
  • Spring 2026 Build Completion (SHOW HOME AVAILABLE TO VIEW EARLY 2026)
  • Gas Central Heating
  • Rear Garden with Patio
  • 4 Double Bedrooms
  • Three Bathrooms
  • Viewings Stricly by Appointment Only
  • Driveway

The Development

This charming development of just 8 homes are located in the desirable village of Langford in North Somerset, each of which detached offering 4 bedrooms with integral garages.

External Specification

Bath Stone/Anthracite clad finish
Red Pantile Roof Tiles
Anthracite Windows, doors and guttering.
Paved Driveway with lawn area
Turfed Gardens with patio area
Solar Panels
Outside Tap

Internal Specification

Fitted kitchen with granite worktops and appliances ( Please refer to agent for specifics)
Ground floor flooring TBC, upstairs bedrooms will be carpeted.
Electric up & over door with electric charging point for vehicle.
Full Gas central heating with radiators
Full Height Wall tiles to all Bathrooms & En-Suites
Roca Gap Sanitary ware
Shower Trays with fixed Glass panel or Sliding door
Hansgrohe Taps & Showers
Fitted kitchen with granite worktops and appliances ( Please refer to agent for specifics)
Oak finished doors throughout
Electric up & over door with electric charging point for vehicle.
Broadband

Location

The Village of Langford is located in the heart of the beautiful North Somerset countryside. Local facilities include the supermarket and filling station a short distance away and the village itself has a popular public house and a hairdresser. The doctor’s surgery for the local villages relocated to a brand-new building in Pudding Pie Lane in 2014. A more comprehensive range of facilities is available at the nearby village of Wrington. There is a primary school at Churchill ( and secondary schooling at Churchill Academy and Sixth Form Centre ( which has recently been awarded ‘Outstanding’ by Ofsted and benefits from a modern sport compl

Please note

Hollis Morgan endeavour to make our sales details clear, accurate and reliable in line with the Consumer Protection from Unfair Trading Regulations 2008 but they should not be relied on as statements or representations of fact and they do not constitute any part of an offer or contract. All Hollis Morgan references to planning, tenants, boundaries, potential development, tenure etc is to be superseded by the information provided in your solicitors enquiries. It should not be assumed that this property has all the necessary Planning, Building Regulation or other consents. Any services, appliances and heating system(s) listed may not been checked or tested and you should rely on your own investigations. The seller does not make any representation or give any warranty in relation to the property and we have no authority to do so on behalf of the seller. Please note that in some instances the photographs may have been taken using a wide angle lens.

Other Information

Freehold.
Council Tax Band: New build - rate not available yet


Local Information

Schools Stations Healthcare
Floorplan for Lower Rambles, Langford Floorplan for Lower Rambles, Langford