FOR SALE, Auction Guide Price +++ £20,000

Barn 3, Bridge Farm, Bell Hill, Stapleton, BS16 1BQ

Bedrooms 1 Bathrooms 1 Reception 1

  • FOR SALE BY ONLINE AUCTION
  • AUCTION DATE TBC
  • VIRTUAL TOUR NOW ONLINE
  • VIEWINGS – REFER TO DETAILS
  • DOWNLOAD FREE LEGAL PACK
  • POSTPONED | DELAY LEGAL PACK
  • STONE BARN FOR DEVELOPMENT
  • RESI PLANNING GRANTED
  • UNIQUE COMMUNITY LOCATION
  • EXTENDED 8 WEEK COMPLETION

FOR SALE BY LIVE ONLINE AUCTION

ADDRESS | Barn 3 @ Bridge Farm, Bell Hill Stapleton, Bristol, BS16 1BQ

Auction Date TBC - Delay with Legal Pack
Please register your interest and we will keep you updated on when we can offer the barns.

The Auction will be streamed LIVE ONLINE via the Hollis Morgan website & you can choose to bid by telephone, proxy or via your computer.
Registration is a simple online process – please visit the Hollis Morgan auction website and click “REGISTER TO BID”

GUIDE PRICE RANGE

The vendors have issued a guide price range of £20,000 - £40,000 for this lot.

THE PROPERTY

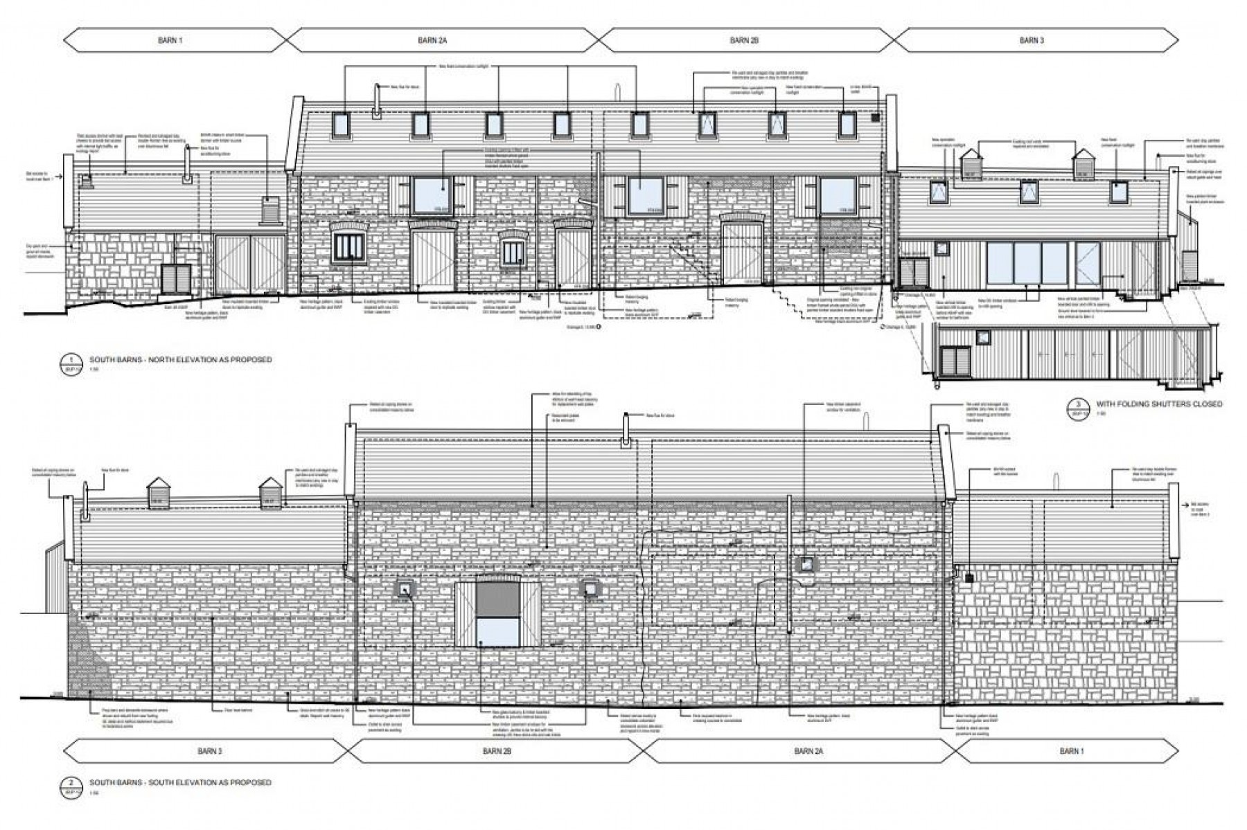
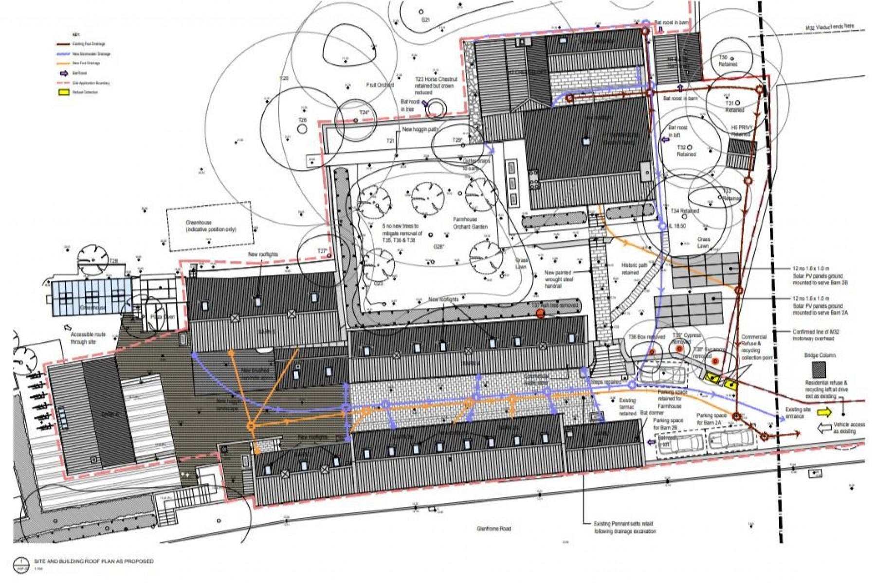
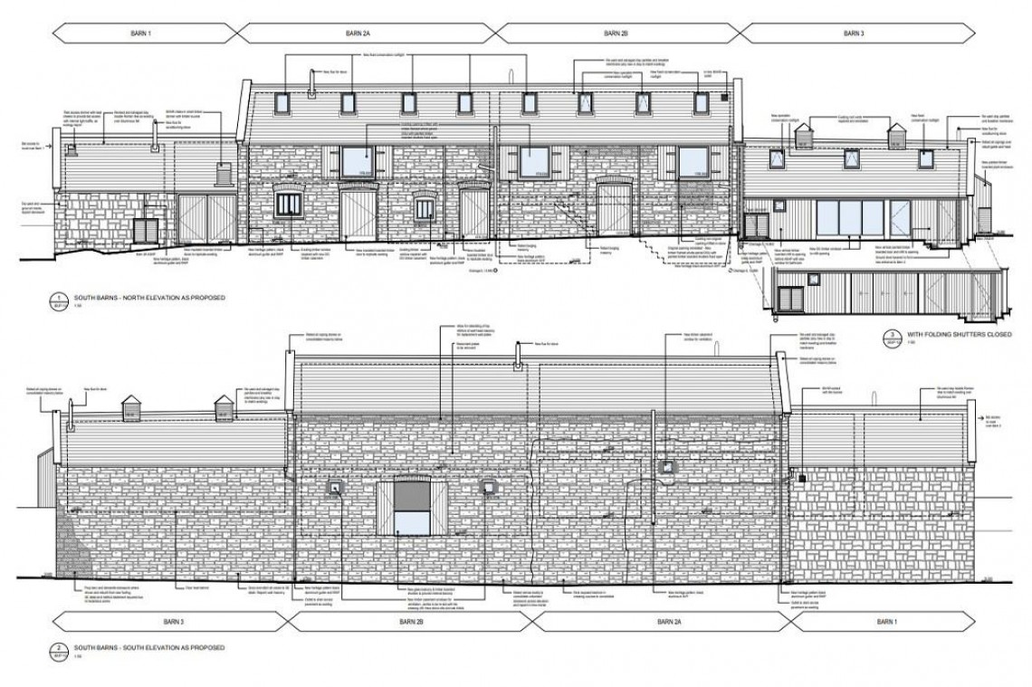
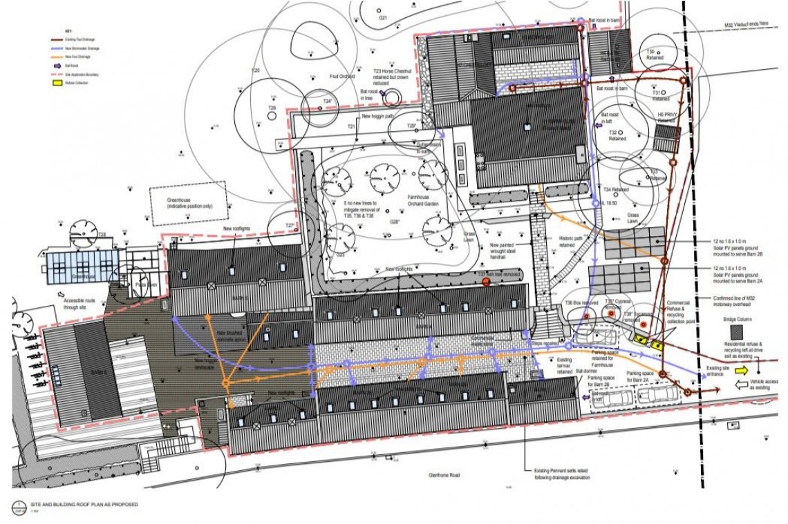
A classic terraced stone barn with 419 Sq Ft of accommodation with access via a charming cobbled street at the heart of the Bridge Farm Community development located just moments from the heart of the City yet set within 3.5 acres with planning recently applied for 12 low energy homes, with a terrace of 8 along Glenfrome Road, and 4 as a new terrace just above ( refer to proposed scheme images )
Sold with vacant possession

Tenure - Leasehold - New 999 year lease ( with a not-for-profit community organisation holding the freehold, which is integral to the wellbeing of the Bridge Farm Community as a whole )
Utilities, Rights & Restrictions - Please refer to the Legal Pack
Flood Risk - Please refer to the Legal Pack

THE OPPORTUNITY

BARN | RESI PLANNING GRANTED

Planning has been granted to covert the barns into a 1 bedroom residential dwelling with accommodation ( 398Sq Ft ) comprising en suite bedroom plus and an open plan kitchen / diner / living space plus a small courtyard garden to the side.
Please refer to proposed scheme.

PLANNING GRANTED

Reference20/05973/F
Alternative ReferencePP-09160350
Application ReceivedThu 10 Dec 2020
Application ValidatedFri 09 Apr 2021
AddressBridge Farm Bell Hill Bristol BS16 1BQ
ProposalRestoration of Grade II listed farmhouse dwelling and change of use to five-bedroom house in multiple occupation (use class C4); Conversion and change of use of outbuildings to create x3 dwellings (use class C3), craft studio workshops, a retail unit, cafe (all use class E) and community events space (use class F).
StatusDecided
DecisionGRANTED subject to condition(s)
Decision Issued DateFri 03 May 2024

PLANNING INFORMATION

Full details of the proposed scheme and drawings can be downloaded with the online legal pack.

LOCATION

The farmhouse sits within the grounds of Bridge Farm, which covers an area of circa 3.5 acres and abuts Glenfrome Road and Bell Hill in Stapleton. Easy access is provided to a range of local amenities in Stapleton village and excellent transport/cycle links are available into the city centre.

SOLICITORS & COMPLETION

Solicitor Contact TBC

EXTENDED COMPLETION

Completion is set for 8 weeks or earlier subject to mutual consent.

IMPORTANT AUCTION INFORMATION

VIEWINGS

Please submit a viewing request online and we will contact you to organise an appointment.
We will send you an email and text to confirm the appointment time and the full property address.
Viewings are supervised by a member of the Hollis Morgan Auction team who will meet you at the property.

MATERIAL INFORMATION

Information including utilities, Electricity supply, Water supply, Sewerage, Heating, Broadband, Mobile signal / coverage, Parking, Building safety, Restrictions and rights, Rights and easements, Flood risk, Erosion risk, Coastal erosion risk, Planning permission for proposal for development, Property accessibility / adaptations, Coalfield or mining area all of which will be supplied within the legal pack that can be accessed for free via the Hollis Morgan website or via your EIG account.

ONLINE LEGAL PACKS

Digital Copies of the Online legal pack can be downloaded Free of Charge.
Please visit the Hollis Morgan Website and select the chosen lot from our Current Auction List.
Press the GREEN button to "Download Legal Packs" For the first visit you will be required to register simply with your email and a password.
Having set up your account you can download legal packs or if they are not yet available, they will automatically be sent to you when we receive them.
You will be automatically updated by email if any new information is added.
There will be a note added to the list to confirm AUCTION PACK NOW COMPLETE when no further information is due to be added.
*** STAY UPDATED *** By registering for the legal pack we can ensure you are kept updated on any changes to this Lot in the build up to the sale.

BUYER’S PREMIUM

Please be aware all purchasers are subject to a £1,500 + VAT (£1,800 inc VAT) buyer's premium which is ALWAYS payable upon exchange of contracts whether the sale is concluded before, during or after the auction date.

GUIDE PRICE

An indication of the seller's current minimum acceptable price at auction. The guide price or range of guide prices is given to assist consumers in deciding whether to pursue a purchase. It is usual, but not always the case, that a provisional reserve range is agreed between the seller and the auctioneer at the start of marketing. As the reserve is not fixed at this stage and can be adjusted by the seller at any time up to the day of the auction in the light of interest shown during the marketing period, a guide price is issued. This guide price can be shown in the form of a minimum and maximum price range within which an acceptable sale price (reserve) would fall, or as a single price figure within 10% of which the minimum acceptable price (reserve) would fall. A guide price is different to a reserve price (see separate definition). Both the guide price and the reserve price can be subject to change up to and including the day of the auction.

RESERVE PRICE

The seller's minimum acceptable price at auction and the figure below which the auctioneer cannot sell. The reserve price is not disclosed and remains confidential between the seller and the auctioneer. Both the guide price and the reserve price can be subject to change up to and including the day of the auction.

PRE AUCTION OFFERS

Some vendors are willing to consider offers prior to the auction.
Pre auction offers can ONLY be submitted by completing the online PRE AUCTION OFFER FORM
The form can be found on the Hollis Morgan website on the individual auction property listing.
Please note offers will not be considered until you have inspected the COMPLETE LEGAL PACK once it has been released.
There will be a note added to the list to confirm AUCTION PACK NOW COMPLETE when our client’s solicitor informs us no further information is due to be added.
In the event of an offer being accepted the property will only be removed from the online auction and viewings stopped once contracts have successfully EXCHANGED subject to the standard auction terms and payment of the buyer’s premium (£1,800 Inclusive of VAT) to Hollis Morgan.
Contracts can be exchanged via the solicitors or at the Hollis Morgan offices by appointment only.

REGISTRATION PROCESS

The registration process is extremely simple – visit the Hollis Morgan auction website and click on the “Register to Bid” button.
The “Register to Bid” button can be found on the auction home page or on the individual lot listings.
Please note this function is not available on Rightmove or Zoopla.

Stage 1 – Complete the Online Bidding Form
Stage 2 – Upload your certified ID
Stage 3 – Invitation to bid
Stage 4 – Pay your security deposit (£6,800)

You are now ready to bid – Good luck!

If your bid is successful, the balance of the deposit monies must be transferred to our client account within 24 hours of the auction sale.
If you are unsuccessful at the auction your holding deposit will be returned within 48 hours.

SURVEYS AND VALUATIONS

If you would like to arrange a survey or mortgage valuation of this Lot BEFORE the auction, please instruct your appointed surveyor to contact Hollis Morgan and we will arrange access for them to inspect the property. Please note that buyers CANNOT attend the surveys and the surveyors are responsible for collecting and returning keys to the Hollis Morgan offices in Clifton.

AUCTION FINANCE & BRIDGING LOANS

Some properties may require specialist auction finance- please contact Hollis Morgan for access to expert advice and whole of market rates from our independent brokers.

Hollis Morgan may receive introductory fees for this service from the broker.

AUCTION BUYER’S GUIDE VIDEO

We have short video guides for both buying and selling by Public Auction on the Hollis Morgan Website. If you have any further questions regarding the process, please don’t hesitate to contact Auction HQ.

2025 CHARITY OF THE YEAR

Hollis Morgan is supporting Uncle Pauls Chilli Charity empowering socially disadvantaged people with barriers to learning &/or disabilities based in Butcombe, North Somerset, our land overlooks the Mendip Hills and Blagdon lake. There are three main areas of focus at Uncle Paul’s Chilli Charity Education, Wellbeing and Social Prescribing – visit www.chillicharity.org.uk/ for more details or the Hollis Morgan Charity Page of our website.

AUCTION PROPERTY DETAILS DISCLAIMER

Hollis Morgan endeavour to make our sales details clear, accurate and reliable in line with the Consumer Protection from Unfair Trading Regulations 2008 but they should not be relied on as statements or representations of fact, and they do not constitute any part of an offer or contract. All Hollis Morgan references to planning, tenants, boundaries, potential development, tenure etc is to be superseded by the information contained in the legal pack. It should not be assumed that this property has all the necessary Planning, Building Regulation, or other consents. Any services, appliances and heating system(s) listed have not been checked or tested. Please note that in some instances the photographs may have been taken using a wide-angle lens. The seller does not make any representation or give any warranty in relation to the property, and we have no authority to do so on behalf of the seller.


Local Information

Schools Stations Healthcare
Floorplan for BARN WITH PLANNING | STAPLETON BS16 Floorplan for BARN WITH PLANNING | STAPLETON BS16