Lot TBC

Development Site @ St Aldams Drive, Pucklechurch, BS16 9QJ

Auction Guide Price £140,000 +++

Bedrooms 9 Bathrooms 6 Reception 6

  • FOR SALE BY ONLINE AUCTION
  • WEDNESDAY 19TH NOVEMBER 2025
  • VIEWINGS – REFER TO DETAILS
  • DOWNLOAD FREE LEGAL PACK
  • NOVEMBER LIVE ONLINE AUCTION
  • FREEHOLD DEVELOPMENT SITE
  • 0.28 ACRES / 0.11 HECTARES
  • POSITIVE PRE PLANNING APPLICATION
  • 3 x 3 BED HOUSES | GDV £1.125m
  • EXTENDED 8 WEEK COMPLETION

FOR SALE BY LIVE ONLINE AUCTION

ADDRESS | Development Site @ St Aldams Drive, Pucklechurch, Bristol BS16 9QJ ( What 3 Words - ///speeds.pound.toast )

Lot Number TBC

*** PLEASE NOTE NEW AUCTION START TIME - NOW 12:00 ***

The Live Online Auction is on Wednesday 19th November 2025 @ 12:00 Noon
Registration Deadline is on Friday 14th November 2025 @ 16:00

The Auction will be streamed LIVE ONLINE via the Hollis Morgan website & you can chose to bid by telephone, proxy or via your computer.
Registration is a simple online process – please visit the Hollis Morgan auction website and click “REGISTER TO BID”

THE PROPERTY

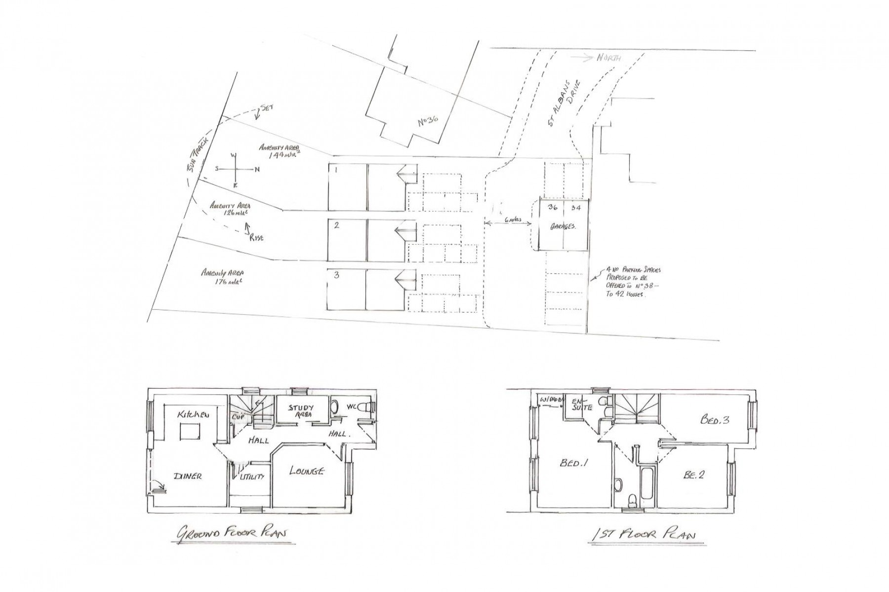
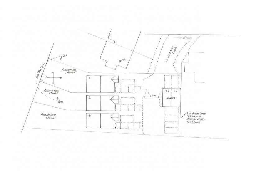
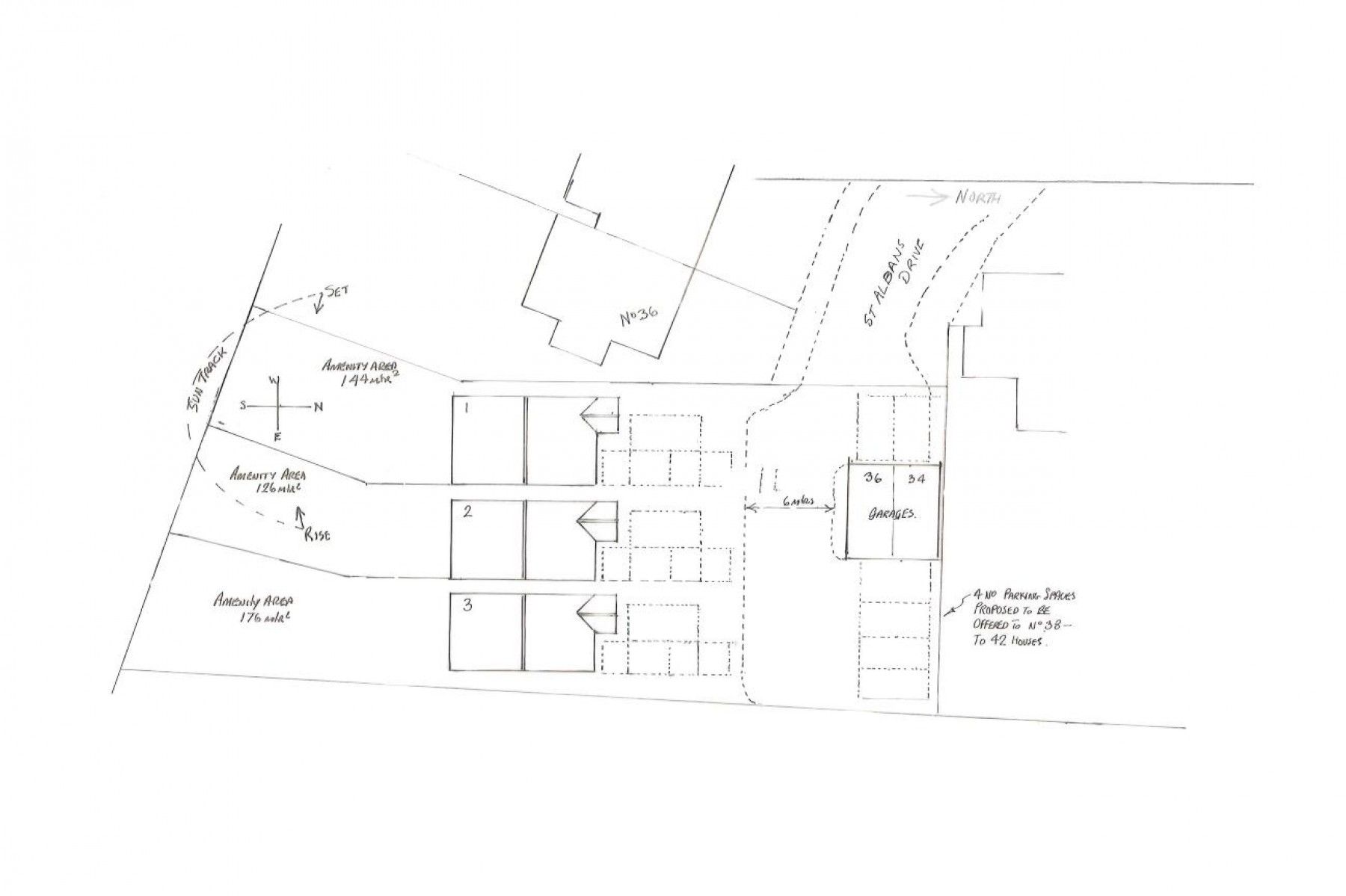
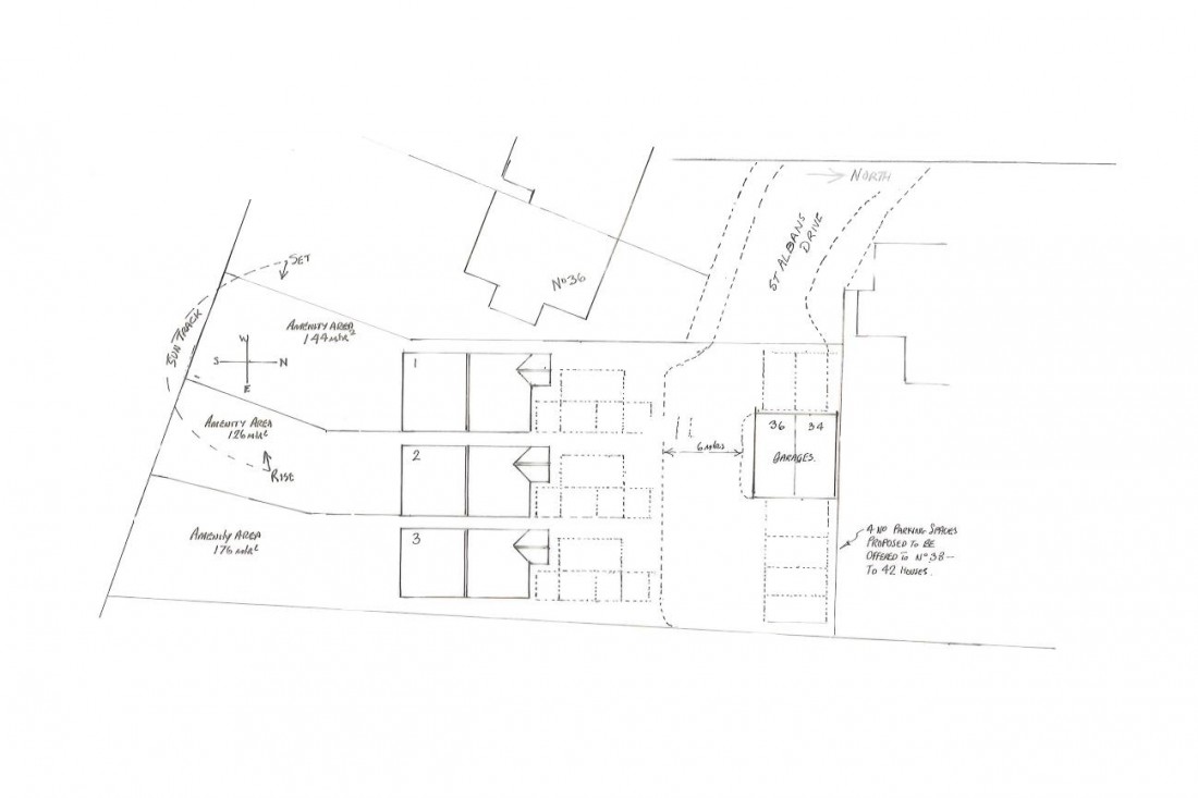
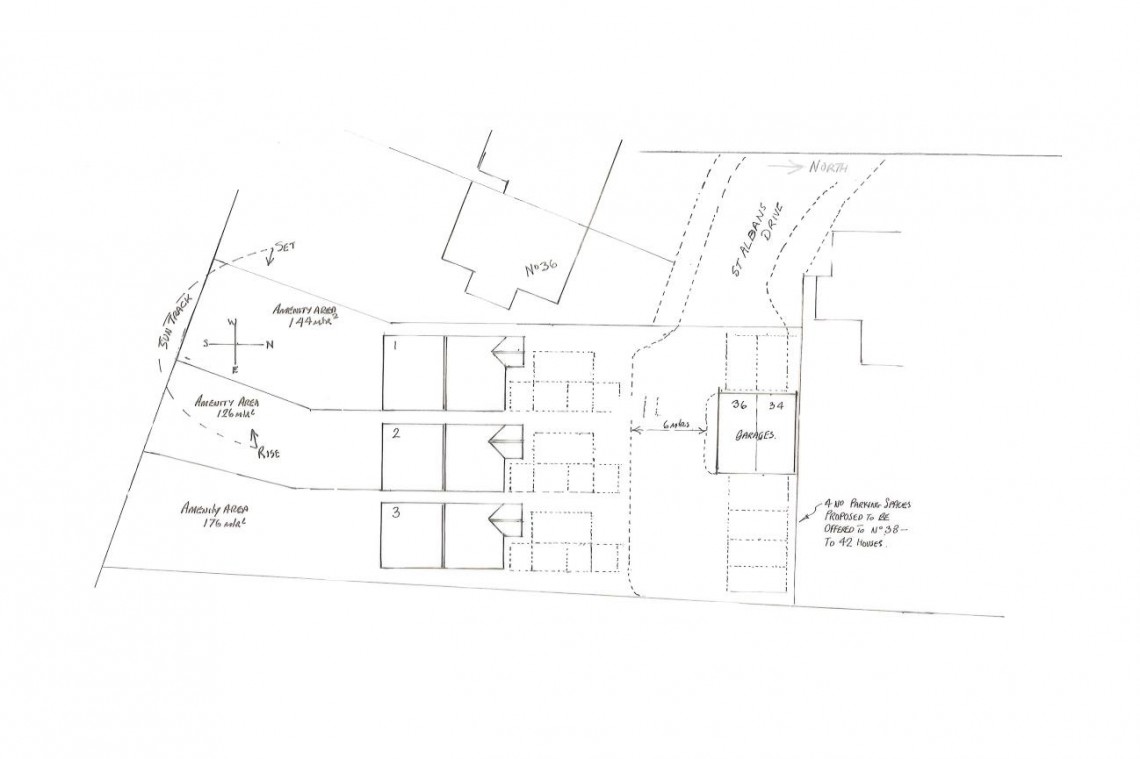
A Freehold 0.28 Acres parcel of land, previously used for a compound and storage during the construction of HMP Ashfield, with vehicular access from Aldam's Drive.
Sold with Vacant Possession

Size - 0.28 acres | 0.11 hectares | 1,119 Sq M
Tenure - Freehold
Title # - GR208972

THE OPPORTUNITY

FREEHOLD DEVELOPMENT OPPORTUNITY

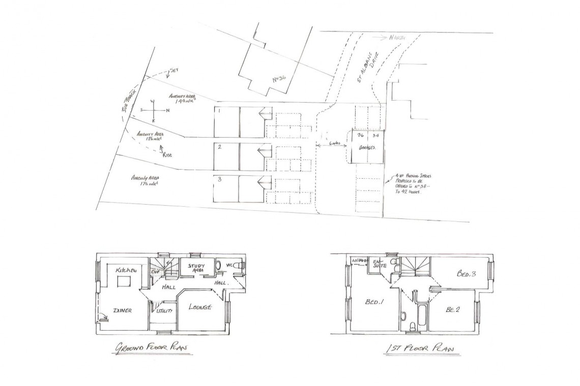
The site benefits from a positive response to a Pre-Planning Application submitted in 2025. The application was submitted on the basis of 3 detached 3 bedroom houses with parking and gardens, but with the potential for 4 bedroom houses to be designed subject to a third storey.
The principle of development was well received by South Gloucestershire Council, though the final design and scale of the development will be for the incoming purchaser to decide.
The site offers a great opportunity to acquire a developable site in a popular, sought after location close to Bristol.
Based on the designs submitted within the Pre-Planning Application:
Subject to gaining the necessary consents

GDV | £1.125m

The Hollis Morgan New Homes team would be delighted to assist with appraisals for designed schemes.
For further details on the GDV and market conditions, please contact Dan Harris & Calum Melhuish on 0117 973 6565

NB - GARAGES

Within the area of the land resides two freehold garages owned by neighbouring residents.
These garages can be moved, subject to final agreement with the owners.
Please note interested parties will need to make their own investigations.

PLANNING INFORMATION

A Pre-Planning Application for 3 x dwellings was submitted to the Local Planning Authority (South Gloucestershire). The principle of development was positively received by the authority, with design and scale to be decided by the incoming purchaser.

Full details of the proposed scheme and drawings can be downloaded with the online legal pack.

LOCATION

The land is situated at the end of St Aldams Drive, a small cul-de-sac style road in Pucklechurch. Pucklechurch is an established country village lying in semi-rural surroundings about 2 miles East of Bristol. The popular and active village community includes local amenities such as village store, cafe/bakery, hairdresser, 2 pubs, primary school, church and other facilities. Sainsburys is under 3 miles away at Emersons Green, as is excellent 'commutability' via the A4174 North Bristol Ring Road - about 1 mile, an alternative access to M4 J18 at Tormarton via A46 - 5 miles, Bristol, Bath, Yate, M4 corridor.

SOLICITORS & COMPLETION

Heather Jones
Wards
01275 850470
Heather.Jones@wards.uk.com
www.wards.uk.com

EXTENDED COMPLETION

Completion is set for 8 weeks or earlier subject to mutual consent.

IMPORTANT AUCTION INFORMATION

VIEWINGS

The land can be viewed and accessed openly via St Aldams Drive. We ask that viewers be respectful of the neighbouring residents.

MATERIAL INFORMATION

Information including utilities, Electricity supply, Water supply, Sewerage, Heating, Broadband, Mobile signal / coverage, Parking, Building safety, Restrictions and rights, Rights and easements, Flood risk, Erosion risk, Coastal erosion risk, Planning permission for proposal for development, Property accessibility / adaptations, Coalfield or mining area all of which will be supplied within the legal pack that can be accessed for free via the Hollis Morgan website or via your EIG account.

ONLINE LEGAL PACKS

Digital Copies of the Online legal pack can be downloaded Free of Charge.
Please visit the Hollis Morgan Website and select the chosen lot from our Current Auction List.
Press the GREEN button to "Download Legal Packs" For the first visit you will be required to register simply with your email and a password.
Having set up your account you can download legal packs or if they are not yet available, they will automatically be sent to you when we receive them.
You will be automatically updated by email if any new information is added.
There will be a note added to the list to confirm AUCTION PACK NOW COMPLETE when no further information is due to be added.
*** STAY UPDATED *** By registering for the legal pack we can ensure you are kept updated on any changes to this Lot in the build up to the sale.

BUYER’S PREMIUM

Please be aware all purchasers are subject to a £1,500 + VAT (£1,800 inc VAT) buyer's premium which is ALWAYS payable upon exchange of contracts whether the sale is concluded before, during or after the auction date.

GUIDE PRICE

An indication of the seller's current minimum acceptable price at auction. The guide price or range of guide prices is given to assist consumers in deciding whether to pursue a purchase. It is usual, but not always the case, that a provisional reserve range is agreed between the seller and the auctioneer at the start of marketing. As the reserve is not fixed at this stage and can be adjusted by the seller at any time up to the day of the auction in the light of interest shown during the marketing period, a guide price is issued. This guide price can be shown in the form of a minimum and maximum price range within which an acceptable sale price (reserve) would fall, or as a single price figure within 10% of which the minimum acceptable price (reserve) would fall. A guide price is different to a reserve price (see separate definition). Both the guide price and the reserve price can be subject to change up to and including the day of the auction.

RESERVE PRICE

The seller's minimum acceptable price at auction and the figure below which the auctioneer cannot sell. The reserve price is not disclosed and remains confidential between the seller and the auctioneer. Both the guide price and the reserve price can be subject to change up to and including the day of the auction.

PRE AUCTION OFFERS

Some vendors are willing to consider offers prior to the auction.
Pre auction offers can ONLY be submitted by completing the online PRE AUCTION OFFER FORM
The form can be found on the Hollis Morgan website on the individual auction property listing.
Please note offers will not be considered until you have inspected the COMPLETE LEGAL PACK once it has been released.
There will be a note added to the list to confirm AUCTION PACK NOW COMPLETE when our client’s solicitor informs us no further information is due to be added.
In the event of an offer being accepted the property will only be removed from the online auction and viewings stopped once contracts have successfully EXCHANGED subject to the standard auction terms and payment of the buyer’s premium (£1,800 Inclusive of VAT) to Hollis Morgan.
Contracts can be exchanged via the solicitors or at the Hollis Morgan offices by appointment only.

REGISTRATION PROCESS

The registration process is extremely simple – visit the Hollis Morgan auction website and click on the “Register to Bid” button.
The “Register to Bid” button can be found on the auction home page or on the individual lot listings.
Please note this function is not available on Rightmove or Zoopla.

Stage 1 – Complete the Online Bidding Form
Stage 2 – Upload your certified ID
Stage 3 – Invitation to bid
Stage 4 – Pay your security deposit (£6,800)

You are now ready to bid – Good luck!

If your bid is successful, the balance of the deposit monies must be transferred to our client account within 24 hours of the auction sale.
If you are unsuccessful at the auction your holding deposit will be returned within 48 hours.

SURVEYS AND VALUATIONS

If you would like to arrange a survey or mortgage valuation of this Lot BEFORE the auction, please instruct your appointed surveyor to contact Hollis Morgan and we will arrange access for them to inspect the property. Please note that buyers CANNOT attend the surveys and the surveyors are responsible for collecting and returning keys to the Hollis Morgan offices in Clifton.

AUCTION FINANCE & BRIDGING LOANS

Some properties may require specialist auction finance- please contact Hollis Morgan for access to expert advice and whole of market rates from our independent brokers.

Hollis Morgan may receive introductory fees for this service from the broker.

AUCTION BUYER’S GUIDE VIDEO

We have short video guides for both buying and selling by Public Auction on the Hollis Morgan Website. If you have any further questions regarding the process, please don’t hesitate to contact Auction HQ.

2025 CHARITY OF THE YEAR

Hollis Morgan is supporting Uncle Pauls Chilli Charity empowering socially disadvantaged people with barriers to learning &/or disabilities based in Butcombe, North Somerset, our land overlooks the Mendip Hills and Blagdon lake. There are three main areas of focus at Uncle Paul’s Chilli Charity Education, Wellbeing and Social Prescribing – visit www.chillicharity.org.uk/ for more details or the Hollis Morgan Charity Page of our website.

AUCTION PROPERTY DETAILS DISCLAIMER

Hollis Morgan endeavour to make our sales details clear, accurate and reliable in line with the Consumer Protection from Unfair Trading Regulations 2008 but they should not be relied on as statements or representations of fact, and they do not constitute any part of an offer or contract. All Hollis Morgan references to planning, tenants, boundaries, potential development, tenure etc is to be superseded by the information contained in the legal pack. It should not be assumed that this property has all the necessary Planning, Building Regulation, or other consents. Any services, appliances and heating system(s) listed have not been checked or tested. Please note that in some instances the photographs may have been taken using a wide-angle lens. The seller does not make any representation or give any warranty in relation to the property, and we have no authority to do so on behalf of the seller.


Local Information

Schools Stations Healthcare
Floorplan for DEVELOPMENT SITE | PUCKLECHURCH Floorplan for DEVELOPMENT SITE | PUCKLECHURCH Floorplan for DEVELOPMENT SITE | PUCKLECHURCH Floorplan for DEVELOPMENT SITE | PUCKLECHURCH