FOR SALE Guide Price £700,000

The Old Police Station, 49, High Street, Westbury-On-Trym, BS9 3ED

Bedrooms 7 Bathrooms 4 Reception 4

  • FREEHOLD
  • PERIOD PROPERTY
  • FORMER POLICE STATION
  • DEVELOPMENT OPPORTUNITY
  • PLANNING GRANTED
  • RESI SCHEME
  • 3154 Sq Ft
  • 4 X FLATS
  • 4 X PARKING
  • OFFERS INVITED

THE PROPERTY

ADDRESS | The Old Police Station, 49 High Street, Westbury-On-Trym, Bristol BS9 3ED

An imposing Freehold period property, formally the local Police Station and most recently occupied as offices but now offered with vacant possession. The accommodation ( 3154 Sq Ft ) is arranged over two floors ( plus a large basement ) with an array of period features with front, side and rear access plus 4 off street parking spaces to the rear.
Sold with vacant possession

Tenure - Freehold
EPC - E

THE OPPORTUNITY

RESIDENTIAL DEVELOPMENT OPPORTUNITY

The property now requires modernisation but has scope for a wide range of possible uses.

FLAT CONVERSION | 25/11101/COU

Planning has been granted to convert the property into 4 flats ( 3 x 2 Beds | 1 x 1 Bed ) with off street parking x 4 in this sought after location in the heart of Westbury Village.
The conversion involves minimal structural changes to the existing layout – refer to proposed scheme in the online legal pack.
The GDV has been appraised £1.44m - please refer to schedule below
There is scope for a significant rental income - please refer to independent rental appraisal

LARGE FAMILY HOME | 2 X HOUSES | 2 X LARGE FLATS | COMMERCIAL

There is scope for a range of residential schemes including a large family house, conversion into 2 houses or 2 large flats.
There is also scope for continued commercial use.
All above subject to the necessary consents.

Please note there will be a restriction to block the use of the building as a large HMO.
The car park area to the rear is to be retained and the vendors will be seeking planning for a residential scheme in due course.

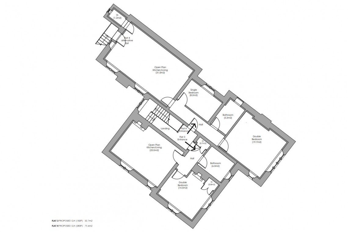
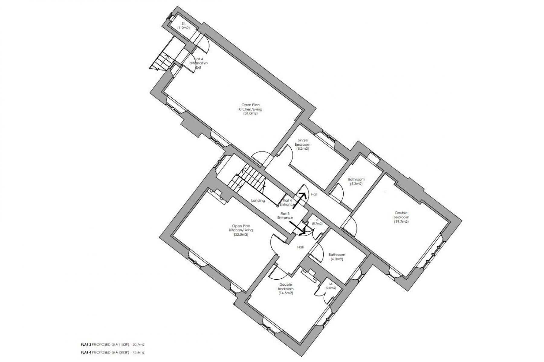
PROPOSED SCHEDULE OF DEVELOPMENT

Flat 1 | 731 Sq Ft | 2 Bed | 1 Bath | Allocated Off Street Parking | Courtyard
Ground Floor with private entrance at the rear
Entrance Hall | Bathroom | Open plan Kitchen / Diner / Living Room | Bedroom 1 | Bedroom 2 | Alternate entrance via communal hall | Private Courtyard

Flat 2 | 807 Sq Ft | 2 Bed | 2 Bath | Allocated Off Street Parking | Courtyard
Ground Floor with private entrance at the front
Open plan Kitchen / Diner / Living Room | Bedroom 1 | Bathroom | Bedroom 2 | En Suite | Alternate entrance via communal courtyard | Private Courtyard

Flat 3 | 538 Sq Ft | 1 Bed | 1 Bath | Allocated Off Street Parking
First floor with communal entrance to rear.
Entrance Hall | Open plan Kitchen / Diner / Living Room | Bedroom | Bathroom

Flat 4 | 807 Sq Ft | 2 Bed | 1 Bath | Allocated Off Street Parking
First floor with communal entrance to rear.
Entrance Hall | Open plan Kitchen / Diner / Living Room | Bedroom 1 | Bedroom 2 | Bathroom

Basement
Not configured but scope for storage or possible future development.

PROPOSED GDV SCHEDULE | 4 FLATS

Flat 1 - £385,000
Flat 2 – £395,000
Flat 3 - £265,000
Flat 4 - £395,000
Total - £1.44m

Please contact the Hollis Morgan New Homes team for further information.

PLANNING GRANTED

Reference25/11101/COU
Alternative ReferencePP-13806376
Application ReceivedWed 12 Mar 2025
Application ValidatedWed 12 Mar 2025
Address49 High Street Westbury On Trym Bristol BS9 3ED
ProposalApplication to determine if prior approval is required for a proposed: Change of use from Commercial, Business and Service (Use Class E) to Dwellinghouses (Use Class C3) Town and Country Planning (General Permitted Development) (England) Order 2015 (as amended) - Schedule 2, Part 3, Class MA - Change of use of the building to 4no. self-contained apartments (Use Class C3).
StatusDecided
DecisionPrior Approval GIVEN
Decision Issued DateFri 02 May 2025

RENTAL APPRAISAL

What rent can we achieve for you?

The Bristol Residential Letting Co. are confident this property would make a good rental investment if brought to a standard suitable for the professional rental market. Danny Dean of The Bristol Residential Letting Co suggests a rent in the region of;

The Old Police Station – 2 bed flats - £1500pcm - £1700pcm | 1 bed flat - £1200pcm - £1300pcm depending on Refurbishment.

If you would like to discuss more detail on the potential for rental, you can call me on 07738766640 or email (danny@bristolreslet.com) for a no obligation discussion. I am always happy to advise investors on maximising their investment.

LOCATION

Westbury on Trym is amongst the most sought after locations in the city. Offering a mix of suburban convenience with open green spaces including Durdham Downs and Canford Park, excellent amenities in Westbury Village, Stoke Lane, Whiteladies Road and Henleaze providing a wide range of supermarkets, shops, restaurants and pubs. With a wide range of schools including Elmlea Primary Schools, Stoke Bishop C of E primary, Badminton, Redmaids, St Ursula’s Academy and excellent access to the City, Sea Mills Train Stations and the regions motorway network.

PROPERTY DETAILS DISCLAIMER

Hollis Morgan endeavour to make our sales details clear, accurate and reliable in line with the Consumer Protection from Unfair Trading Regulations 2008 but they should not be relied on as statements or representations of fact, and they do not constitute any part of an offer or contract. All Hollis Morgan references to planning, tenants, boundaries, potential development, tenure etc is to be superseded by the information contained in the legal pack. It should not be assumed that this property has all the necessary Planning, Building Regulation, or other consents. Any services, appliances and heating system(s) listed have not been checked or tested. Please note that in some instances the photographs may have been taken using a wide-angle lens. The seller does not make any representation or give any warranty in relation to the property, and we have no authority to do so on behalf of the seller.


Local Information

Schools Stations Healthcare
Floorplan for RESI DEVELOPMENT | WESTBURY VILLAGE | BS9 Floorplan for RESI DEVELOPMENT | WESTBURY VILLAGE | BS9 Floorplan for RESI DEVELOPMENT | WESTBURY VILLAGE | BS9