Lot 16

103 East Street, Bedminster, BS3 4EX

Sold @ Auction £697,000 +++

Bedrooms 6 Bathrooms 5 Reception 4

  • FOR SALE BY ONLINE AUCTION
  • WEDNESDAY 11TH FEBRUARY 2026
  • VIRTUAL TOUR NOW ONLINE
  • VIEWINGS – REFER TO DETAILS
  • LEGAL PACK COMPLETE
  • SOLD @ FEBRUARY LIVE ONLINE AUCTION
  • FREEHOLD MIXED USE BLOCK
  • 3 X FLATS | 1 X RETAIL
  • SCOPE FOR £70K + pa INCOME
  • EXTENDED 8 WEEK COMPLETION

FOR SALE BY LIVE ONLINE AUCTION

*** SOLD @ FEBRUARY LIVE ONLINE AUCTION ***

GUIDE PRICE £675,000+++
SOLD @ £697,000

ADDRESS | 103 East Street, Bedminster, Bristol BS3 4EX

Lot Number 16

The Live Online Auction is on Wednesday 11th February 2026 @ 12:00 Noon
Registration Deadline is on Friday 6th February 2026 @ 16:00

The Auction will be streamed LIVE ONLINE via the Hollis Morgan website & you can choose to bid by telephone, proxy or via your computer.
Registration is a simple online process – please visit the Hollis Morgan auction website and click “REGISTER TO BID”

JOINT AGENTS | BURSTON COOK

We are delighted to be acting alongside our Joint Agents Burston Cook.

THE PROPERTY

A Freehold mixed use block on a prominent corner on popular East Street. The property was granted planning in 2021 to be converted into a small retail unit and a 3 bedroom maisonette on the upper floors with an additional new build block to the rear compromising 2 self contained 1 bed flats with study’s.
Vacant possession on all units apart from retail unit.

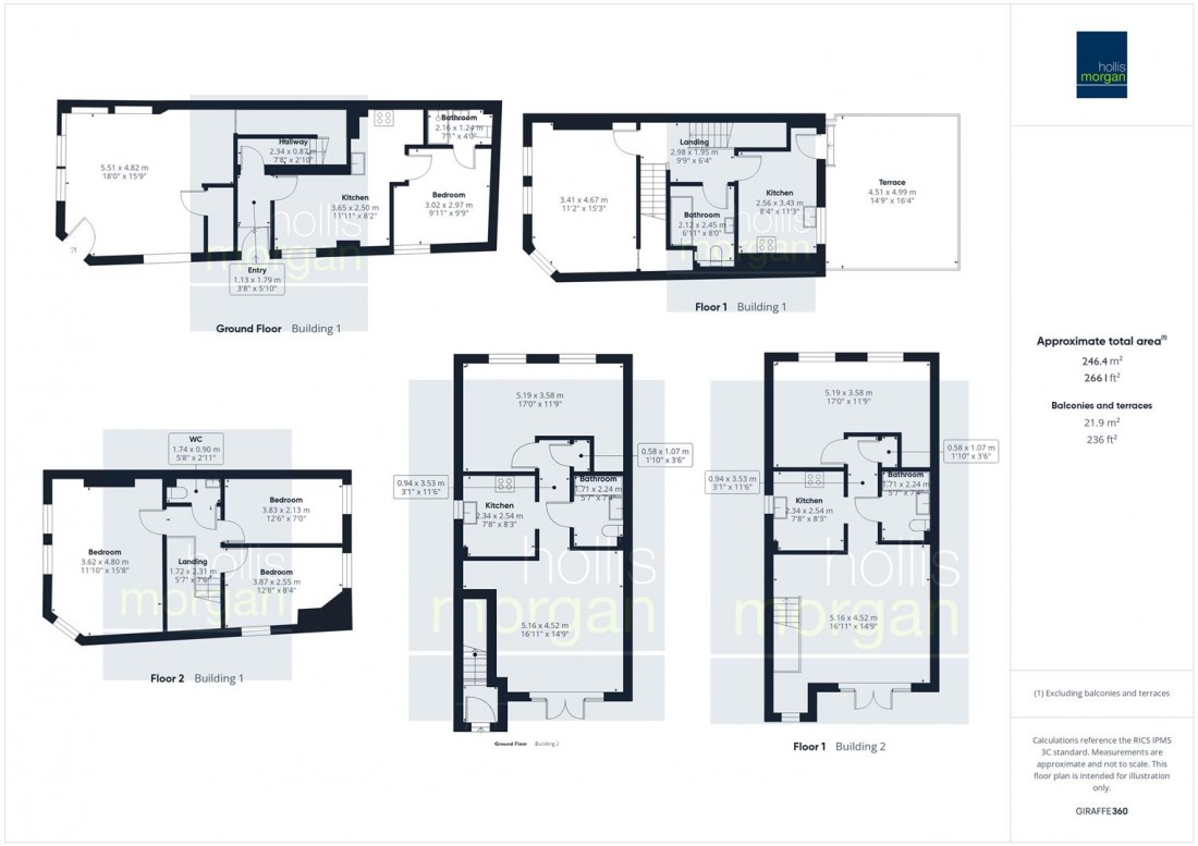
Schedule of Accommodation

103 - Retail Unit
103 A - Ancillary Space for shop * Please note this space has been converted into a residential studio flat without PP
103 B - Upper Floor Maisonette | 3 Beds | Roof Terrace
103 C – New Build | Ground Floor | 1 Bed Flat + Study
103 D - New Build | First Floor | 1 Bed Flat + Study

Tenure - Freehold
Council Tax - A | A | A | A
EPC - Ordered | D | B | B

THE OPPORTUNITY

MIXED USE INVESTMENT

The property will be sold with vacant possession ( apart from retail unit ) with scope for £70,000 + per annum income.
Please refer to independent rental appraisal.

GROUND FLOOR STUDIO (103A) | NO PLANNING

Please note the ground floor studio (103a) does not have planning for residential use.
The space is to be used as a staff room for the shop.
Interested parties will need to make their own enquiries and any change of use to residential use will be subject to PP.

FLATS

103 A - £1000pcm - £1100pcm - Please note this is subject to obtaining PP for a studio flat
103 B - £1700pcm - £1800pcm
103 C – £1150pcm - £1250pcm
103 D - £1150pcm - £1250pcm

Potential Income - £5,000 - £5,400 pcm | £60,000 - £64,800 pa

RETAIL UNIT

10 Year FRI lease from May 2025 | £13,000 pa

Total Potential Income - £77,800 pa

RENTAL APPRAISAL

What rent can we achieve for you?

The Bristol Residential Letting Co. are confident this property would make a good rental investment if brought to a standard suitable for the professional rental market. Danny Dean of The Bristol Residential Letting Co suggests a rent in the region of;

103, East Street, studio - £1000pcm - £1100pcm | 1 beds - £1150pcm - £1250pcm | 3 bed - £1700pcm - £1800pcm

If you would like to discuss more detail on the potential for rental, you can call me on 07738766640 or email (danny@bristolreslet.com) for a no obligation discussion. I am always happy to advise investors on maximising their investment.

LOCATION

Bedminster is a lively and popular area located in the South of Bristol. Known for its strong community spirit it's a highly sought-after location for young professionals and families alike. Bedminster has excellent transport links, with easy access to the city centre and also has its own train station, providing regular services to Bristol Temple Meads. Nearby North Street is the heart of BS3 and offers a fantastic range of independent shops, cafes, and restaurants, as well as a weekly market and several supermarkets, there are plenty of green spaces nearby, including the popular Victoria Park, which offers tennis courts, a skatepark, and a children's play area. Bedminster is also just a short distance from Bristol's city centre and Harbourside district which offer a fantastic range of shops, restaurants, and cultural attractions.

PLANNING - NEW BUILD BLOCK

Reference21/04374/F
Alternative ReferencePP-10113856
Application ReceivedWed 11 Aug 2021
Application ValidatedThu 14 Oct 2021
Address103 East Street Bedminster Bristol BS3 4EX
ProposalProposed 2 No 1x bedroom flats.
StatusDecided
DecisionGRANTED subject to condition(s)
Decision Issued DateWed 09 Mar 2022

SOLICITORS & COMPLETION

Andrew Worley
Ashfords
0117 321 8089
a.worley@ashfords.co.uk
https://www.ashfords.co.uk/

EXTENDED COMPLETION

Completion is set for 8 weeks or earlier subject to mutual consent.

LEGAL PACK COMPLETE

We have been informed by our client’s solicitors that the legal pack for this lot is now complete.

Should any last minute addendums occur you will be automatically notified by email.

If the vendors have indicated they are willing to consider pre-auction offers, now is the time to submit your offer by completing the pre-auction offer form.

IMPORTANT AUCTION INFORMATION

VIEWINGS

Please submit a viewing request online and we will contact you to organise an appointment.
We will send you an email and text to confirm the appointment time and the full property address.
Viewings are supervised by a member of the Hollis Morgan Auction team who will meet you at the property.

MATERIAL INFORMATION

Information including utilities, Electricity supply, Water supply, Sewerage, Heating, Broadband, Mobile signal / coverage, Parking, Building safety, Restrictions and rights, Rights and easements, Flood risk, Erosion risk, Coastal erosion risk, Planning permission for proposal for development, Property accessibility / adaptations, Coalfield or mining area all of which will be supplied within the legal pack that can be accessed for free via the Hollis Morgan website or via your EIG account.

ONLINE LEGAL PACKS

Digital Copies of the Online legal pack can be downloaded Free of Charge.
Please visit the Hollis Morgan Website and select the chosen lot from our Current Auction List.
Press the GREEN button to "Download Legal Packs" For the first visit you will be required to register simply with your email and a password.
Having set up your account you can download legal packs or if they are not yet available, they will automatically be sent to you when we receive them.
You will be automatically updated by email if any new information is added.
There will be a note added to the list to confirm AUCTION PACK NOW COMPLETE when no further information is due to be added.
*** STAY UPDATED *** By registering for the legal pack we can ensure you are kept updated on any changes to this Lot in the build up to the sale.

BUYER’S PREMIUM

Please be aware all purchasers are subject to a £1,500 + VAT (£1,800 inc VAT) buyer's premium which is ALWAYS payable upon exchange of contracts whether the sale is concluded before, during or after the auction date.

GUIDE PRICE

An indication of the seller's current minimum acceptable price at auction. The guide price or range of guide prices is given to assist consumers in deciding whether to pursue a purchase. It is usual, but not always the case, that a provisional reserve range is agreed between the seller and the auctioneer at the start of marketing. As the reserve is not fixed at this stage and can be adjusted by the seller at any time up to the day of the auction in the light of interest shown during the marketing period, a guide price is issued. This guide price can be shown in the form of a minimum and maximum price range within which an acceptable sale price (reserve) would fall, or as a single price figure within 10% of which the minimum acceptable price (reserve) would fall. A guide price is different to a reserve price (see separate definition). Both the guide price and the reserve price can be subject to change up to and including the day of the auction.

RESERVE PRICE

The seller's minimum acceptable price at auction and the figure below which the auctioneer cannot sell. The reserve price is not disclosed and remains confidential between the seller and the auctioneer. Both the guide price and the reserve price can be subject to change up to and including the day of the auction.

PRE AUCTION OFFERS

Some vendors are willing to consider offers prior to the auction.
Pre auction offers can ONLY be submitted by completing the online PRE AUCTION OFFER FORM
The form can be found on the Hollis Morgan website on the individual auction property listing.
Please note offers will not be considered until you have inspected the COMPLETE LEGAL PACK once it has been released.
There will be a note added to the list to confirm AUCTION PACK NOW COMPLETE when our client’s solicitor informs us no further information is due to be added.
In the event of an offer being accepted the property will only be removed from the online auction and viewings stopped once contracts have successfully EXCHANGED subject to the standard auction terms and payment of the buyer’s premium (£1,800 Inclusive of VAT) to Hollis Morgan.
Contracts can be exchanged via the solicitors or at the Hollis Morgan offices by appointment only.

REGISTRATION PROCESS

The registration process is extremely simple – visit the Hollis Morgan auction website and click on the “Register to Bid” button.
The “Register to Bid” button can be found on the auction home page or on the individual lot listings.
Please note this function is not available on Rightmove or Zoopla.

Stage 1 – Complete the Online Bidding Form
Stage 2 – Upload your certified ID
Stage 3 – Invitation to bid
Stage 4 – Pay your security deposit (£6,800)

You are now ready to bid – Good luck!

If your bid is successful, the balance of the deposit monies must be transferred to our client account within 24 hours of the auction sale.
If you are unsuccessful at the auction your holding deposit will be returned within 48 hours.

SURVEYS AND VALUATIONS

If you would like to arrange a survey or mortgage valuation of this Lot BEFORE the auction, please instruct your appointed surveyor to contact Hollis Morgan and we will arrange access for them to inspect the property. Please note that buyers CANNOT attend the surveys and the surveyors are responsible for collecting and returning keys to the Hollis Morgan offices in Clifton.

AUCTION FINANCE & BRIDGING LOANS

Some properties may require specialist auction finance- please contact Hollis Morgan for access to expert advice and whole of market rates from our independent brokers.

Hollis Morgan may receive introductory fees for this service from the broker.

AUCTION BUYER’S GUIDE VIDEO

We have short video guides for both buying and selling by Public Auction on the Hollis Morgan Website. If you have any further questions regarding the process, please don’t hesitate to contact Auction HQ.

2026 CHARITY OF THE YEAR

Hollis Morgan are proud to be supporting Bristol Schools Rugby Union as our 2026 Charity of the Year. BSRU ( working in association with Bristol Bears ) oversee and support rugby in all schools, State and Independent , in the Greater Bristol area. Bristol Schools provide School Rugby Development opportunities and County level fixtures for secondary boys and girls. Including playing fixtures at U18s against the leading Independent Schools in our region, schools such as Clifton College, BGS, QEH, Collegiate and Millfield. For more information and details of the fixture list please follow them on Instagram.

AUCTION PROPERTY DETAILS DISCLAIMER

Hollis Morgan endeavour to make our sales details clear, accurate and reliable in line with the Consumer Protection from Unfair Trading Regulations 2008 but they should not be relied on as statements or representations of fact, and they do not constitute any part of an offer or contract. All Hollis Morgan references to planning, tenants, boundaries, potential development, tenure etc is to be superseded by the information contained in the legal pack. It should not be assumed that this property has all the necessary Planning, Building Regulation, or other consents. Any services, appliances and heating system(s) listed have not been checked or tested. Please note that in some instances the photographs may have been taken using a wide-angle lens. The seller does not make any representation or give any warranty in relation to the property, and we have no authority to do so on behalf of the seller.


Local Information

Schools Stations Healthcare
Floorplan for MIXED USE BLOCK | £70K + PA