Lot 11

Quarry Mead Nortons Wood Lane, Clevedon, BS21 7AE

Sold @ Auction £550,000 +++

Bedrooms 5 Bathrooms 3 Reception 2

  • FOR SALE BY ONLINE AUCTION
  • WEDNESDAY 18TH JUNE 2025
  • VIRTUAL TOUR NOW ONLINE
  • VIEWINGS – REFER TO DETAILS
  • LEGAL PACK COMPLETE
  • SOLD @ JUNE LIVE ONLINE AUCTION
  • FREEHOLD BUILDING PLOT
  • PLANNING GRANTED FOR LUXURY HOME
  • 3800 Sq Ft CONVERSION | 2.27 ACRE PLOT
  • EXTENDED 8 WEEK COMPLETION

FOR SALE BY LIVE ONLINE AUCTION

*** SOLD @ JUNE LIVE ONLINE AUCTION ***

GUIDE PRICE £500,000 +++
SOLD PRIOR @ £550,000

ADDRESS | Quarry Mead, Nortons Wood Lane, Clevedon, North Somerset BS21 7AE

Lot Number 11

The Live Online Auction is on Wednesday 18th June 2025 @ 17:30
Registration Deadline is on Monday 16th June 2025 @ 16:00

The Auction will be streamed LIVE ONLINE via the Hollis Morgan website & you can chose to bid by telephone, proxy or via your computer.
Registration is a simple online process – please visit the Hollis Morgan auction website and click “REGISTER TO BID”

THE PROPERTY

Quarry Mead is nestled within its own private grounds in the picturesque Gordano Valley, boasting a commanding position and the rare advantage of adjoining farmland. Spanning 2.27 acres, the property benefits from vehicular access via Nortons Wood Lane and is sold with vacant possession.

Tenure - Freehold

THE OPPORTUNITY

BUILDING PLOT | PLANNING GRANTED

Planning permission has been granted to transform the existing steel-framed agricultural barn into an exceptional, high-end family residence. Thoughtfully designed to blend luxury with functionality, the new home will maximize the breathtaking panoramic views over the surrounding open countryside. This unique opportunity offers true country living while maintaining easy access to the cultural, leisure and commercial amenities of Bristol including easy access to major transport routes via road, rail and air. Additionally, the nearby towns of Clevedon and Portishead provide all essential day-to-day conveniences.

NB

We understand that covenants protect the land in front of the property, ensuring the preservation of the stunning views. These restrictions, as we have been informed, prohibit any structures—including garden sheds—without prior permission. Please refer to the online legal pack for further details.

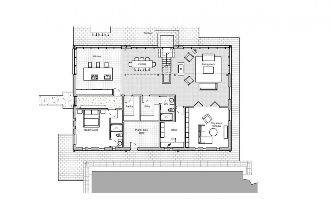
PROPOSED SCHEME

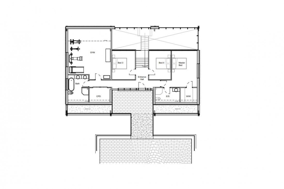
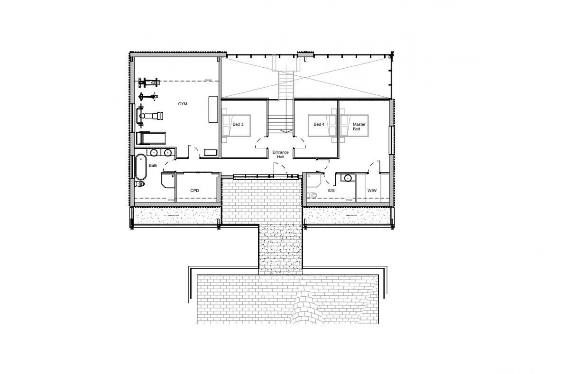
Designed over two floors, this impressive residence has been meticulously planned to embrace natural light and optimise the spectacular countryside setting, whilst also catering to modern family living. One striking design feature is the bridge providing both parking and access to the main entrance of the home. This allows full advantage of the impressive glass frontage to the barn and the stunning views beyond.
The entrance level comprises three generously sized double bedrooms, including a master suite with a dressing room and en-suite, a gym (or optional fifth bedroom), and a well-appointed family bathroom.
A grand staircase leads down to the main living area, which is truly the heart of the home. The open-plan kitchen, dining, and living spaces seamlessly flow together, framed by floor-to-ceiling glass that captures the stunning west-facing views. Additional features include a fourth/fifth bedroom, a cinema/playroom, a utility room, a pantry, a cloakroom, and a plant/store room. The lower entrance to the ground floor of the house provides easy access to the kitchen and utility areas, which is great for unloading shopping and after country walks.
Externally, a spacious patio extends from the main living areas, leading to a formal garden that transitions into the surrounding farmland—offering a rare and unique blend of seclusion, space, and unparalleled views in a peaceful location.

PLANNING GRANTED

Reference23/P/1194/FUL
Application ReceivedThu 08 Jun 2023
Application ValidatedThu 08 Jun 2023
AddressQuarry Mead Nortons Wood Lane Clevedon North Somerset BS21 7AE
ProposalChange of use of barn to a residential dwelling, including external alterations, insertion of first floor accommodation, with a new pedestrian access via bridge from driveway to south of building and associated landscape works.
StatusDecided
DecisionApprove
Decision Issued DateWed 04 Oct 2023
Appeal StatusNot Available
Appeal DecisionNot Available

PLANNING INFORMATION

Full details of the proposed scheme and drawings can be downloaded with the online legal pack.

LOCATION

The town of Clevedon is particularly well placed for commuting to Bristol. Apart from the many high street shops, restaurants and food stores the town and surrounding villages have many an active and popular public house visit and enjoy. The local schools are all exceptional rivalling the nearby private schools such as the Downs Preparatory School at nearby Wraxall which offers schooling for boys and girls aged 4 to 13 years. Clifton College and Clifton High School are within approx. 9 miles travelling distance via the Clifton Suspension Bridge. There is a plethora of outdoor activities with a choice of scenic walks nearby, as is the National Trust Tyntesfield Estate, a Grade 1 Gothic revival mansion set in 540 acres of stunning gardens and open parkland. For the commuter the M4/M5 motorway network is reached at Junction 20 of the M5. Clifton Village with its colourful range of high street shops, boutiques and restaurants is accessible via the Clifton Suspension Bridge.

SOLICITORS & COMPLETION

Emily Wilson
Chubb Bulleid
01749 836100
Emily_Wilson@chubb-bulleid.co.uk
https://www.chubb-bulleid.co.uk/

EXTENDED COMPLETION

Completion is set for 8 weeks or earlier subject to mutual consent.

LEGAL PACK COMPLETE

We have been informed by our client’s solicitors that the legal pack for this lot is now complete.

Should any last minute addendums occur you will be automatically notified by email.

If the vendors have indicated they are willing to consider pre-auction offers, now is the time to submit your offer by completing the pre-auction offer form.

IMPORTANT AUCTION INFORMATION

MATERIAL INFORMATION

Information including utilities, Electricity supply, Water supply, Sewerage, Heating, Broadband, Mobile signal / coverage, Parking, Building safety, Restrictions and rights, Rights and easements, Flood risk, Erosion risk, Coastal erosion risk, Planning permission for proposal for development, Property accessibility / adaptations, Coalfield or mining area all of which will be supplied within the legal pack that can be accessed for free via the Hollis Morgan website or via your EIG account.

VIEWINGS

Please submit a viewing request online and we will contact you to organise an appointment.
We will send you an email and text to confirm the appointment time and the full property address.
Viewings are supervised by a member of the Hollis Morgan Auction team who will meet you at the property.

ONLINE LEGAL PACKS

Digital Copies of the Online legal pack can be downloaded Free of Charge.
Please visit the Hollis Morgan Website and select the chosen lot from our Current Auction List.
Press the GREEN button to "Download Legal Packs" For the first visit you will be required to register simply with your email and a password.
Having set up your account you can download legal packs or if they are not yet available, they will automatically be sent to you when we receive them.
You will be automatically updated by email if any new information is added.
There will be a note added to the list to confirm AUCTION PACK NOW COMPLETE when no further information is due to be added.
*** STAY UPDATED *** By registering for the legal pack we can ensure you are kept updated on any changes to this Lot in the build up to the sale.

BUYER’S PREMIUM

Please be aware all purchasers are subject to a £1,500 + VAT (£1,800 inc VAT) buyer's premium which is ALWAYS payable upon exchange of contracts whether the sale is concluded before, during or after the auction date.

GUIDE PRICE

An indication of the seller's current minimum acceptable price at auction. The guide price or range of guide prices is given to assist consumers in deciding whether to pursue a purchase. It is usual, but not always the case, that a provisional reserve range is agreed between the seller and the auctioneer at the start of marketing. As the reserve is not fixed at this stage and can be adjusted by the seller at any time up to the day of the auction in the light of interest shown during the marketing period, a guide price is issued. This guide price can be shown in the form of a minimum and maximum price range within which an acceptable sale price (reserve) would fall, or as a single price figure within 10% of which the minimum acceptable price (reserve) would fall. A guide price is different to a reserve price (see separate definition). Both the guide price and the reserve price can be subject to change up to and including the day of the auction.

RESERVE PRICE

The seller's minimum acceptable price at auction and the figure below which the auctioneer cannot sell. The reserve price is not disclosed and remains confidential between the seller and the auctioneer. Both the guide price and the reserve price can be subject to change up to and including the day of the auction.

PRE AUCTION OFFERS

Some vendors are willing to consider offers prior to the auction.
Pre auction offers can ONLY be submitted by completing the online PRE AUCTION OFFER FORM
The form can be found on the Hollis Morgan website on the individual auction property listing.
Please note offers will not be considered until you have inspected the COMPLETE LEGAL PACK once it has been released.
There will be a note added to the list to confirm AUCTION PACK NOW COMPLETE when our client’s solicitor informs us no further information is due to be added.
In the event of an offer being accepted the property will only be removed from the online auction and viewings stopped once contracts have successfully EXCHANGED subject to the standard auction terms and payment of the buyer’s premium (£1,800 Inclusive of VAT) to Hollis Morgan.
Contracts can be exchanged via the solicitors or at the Hollis Morgan offices by appointment only.

REGISTRATION PROCESS

The registration process is extremely simple – visit the Hollis Morgan auction website and click on the “Register to Bid” button.
The “Register to Bid” button can be found on the auction home page or on the individual lot listings.
Please note this function is not available on Rightmove or Zoopla.

Stage 1 – Complete the Online Bidding Form
Stage 2 – Upload your certified ID
Stage 3 – Invitation to bid
Stage 4 – Pay your security deposit (£6,800)

You are now ready to bid – Good luck!

If your bid is successful, the balance of the deposit monies must be transferred to our client account within 24 hours of the auction sale.
If you are unsuccessful at the auction your holding deposit will be returned within 48 hours.

SURVEYS AND VALUATIONS

If you would like to arrange a survey or mortgage valuation of this Lot BEFORE the auction, please instruct your appointed surveyor to contact Hollis Morgan and we will arrange access for them to inspect the property. Please note that buyers CANNOT attend the surveys and the surveyors are responsible for collecting and returning keys to the Hollis Morgan offices in Clifton.

AUCTION FINANCE & BRIDGING LOANS

Some properties may require specialist auction finance- please contact Hollis Morgan for access to expert advice and whole of market rates from our independent brokers.

Hollis Morgan may receive introductory fees for this service from the broker.

AUCTION BUYER’S GUIDE VIDEO

We have short video guides for both buying and selling by Public Auction on the Hollis Morgan Website. If you have any further questions regarding the process, please don’t hesitate to contact Auction HQ.

2025 CHARITY OF THE YEAR

Hollis Morgan is supporting Uncle Pauls Chilli Charity empowering socially disadvantaged people with barriers to learning &/or disabilities based in Butcombe, North Somerset, our land overlooks the Mendip Hills and Blagdon lake. There are three main areas of focus at Uncle Paul’s Chilli Charity Education, Wellbeing and Social Prescribing – visit www.chillicharity.org.uk/ for more details or the Hollis Morgan Charity Page of our website.

AUCTION PROPERTY DETAILS DISCLAIMER

Hollis Morgan endeavour to make our sales details clear, accurate and reliable in line with the Consumer Protection from Unfair Trading Regulations 2008 but they should not be relied on as statements or representations of fact, and they do not constitute any part of an offer or contract. All Hollis Morgan references to planning, tenants, boundaries, potential development, tenure etc is to be superseded by the information contained in the legal pack. It should not be assumed that this property has all the necessary Planning, Building Regulation, or other consents. Any services, appliances and heating system(s) listed have not been checked or tested. Please note that in some instances the photographs may have been taken using a wide-angle lens. The seller does not make any representation or give any warranty in relation to the property, and we have no authority to do so on behalf of the seller.


Local Information

Schools Stations Healthcare
Floorplan for PLANNING GRANTED | CLEVEDON Floorplan for PLANNING GRANTED | CLEVEDON Floorplan for PLANNING GRANTED | CLEVEDON