Sold @ Auction £295,000

Building Plot @, Butts Orchard, Wrington, BS40 5DR

Bedrooms 3 Bathrooms 3 Reception 3

  • FOR SALE BY ONLINE AUCTION
  • WEDNESDAY 14TH FEBRUARY 2024
  • VIDEO TOUR NOW ONLINE
  • VIEWINGS - REFER TO DETAILS
  • LEGAL PACK COMPLETE
  • SOLD @ FEBRUARY AUCTION
  • FREEHOLD BUILDING PLOT
  • PLANNING GRANTED | 0.25 ACRES
  • DETACHED FAMILY HOME | DOUBLE GARAGE
  • EXTENDED 8 WEEK COMPLETION

FOR SALE BY LIVE ONLINE AUCTION

*** SOLD @ FEBRUARY AUCTION ***

GUIDE PRICE £290,000 +++
SOLD @ £295,000

ADDRESS | Building Plot @ Butts Orchard, Wrington, North Somerset BS40 5DR

Lot Number 21

The Live Online Auction is on Wednesday 14th February 2024 @ 17:30
Registration Deadline is on Monday 12th February 2024 @ 16:00

The Auction will be streamed LIVE ONLINE via the Hollis Morgan website & you can chose to bid by telephone, proxy or via your computer.
Registration is a simple online process – please visit the Hollis Morgan auction website and click “REGISTER TO BID”

THE PROPERTY

A Freehold mature building plot comprising 0.25 acres of level land just a short walk from the centre of this sought after semi rural village.
Sold with vacant possession.

Tenure - Freehold
Council Tax - N/A
EPC - Exempt
Utilities, Rights & Restrictions - Please refer to the Legal Pack
Flood Risk - Please refer to the Legal Pack

THE OPPORTUNITY

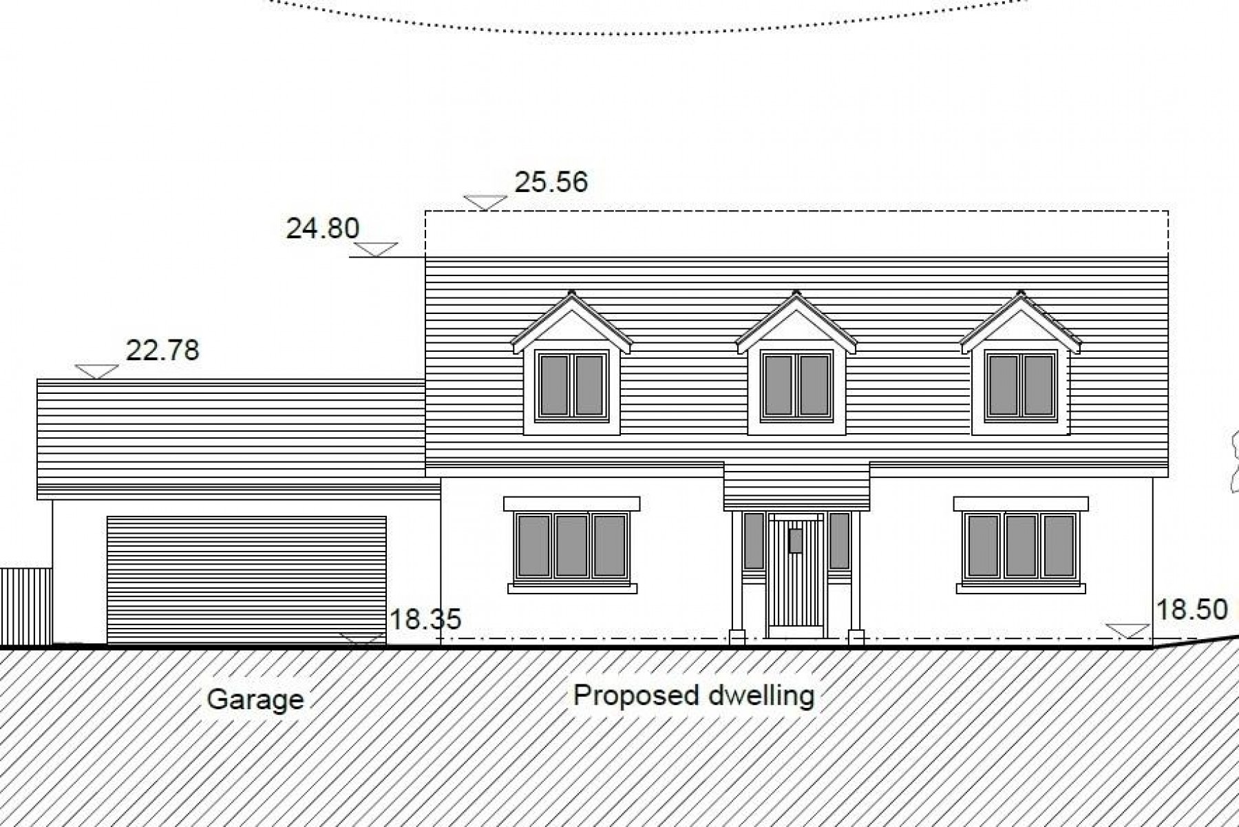
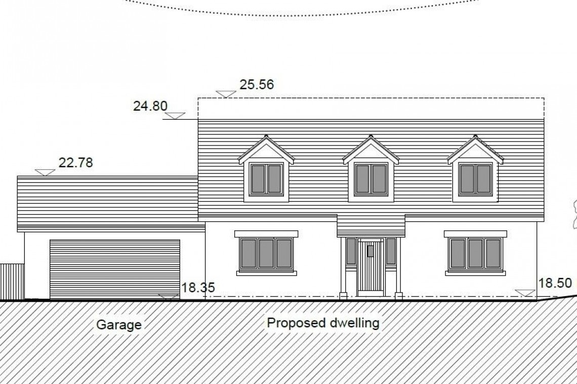
PLANNING GRANTED | DETACHED HOUSE

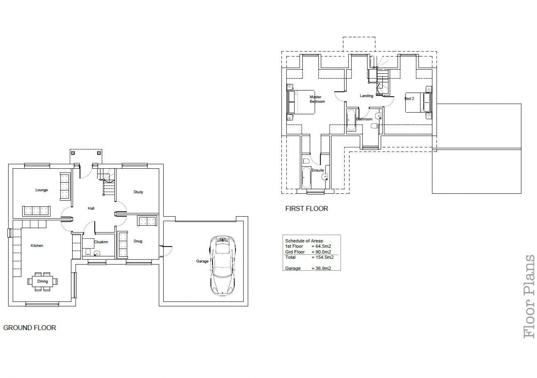
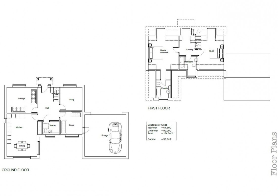
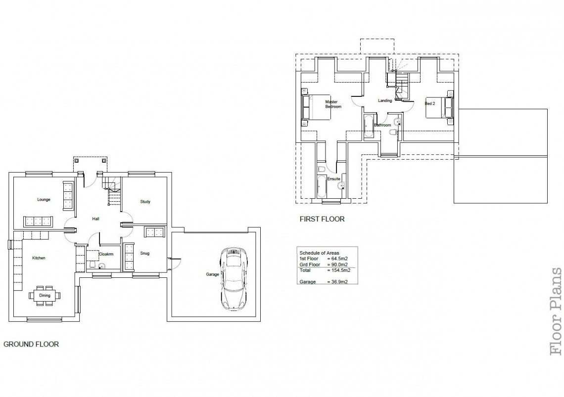
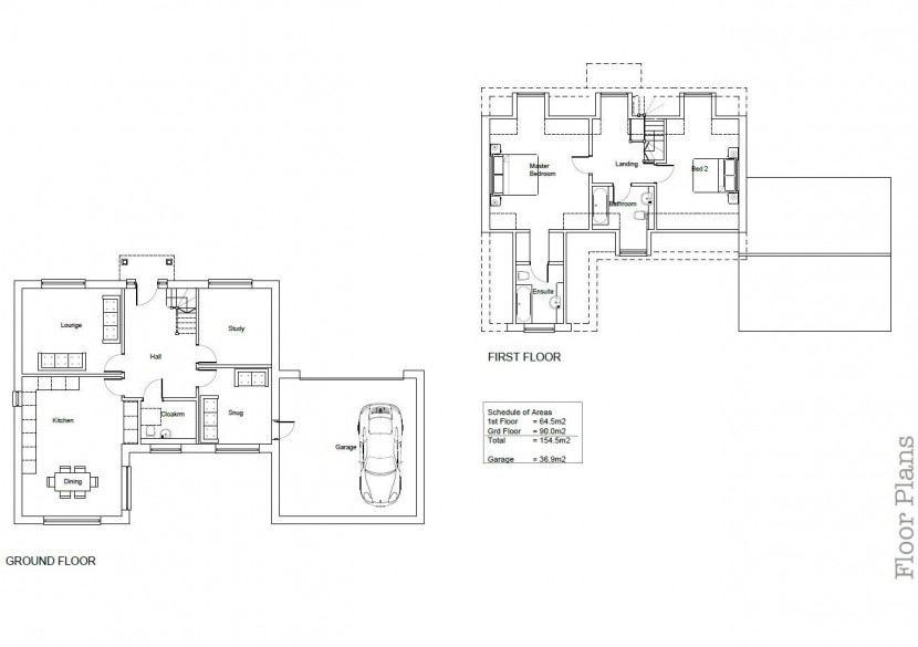
Planning has been granted to erect a detached family home with flexible accommodation ( 2055 Sq Ft ) arranged over two floors double garage and gardens.

PROPOSED SCHEDULE OF ACCOMMODATION

Ground Floor - Entrance Hall | Open Plan Kitchen / Dining with Doors to Garden | Lounge | Study | Snug | Cloakroom
First Floor - Landing | Master Bedroom | En Suite | Bedroom 2 | Family Bathroom
Outside - Double Garage | Off Street Parking | Gardens

PLANNING GRANTED

Reference22/P/2649/FUL
Application ReceivedWed 02 Nov 2022
Application ValidatedWed 07 Dec 2022
AddressLand West Of 4 Butts Orchard Wrington BS40 5DR
ProposalProposed erection of 1 No. two bed dwelling and associated works.
StatusDecided
DecisionApprove
Decision Issued DateMon 07 Aug 2023
Appeal StatusUnknown
Appeal DecisionNot Available

PLANNING INFORMATION

Full details of the proposed scheme and drawings can be downloaded with the online legal pack.

LOCATION

Wrington ( is the jewel in the crown of the Wrington Vale and one of the most sought after villages in North Somerset is situated with good access to local amenities and surrounded by beautiful countryside. Picturesque with a lengthy and interesting history, it benefits from facilities usually reserved for a larger town, including two pubs (one with an excellent restaurant), church and a chapel, a primary school (awarded 'Outstanding' by Ofsted), post office, public transport, garage, pharmacy, dentist, coffee shop, grocery shop, off licence/convenience shop and even two florist/gift shops (one in the village centre and one on the outskirts). Secondary schooling is available at nearby Churchill Academy and Sixth Form Centre ( also recently awarded 'Outstanding' by Ofsted (with transport for local children provided daily), and which also benefits from a modern sports complex open to the general public. Further schools, both state and private, are at Bristol, Backwell, Wraxall and the Chew Valley. The area around is well known for its beauty and offers a variety of community pursuits. Indeed, riding, walking, fishing, sailing and dry skiing are just some of the activities available within a few miles. The village itself is within commuting distance of Bristol and the seaside town of Weston-super-Mare and there is access to the motorway network at Clevedon (junction 20) and St. Georges (junction 21). There is an international airport at Lulsgate and a mainline railway station at Yatton.

SOLICITORS

Gemma Williams
Slee Blackwell Solicitors
t: 0333 888 0404
gemma.williams@sleeblackwell.co.uk
https://www.sleeblackwell.co.uk/

EXTENDED COMPLETION

Completion is set for 8 weeks or earlier subject to mutual consent.

LEGAL PACK COMPLETE

We have been informed by our client’s solicitors that the legal pack for this lot is now complete.

Should any last minute addendums occur you will be automatically notified by email.

If the vendors have indicated they are willing to consider pre-auction offers, now is the time to submit your offer by completing the pre-auction offer form.

IMPORTANT AUCTION INFORMATION

VIEWINGS

Please submit a viewing request online and we will contact you to organise an appointment.
We will send you an email and text to confirm the appointment time and the full property address.
Viewings are supervised by a member of the Hollis Morgan Auction team who will meet you at the property.

ONLINE LEGAL PACKS

Digital Copies of the Online legal pack can be downloaded Free of Charge.
Please visit the Hollis Morgan Website and select the chosen lot from our Current Auction List.
Press the GREEN button to "Download Legal Packs" For the first visit you will be required to register simply with your email and a password.
Having set up your account you can download legal packs or if they are not yet available, they will automatically be sent to you when we receive them.
You will be automatically updated by email if any new information is added.
There will be a note added to the list to confirm AUCTION PACK NOW COMPLETE when no further information is due to be added.
*** STAY UPDATED *** By registering for the legal pack we can ensure you are kept updated on any changes to this Lot in the build up to the sale.

BUYER’S PREMIUM

Please be aware all purchasers are subject to a £1000 + VAT (£1,200 inc VAT) buyer's premium which is ALWAYS payable upon exchange of contracts whether the sale is concluded before, during or after the auction date.

GUIDE PRICE

An indication of the seller's current minimum acceptable price at auction. The guide price or range of guide prices is given to assist consumers in deciding whether to pursue a purchase. It is usual, but not always the case, that a provisional reserve range is agreed between the seller and the auctioneer at the start of marketing. As the reserve is not fixed at this stage and can be adjusted by the seller at any time up to the day of the auction in the light of interest shown during the marketing period, a guide price is issued. This guide price can be shown in the form of a minimum and maximum price range within which an acceptable sale price (reserve) would fall, or as a single price figure within 10% of which the minimum acceptable price (reserve) would fall. A guide price is different to a reserve price (see separate definition). Both the guide price and the reserve price can be subject to change up to and including the day of the auction.

RESERVE PRICE

The seller's minimum acceptable price at auction and the figure below which the auctioneer cannot sell. The reserve price is not disclosed and remains confidential between the seller and the auctioneer. Both the guide price and the reserve price can be subject to change up to and including the day of the auction.

PRE AUCTION OFFERS

Some vendors are willing to consider offers prior to the auction.
Pre auction offers can ONLY be submitted by completing the online PRE AUCTION OFFER FORM
The form can be found on the Hollis Morgan website on the individual auction property listing.
Please note offers will not be considered until you have inspected the COMPLETE LEGAL PACK once it has been released.
There will be a note added to the list to confirm AUCTION PACK NOW COMPLETE when our client’s solicitor informs us no further information is due to be added.
In the event of an offer being accepted the property will only be removed from the online auction and viewings stopped once contracts have successfully EXCHANGED subject to the standard auction terms and payment of the buyer’s premium (£1000 + VAT) to Hollis Morgan.
Contracts can be exchanged via the solicitors or at the Hollis Morgan offices by appointment only.

REGISTRATION PROCESS

The registration process is extremely simple – visit the Hollis Morgan auction website and click on the “Register to Bid” button.
The “Register to Bid” button can be found on the auction home page or on the individual lot listings.
Please note this function is not available on Rightmove or Zoopla.

Stage 1 – Complete the Online Bidding Form
Stage 2 – Upload your certified ID
Stage 3 – Invitation to bid
Stage 4 – Pay your security deposit (£6,200)

You are now ready to bid – Good luck!

If your bid is successful, the balance of the deposit monies must be transferred to our client account within 24 hours of the auction sale.
If you are unsuccessful at the auction your holding deposit will be returned within 48 hours.

SURVEYS AND VALUATIONS

If you would like to arrange a survey or mortgage valuation of this Lot BEFORE the auction, please instruct your appointed surveyor to contact Hollis Morgan and we will arrange access for them to inspect the property. Please note that buyers CANNOT attend the surveys and the surveyors are responsible for collecting and returning keys to the Hollis Morgan offices in Clifton.

AUCTION FINANCE & BRIDGING LOANS

Some properties may require specialist auction finance- please contact Hollis Morgan for access to expert advice and whole of market rates from our independent brokers.

Hollis Morgan may receive introductory fees for this service from the broker.

AUCTION BUYER’S GUIDE VIDEO

We have short video guides for both buying and selling by Public Auction on the Hollis Morgan Website. If you have any further questions regarding the process, please don’t hesitate to contact Auction HQ.

2024 CHARITY OF THE YEAR

Hollis Morgan is supporting The Malcolm Gunter Foundation as our 2024 Charity of the year with a % of each Buyers premium being donated.
In 2018 Malcolm Gunter passed away from Motor Neurone Disease - In his memory, MGF has raised over £200,000 and provided support and grants for many local people living with and affected by MND.
100% of all monies raised will be utilised in supporting sufferers of MND with their physical and emotional needs, and research into the disease .
Visit the Hollis Morgan Charity Page of our website for further details

TESTIMONIALS

We are very proud of what our past clients have say about us - please visit the Hollis Morgan website to read their testimonials.

I WANT TO SELL BY AUCTION

Since 2010 Hollis Morgan have been the most successful land and property auctioneers across the Region. Famous for large public sales our reputation was built on transparent, competitive bidding leading to some memorable results. As a reaction to covid we have moved to a monthly live online platform which has proved to be a huge success. Our core service has all the benefits of a traditional auction but now, via a fully interactive online saleroom with options to bid by telephone, proxy or online we can now reach a national and international audience - the feedback from our clients is hugely positive and we are now committed to this 21st century method of selling land and property.

In 2022 Hollis Morgan Sold More Lots by auction in Bristol, North Somerset, Bath & Gloucester than any other Auctioneer!
In 2022 over £65m of land and property was successfully sold under the hammer by Hollis Morgan.
Since 2010 Hollis Morgan have Sold More Lots by auction than any other local firm!

Bristol’s most experienced auctioneer Andrew Morgan MBE – with forty years’ experience on the rostrum.
Auction specific premium adverts on both the UK’s biggest property portals Rightmove & Zoopla.
Digital Mailing list of over 40,000 Local, National, Regional and International Developers, Investors and family buyers.
Over 100 years combined property experience operating from our Regional HQ based in Clifton covering Bristol and the West Country.
Innovative yet simple marketing techniques such as virtual tours, drone shots, video tours, hi vis signage and professional photos.
Active and coordinated social media presence on Instagram, twitter, LinkedIn and Google.

WHY LIVE ONLINE AUCTION?

•Fixed Timescales & Speed - Exchange on the day with a quick & fixed completion of 4, 6 or 8 weeks.
•Closure & Control - 10% non refundable deposit taken upon exchange and the deal is done unlike a traditional sale.
•High Profile Sale – Intensive 4-6 week marketing campaign to make your lot visible and available to all potential buyers.
•Guaranteed Price - you set a minimum reserve which protects you from selling for any less than you want.
•Transparency & Competitive Bidding - Auction provides a transparency of sale ensuring your lot is sold to the person willing to pay the most on the day.

For loads more reasons to instruct Hollis Morgan and the statistics to back it up please visit our selling by auction section of the Hollis Morgan website.

AUCTION PROPERTY DETAILS DISCLAIMER

Hollis Morgan endeavour to make our sales details clear, accurate and reliable in line with the Consumer Protection from Unfair Trading Regulations 2008 but they should not be relied on as statements or representations of fact, and they do not constitute any part of an offer or contract. All Hollis Morgan references to planning, tenants, boundaries, potential development, tenure etc is to be superseded by the information contained in the legal pack. It should not be assumed that this property has all the necessary Planning, Building Regulation, or other consents. Any services, appliances and heating system(s) listed have not been checked or tested. Please note that in some instances the photographs may have been taken using a wide-angle lens. The seller does not make any representation or give any warranty in relation to the property, and we have no authority to do so on behalf of the seller.


Local Information

Schools Stations Healthcare
Floorplan for PLOT | PLANNING | WRINGTON