Sold @ Auction £550,000

Development Site @, Warleys Lane, West Wick ( Near Weston Super Mare ), BS24 7TN

Bedrooms 28 Bathrooms 18 Reception 9

  • FOR SALE BY ONLINE AUCTION
  • WEDNESDAY 22ND JUNE 2022
  • VIDEO TOUR NOW ONLINE
  • VIEWINGS - REFER TO DETAILS
  • DOWNLOAD ONLINE LEGAL PACKS
  • SOLD @ JUNE 2022 AUCTION
  • FREEHOLD DEVELOPMENT SITE
  • PLANNING GRANTED | 9 HOUSES
  • GDV £2.87m | 0.393 ACRES
  • EXTENDED 8 WEEK COMPLETION

FOR SALE BY LIVE ONLINE AUCTION

*** SALE AGREED PRIOR TO AUCTION ***

ADDRESS | Land @ Warleys Lane, West Wick, Weston Super Mare, BS24 7TN

Lot Number 10
The Live Online Auction is on Wednesday 22nd June 2022 @ 17:30
Registration Deadline is on Monday 20th June @ 16:00

The Auction will be streamed LIVE ONLINE via the Hollis Morgan website & you can chose to bid by telephone, proxy or via your computer.
Registration is a simple online process – please visit the Hollis Morgan auction website and click “REGISTER TO BID”

VIEWINGS

Viewings can be booked on specific days for this property – please submit a viewing request online and we will contact you to arrange access.
Hollis Morgan would be grateful if you could arrive promptly to inspect the properties at the START of the agreed time as we have scheduled viewings throughout the day and CANNOT wait for late arrivals.
There are likely to be viewings on the property before and after your appointment and if you miss your slot (usually 15 minutes or longer for larger properties) you will be asked to wait until the next available time.
We insist safe social distancing is always practiced – you will need a facemask to enter the property.
Please note that hard copy of details will not be provided but will have been emailed to you with instructions on how to bid and what happens next before the viewing.

EXTENDED COMPLETION

Completion is set for 8 weeks or earlier subject to mutual consent.

ONLINE LEGAL PACKS

Digital Copies of the Online legal pack can be downloaded Free of Charge.
Please visit the Hollis Morgan Website and select the chosen lot from our Current Auction List.
Follow the RED link to "Download Legal Packs" For the first visit you will be required to register simply with your email and a password.
Having set up your account you can download legal packs or if they are not yet available, they will automatically be sent to you when we receive them.
You will be automatically updated by email if any new information is added.
There will be a note added to the list to confirm AUCTION PACK NOW COMPLETE when no further information is due to be added.
*** STAY UPDATED *** By registering for the legal pack we can ensure you are kept updated on any changes to this Lot in the build up to the sale.

EPC

For full details of the EPC please refer to the online legal pack.

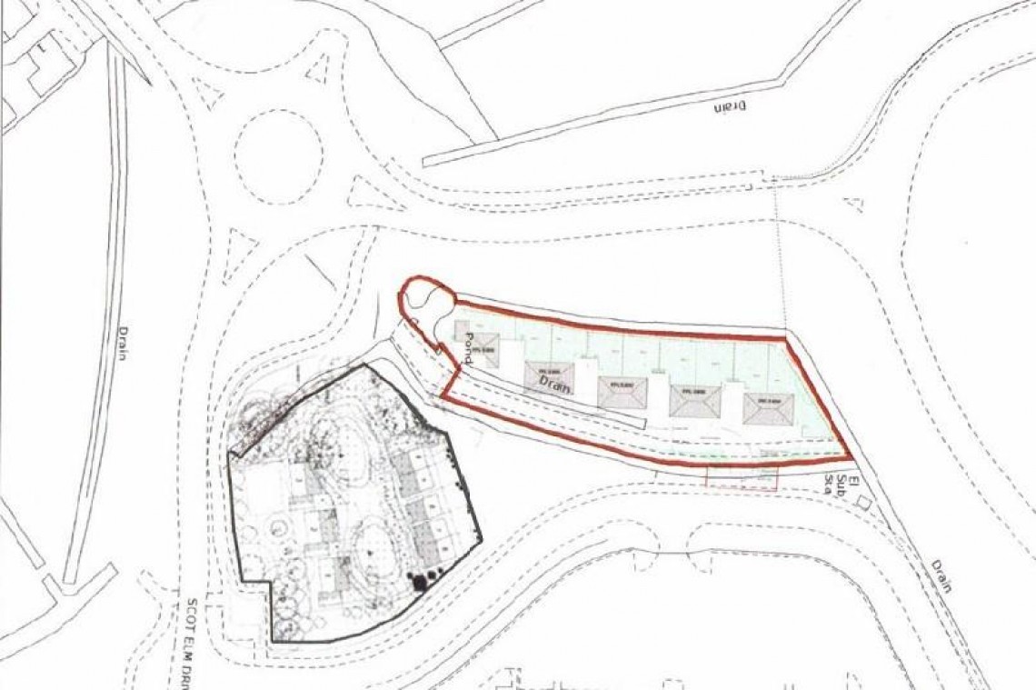
THE LAND

A level Freehold parcel of land ( 0.393 Acres ) located on Warleys lane betwixt Wolvershill Road.
Sold with vacant possession.

THE OPPORTUNITY

DEVELOPMENT SITE - PLANNING GRANTED

Planning has been granted to erect a scheme of 8 semi detached 3 bedroom houses ( 979 Sq Ft ) and 1 detached 4 bedroom house with garage (1280 Sq Ft ) with a GDV of £2.87m

HOLLIS MORGAN LAND & NEW HOMES

For a full breakdown of the GDV please visit the online legal pack.

PLANNING GRANTED

Application Number: 21/P/1337/FUL
Category: Full application
Application No: 21/P/1337/FUL
Applicant: DCREWE Ltd
Site: Land At Warleys Lane,Weston-super-Mare, ,
Description: Development of 9no. dwellings with parking, vehicle access and associated landscape works.

PROPOSED SCHEDULE OF ACCOMMODATION

PLOTS 1 – 8 | Semi Detached ( 979 Sq Ft )

GROUND FLOOR – Entrance Hall | Reception | Open plan kitchen diner with doors to rear garden
FIRST FLOOR – Bedroom 1 | En Suite | Bedroom 2 | Bedroom 3 | Bathroom
OUTSIDE – Tandem Off Street Parking Space | Enclosed rear garden with side access

PLOT 9 | Detached ( 1280 Sq Ft )

GROUND FLOOR – Entrance Hall | Reception | Open plan kitchen diner with doors to rear garden
FIRST FLOOR – Bedroom 1 | En Suite | Bedroom 2 | Bedroom 3 | Bedroom 4 | Bathroom
OUTSIDE – Two Off Street Parking Space | Garage | Enclosed rear garden with side access

PLANNING INFORMATION

Full details of the proposed scheme and drawings can be downloaded with the online legal pack.

RENTAL APPRAISAL

What rent can we achieve for you?

The Bristol Residential Letting Co. are confident this development would make a good rental
investment. Josh Box of The Bristol Residential Letting Co suggests a rent in the region of;

Plots 1 – 8 (3 bedroom houses) - £1200pcm - £1300pcm
Plot 9 (4 bedroom house) - £1400pcm - £1500pcm

If you would like to discuss more detail on the potential for rental, you can call me (0117 370 8818) or
email (josh@bristolreslet.com) for a no obligation discussion. Alternatively why not drop into my
Office (222 North Street, Southville, BS3 1JD) where I am always happy to advise investors on
maximising their investment.

STANDARD AUCTION INFORMATION

BUYER’S PREMIUM

Please be aware all purchasers are subject to a £1000 + VAT (£1,200 inc VAT) buyer's premium which is ALWAYS payable upon exchange of contracts whether the sale is concluded before, during or after the auction date.

GUIDE PRICE

An indication of the seller's current minimum acceptable price at auction. The guide price or range of guide prices is given to assist consumers in deciding whether to pursue a purchase. It is usual, but not always the case, that a provisional reserve range is agreed between the seller and the auctioneer at the start of marketing. As the reserve is not fixed at this stage and can be adjusted by the seller at any time up to the day of the auction in the light of interest shown during the marketing period, a guide price is issued. This guide price can be shown in the form of a minimum and maximum price range within which an acceptable sale price (reserve) would fall, or as a single price figure within 10% of which the minimum acceptable price (reserve) would fall. A guide price is different to a reserve price (see separate definition). Both the guide price and the reserve price can be subject to change up to and including the day of the auction.

RESERVE PRICE

The seller's minimum acceptable price at auction and the figure below which the auctioneer cannot sell. The reserve price is not disclosed and remains confidential between the seller and the auctioneer. Both the guide price and the reserve price can be subject to change up to and including the day of the auction.

PRE-AUCTION OFFERS

Some vendors are willing to consider offers prior to the auction.
Pre-auction offers can ONLY be submitted by completing the online PRE-AUCTION OFFER FORM
The form can be found on the Hollis Morgan website on the individual auction property listings – look for the big red button.
Please note offers will not be considered until you have inspected the COMPLETE LEGAL PACK once it has been released.
There will be a note added to the list to confirm AUCTION PACK NOW COMPLETE when our client’s solicitor informs us no further information is due to be added.
In the event of an offer being accepted the property will only be removed from the online auction and viewings stopped once contracts have successfully EXCHANGED subject to the standard auction terms and payment of the buyer’s premium (£1000 + VAT) to Hollis Morgan.
Contracts can be exchanged via the solicitors or at the Hollis Morgan offices by appointment only.

REGISTRATION PROCESS

The registration process is extremely simple – visit the Hollis Morgan auction website and click on the “Register to Bid” button.
The “Register to Bid” button can be found on the auction home page or on the individual lot listings.
Please note this function is not available on Rightmove or Zoopla.

Stage 1 – Complete the Online Bidding Form
Stage 2 – Upload your certified ID
Stage 3 – Invitation to bid
Stage 4 – Pay your security deposit (£6,200)

You are now ready to bid – Good luck!

If your bid is successful, the balance of the deposit monies must be transferred to our client account within 24 hours of the auction sale.
If you are unsuccessful at the auction your holding deposit will be returned within 48 hours.

SURVEYS AND VALUATIONS

If you would like to arrange a survey or mortgage valuation of this Lot BEFORE the auction, please instruct your appointed surveyor to contact Hollis Morgan and we will arrange access for them to inspect the property. Please note that buyers CANNOT attend the surveys and the surveyors are responsible for collecting and returning keys to the Hollis Morgan offices in Clifton.

AUCTION FINANCE

Some properties may require specialist auction finance- please contact Hollis Morgan for access to expert advice and "whole of market" rates.

AUCTION BUYER’S GUIDE VIDEO

We have short video guides for both buying and selling by Public Auction on the Hollis Morgan Website. If you have any further questions regarding the process, please don’t hesitate to contact Auction HQ.

2022 CHARITY OF THE YEAR

Hollis Morgan is supporting Bristol Charity Gympanzees as our 2022 Charity of the year with a % of each Buyers premium being donated.
Gympanzees are a charity based in Bristol helping children and young people with disabilities to access fun, fitness, and friendship.
Visit the Hollis Morgan Charity page of our website for further details or the charity direct @ www.gympanzees.org

TESTIMONIALS

We are very proud of what our past clients have say about us - please visit the Hollis Morgan website to read their testimonials.

WHY HOLLIS MORGAN

Want to sell a property by Live Online Auction?

In 2020 we sold 150 lots by this updated method - we have embraced this change and move forward with our 2021 live online calendar of sales confident we can provide the best service for our clients.

Did you know...In 2020 Hollis Morgan SOLD more lots by auction in Bristol, North Somerset & Gloucester than any other auctioneer!
Did you know...In 2020 Hollis Morgan SOLD more £££’s of BS postcode lots than all the other local auctioneers combined!
Did you know...Since 2010 we have offered more lots in our catalogue (2151) than any other local firm.
*Source EIG Group 2021

Hollis Morgan holds the largest monthly land & property auctions in the region – book your free, no obligation valuation today!

AUCTION PROPERTY DETAILS DISCLAIMER

Hollis Morgan endeavour to make our sales details clear, accurate and reliable in line with the Consumer Protection from Unfair Trading Regulations 2008 but they should not be relied on as statements or representations of fact, and they do not constitute any part of an offer or contract. All Hollis Morgan references to planning, tenants, boundaries, potential development, tenure etc is to be superseded by the information contained in the legal pack. It should not be assumed that this property has all the necessary Planning, Building Regulation, or other consents. Any services, appliances and heating system(s) listed have not been checked or tested. Please note that in some instances the photographs may have been taken using a wide-angle lens. The seller does not make any representation or give any warranty in relation to the property, and we have no authority to do so on behalf of the seller.


Local Information

Schools Stations Healthcare
Floorplan for PLANNING GRANTED - 9 UNITS Floorplan for PLANNING GRANTED - 9 UNITS