Lot 26

Land Adjacent to, 18 Victoria Place, Southville, BS3 3BP

Sold @ Auction £115,000 +++

Bedrooms 4 Bathrooms 2 Reception 1

  • For Sale By Public Auction
  • Wednesday 8th June 2016
  • All Saints Church, Clifton, BS8 2HY
  • External Viewings at all times
  • Download Online Legal Packs
  • JUNE 2016
  • 4 Bedroom Family Home
  • Cul De Sac Locaiton
  • GDV - circa £400k

FOR SALE BY AUCTION

SOLD @ AUCTION

GUIDE PRICE £110K
SOLD £115K


LOT NUMBER 26
Wednesday 8th June 2016
All Saints Church Pembroke Road, Clifton, Bristol BS8 2HY
Legal packs will be available for inspection from 18:00.
The sale will begin promptly at 19:00

SOLICITORS

Kirstie Wilkins
Ocean
199 Gloucester Road, Bishopston, Bristol, BS7 8BG
0117 916 6600
bishopstonlawyers@oceanhome.co.uk

ONLINE LEGAL PACKS

Please visit the Hollis Morgan Website and select the chosen lot from our Current Auction List.
Legal Packs are free to download from Hollis Morgan.
Follow the RED link to "Download Legal Packs" For the first visit you will be required to register simply with your email and a password.
Having set up your account you can download legal packs or register to receive them if not yet available.
You will be automatically be updated if any new information is added.

THE LAND

A level enclosed parcel of land with access from a quiet residential terrace.

LOCATION

Victoria Place is situated just off West Street within the popular suburb of Bedminster. Both North Street and West Street are within close proximity and offer a wide variety of amenities including bars, pubs, cafes and independent retailers. Bristol City Centre and the Harbourside district is within a mile whilst there are also regular public transport links running from Bedminster to the Cabot Circus shopping complex which is approximately two miles away.

THE OPPORTUNITY

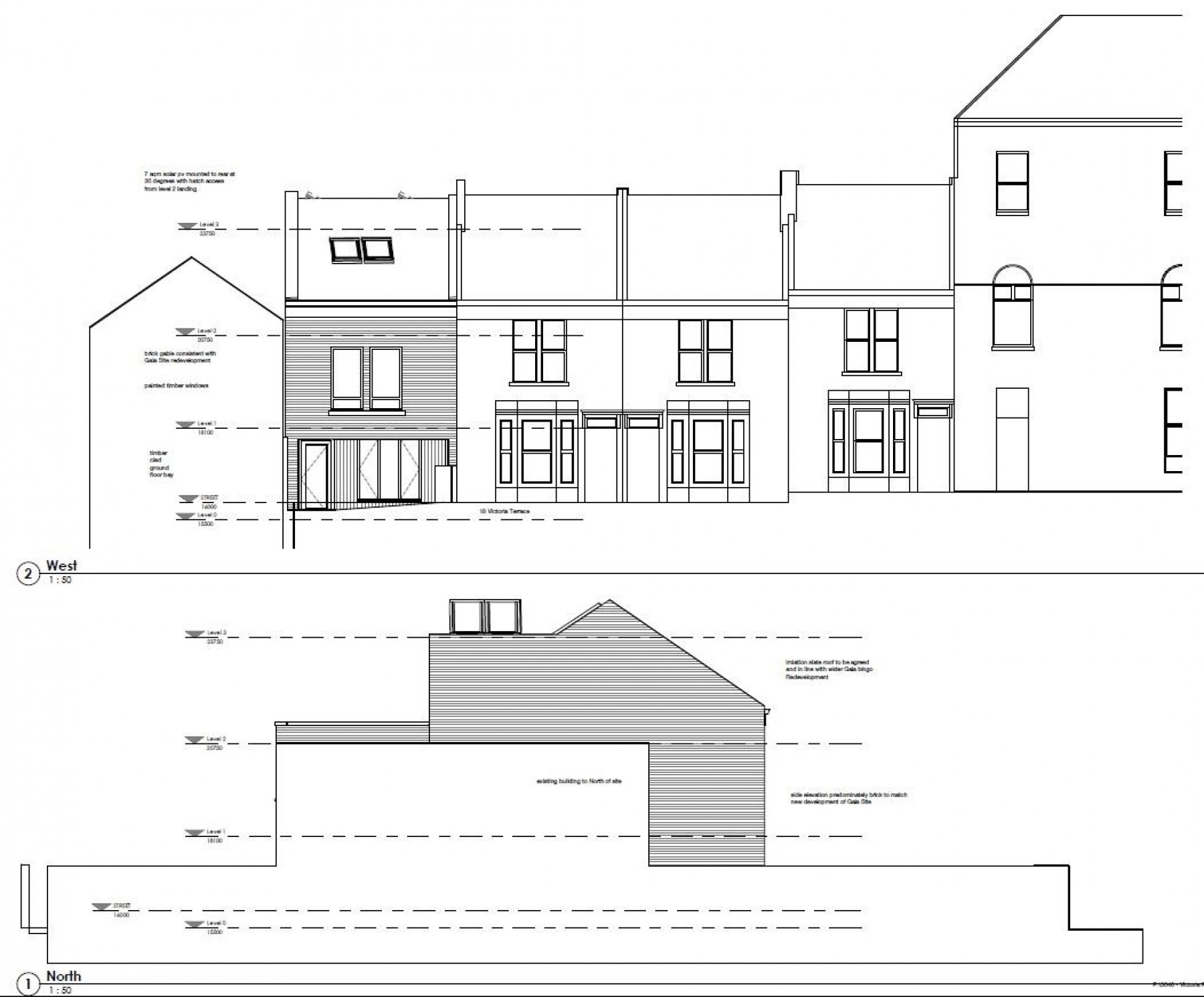
Full planning permission has been granted for the erection of a detached four bedroom house.
We would suggest the resale value of this property is approximately £400,000.

PLANNING GRANTED

Decision : GRANTED subject to condition(s)
Application no: 14/00826/F
Type of application: Full Planning
Site address: Land Adj, 18 Victoria Place, Bristol, BS3 3BP.
Description of development: Proposed erection of a 4 bedroom single dwelling on land adjacent to 18 Victoria Place.
Applicant: Mr R Clarke
Agent: Origin3 Studio
Committee/delegation date: 16.05.14
Date of Notice: 16.05.14

PLANS

Full details of all plans, drawings etc. can be downloaded via the online legal pack.

RENTAL APPRAISAL

The local lettings experts say:
The Bristol Residential Letting Co. is confident this development would make a good rental investment. Don McKeever of The Bristol Residential Letting Co suggests a rent in the region of £1400 - £1600pcm will be achievable if refurbished for the professional market. If you would like to discuss more detail on the potential for rental, you can call Don (0117 370 8818) for a no obligation discussion. He will be very happy to advise on maximising the return on this property.

BUYER'S PREMIUM

Please be aware all purchasers are subject to a £750 + VAT buyer's premium which is ALWAYS payable upon exchange of contracts whether the sale is concluded before, during or after the auction date.

GUIDE PRICE

An indication of the seller's current minimum acceptable price at auction. The guide price or range of guide prices is given to assist consumers in deciding whether or not to pursue a purchase. It is usual, but not always the case, that a provisional reserve range is agreed between the seller and the auctioneer at the start of marketing. As the reserve is not fixed at this stage and can be adjusted by the seller at any time up to the day of the auction in the light of interest shown during the marketing period, a guide price is issued. This guide price can be shown in the form of a minimum and maximum price range within which an acceptable sale price (reserve) would fall, or as a single price figure within 10% of which the minimum acceptable price (reserve) would fall. A guide price is different to a reserve price (see separate definition). Both the guide price and the reserve price can be subject to change up to and including the day of the auction.

RESERVE PRICE

The seller's minimum acceptable price at auction and the figure below which the auctioneer cannot sell. The reserve price is not disclosed and remains confidential between the seller and the auctioneer. Both the guide price and the reserve price can be subject to change up to and including the day of the auction.

OFFERS

Pre auction offers can be only submitted by completing the OFFER FORM which can be downloaded within the online legal pack. Please send the COMPLETED form to – olly@hollismorgan.co.uk Please note offers will not be considered until you have viewed the property and the COMPLETE legal pack has been released. In the event of an offer being accepted the property will only be removed from the auction and viewings stopped once contracts have successfully exchanged subject to the standard auction terms and payment of the buyers premium to Hollis Morgan.

AUCTION BUYERS GUIDE VIDEO

We have short video guides for both buying and selling by Public Auction on the Hollis Morgan Website. If you have any further questions regarding the process please don’t hesitate to contact Auction HQ.

TESTIMONIALS

We are very proud of what our past clients have say about us - please visit the Hollis Morgan website to read their testimonials.

CHARITY OF THE YEAR

Hollis Morgan are supporting Home Start Bristol as our 2016 Charity of the year. We are delighted to announce that 10% of every buyer’s premium will be donated to this excellent local charity – Home-Start Bristol provides a unique kind of help which has a profound impact on struggling families with young children, 98% of those who finished a period of support reported that their wellbeing had increased. If you would like to find out more about Home-Start Bristol and how you can support us please visit our website www.homestartbristol.org.uk


Local Information

Schools Stations Healthcare
Floorplan for Land @ Victoria Place, Southville, Bristol