GUIDE PRICE - £2K ( TWO THOUSAND )
SOLD @ AUCTION - £151K
LOT NUMBER 53
Wednesday 24th February
All Saints Church Pembroke Road, Clifton, Bristol BS8 2HY
Legal packs will be available for inspection from 18:00.
The sale will begin promptly at 19:00
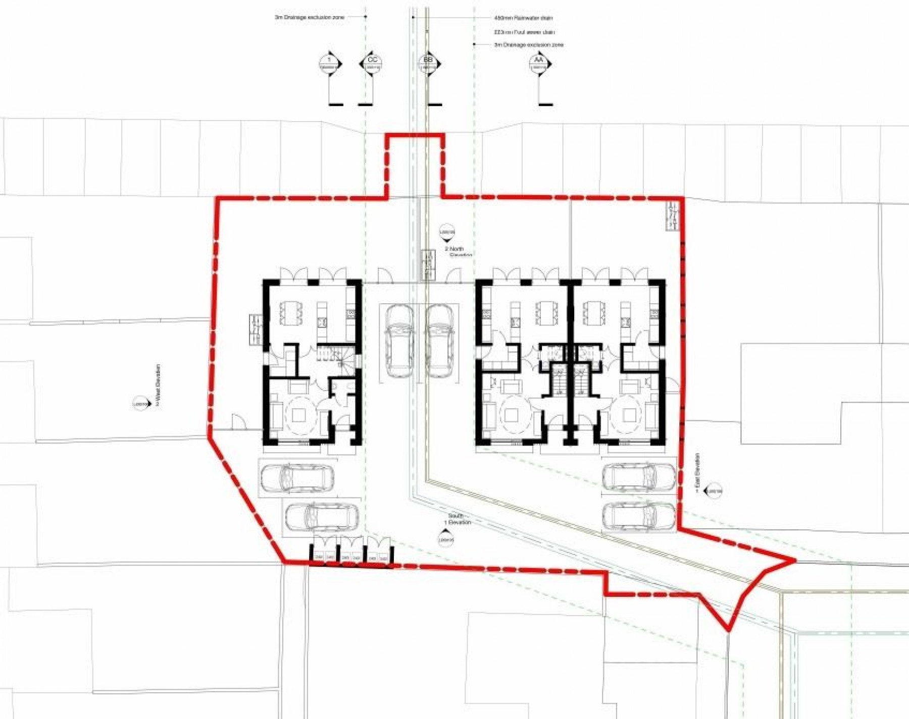
An enclosed parcel of land off Grosvenor Place.
The land is reserved as a “communal amenity area”. The land is also subject to the rights and reservations set out in the Transfer Deed dated 22 January 1974 which includes the following reservation; “the right to the reasonable use of the two play spaces shown edged red on the said plan”. All interested parties should make their own enquiries as to whether this would effect any proposed development on site.
Located in a sought after residential area just 1.5 miles north west of the city centre of Hereford with an excellent range of amenities including a co-operative supermarket, post office, doctor's surgery, public house, regular bus service, good schools nearby and easy access to countryside walks, the Leisure Centre, the Racecourse and a golf course as well as the Roman Road for access towards Worcester and the M5.
Planning has been granted WITH CONDITIONS for the reaction of 3 new build properties.
Number - P143799/F
Decision - Approved with CONDITIONS
Type - Planning Permission
Location - Land off Grosvenor Place Hereford
Proposal - Proposed development of 3 no. houses and associated access and landscape works.
*** PLEASE REFER TO ONLINE LEGAL PACK FOR FURTHER INFORMATION ***
PLEASE NOTE CONDITIONS OF APPROVAL VIA THE LINK BELOW
https://www.herefordshire.gov.uk/planning-and-building-control/development-control/planning-applications/details?id=143799&search=Grosvenor%20Place
PLOT 1
Detached 4 Bed
1281 Sq Ft
Resale Circa £285k
PLOT 2
Semi Detached 4 Bed
1270 sq Ft
Resale Circa £265k
PLOT 3
Semi Detached 4 Bed
1033 sq Ft
Resale Circa £240k